
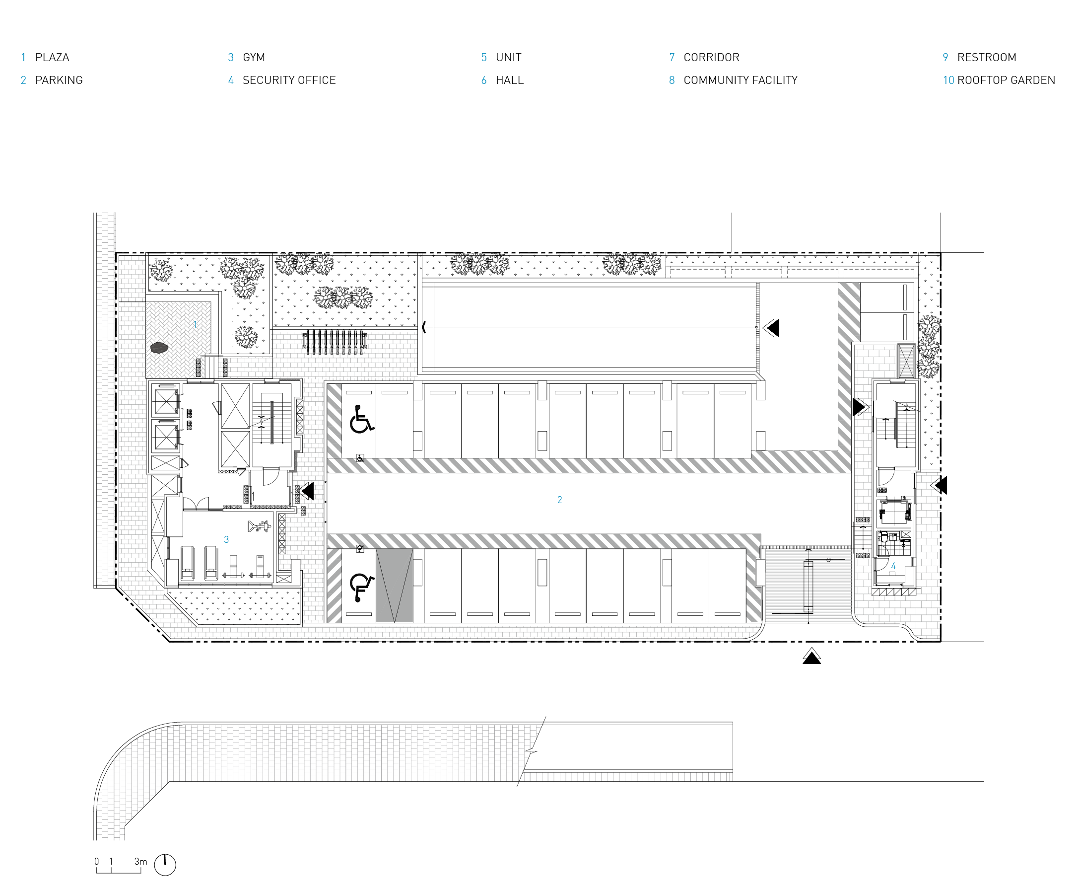
계림 웨스트밸리 Ⅱ의 10층 측벽에 위치한 돌출된 도서관의 매스는 세상을 향한 등대의 빛을 은유한 건축적 상징이다. 오피스텔의 각 유닛은 일반적인 오피스텔의 전면폭인 4m 내외의 규격보다 1.6m가 더 넓은 5.6m로 개방감을 확보하고 공간 사용의 효율을 높였다. 오피스텔에서 커뮤니티시설은 청년들의 지, 덕, 체를 함양하는 공간으로 완성형 청년주택의 주요 요건이 되고 있다. LH 한국토지주택공사는 가구 당 1~1.5㎡ 의 커뮤니티 면적을 확보하도록 요구했다. 1층에는 헬스장 및 옥외 공개 공지를, 최상층인 10층에는 도서관, 독서실, 미니카페, 휴게 공간 등을 반영했다.

주거 기능만을 구축한 이전의 청년주택에서 진일보한 청년들의 미래 도전의 터전으로 청년들의 베이스캠프를 구축하고자 했다. 청년 LH공공임대주택은 주거약자인 청년 세대를 위한 주거 공간이다. LH 한국토지주택공사는 민간에서 독자적인 사업으로 수행하기 어려운 청년주택, 신혼주택, 다자녀주택, 고령자주택 등의 사회주택을 매입임대주택의 일환인 민간참여형 사업으로 진행하고 있다. 이러한 주거약자 특화사업은 사회적으로 의미 있는 공공선의 실현이라고 할 수 있다. 특히, 청년주택은 공공주택특별법에 따라 공영성을 기반으로 한 20년 이상 공공임대가 가능한 주택으로, 역세권 청년주택은 주차완화를 통해 개발의 효용을 높이는 인센티브를 부여함으로써 사업의 참여를 장려하고 있다. 근래 건설 불황이 처한 환경을 바다가 꽁꽁 얼어있는 유빙해에 비유한다면, LH공공임대주택의 보급의 적극적 추진은 동해(凍海)에 쇄빙선의 기능을 하는 바람직한 돌관 정책이다. 청년들의 베이스캠프는 청년의 꿈을 이루어 나가도록 하는 터전으로써 2030 세대의 삶의 질 개선과 비전을 실현하는 터전이 될 것이다. 결과적으로 사회에 선순환을 일으키는 나비효과 역할을 하여 미래의 풍요를 이루는데 일조할 것이다.







건축가 건축사사무소 여헌(주)
위치 인천광역시 서구 원적로47번길 42(가좌동)
용도 업무시설(오피스텔)
대지면적 1,445.60m2
건축면적 689.22m2
연면적 6,894.06m2
규모 지하 1층, 지상 10층
건폐율 47.68%
용적률 399.14%
설계기간 2022. 10. - 2023. 5.
시공기간 2023. 6. - 2024. 11.
준공 2024. 11.
대표건축가 김영조
프로젝트건축가 김영조
디자인팀 김경률, 정진우
구조엔지니어 (주)에스디
기계엔지니어 (주)기광엔지이어링
전기엔지니어 (주)기광엔지이어링
시공 계림종합건설주식회사
발주자 건곤주식회사
사진작가 김용수
해당 프로젝트는 건축문화 2025년 3월호(Vol. 526)에 게재되었습니다.
The project was published in the November, 2025 recent projects of the magazine(Vol. 526).
March 2025 : vol. 526
Contents : COMPETITION : BOOKS : RECENT PROJECT GYERIM WEST VALLEY Ⅱ / YEOHEON ARCHITECT & ENGINEERS CO계림 웨스트밸리 Ⅱ / 건축사사무소 여헌(주) Sky Ranch Sheep House / GA department Architects & Associates하늘목장
anc.masilwide.com
'Architecture Project > Multifamily' 카테고리의 다른 글
| 중정으로 연결되는 두 가족의 집 / 헬렌 어거스틴 스튜디오 (0) | 2025.03.12 |
|---|---|
| 그로우 / 모던 오피스 오브 디자인 + 아키텍처 (엠오디에이) (0) | 2025.03.12 |
| 김천다가구주택 / 레이어드 건축사사무소 (0) | 2025.02.21 |
| 대기만성 / 레이어드 건축사사무소 (0) | 2025.02.20 |
| 과거의 옷을 입은 곳에 앉아 바라보는 지금의 풍경 / 위 아키텍텐, 파울 더 라위터르 아르히텍츠 (0) | 2025.01.22 |
마실와이드 | 등록번호 : 서울, 아03630 | 등록일자 : 2015년 03월 11일 | 마실와이드 | 발행ㆍ편집인 : 김명규 | 청소년보호책임자 : 최지희 | 발행소 : 서울시 마포구 월드컵로8길 45-8 1층 | 발행일자 : 매일



