
GROW
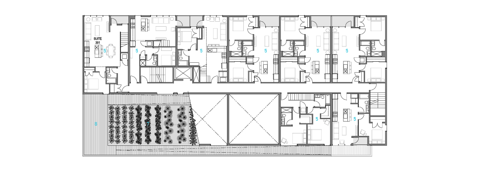
그로우는 다양한 규모의 유닛을 제공하는 20세대 규모의 공유주택으로 무장애 옥상 도시 농장을 사회적 요소로 활용하여 다양한 도심 공동체의 형성을 장려한다. 그로우에 마련된 편의 공간은 개인 정원, 녹색 지붕, 양봉장과 같은 원예 공간을 도입함으로써 캘거리의 도심 속에서 원예 생활을 누릴 수 있게 한다.

거주자들은 봄철의 파종, 텃밭의 유지 및 관리 그리고 캘거리 지역 사회와 함께 수확을 준비하고 판매하는 과정에 참여하게 된다. 그로우는 차선이 없는 도심에 위치하고 있으며, 부지의 북서쪽에서 남동쪽으로 20피트의 고도 변화가 있다. 건축 후퇴선과 높이 제한 등의 제약을 활용해 유닛별로 경사를 활용한 테라스를 만들고, 각 유닛에 채광과 전망을 제공하여 공유주택으로써의 디자인 전략을 풍부하게 적용했다.



그로우의 각 유닛은 다양한 인구 구성원의 사회적 상호작용을 지원하기 위해 작은 스튜디오, 복층 구조, 2층 규모의 타운하우스 등 다양한 타입으로 마련되어 있다. 이러한 다양한 유닛 타입은 노부부와 그들의 자녀들이 각각의 세대에 거주하거나, 1인 가구의 학생과 직장인이 서로 이웃이 될 수 있도록 장려하여 소셜 커뮤니티를 강화한다. 그로우는 공유주택에서의 사유화 개념을 재해석한 프로젝트다. 일반적으로 공유주택에서의 사회적인 교류는 복도나 우편함 앞에서 이루어지는데, 그로우는 유닛의 다양성과 원예 공간이 마련되어 있어 주민들간의 교류를 자연스럽게 유도한다.







건축가 모던 오피스 오브 디자인 + 아키텍처 (엠오디에이) (MODERN OFFICE OF DESIGN + ARCHITECTURE (MODA))
위치 캐나다, 캘거리
용도 공동주택
대지면적 1,380.00㎡
건축면적 1,010.00㎡
연면적 1,800.00㎡
용적률 130.00%
설계기간 2016. 10. - 2018. 4.
시공기간 2018. 7. - 2021. 4.
준공 2021
대표건축가 Dustin Couzens
프로젝트건축가 Nicolas Tam
디자인팀 Ben Klumper, Dustin Couzens, Nicolas Tam, Cara Tretiak
구조엔지니어 Wolsey Structural Engineering Ltd.
기계엔지니어 TLJ Engineering Consultants Inc.
전기엔지니어 TLJ Engineering Consultants Inc.
시공 Maxim Construction
발주자 Andrei Metelitsa
사진 Ema Peter
해당 프로젝트는 건축문화 2025년 3월호(Vol. 526)에 게재되었습니다.
The project was published in the November, 2025 recent projects of the magazine(Vol. 526).
March 2025 : vol. 526
Contents : COMPETITION : BOOKS : RECENT PROJECT GYERIM WEST VALLEY Ⅱ / YEOHEON ARCHITECT & ENGINEERS CO계림 웨스트밸리 Ⅱ / 건축사사무소 여헌(주) Sky Ranch Sheep House / GA department Architects & Associates하늘목장
anc.masilwide.com
'Architecture Project > Multifamily' 카테고리의 다른 글
| 평등한 공간을 만드는 공동주택 / 시에르토 에스투디오 (0) | 2025.04.01 |
|---|---|
| 중정으로 연결되는 두 가족의 집 / 헬렌 어거스틴 스튜디오 (0) | 2025.03.12 |
| 세상을 비출 청년을 위한 집, 계림 웨스트밸리 Ⅱ / 건축사사무소 여헌(주) (0) | 2025.03.07 |
| 김천다가구주택 / 레이어드 건축사사무소 (0) | 2025.02.21 |
| 대기만성 / 레이어드 건축사사무소 (0) | 2025.02.20 |
마실와이드 | 등록번호 : 서울, 아03630 | 등록일자 : 2015년 03월 11일 | 마실와이드 | 발행ㆍ편집인 : 김명규 | 청소년보호책임자 : 최지희 | 발행소 : 서울시 마포구 월드컵로8길 45-8 1층 | 발행일자 : 매일



