
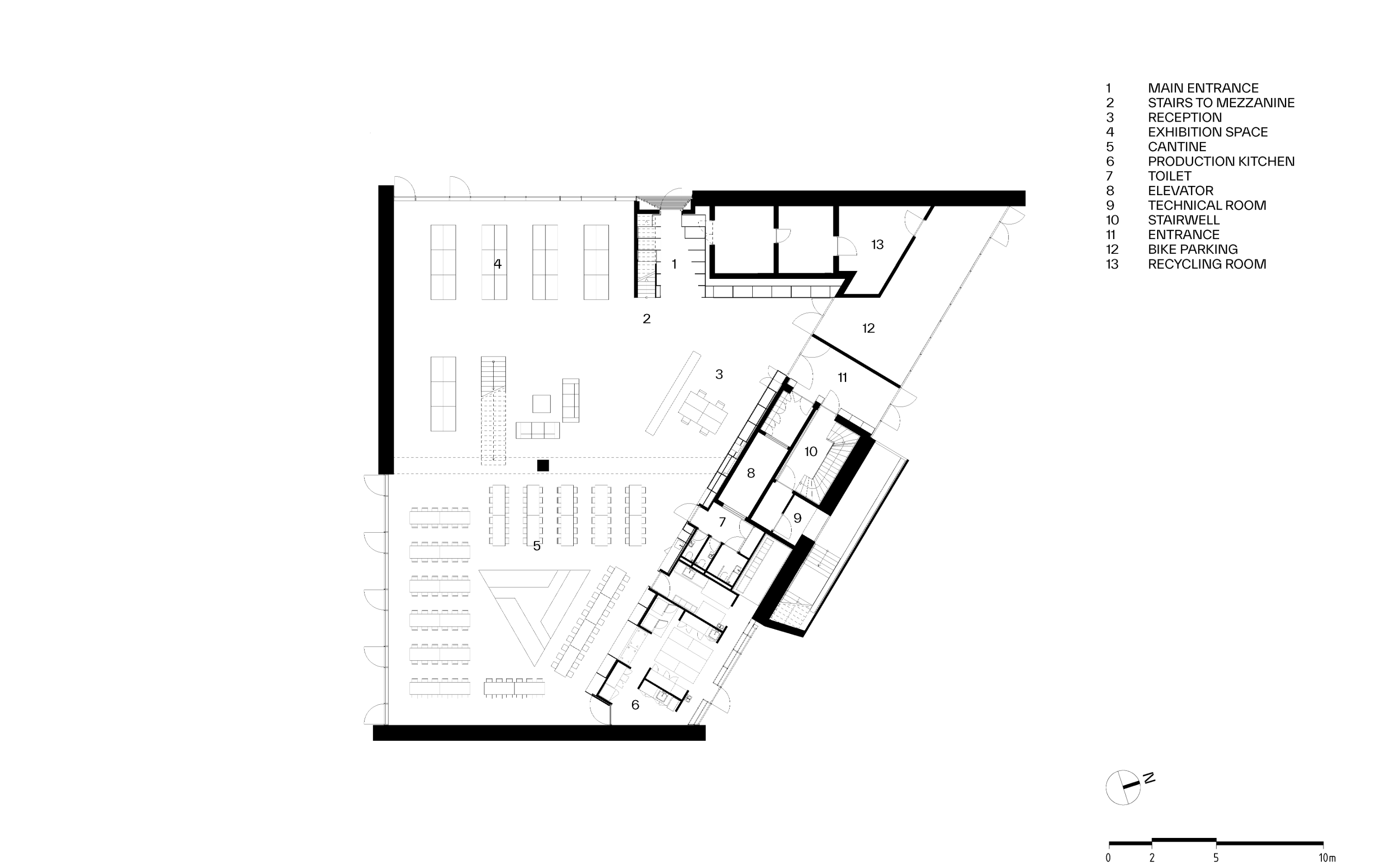
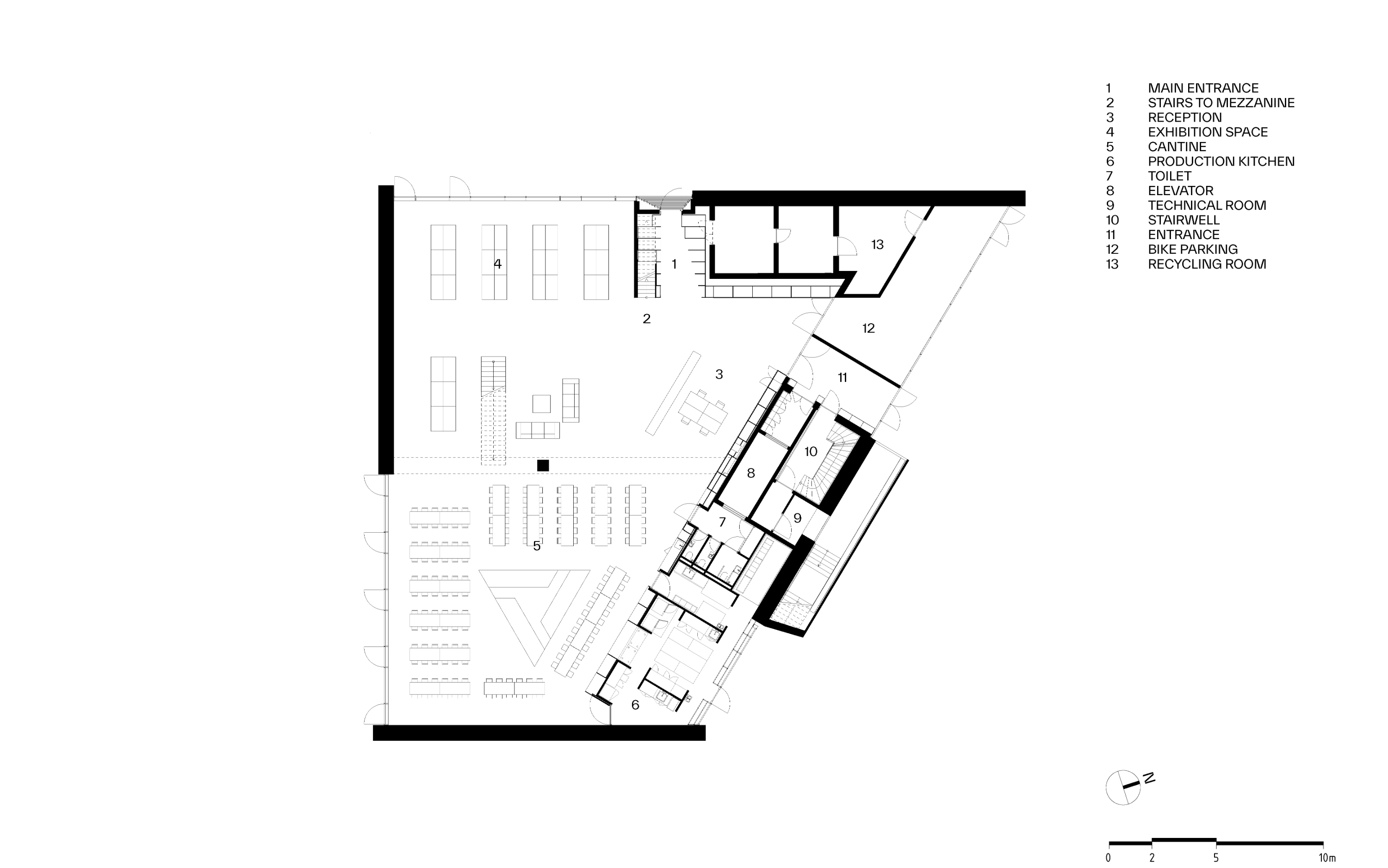
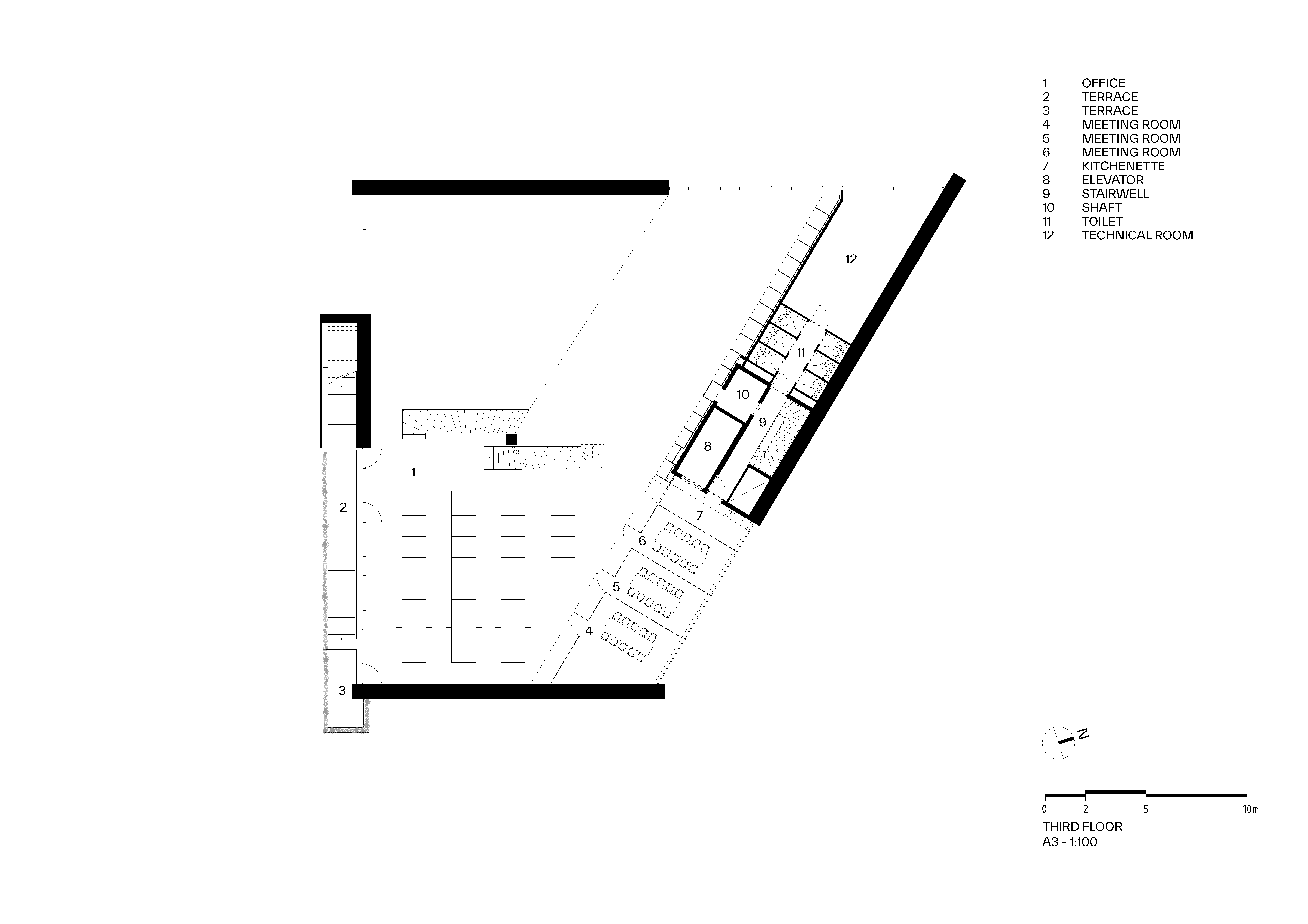
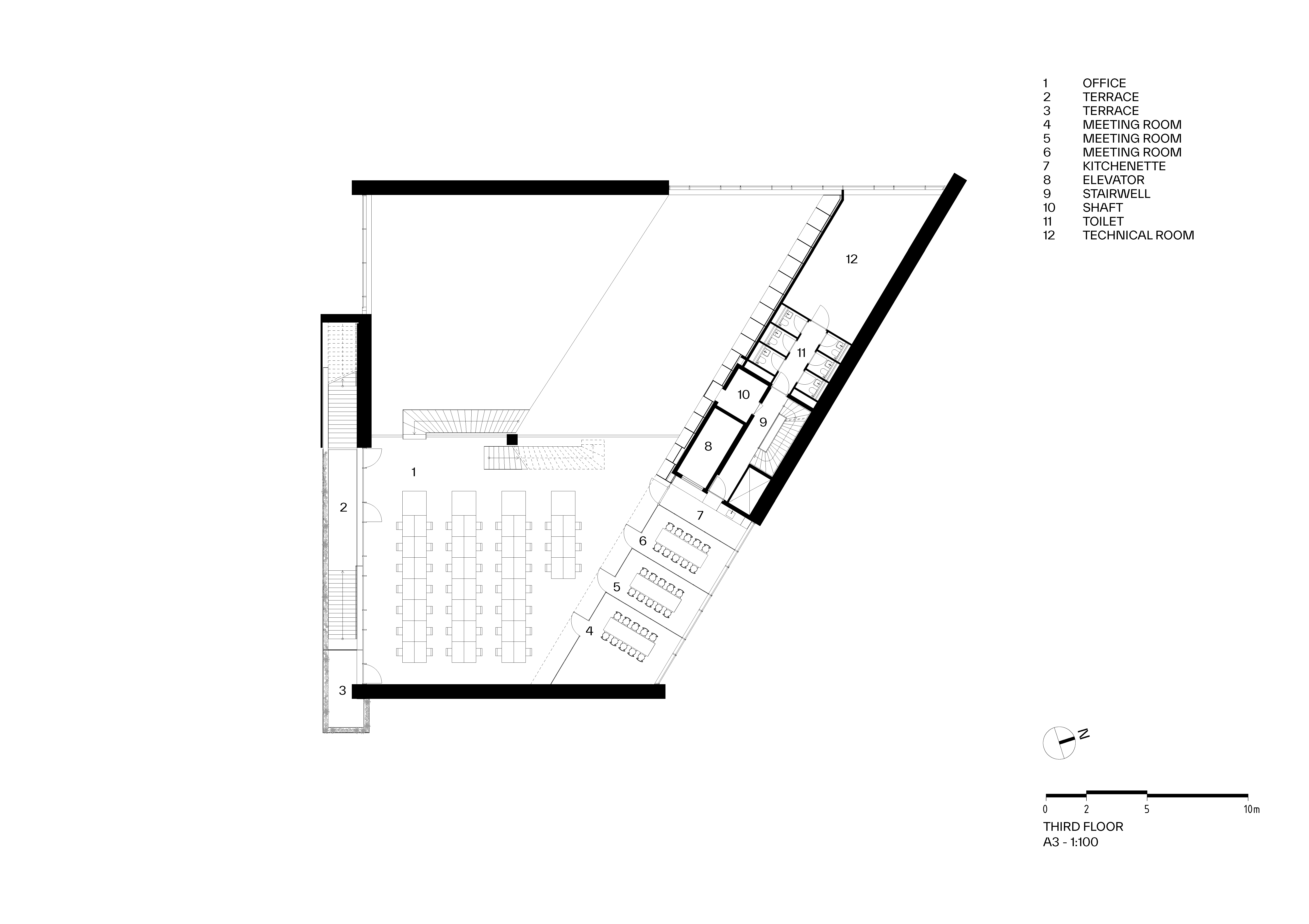
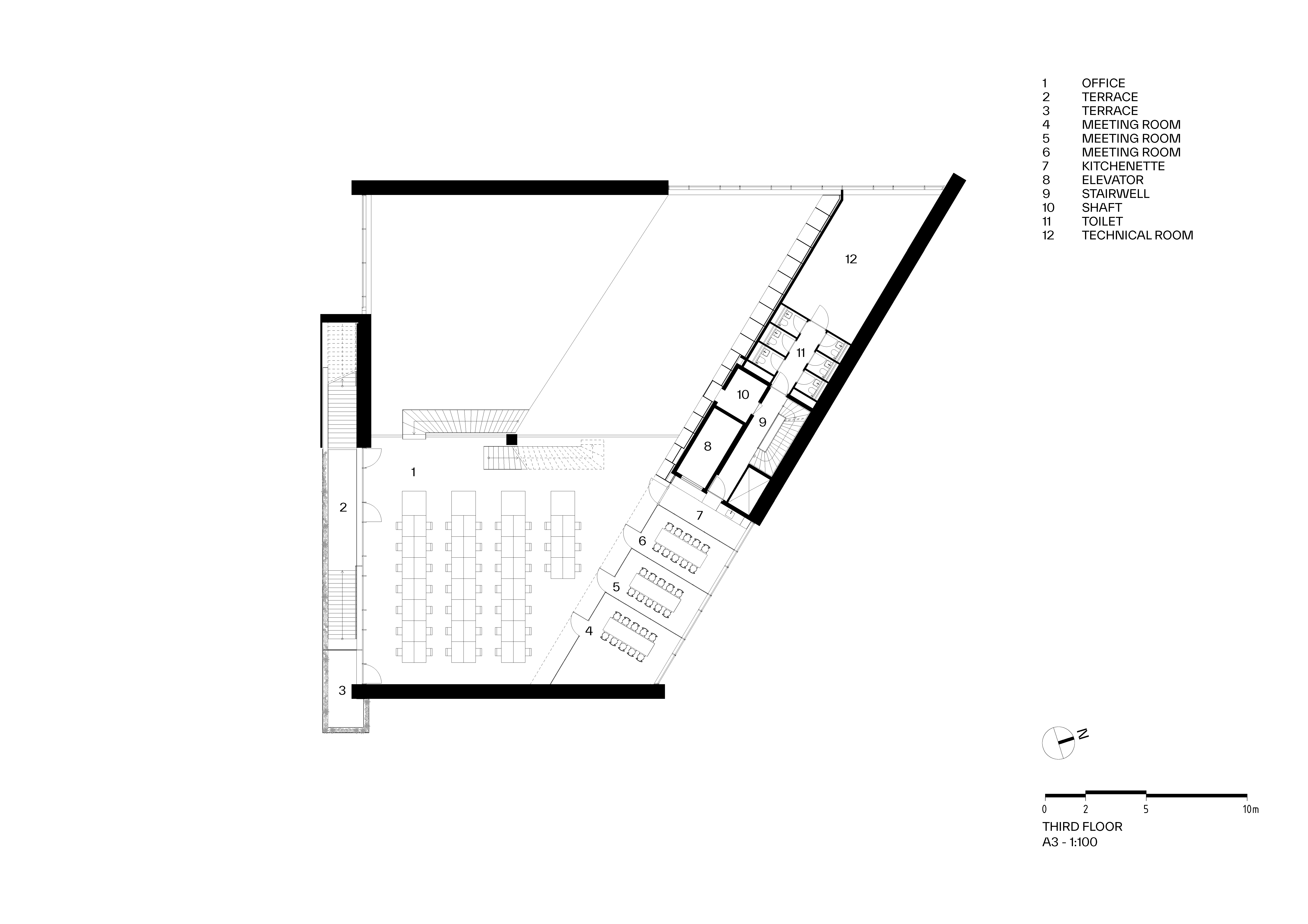
코펜하겐 노드하운 지역의 좁은 부두에 자리한 BIG의 새로운 본사는 높이 27m, 7층 규모의 건물로, 항구의 산업적 유산을 반영한 디자인이 특징이다. 코펜하겐에 기반을 둔 BIG 직원 300명의 새로운 업무 공간이 됐다. 본사 입구의 3m 높이 유리문을 지나면, 건물 꼭대기까지 탁 트인 시야가 확보되며, 검은색 중앙 계단이 7개 층을 유기적으로 연결한다. 건물 중앙에는 여섯 가지 종류의 암석으로 구성된 기둥이 자리 잡고 있다. 하단에는 견고한 화강암이, 상단에는 다공성 대리석이 배치된 이 기둥은 각 층의 보 구조와 정렬을 이루며, 공간을 지탱하는 중력의 토템 역할을 한다.



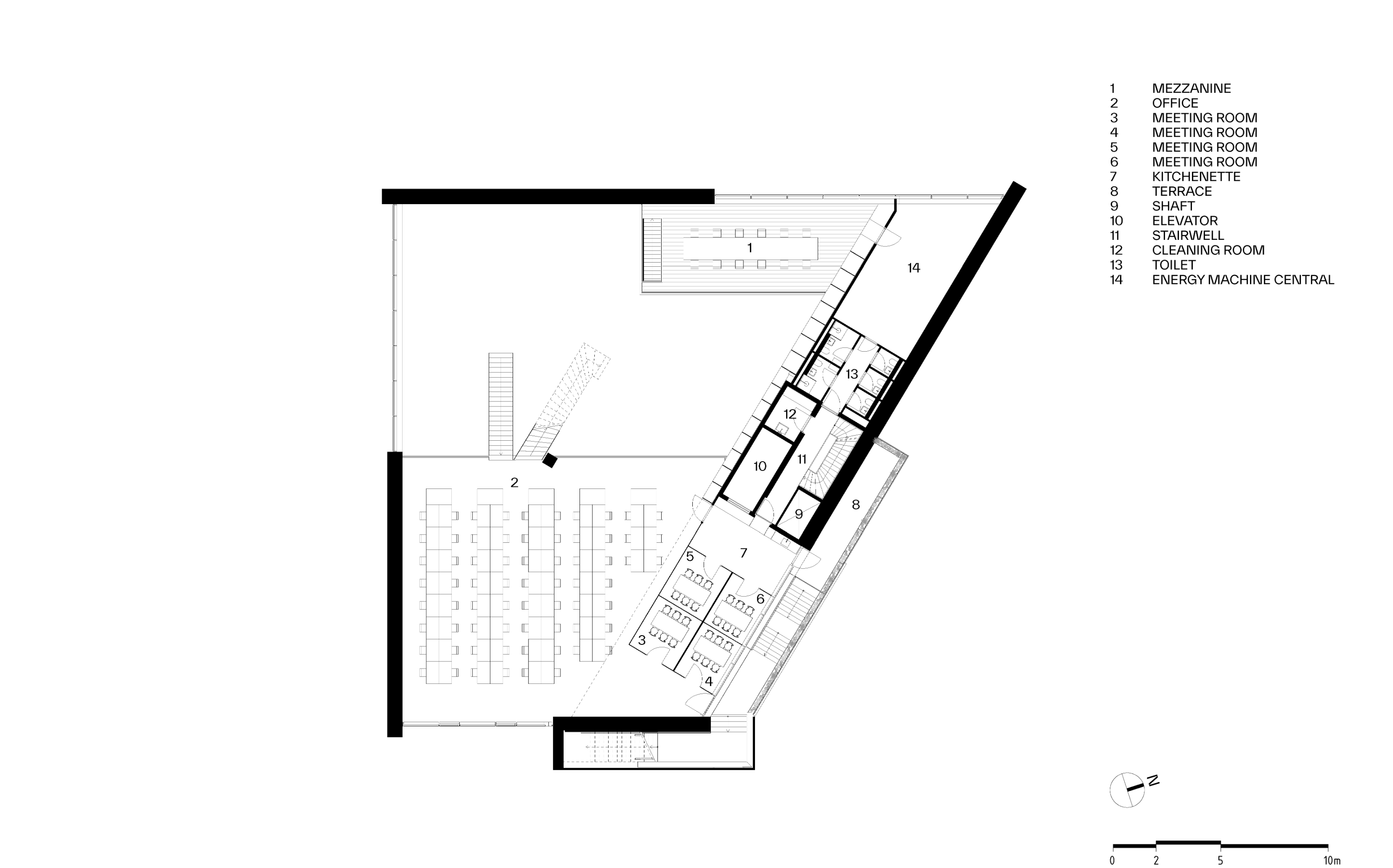
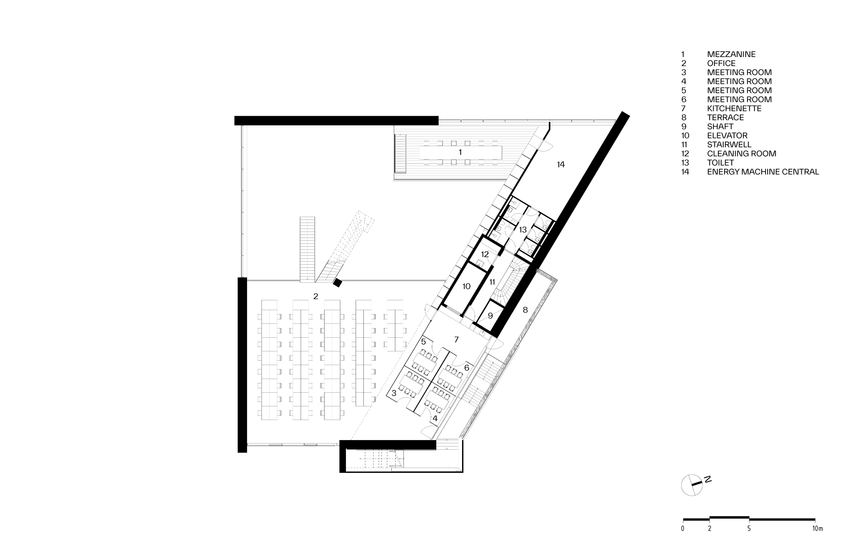
건물 외관에서는 길이 140m의 계단이 옥상에서 부두까지 나선형으로 이어져 있다. 이 계단은 각 층에 야외 테라스를 제공하는 동시에 층간 이동을 용이하게 한다. 또한, 비상 계단 기능을 겸해 내부 공간을 더욱 개방적으로 활용할 수 있도록 했다. 엘리베이터, 수직 배관, 보조 비상 계단은 건물 북쪽 가장자리에 배치하여 내부 업무 공간을 최대한 넓게 확보했다. 이를 통해 모델 제작실과 회의실 등 작업 공간이 자연광을 최대한 누릴 수 있도록 구성됐다.


건물 하단부에서는 BIG Landscape이 기존 주차장을 1,500㎡ 규모의 공공 공원으로 조성했다. 덴마크의 모래 해변과 해안 숲에서 영감을 받아 설계된 이 공원은, 북쪽에 소나무와 참나무 같은 토착 수종을 심어 항구의 강한 바람을 막고, 남쪽에는 식재 구역과 바위, 목재 요소를 활용한 공간을 배치해 생물의 다양성을 확보하고, 놀이와 휴식을 위한 공간을 조성했다.

본사 외벽을 감싸는 계단 주변에는 바람에 강한 나무, 관목, 다년생 식물, 허브가 심어져 있으며, 이 허브는 스튜디오 구내식당의 요리 재료로 사용된다. 옥상 테라스는 지역 제재소에서 공급한 목재로 마감되어 공원의 자연 소재 테마를 유지하면서 도시 공간과 건축의 유기적 연결을 강조한다. 또한, 이곳은 직원과 방문객들에게 코펜하겐 시내와 바다를 조망할 수 있는 특별한 공간을 제공한다.





건축가 비아이지 (BIG)
위치 덴마크, 코펜하겐
대표건축가 Bjarke Ingels, Finn Nørkjær
프로젝트건축가 Jesper Boye Andersen
디자인팀 Frederik Lyng, Annette Jensen, Justas Zabulionis, Hanne Halvorsen, Alda Sol Hauksdóttir, Jesper Boye Andersen, Gabrielle Nadeau, Lisbet Fritze Trentemøller, Tobias Hjortdal, Fabiana Cortolezzis, Maria Natalia Lenardon, Sergiu Calacean, Lenya Schneehage, Steen Kortbæk Svendsen, Katrine Juul, Mads Enggaard Stidsen, Kaja Terze, Eddie Chiu Fai Can, Mathieu Jaumain, Jannik Albæk, Matthew Thomson, Felicia Olofsson, Helen Shuyang Chen, Mads Primdahl Rokkjær, Arthur Martinevski, Ewa Zapiec, Snorre Emanuel Nash Jørgensen, Marius Tromholt-Richter, Kresimir Blazina, Magni Waltersson, Atibadi Brugnano, Graham Forrest Jordan, Ioannis Mathioudakis, Yunyoung Choi, Dobrochna Anna Klimczak, Shu Zhao, Joos Jerne, Narisara Ladawal Schröder, Mikkel M. R. Stubgaard, Søren Martinussen, Kim Lauer, Lone Fenger Albrechtsen, Jonas Høgh Rask, Tommy Bjørnstrup, Kanetnat Puttimettipanan, Celia de la Osa Muñoz, Anne-Charlotte Wiklander, Helena Hammershaimb, Danyu Zeng, Guoyu Liu, Thor Larsen-Lechuga, Filip Jacek Rozkowski, Irie Annik Meree, Anna Wozniak, Høgni Laksafoss, Jonathan Otis Navntoft Russell, Jiewei Li, Frederik Skou Jensen, Luca Pileri, Margarita Nutfulina, Gül Ertekin, Aya Fibert, David Zahle, Paula Madrid, Xingyue Huang, Andreas Klok Pedersen, Yehezkiel Wiliardy, Omar Mohamed Nabil Mohamed Saad Mowafy, Alexandra-Madalina Nita, Petra Hajdu, Johan Frederik Lindqvist, Mariana De Soares E Barbieri Cardoso, Marah Wagner, Xinying Zhang, Jakob Lange, Martyna Kloda, Nandi Lu, Henrik Jacobsen, Bart Ramakers, Celina Holck, Mussa Algasra, Andrea Angelo Suardi, Xavier Thanki, Agla Egilsdottir, Eddie Can
엔지니어 Andrea Megan Hektor, Tim Christensen, Alexander Gale Heiede, Jesus Fernandez Fraile, Kai-Brith Kalda, Thomas Lejeune, Andreas Bak, Kannan Selvaraj, Jonathan Otis Nanvtoft Russell
조경 Giulia Frittoli, Ulla Hornsyld, Louise Mould, Anders Fønss, Brian Malig Collado, Christian Kuczenski, Ahmed Badra, Anna Bertolazzi, Anna Lindgaard Jensen, Barbora Hrmova, Bartlomiej Lew, Dina Brændstrup, Fernanda Furuya, Giulia Genovese, Ines Zunic, Jialin Liang, Jonathan Udemezue, Juhye Kim, Kristian Mousten, Milan Moldenhawer, Xinyi Chen
사진작가 laurianghinitoiu
'Architecture Project > Office' 카테고리의 다른 글
| 서련(書連)빌딩 / 건축사사무소 구:월 (0) | 2025.03.17 |
|---|---|
| 입면의 각을 따라 소통하는 파리의 오피스건축 / 티에이엔케이 아키텍츠 (0) | 2025.03.13 |
| 성수세림 / 원애프터 (0) | 2025.01.21 |
| 바이스트로닉 코리아 / (주)서인종합건축사사무소 (0) | 2025.01.20 |
| 케이엘 빌딩 / (주)서인종합건축사사무소 (0) | 2025.01.10 |
마실와이드 | 등록번호 : 서울, 아03630 | 등록일자 : 2015년 03월 11일 | 마실와이드 | 발행ㆍ편집인 : 김명규 | 청소년보호책임자 : 최지희 | 발행소 : 서울시 마포구 월드컵로8길 45-8 1층 | 발행일자 : 매일



