
낡은 공장과 창고 건물들이 밀집한 공업 단지였던 성수동은 재생 건축을 통해 트렌디한 상업 공간으로 변하고 있다. 이런 리모델링 과정에서 산업용 건물의 원재료 표면을 겉으로 노출시키고 스토어 프론트를 전면 유리로 바꾸는 성수동만의 독특한 스타일이 생겨났다.


이러한 변화는 성수동 지역에 경제적, 문화적으로 활력을 불어넣었지만, 오래된 산업용 건물의 근본적인 문제인 단열재 부재의 문제가 남아있었다. 성수 세림은 성수동에 오랫동안 자리한 라벨지 제조사의 공장 건물을 대수선하는 과정에서 단열재를 특징적으로 강조하여 활용한 프로젝트이다.

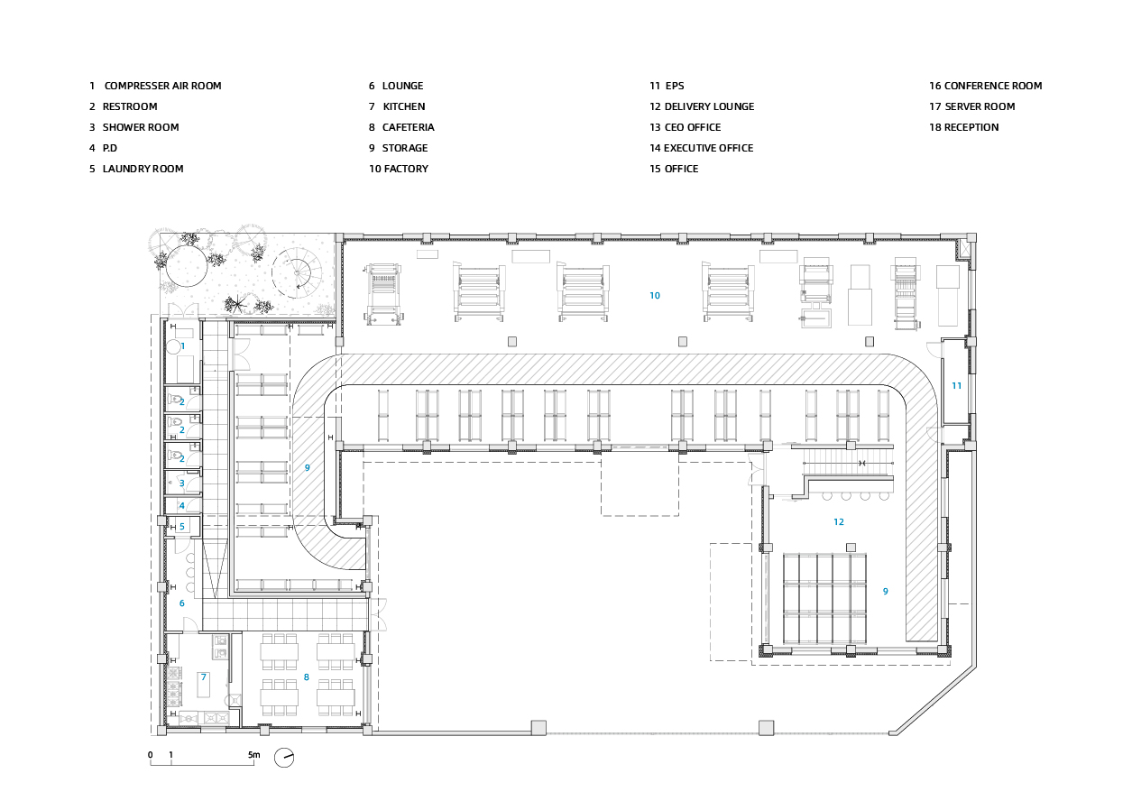
기존의 세림 공장 본동은 성수동에 있는 대부분의 산업용 건물과 마찬가지로 붉은 벽돌로 뒤덮인 2층 규모의 L자형 콘크리트 구조 건물이다. 라벨지 생산을 위한 기계시설, 창고, 사무 공간 등 다양한 용도로 사용되었으며, 남쪽에는 콘크리트 블록과 철골로 지어진 별관 창고, 화장실 그리고 식당이 있었다.



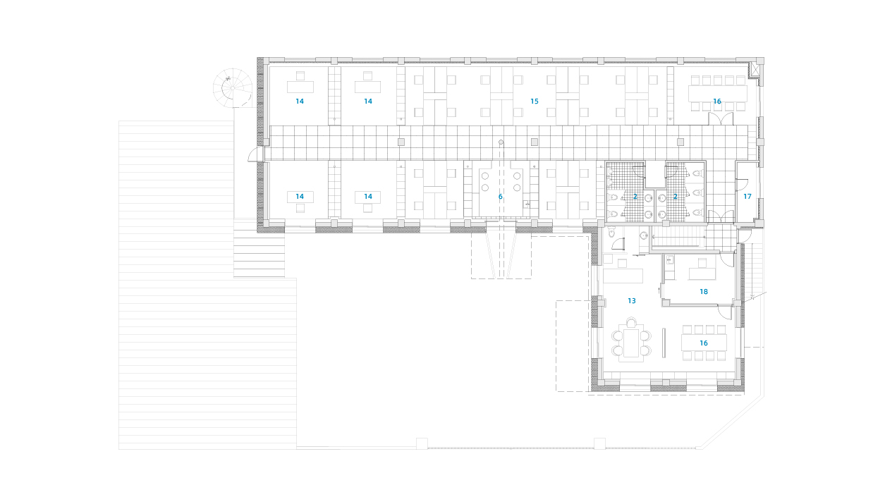
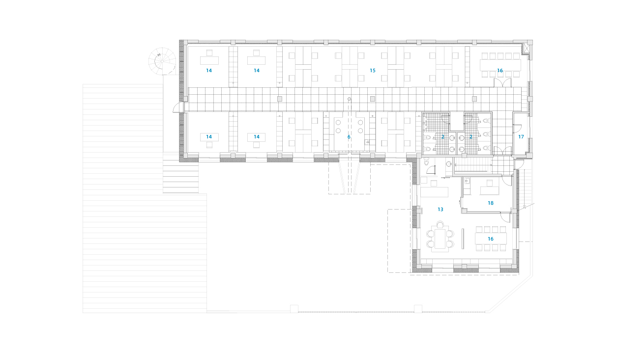
공장의 물류 동선을 최적화하기 위해 모든 생산 및 창고 공간을 지상 1층에 통합하고 건물의 전체의 배치를 재구성하여 반제품 도착부터 가공, 보관, 유통까지의 프로세스를 효율적으로 연결했다. 또한, 각 층에 따로 분리되어 있던 사무실은 2층에 모아서 배치했다. 기계시설 공간과 사무 공간의 분리는 단열에 대한 접근 방식에 있어 각 영역의 특성에 맞게 조절이 가능하게 했다. 1층은 기계가 운영되는 현장에서 발생되는 열을 고려하여 법규에 따라 최소한의 두께로 단열재를 적용했고, 2층은 내부 열원이 부족한 점을 보완하기 위해 1층보다 더 두꺼운 단열재를 설치했다. 이러한 단열 시스템은 건물 외관 디자인에서 특징적으로 드러나는 효과를 만든다.





건축가 원에프터(one-aftr)
위치 서울특별시 성동구 성수동 2가 227-27번지
용도 공장, 사무시설, 복지시설
대지면적 991.70m2
건축면적 591.10m2
연면적 1,052.49m2
규모 지하 1층, 지상 2층
건폐율 59.60%
용적률 100.34%
준공 2024
대표건축가 마준혁, 안미륵
디자인팀 마준혁, 안미륵, 이윤하
구조엔지니어 진구조
기계엔지니어 하이텍엔지니어링
전기엔지니어 하이텍엔지니어링
시공 라움에이드
사진작가 장미
해당 프로젝트는 건축문화 2025년 1월호(Vol. 524)에 게재되었습니다.
The project was published in the November, 2024 recent projects of the magazine(Vol. 524).
January 2025 : vol. 524
Contents : RECORDS : COMPETITION : BOOKS : RECENT PROJECT Toegye-dong Community Center / ZANGINSOO.ARCHITECTS + SIMMI ARCHITECTURE & ENGINEERING퇴계동 행정복지센터 / 장인수건축사사무소 + 심미건축사사무소 Kanagawa De
anc.masilwide.com
'Architecture Project > Office' 카테고리의 다른 글
| 입면의 각을 따라 소통하는 파리의 오피스건축 / 티에이엔케이 아키텍츠 (0) | 2025.03.13 |
|---|---|
| 코펜하겐에 떠 있는 건축의 섬 / 비아이지 (0) | 2025.02.26 |
| 바이스트로닉 코리아 / (주)서인종합건축사사무소 (0) | 2025.01.20 |
| 케이엘 빌딩 / (주)서인종합건축사사무소 (0) | 2025.01.10 |
| 뒤뜰과 연결되는 레인웨이 워크샵 / Jon Cummings Architecture (JC-A) (0) | 2024.12.24 |
마실와이드 | 등록번호 : 서울, 아03630 | 등록일자 : 2015년 03월 11일 | 마실와이드 | 발행ㆍ편집인 : 김명규 | 청소년보호책임자 : 최지희 | 발행소 : 서울시 마포구 월드컵로8길 45-8 1층 | 발행일자 : 매일



