
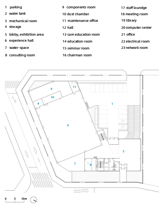
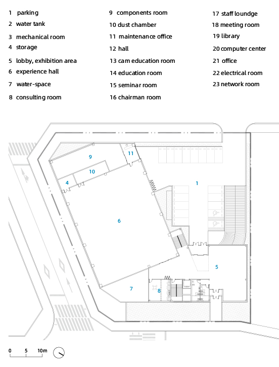
바이스트로닉 코리아 본사 건물은 금속재의 레이저 커팅 기계를 제작하는 스위스 글로벌 회사의 기업 신조인 절곡(bending)과 절삭(cutting)이라는 특성을 사용한 건축물이다. 전체 공간에 필요한 면적을 산정하여 건축면적과 매스를 형성하고, 절곡 후 배치했다. 전체적인 외관은 금속 덩어리처럼 보이는데 가까이 바라보면 세로줄이 그어진 여러 개의 강판으로 이루어져 있다. 동측과 서측 출입구는 입면의 외장재를 두 가지 자재로 마감하여 입구성을 강조한다. 보행자들의 주요 동선을 따라 형성된 남동 측의 커다란 입면은 방어적인 느낌을 주지만, 북동 측의 2개 층 높이의 유리 커튼월의 입면은 시각적인 개방감을 주고 체험관 내부로 시선을 유도한다. 내부는 주요 프로그램인 절삭기계 체험관과 사무 공간 영역을 중심으로 다른 보조 공간으로 구분된다.

절삭한 매스를 따라 높은 계단실을 삽입해 공간과 공간을 연결한다. 체험관과 업무 공간을 연결하는 강렬한 빨간색의 계단은 기업의 이미지를 상기시키며, 다른 성격의 공간으로 넘어가는 긴 입구이자 전이 공간의 역할을 한다. 체험관은 2개 층을 하나의 넓은 무주(無柱) 공간으로 계획하여 개방감을 더했다. 도로와 면한 벽에는 세로로 긴 창이 있어 시선을 집중시킨다.


업무 공간은 체험관의 위층에 두어 체험관과 물리적으로 분리하고, 녹지 공간과 연계하여 업무에 효율성을 높인다.





건축가 (주)서인종합건축사사무소(Seoinn Design Group)
위치 인천광역시 연수구 인천타워대로77
용도 교육연구시설
대지면적 3,360.00㎡
건축면적 1,620.96㎡
연면적 4,294.36㎡
규모 지하 1층, 지상 3층
건폐율 48.24%
용적률 90.75%
시공기간 2020. 4. - 2022. 5.
대표건축가 최동규
프로젝트건축가 최유철
디자인팀 주효진, 한혜선
인테리어 마루종합건설
시공 (주)디투종합건설
발주자 바이스트로닉코리아(주)
사진작가 김용수
해당 프로젝트는 건축문화 2025년 1월호(Vol. 524)에 게재되었습니다.
The project was published in the November, 2024 recent projects of the magazine(Vol. 524).
January 2025 : vol. 524
Contents : RECORDS : COMPETITION : BOOKS : RECENT PROJECT Toegye-dong Community Center / ZANGINSOO.ARCHITECTS + SIMMI ARCHITECTURE & ENGINEERING퇴계동 행정복지센터 / 장인수건축사사무소 + 심미건축사사무소 Kanagawa De
anc.masilwide.com
'Architecture Project > Office' 카테고리의 다른 글
| 코펜하겐에 떠 있는 건축의 섬 / 비아이지 (0) | 2025.02.26 |
|---|---|
| 성수세림 / 원애프터 (0) | 2025.01.21 |
| 케이엘 빌딩 / (주)서인종합건축사사무소 (0) | 2025.01.10 |
| 뒤뜰과 연결되는 레인웨이 워크샵 / Jon Cummings Architecture (JC-A) (0) | 2024.12.24 |
| 지속가능한 디자인을 통해 재탄생한 토아- 빈 본사 입면 (0) | 2024.12.10 |
마실와이드 | 등록번호 : 서울, 아03630 | 등록일자 : 2015년 03월 11일 | 마실와이드 | 발행ㆍ편집인 : 김명규 | 청소년보호책임자 : 최지희 | 발행소 : 서울시 마포구 월드컵로8길 45-8 1층 | 발행일자 : 매일



