
SEORYEONBUILDING
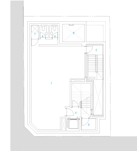
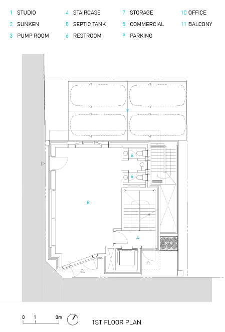
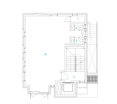
서련빌딩은 넉넉하지 않은 대지면적과 정해진 건축 규제의 제한에도 도시적인 맥락을 거스르지 않는 건축물이다. 대지는 북동쪽과 북서쪽 모서리로부터 적용되는 정북 일조 제한선으로 인해 상층부로 갈수록 가용면적이 줄어든다. 이로 인해 4명에서 10명이 활동할 수 있는 공간을 남서측에 수직으로 정렬했다.

발코니 없이 매끈한 경사면을 가진 후면은 건축물을 하나의 응집된 매스로 강조한다. 정북 일조 제한선에 의해 만들어진 사선면은 치장벽돌 켜 들여쌓기를 통해 단일한 건축재료가 주는 단아함을 더했다. 5층 테라스와 옥상층은 대지의 서측 방향으로 개방되어, 응집된 건축물에서 외부와 마주할 수 있는 장치다.


서련빌딩은 수직으로 정렬된 소규모의 전용공간을 동일한 환경으로 구현하기 위해 이색적인 구조로 계획됐다. 1층에서 3층까지의 계단은 왼쪽 돌음방향으로, 정북 일조 제한선을 넘어가는 3층에서 옥상층까지의 계단은 오른쪽 돌음방향으로 바뀐다. 계단의 방향이 바뀌는 3층 계단참은 건축물의 분절이 일어나는 지점이다. 서련빌딩은 개구부를 최소한으로 한 건물로, 인접한 건물에서 내부를 바라볼 수 없게 하면서도 빛의 밀도와 양이 조절될 수 있는 유연한 창호 구조를 가지고 있다.


금속 판넬 폴딩 창호는 열린 상태에서는 확실한 개방감을 주지만, 닫힌 상태는 빛의 흐름을 실내외로 이어지게 만들면서 외부 노출을 조절하고 내부의 빛을 발산한다. 이로써 빛의 흐름에 따라 노출을 달리하는 공간이 되었다. 균질한 채광은 북쪽에서 유입되고 환기는 남측과 서측으로 흐를 수 있도록 계획되었다.









건축가 건축사사무소 구:월(9U:WALL ARCHITECTS)
위치 서울특별시 서초구 서초동
용도 근린생활시설(휴게음식점, 사무소)
대지면적 199.00㎡
건축면적 102.09㎡
연면적 494.32㎡
규모 지하 1층, 지상 5층
건폐율 51.30%
용적률 194.67%
준공 2024
대표건축가 김세현
프로젝트건축가 김세현
디자인팀 조경란, 최유리
구조엔지니어 누리구조엔지니어링
기계엔지니어 건우엔지니어링
전기엔지니어 건우엔지니어링
시공 삼후종합건설
발주자 서련(권기영, 김현실)
사진작가 송유섭
해당 프로젝트는 건축문화 2025년 3월호(Vol. 526)에 게재되었습니다.
The project was published in the November, 2025 recent projects of the magazine(Vol. 526).
March 2025 : vol. 526
Contents : COMPETITION : BOOKS : RECENT PROJECT GYERIM WEST VALLEY Ⅱ / YEOHEON ARCHITECT & ENGINEERS CO계림 웨스트밸리 Ⅱ / 건축사사무소 여헌(주) Sky Ranch Sheep House / GA department Architects & Associates하늘목장
anc.masilwide.com
'Architecture Project > Office' 카테고리의 다른 글
| 코워킹 인 알레냐 / 오엠에이 (0) | 2025.03.18 |
|---|---|
| 논현동 스튜디오 / 황준도시건축사사무소 (0) | 2025.03.18 |
| 입면의 각을 따라 소통하는 파리의 오피스건축 / 티에이엔케이 아키텍츠 (0) | 2025.03.13 |
| 코펜하겐에 떠 있는 건축의 섬 / 비아이지 (0) | 2025.02.26 |
| 성수세림 / 원애프터 (0) | 2025.01.21 |
마실와이드 | 등록번호 : 서울, 아03630 | 등록일자 : 2015년 03월 11일 | 마실와이드 | 발행ㆍ편집인 : 김명규 | 청소년보호책임자 : 최지희 | 발행소 : 서울시 마포구 월드컵로8길 45-8 1층 | 발행일자 : 매일



