
Coworking in Alenya
코워킹 인 알레냐는 프랑스 페르피냥(Perpignan) 인근 알레냐(Alénya) 마을에 있는 오래된 와이너리를 리모델링한 프로젝트다. 건축가는 알레냐 마을 주민을 위한 코워킹 공간을 제안하며, 지역의 젊은 기업과 스타트업들의 필요에 따라 자유롭게 임대할 수 있도록 모듈 유닛을 설계했다.


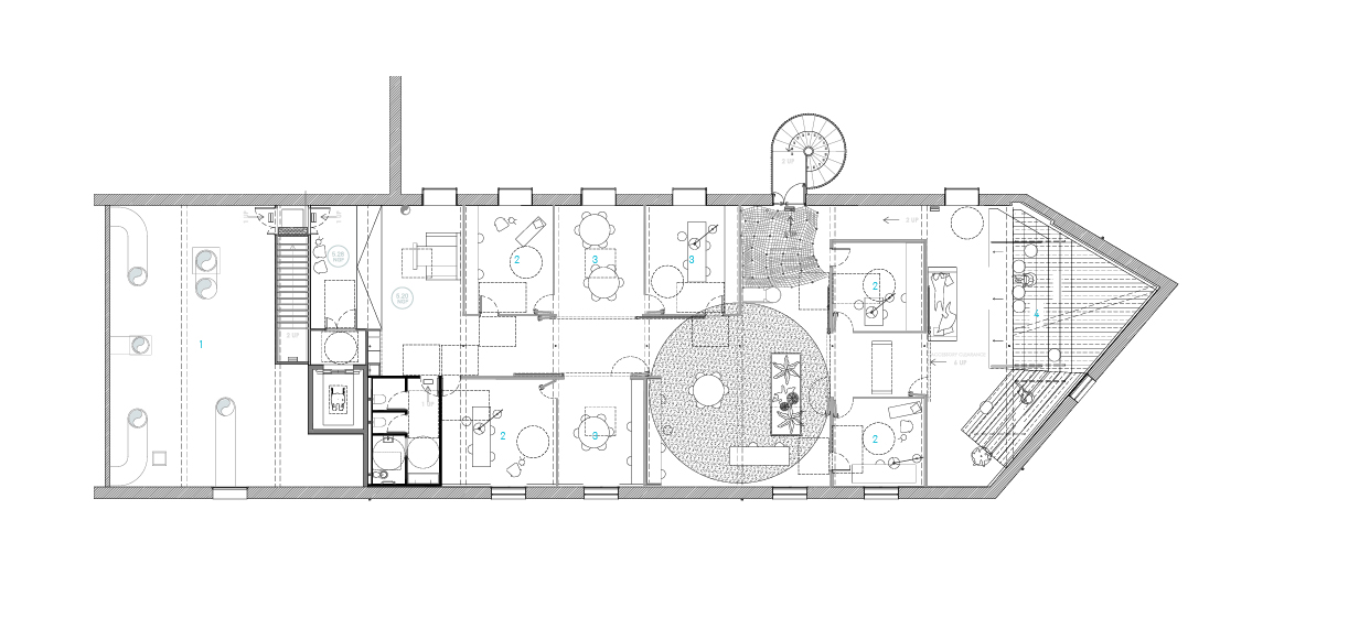
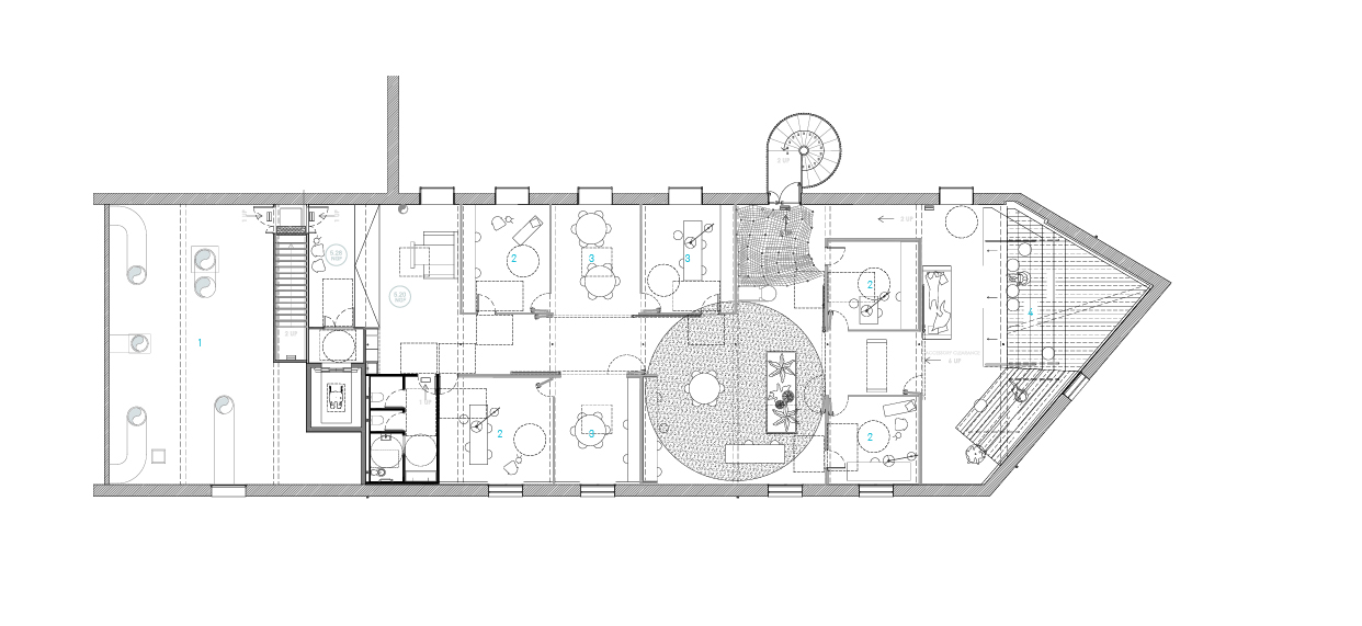
개구부는 건물의 후면에 만들어졌다. 지붕에는 태양광 조절이 가능한 천창을 배치하여 중앙 공간을 밝힐 수 있도록 했다. 여러 개의 모듈은 이동 가능하도록 설계되었으며 다양한 방식으로 배치가 가능하다.



또한, 슬라이딩 도어를 통해 여러 모듈이 자유롭게 결합할 수 있고, 건물의 가장 안쪽 상층에는 작은 스탠드가 있는 공간을 만들어 프레젠테이션 및 커뮤니티 행사를 진행할 수 있도록 했다. 코워킹 인 알레냐는 기존의 피난 경로 외에 또 다른 피난 경로를 추가로 설치했다. 후면 파사드에 설치한 비상계단은 디자인적으로 창문과 조화를 이룬다. 바닥은 노출 콘크리트로 마감하여 기존 목조 지붕 대들보와 새롭게 추가된 목재 모듈 간의 대비를 강조했다. 높이 문제를 최소화하면서도 벽의 석재를 그대로 노출시켜 공간의 특성을 살렸다.



건축가 오엠에이 (OMA(Octavio Mestre Arquitectos))
위치 프랑스, 알레냐
면적 453.00㎡
준공 2024
프로젝트건축가 OMA(Nicolas Cregut, Laurent Duport), Architectes Mandataires
협력건축가 Pablo Mera, Sofía Simioni
감리 Michel Matival from C+D
엔지니어링 PGI, Alpha Omega
전기엔지니어 ASC + Jean Tourres
시공 Toulouges(석조), ACS fermetures(외벽), Technobat(파티션, 석고), Mares(배관), Atelier Oliver(페인트)
발주자 Mairie d'Alenya Jean André Magdalou
사진 Adrià Goula
해당 프로젝트는 건축문화 2025년 3월호(Vol. 526)에 게재되었습니다.
The project was published in the November, 2025 recent projects of the magazine(Vol. 526).
March 2025 : vol. 526
Contents : COMPETITION : BOOKS : RECENT PROJECT GYERIM WEST VALLEY Ⅱ / YEOHEON ARCHITECT & ENGINEERS CO계림 웨스트밸리 Ⅱ / 건축사사무소 여헌(주) Sky Ranch Sheep House / GA department Architects & Associates하늘목장
anc.masilwide.com
'Architecture Project > Office' 카테고리의 다른 글
| 송몬트 스페이스 / 아크스튜디오 (0) | 2025.04.09 |
|---|---|
| (주)휴네시온 사옥/ (주)원안건축사사무소 (0) | 2025.04.03 |
| 논현동 스튜디오 / 황준도시건축사사무소 (0) | 2025.03.18 |
| 서련(書連)빌딩 / 건축사사무소 구:월 (0) | 2025.03.17 |
| 입면의 각을 따라 소통하는 파리의 오피스건축 / 티에이엔케이 아키텍츠 (0) | 2025.03.13 |
마실와이드 | 등록번호 : 서울, 아03630 | 등록일자 : 2015년 03월 11일 | 마실와이드 | 발행ㆍ편집인 : 김명규 | 청소년보호책임자 : 최지희 | 발행소 : 서울시 마포구 월드컵로8길 45-8 1층 | 발행일자 : 매일



