
케이엘 빌딩은 서초동의 법조단지에 위치하여 법률사무소의 임대를 목적으로 지어진 건축물이다. 대지는 서울법원종합청사 단지의 남측과 접해 있고, 법원로4길의 막다른 도로를 끼고 있다. 북측은 높이 4m의 옹벽으로 막혀있고, 옹벽 위로 서울법원종합청사 단지의 녹지 공간이 보이는 곳이며, 동측과 남측은 주변 건물에 둘러싸여 조밀한 환경이다. 이에 따라 정북일조 사선제한으로 인해 자연스럽게 코어는 남측으로 배치되고 녹지가 있는 북측으로 열린 건물이 되었다.

입면은 건축주가 기획, 운영하였던 복합문화공간인 ‘나오스노바(Naos Nova)’ 프로젝트에서 모티브를 얻었다. 외관은 ‘새로운 신전’이라는 의미를 지닌 나오스노바의 반복되는 열주와 코니스(Cornice)에서 착안하였다. 무게감이 느껴지는 석재, 노출 콘크리트의 면, 빛과 그림자 그리고 반복되는 창이 하나의 유닛이 되고, 그것을 반복시킨 파사드는 신전과 같은 형상이다.

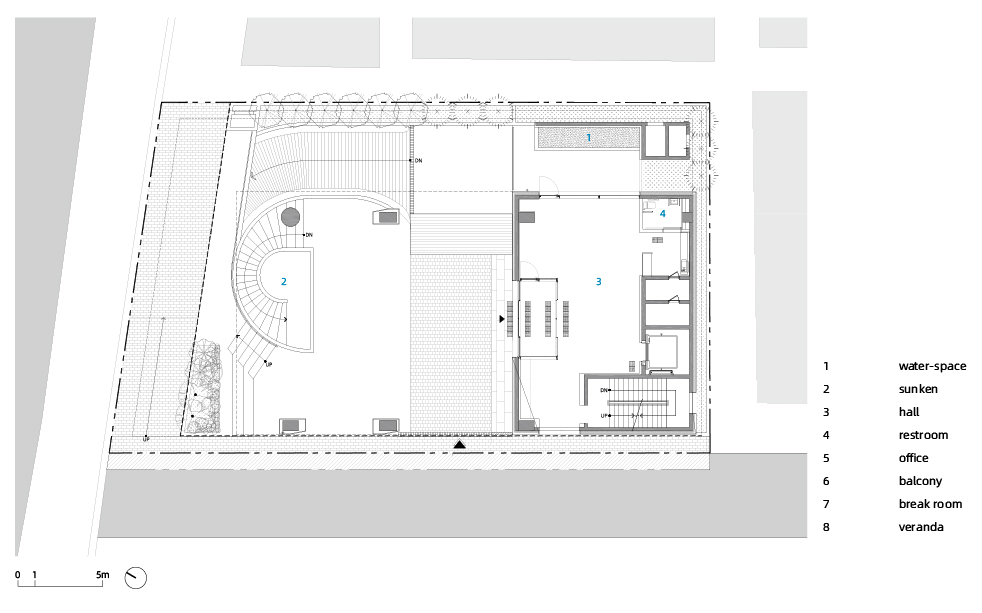
장방형의 케이엘 빌딩은 업무 전용 공간과 공용 공간의 매스가 명확히 분리되어 있다. 전용 공간의 입면은 ‘신전’ 이미지를 가지고 있지만, 공용 공간의 입면은 솔리드한 인조석과 커튼월로 구성되어 영역에 따라 다른 입면을 가지고 있음을 보여준다. 두 영역 사이에는 중정이 있어서, 공간이 전환된다는 것을 느낄 수 있다.


주 진입부는 도로에 직접 면하지 않고 필로티를 활용했으며, 출입문은 건물의 개방감을 부여하고 필로티 하부로 진입 동선을 연장하여 배치했다. 주차장의 진입로는 자주식 주차장의 설치에 따라 자연스럽게 반원형의 곡선 램프로 이어진다. 이 반원형의 곡면을 따라 나선형의 계단을 두어 지하 1층의 선큰 공간과 건축주를 위해 마련된 갤러리와 연결했다.

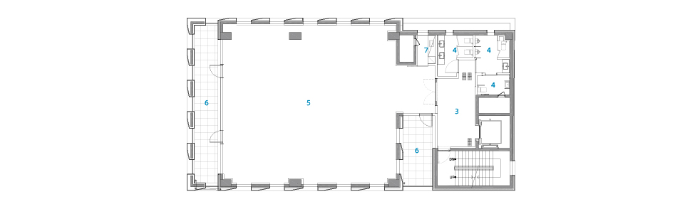
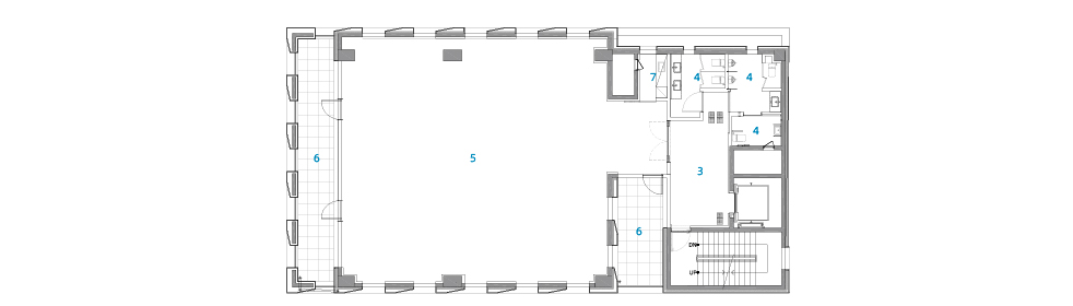
지상 5층과 옥상에는 정원이 있어 임차인의 휴게 공간과 건축주의 문화 활동에 사용된다. 건축물의 동측에는 2.4m의 벽천이 있어 인접한 건축물과의 시각적인 간섭을 완화하고 법조단지 주변의 복잡한 소음을 막아준다. 북측에는 층별로 발코니가 있어 자연을 느낄 수 있는 서리풀공원과 건축가 김수근이 설계한 법원 청사의 파사드를 마주할 수 있다.




건축가 (주)서인종합건축사사무소(Seoinn Design Group)
위치 서울특별시 서초구 서초동 법원로4길 11-6
용도 업무시설
대지면적 699.33㎡
건축면적 363.05 ㎡
연면적 2,244.14 ㎡
규모 지하 2층, 지상 5층
건폐율 51.91%
용적률 177.70%
설계기간 2020. 3. – 2021. 8.
시공기간 2021. 2. – 2022. 8.
대표건축가 최동규
프로젝트건축가 최유철
디자인팀 주효진, 한혜선, 이소진, 유한성
구조엔지니어 (주)더나은구조엔지니어링
기계엔지니어 (주)맥엔드엠이씨
전기엔지니어 (주)대경전기설계사무소
경관조명 스튜디오 폼기버
인테리어 (주)케이램
시공 C건설
발주자 KL ESTATE
사진작가 임준영
해당 프로젝트는 건축문화 2025년 1월호(Vol. 524)에 게재되었습니다.
The project was published in the November, 2024 recent projects of the magazine(Vol. 524).
January 2025 : vol. 524
Contents : RECORDS : COMPETITION : BOOKS : RECENT PROJECT Toegye-dong Community Center / ZANGINSOO.ARCHITECTS + SIMMI ARCHITECTURE & ENGINEERING퇴계동 행정복지센터 / 장인수건축사사무소 + 심미건축사사무소 Kanagawa De
anc.masilwide.com
'Architecture Project > Office' 카테고리의 다른 글
| 성수세림 / 원애프터 (0) | 2025.01.21 |
|---|---|
| 바이스트로닉 코리아 / (주)서인종합건축사사무소 (0) | 2025.01.20 |
| 뒤뜰과 연결되는 레인웨이 워크샵 / Jon Cummings Architecture (JC-A) (0) | 2024.12.24 |
| 지속가능한 디자인을 통해 재탄생한 토아- 빈 본사 입면 (0) | 2024.12.10 |
| 연주제선 (0) | 2024.12.06 |
마실와이드 | 등록번호 : 서울, 아03630 | 등록일자 : 2015년 03월 11일 | 마실와이드 | 발행ㆍ편집인 : 김명규 | 청소년보호책임자 : 최지희 | 발행소 : 서울시 마포구 월드컵로8길 45-8 1층 | 발행일자 : 매일



