
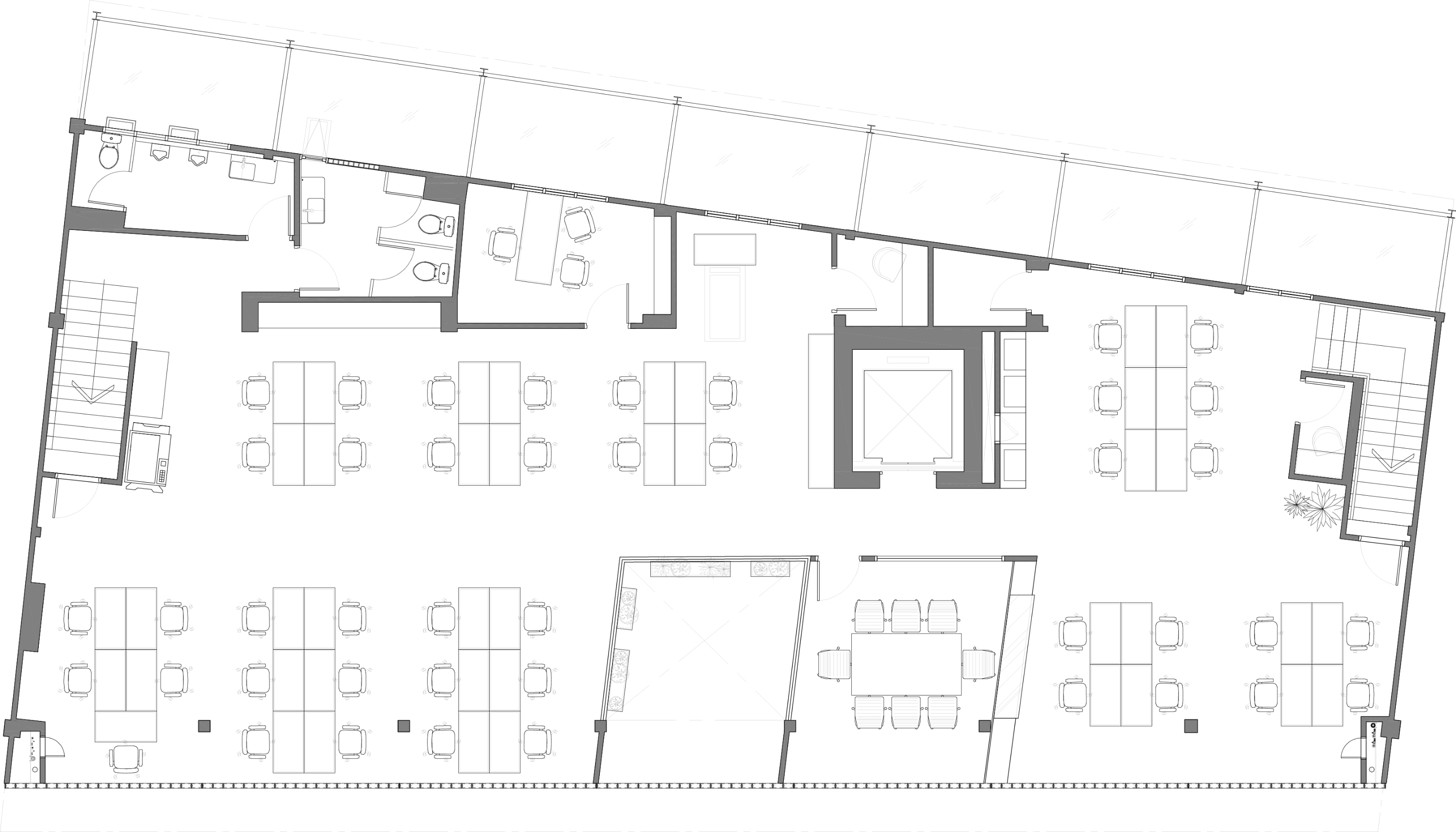
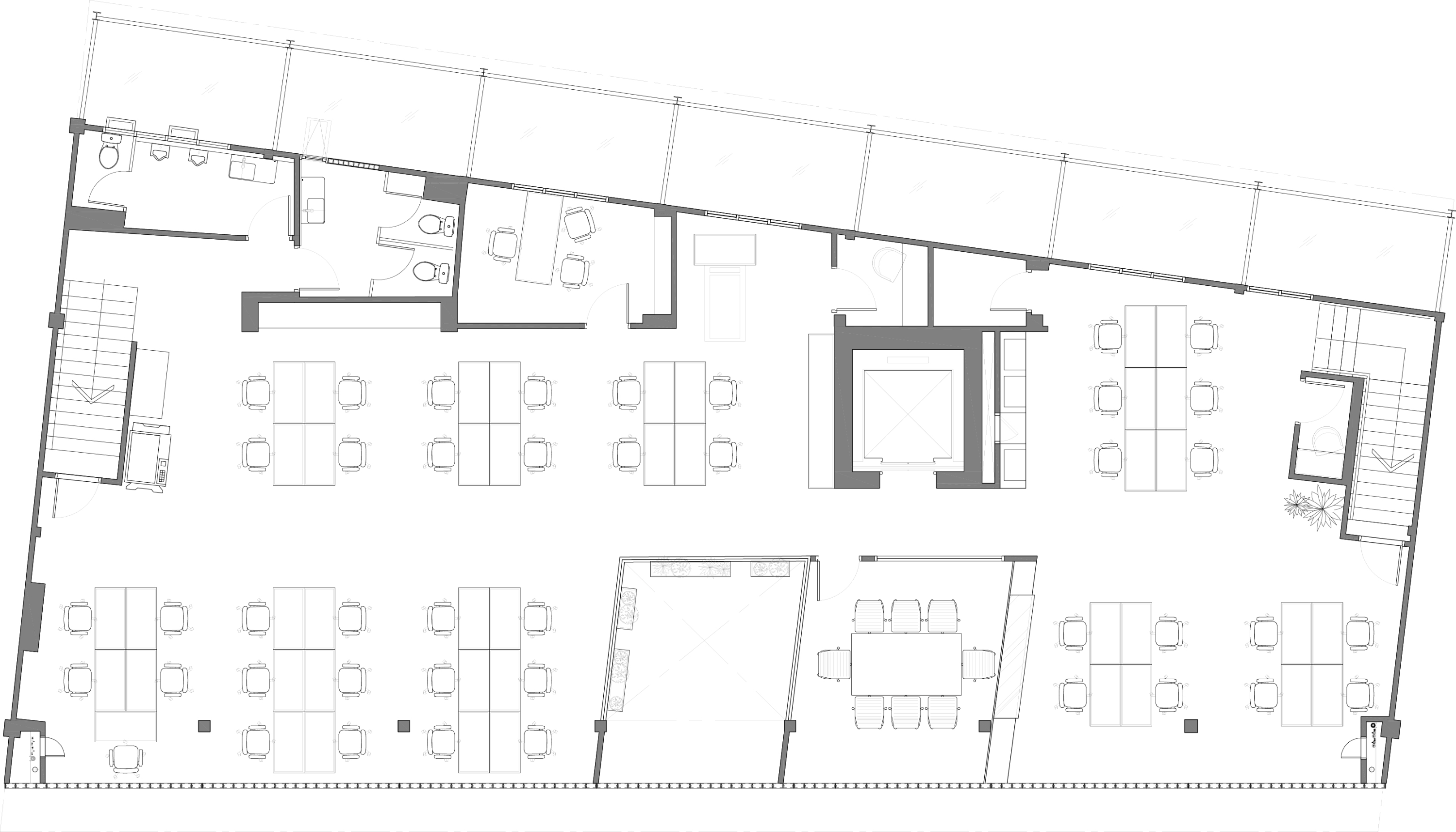
토아-빈 본사는 널리 알려진 토아-빈 자판기를 제작한 회사로, SPACE | STORY | STUDIO와 LUCID DREAM 간의 독특한 협업을 대표하는 곳 입니다. 산남 파오 BTS역 근처의 7층짜리 연립 건물에 위치한 이 프로젝트는 현대적인 입면 재구성을 통해 '재사용'의 개념을 다시 정의하고 있습니다.
건축물을 디자인할 때 토아-빈의 브랜딩 컨셉이 아직 공개되지 않은 상태였습니다. 제공된 유일한 지침은 자판기와 건물의 조닝과 관계성 정도였고, 1층은 리셉션과 쇼룸, 2층과 3층은 사무실, 4층은 직원 식당으로 사용하고 있는 정도만 알 수 있었습니다. 제한된 정보를 바탕으로 디자인 팀은 현장 맥락과 기존 구조가 가지고 있는 잠재력을 지침으로 삼았습니다.


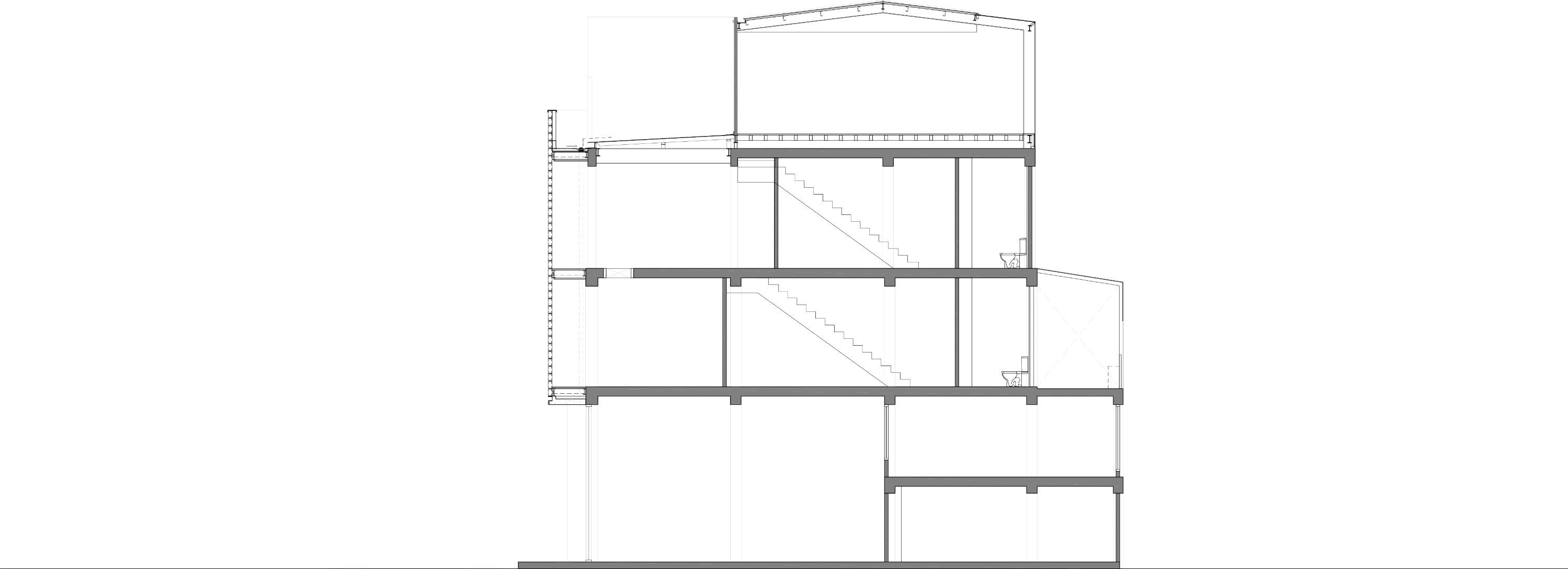
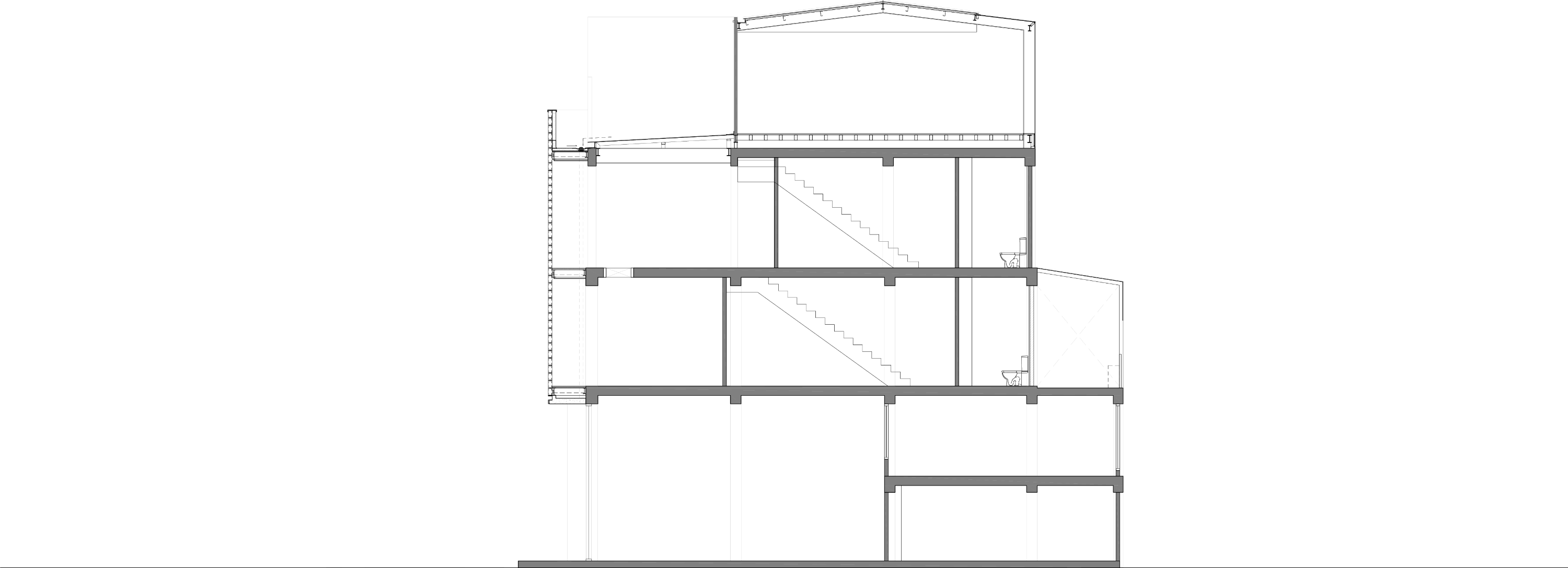
중요한 결정 중 하나는 건물의 차양을 2층까지 높여 외관을 변경하는 것이었습니다. 이에 따라 자연광을 극대화하고 실내와 외부공간이 시각적으로 연결될 수 있도록 했습니다. 쇼룸의 가시성을 높이기 위해 핀 조명과 창문 프레임 그리고 벽을 사용한 수직적인 디자인 요소를 추가했습니다.


사무실은 유리블록을 사용하여 프라이버시를 확보하면서도 자연광을 차단하지 않도록 디자인했습니다. 이런 사려 깊은 접근은 에너지 효율성을 개선하고 토아-빈의 운영 특성과 잘 부합하는 디자인이라고 생각합니다.
이 프로젝트는 기능과 미학 사이의 균형을 보여줍니다. 건축물의 기존 구조물을 재사용하여 지속 가능한 건축 디자인을 추구했습니다. 이런 시도는 도시 풍경과 조화를 이루면서도 독특한 건축적 표현을 강조하는 외관을 만들었습니다. 디자인은 혁신을 추구하는 브랜드의 정신을 담고 있어, 토아-빈 본사는 방콕 중심에서 랜드마크로 자리 잡았습니다.



건축가 SPACE|STORY|STUDIO X LUCID DREAM
위치 태국, 방콕
대지면적 380㎡
건축면적 1,500㎡
연면적 1,200㎡
건폐율 79%
설계기간 2021. 5. - 2022. 12
시공기간 2023. 2. - 2024. 6.
준공 2024
대표건축가 Pipol Likanapaisal
프로젝트건축가 Tatiya Chuenpreecha
인테리어 LUCID DREAM
구조엔지니어 Helix58 Corporation
기계엔지니어 TESCO
전기엔지니어 TESCO
시공 BRAINCHILD
발주자 TAO BIN
사진작가 Nattakit Jeerapatmaitree
[section] 지속가능한 디자인을 통해 재탄생한 토아- 빈 본사 입면
지속가능한 디자인을 통해 재탄생한 토아- 빈 본사 입면토아-빈 본사는 널리 알려진 토아-빈 자판기를 제작한 회사로, SPACE | STORY | STUDIO와 LUCID DREAM 간의 독특한 협업을 대표하는 곳 입니다. 산남
anc.masilwide.com
'Architecture Project > Office' 카테고리의 다른 글
| 케이엘 빌딩 / (주)서인종합건축사사무소 (0) | 2025.01.10 |
|---|---|
| 뒤뜰과 연결되는 레인웨이 워크샵 / Jon Cummings Architecture (JC-A) (0) | 2024.12.24 |
| 연주제선 (0) | 2024.12.06 |
| (주)케이엔글로벌 사옥 (0) | 2024.12.05 |
| 지지디디(그와 그녀의 뚱딴지) (0) | 2024.11.28 |
마실와이드 | 등록번호 : 서울, 아03630 | 등록일자 : 2015년 03월 11일 | 마실와이드 | 발행ㆍ편집인 : 김명규 | 청소년보호책임자 : 최지희 | 발행소 : 서울시 마포구 월드컵로8길 45-8 1층 | 발행일자 : 매일



