
광진교 남단, 천호동 공구거리에 사다리꼴 형상의 오랜 시간 개발되지 못하고 방치되어 있던 대지에 (주)케이엔글로벌 사옥이 들어섰다. (주)케이엔글로벌은 TBM(Tunnel Boring Machine)을 이용한 지하 터널 및 전력구 공사를 주력으로 하는 국내 굴지의 토목 건설사다.
건축가는 설계를 진행하며 (주)케이엔글로벌의 터널 공사 현장을 방문하여 설계 개념을 구축했다. 터널 공사 시 가장 안쪽에 시공되는 콘크리트 구조물을 일컫는 용어인 ‘콘크리트 라이닝(Concrete Lining)’에서 영감을 얻어, 한 분야에서 오랜 시간 독자적인 입지를 다져온 토목건설사의 고유한 가치를 건축물에 담아내고자 했다.
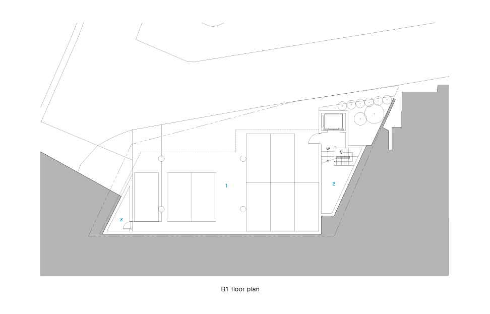
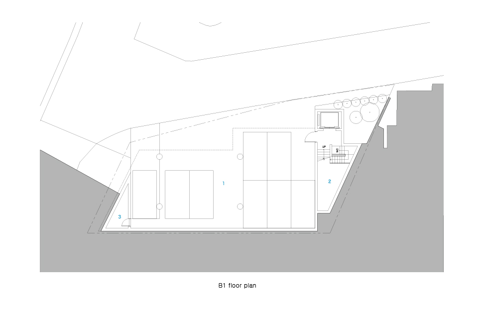
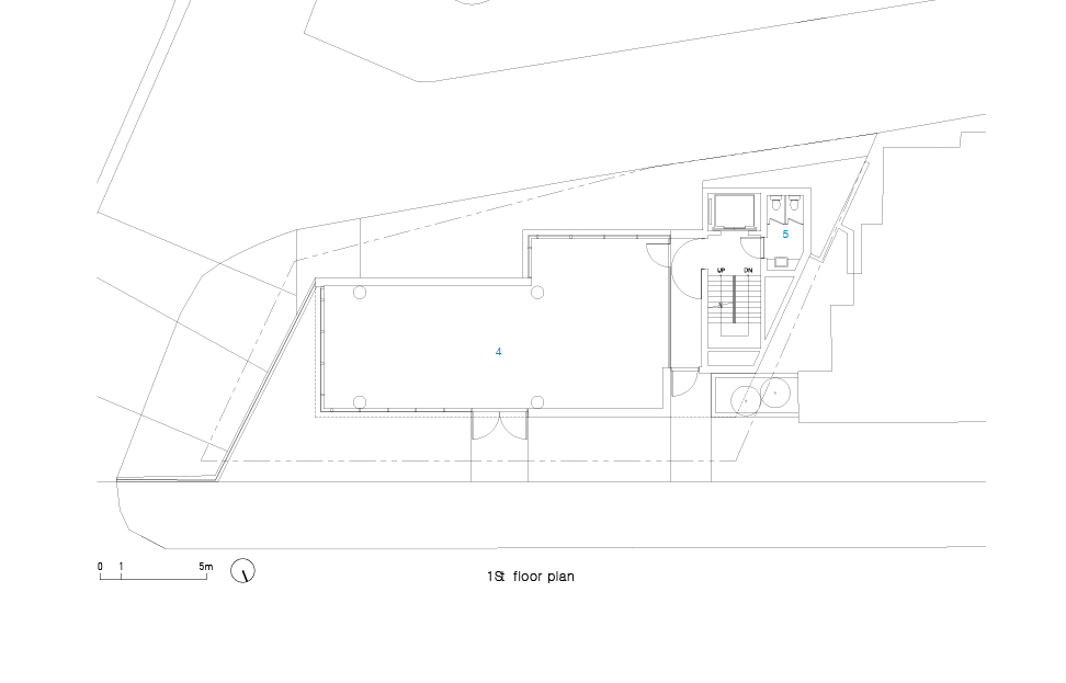
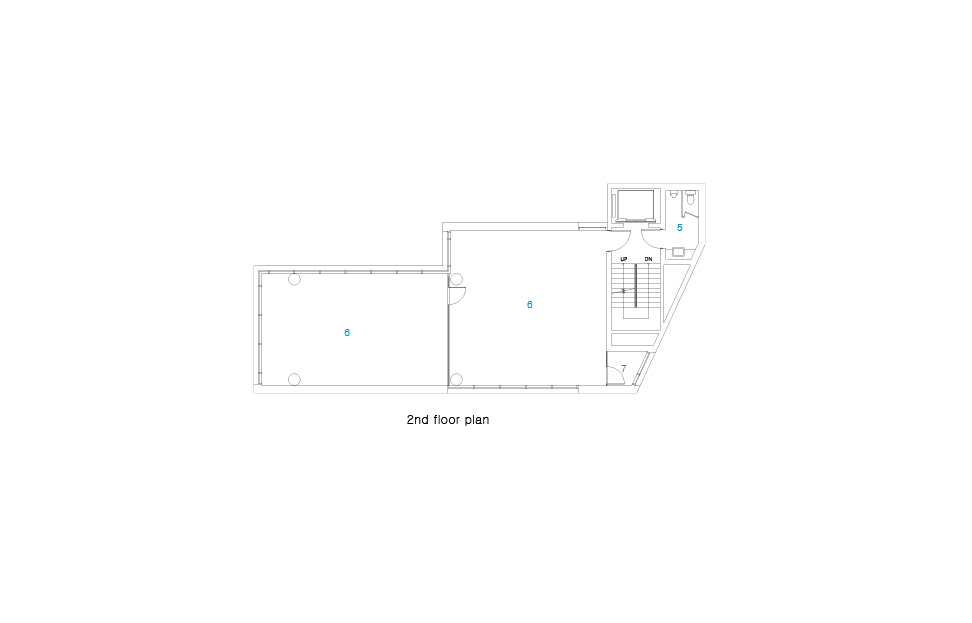
사옥의 측면으로 이동해서 건축물을 바라보면 콘크리트가 꺾이고 이어지며 층과 벽을 동시에 이루는 모습을 볼 수 있다. 이는 토목 현장에서 볼 수 있는 터널의 단면 모습을 떠올리게 한다. 대지에서부터 솟아오른 450mm 두께의 노출콘크리트 구조체는 일정한 두께로 매끈하게 곡면을 가지고 있다. 콘크리트는 자체로도 건축물의 구조가 되며 내부 공간을 규정하는 요소이다. 필요에 따라 꺾이고 솟아오르는 콘크리트는 벽과 바닥, 천장이 되기도 하며 건축물의 층과 공간을 넘나든다. 콘크리트 라이닝은 층별로 달라지는 용도에 따라 남북으로 방향을 바꿔가며 자연스럽게 향, 조망, 일사 등을 조절하는 역할도 한다. 이러한 콘크리트 라이닝 구조 시공을 위해 무량판 구조, 포스트텐션 공법, 갱폼거푸집 벽체, 철골 철근 콘크리트 기둥, 노출 콘크리트 마감 등 다양한 기술적 방법이 동원되기도 했다.










건축가 ZAIRA Architects & Engineers | (주)자이라건축사사무소
위치 서울특별시 강동구
대지면적 303.00m²
건축면적 169.62m²
연면적 1,154.06m²
규모 지하 1층, 지상 6층
건폐율 55.98%
용적률 312.41%
설계기간 2023. 7. - 12.
시공기간 2023. 7. - 12.
대표건축가 이규빈
프로젝트건축가 김남우, 김은호
구조엔지니어 CPA구조기술사사무소
기계엔지니어 (주)선이엔지
전기엔지니어 (주)선이엔지
시공 (주)경도
발주자 (주)케이엔글로벌
사진작가 김종오
해당 프로젝트는 건축문화 2024년 12월호(Vol. 523)에 게재되었습니다.
The project was published in the November, 2024 recent projects of the magazine(Vol. 523).
December 2024 : vol. 523
Contents : COMPETITION : RECENT PROJECTUrban Lining - KN GLOBAL Headquarter / ZAIRA Architects & Engineers(주)케이엔글로벌 사옥 / (주)자이라 건축사사무소 yeon.ju.je.sun / SEOGA ARCHITECTS연주제선 / (주)서가건축
anc.masilwide.com
'Architecture Project > Office' 카테고리의 다른 글
| 지속가능한 디자인을 통해 재탄생한 토아- 빈 본사 입면 (0) | 2024.12.10 |
|---|---|
| 연주제선 (0) | 2024.12.06 |
| 지지디디(그와 그녀의 뚱딴지) (0) | 2024.11.28 |
| BLUM 본사 (0) | 2024.11.06 |
| JK Tower (0) | 2024.10.22 |
마실와이드 | 등록번호 : 서울, 아03630 | 등록일자 : 2015년 03월 11일 | 마실와이드 | 발행ㆍ편집인 : 김명규 | 청소년보호책임자 : 최지희 | 발행소 : 서울시 마포구 월드컵로8길 45-8 1층 | 발행일자 : 매일



