
연주제선은 주택들과 중소 규모의 상가들이 공존하는 동네에 있다. 유사한 유형의 건축물들이 대지 주변을 둘러싸고 있다.
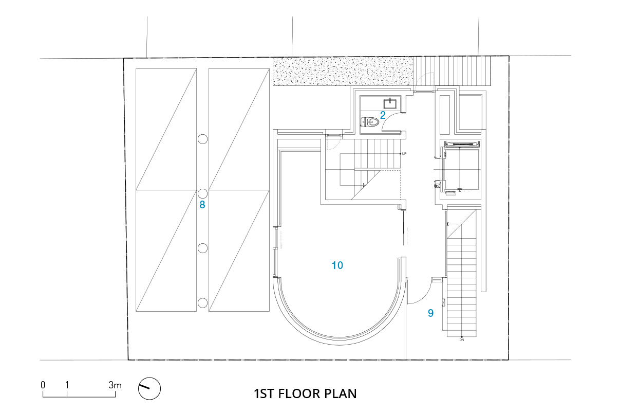
지상층의 사무 공간과 지하층의 스튜디오 공간이 상호 간섭되지 않도록, 전면도로에서 지하층으로 바로 접근할 수 있는 외부 계단을 만들고 지상층과 지하층의 진입 동선을 분리했다. 지하층은 스튜디오 또는 연습실 등의 용도를 위해 7.9m의 높은 층고로 계획했다.

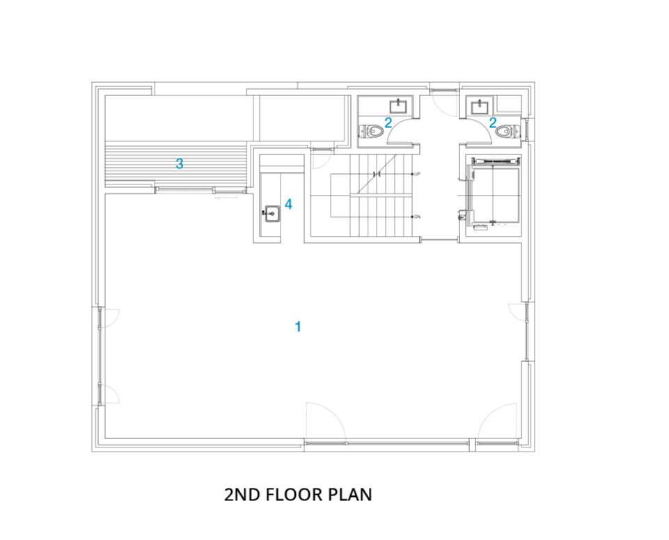
지하층과 높은 층고라는 환경을 고려하여 냉난방 방식, 환기 시스템, 방수 대책을 마련했다. 지상층은 전용 공간의 면적을 확보하고자 동선과 공용부의 면적을 적절히 조절하고, 각 층의 복도 끝에는 창문을 계획하여 공용부의 개방감을 주었다. 지상 2층부터 5층까지는 서로 다른 크기의 테라스가 있어서, 지상층에서도 외부 공간을 경험할 수 있다. 특히, 지상 2층과 3층의 테라스는 북측 건물과 건물 사이의 비워진 공간을 향하도록 미세하게 방향을 조절하여 위치를 선정했으며, 지상 4층과 5층 테라스는 정북 일조 사선제한에 따른 테라스의 위치와 크기가 정해졌다. 결과적으로 사무 공간에 외부 휴게 공간을 마련하여 보다 나은 근무 환경을 조성했다.
건축주는 영화와 드라마의 감독으로, 그 작품들의 분위기가 건축물의 입면과 재료에 은유적으로 표현되어 있다. 건축물의 외부 마감은 노출 콘크리트와 종석이 드러난 벽돌이 사용되었다. 지상 1층의 매끈한 곡선 형태 외벽과 원기둥은 매끈한 노출 콘크리트이지만, 상부층의 외벽은 이와 대조되며 다소 거친 송판 노출콘크리트가 적용되어 대조된 느낌을 준다. 특히, 송판 노출콘크리트는 거친 재질감을 더하기 위해 콘크리트 타설 시 생긴 작은 요철들을 제거하지 않고 존치했다. 또한 구조적 역할을 하는 벽체에 덧살을 대고, 각도를 조절하여 시간대에 따라 파사드의 표정은 계속 변화한다. 벽돌은 코너부의 크기를 몇 가지 정도로 다르게 하여, 줄눈의 패턴이 반복되지 않고 자연스러우면서 불규칙하게 조합되어 있다. 회색빛의 콘크리트와 벽돌은 멀리서 바라보면 하나의 재료처럼 느껴지기도 하지만, 건축물에 가까워질수록 각각의 재료가 가지고 있는 미묘한 색상 차이와 재질감을 경험하게 된다.








건축가 SEOGA ARCHITECTS | (주)건축사사무소 서가
위치 서울특별시 강남구 역삼동
대지면적 197.30m²
건축면적 118.31m²
연면적 556.07m²
건폐율 59.96%
용적률 199.41%
설계기간 2021. 12. - 2022. 6.
시공기간 2022. 9. - 2024. 4.
준공 2024. 5.
대표건축가 오승현, 박혜선
프로젝트건축가 오승현, 박혜선
디자인팀 김몽환
구조엔지니어 은구조
기계엔지니어 성지이앤씨
전기엔지니어 성지이앤씨
시공 (주)엔원종합건설
발주자 다다쇼
사진작가 studio texture on texture, 김명구
해당 프로젝트는 건축문화 2024년 12월호(Vol. 523)에 게재되었습니다.
The project was published in the November, 2024 recent projects of the magazine(Vol. 523).
December 2024 : vol. 523
Contents : COMPETITION : RECENT PROJECTUrban Lining - KN GLOBAL Headquarter / ZAIRA Architects & Engineers(주)케이엔글로벌 사옥 / (주)자이라 건축사사무소 yeon.ju.je.sun / SEOGA ARCHITECTS연주제선 / (주)서가건축
anc.masilwide.com
'Architecture Project > Office' 카테고리의 다른 글
| 뒤뜰과 연결되는 레인웨이 워크샵 / Jon Cummings Architecture (JC-A) (0) | 2024.12.24 |
|---|---|
| 지속가능한 디자인을 통해 재탄생한 토아- 빈 본사 입면 (0) | 2024.12.10 |
| (주)케이엔글로벌 사옥 (0) | 2024.12.05 |
| 지지디디(그와 그녀의 뚱딴지) (0) | 2024.11.28 |
| BLUM 본사 (0) | 2024.11.06 |
마실와이드 | 등록번호 : 서울, 아03630 | 등록일자 : 2015년 03월 11일 | 마실와이드 | 발행ㆍ편집인 : 김명규 | 청소년보호책임자 : 최지희 | 발행소 : 서울시 마포구 월드컵로8길 45-8 1층 | 발행일자 : 매일



