
The Voids Villa
이란 테헤란 외곽에 위치한 더 보이드즈 빌라는 밀집된 도시와 소음에서 벗어나고 싶은 건축주를 위한 단독주택이다. 여유와 친목을 추구하는 건축주 성향에 따라 집은 실내와 외부 공간이 유기적인 상호작용을 이루는 주택이 되었다. 더 보이드즈 빌라는 질서 정연하고 고정된 박스 안에 보이드(빈 공간)가 결합된 형태다. 북쪽과 서쪽은 인접한 건물이 없어 자연스럽게 전망을 누릴 수 있는 주택의 정면이 되었고, 동쪽과 남쪽은 인접 주택으로부터 거주자의 프라이버시를 지키기 위해 폐쇄적인 입면이 되었다. 따라서 건축물은 외향적이면서도 내향적인 복합적인 성격을 지니게 되었다.



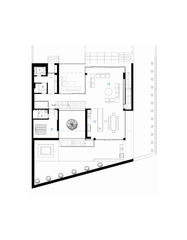
수영장과 이어지는 북쪽의 정원은 넓은 곳에서 풍경을 즐기며 쉴 수 있는 공간이지만, 남쪽 정원은 작고 아늑한 공간으로 조성했다. 주택의 중심에 위치한 정원은 세 개의 층에 걸쳐 덮힌 공간과 열린 빈 공간을 이어주며 일정한 연속성을 유지한다. 정원은 주변의 공간들을 모으고 빛을 지하까지 전달한다.



깊은 정원에는 오래된 나무가 심어져 있으며 이는 시간이 흐름에 따른 거주자들의 지나온 시간을 보여준다. 나무가 자라면서 점점 내부 공간에서 중요한 존재감을 드러낸다. 더 보이드즈 빌라는 배치와 입면 디자인을 통해 가능한 외부 환경과 분리하여 독립성을 확보했다. 긴 계단과 휴식 공간은 북쪽 정원과의 거리를 최소화하고, 북쪽 지하 통로에는 작은 여유 공간을 만들었다. 이러한 배치는 주택의 입체감을 강조한다.


건물의 각 층은 여가 공간(지하 1층), 생활 공간(1층), 침실(2층)의 용도에 맞게 구분되어 있다. 내부 공간을 관통하지 않고도 거주자들은 보이드 공간을 자유롭게 돌아다닐 수 있어, 공간을 최대한으로 활용할 수 있다. 벽돌 색상과 마감재는 배경 속에서 적극적으로 작용하여 보이드 공간으로 표현된 방을 더욱 생동감 있게 만든다.



주택의 내부 공간은 밝은 곳과 어두운 곳으로 표현하여 보이드 공간을 더 대비되게 한다. 여러 개의 테라스와 정원, 공공과 사적인 공간들이 자연과 연결되어 사람들이 자연에서의 공기를 느낄 수 있는 기회를 제공하며, 번잡한 도심을 벗어나 거주자들에게 더욱 환영받는 공간으로 다가온다.






건축가 AsNow Design & Construct | 에즈나우 디자인 & 콘스트럭트
위치 이란, 카라지
건축면적 540㎡
대지면적 1,000㎡
대표건축가 Solmaz Tatari, Ehsan Tavassoli
디자인팀 Nila Shahmohammadi, Farid Rajabi, Masoumeh Shasti
상세디자인 Masoumeh Shasti
시각화 전문가 Nila Shahmohammadi, Farid Rajabi
설계연도 2021
시공연도 2024
기계엔지니어 Mehdi Mehravaran
토목엔지니어 Farhad Bahrami
사진작가 Hamzelouei Studio (Mohammad Hossein Hamzelouei)
해당 프로젝트는 건축문화 2024년 12월호(Vol. 523)에 게재되었습니다.
The project was published in the November, 2024 recent projects of the magazine(Vol. 523).
December 2024 : vol. 523
Contents : COMPETITION : RECENT PROJECTUrban Lining - KN GLOBAL Headquarter / ZAIRA Architects & Engineers(주)케이엔글로벌 사옥 / (주)자이라 건축사사무소 yeon.ju.je.sun / SEOGA ARCHITECTS연주제선 / (주)서가건축
anc.masilwide.com
'Architecture Project > Single Family' 카테고리의 다른 글
| 이글스 드림 / Gudmundur Jonsson (0) | 2024.12.19 |
|---|---|
| 보헤미안 파라다이스 주말 주택 / 뉴 하우 아키텍츠 (0) | 2024.12.18 |
| 꼭 맞는 옷을 입은 코렌 하우스 / M+TRO.studio (0) | 2024.12.17 |
| 자연광으로 분위기를 만드는 주택 / AND Studio (0) | 2024.12.16 |
| Rak House (0) | 2024.12.06 |
마실와이드 | 등록번호 : 서울, 아03630 | 등록일자 : 2015년 03월 11일 | 마실와이드 | 발행ㆍ편집인 : 김명규 | 청소년보호책임자 : 최지희 | 발행소 : 서울시 마포구 월드컵로8길 45-8 1층 | 발행일자 : 매일



