
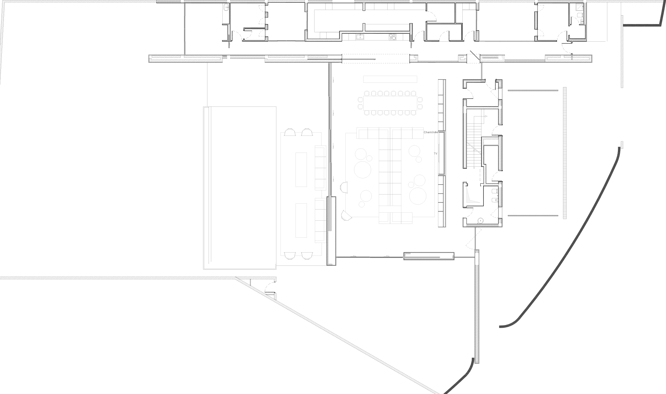
수세기 동안 집은 고정된 루틴을 중심으로 설계되어 왔으며, 종종 공간을 서로 다른 방으로 나누고 흐름을 제한한다. 이 독특한 프로젝트에서 우리는 1층을 재구상하여 거실과 식당을 하나의 매력적인 공간으로 통합하는 18미터 x 12미터 크기의 거대 리셉션 공간이라는 넓은 개방형 공간을 만들었다. 이 넓은 디자인은 거주자들이 집을 쉽고 편리하게 경험할 수 있도록 하여 고립된 구석을 없앴다. 거의 9미터 길이의 소파부터 5미터 크기의 식탁까지 모든 요소가 공유되고 조화로운 순간을 장려한다. 실내와 실외의 경계를 모호하게 만드는 것이 핵심적인 측면이었다. 미니멀한 알루미늄 슬라이딩 도어가 열려 12미터 만을 드러내고 두 영역을 원활하게 통합한다. 고급진 목재, 생 콘크리트, 화산석으로 우아하고 흙 같은 분위기를 연출하는 등 소재 선택이 통일감과 세련미를 더한다. 무광택 아이보리 소재의 이탈리아 세라믹 타일(3.4 x 1.2미터)로 제작된 바닥은 잔잔한 느낌을 더한다. 거실은 넓은 나무 주방 아일랜드로 흘러들어 요리와 연결을 유도하고, 미닫이식 나무 문이 메인 주방을 감싸고 있어 식사 준비를 위한 프라이버시를 제공한다. 그 뒤에는 눈에 띄지 않는 서비스 공간이 주요 생활 공간을 지원한다. 위층에는 세 개의 고급 스위트룸이 프로젝트의 비전을 이어가며, 각 복도는 일상 생활을 지원하기 위해 세심하게 계획되어 있다. 1,300m² 규모의 부지를 배경으로 한 이 집은 원활하고 광범위하며 우아한 생활 경험을 제공한다.





건축가 Studio CAYS
위치 모로코, 카사블랑카, 아인디아브
대지면적 1,300m²
건축면적 500m²
연면적 1,000m²
조경면적 800m²
대표건축가 Yasmine, Yacout Benmoussa
사진작가 Alessio Mei
'Architecture Project > Single Family' 카테고리의 다른 글
| 꼭 맞는 옷을 입은 코렌 하우스 / M+TRO.studio (0) | 2024.12.17 |
|---|---|
| 자연광으로 분위기를 만드는 주택 / AND Studio (0) | 2024.12.16 |
| barn house (0) | 2024.12.04 |
| 하우스 오프 더 그라운드 (0) | 2024.12.04 |
| 마누엘라 페드라사 주택 / 오에이디디 아르케텍토스 (0) | 2024.12.04 |
마실와이드 | 등록번호 : 서울, 아03630 | 등록일자 : 2015년 03월 11일 | 마실와이드 | 발행ㆍ편집인 : 김명규 | 청소년보호책임자 : 최지희 | 발행소 : 서울시 마포구 월드컵로8길 45-8 1층 | 발행일자 : 매일



