
이 건축 프로젝트는 산의 전경을 강조하는 유리 복도로 연결된 각각 맞배지붕으로 구성된 두 개의 독립된 볼륨의 상호작용으로 정의된다. 이 볼륨은 명확하게 정의된 형태를 특징으로 하며, 현대적인 주택 스타일을 강조하는 순수하고 단순한 형태가 특징이다. 벽에 움푹 들어간 큰 입구는 넉넉한 자연광을 허용하여 경관을 구성하고 내부와 외부를 원활하게 연결한다.

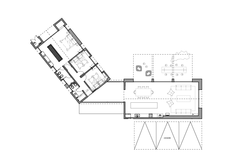
평면도는 두 개의 개별 공간으로 구성되어 있다. 첫 번째 공간에는 북쪽으로 갤러리까지 확장되는 통합 주방, 식당, 거실 공간이 있어 자연광과 외부와의 상호작용을 극대화할 수 있다. 두 번째 공간에는 공용 욕실이 있는 독립형 침실 2개와 마지막에 위치한 마스터 스위트가 포함되어 있어 특권적인 전망과 넉넉한 욕실을 제공한다.

밝은 색상의 섬유 시멘트 판자벽 패널로 구성된 외피는 검은색 입구와 우아한 대비를 이루며 볼륨의 순수성을 더욱 강조한다. 이 대비는 유동적이고 곡선적인 조경 디자인으로 보완되어 구조물의 기하학적 단단함을 부드럽게 하고 건축물 전체를 조화롭게 만든다.

집 안팎은 단색 팔레트를 유지하여 일관성과 평온함을 선사한다. 이러한 중립적인 배경은 소박하고 화려하며 편안한 느낌을 주는 이동식 가구와 대조적이며 공간에 활력과 따뜻함을 더한다.


건축가 Fabric Estudio
위치 아르헨티나, 코드로바, 로스레아르테스, 알토스 델 코랄
연면적 220m²
준공 2024
대표건축가 Arato María Belen, Josefina Falco
엔지니어링 SET Ideas
인테리어 Arato María Belen, Josefina falco
조경 Silvina Gregoret
사진작가 Arq. Gonzalo Viramonte
'Architecture Project > Single Family' 카테고리의 다른 글
| 자연광으로 분위기를 만드는 주택 / AND Studio (0) | 2024.12.16 |
|---|---|
| Rak House (0) | 2024.12.06 |
| 하우스 오프 더 그라운드 (0) | 2024.12.04 |
| 마누엘라 페드라사 주택 / 오에이디디 아르케텍토스 (0) | 2024.12.04 |
| Two-Face House (0) | 2024.11.26 |
마실와이드 | 등록번호 : 서울, 아03630 | 등록일자 : 2015년 03월 11일 | 마실와이드 | 발행ㆍ편집인 : 김명규 | 청소년보호책임자 : 최지희 | 발행소 : 서울시 마포구 월드컵로8길 45-8 1층 | 발행일자 : 매일



