
자이푸르의 건조한 사막 풍경을 배경으로 한 AND Studio의 트리비크라마라야 레지던스는 면적 15,000제곱피트에 달하는 건축물로, 자연광을 매개체로 합니다. 이 디자인은 햇빛을 효과적으로 활용해 생활 공간을 고요하고 매력적이며 극한 기후에 적응할 수 있는 환경으로 변화시킵니다.



디자인의 핵심은 자연광의 사용, 깊은 창문, 그리고 전략적으로 배치된 개구부를 통해 햇빛을 실내로 유입시키되 시원한 분위기를 유지하는 데 있습니다. 조명과 단열의 균형이 이 주택의 기후 적응 설계를 완성합니다.

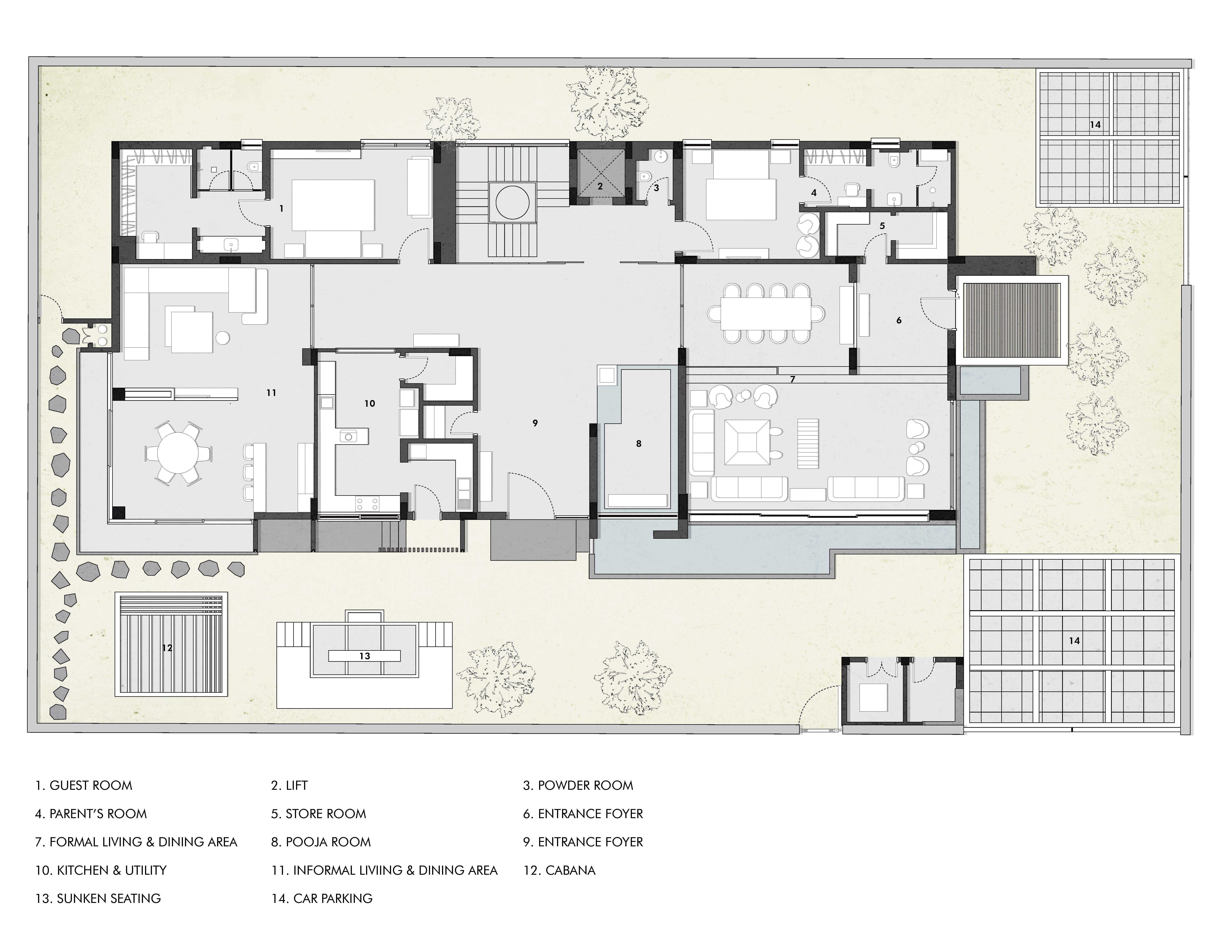
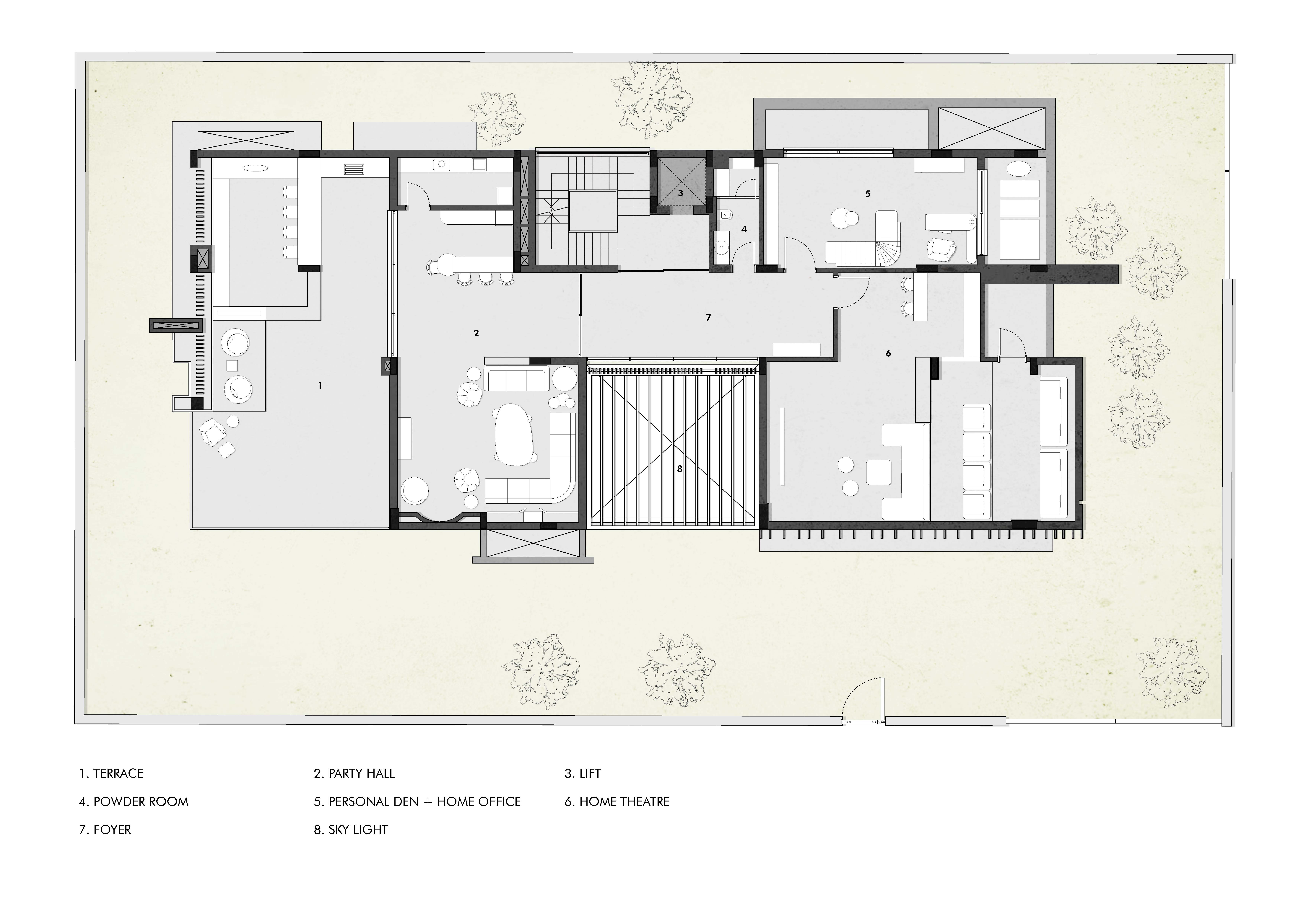
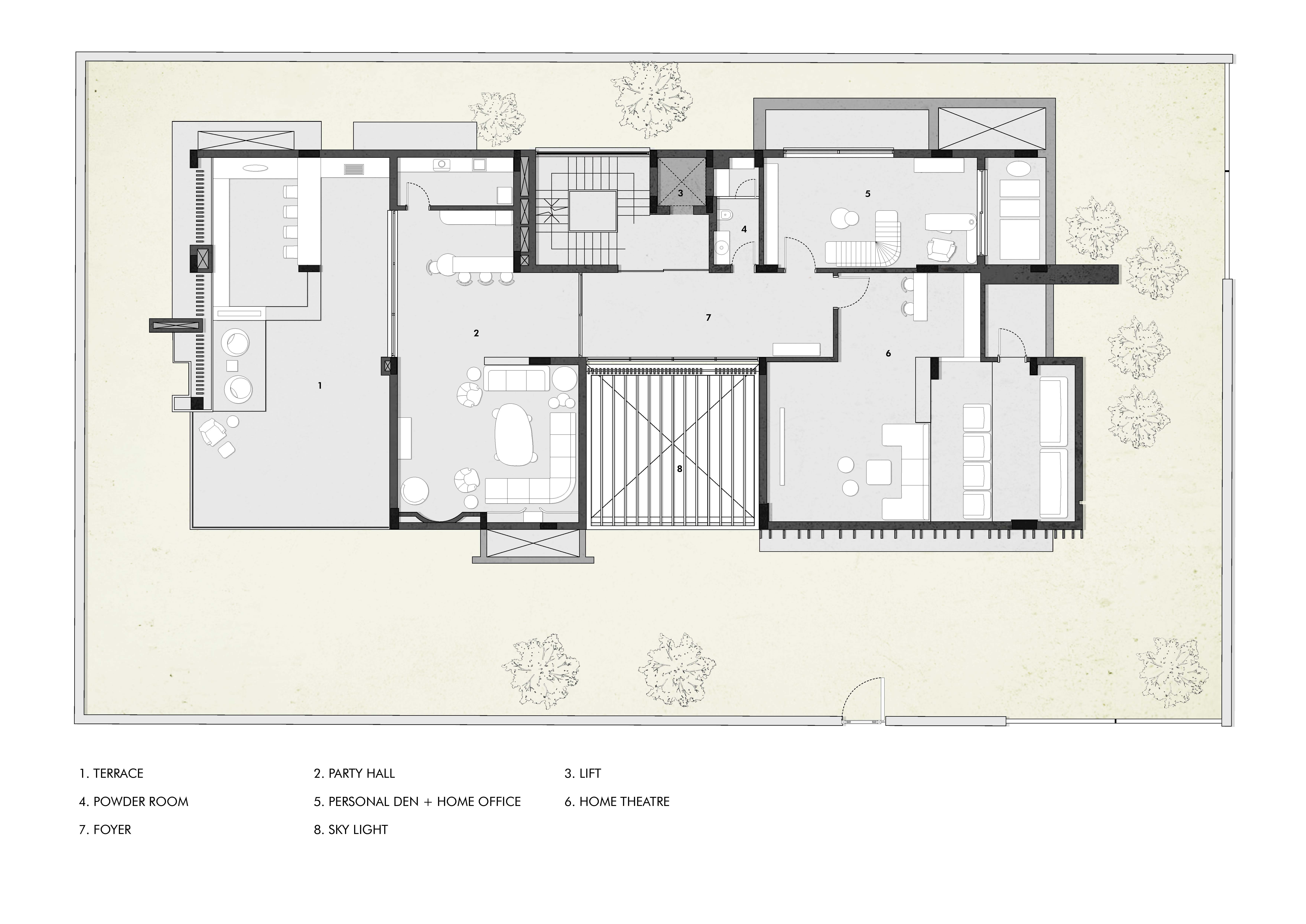
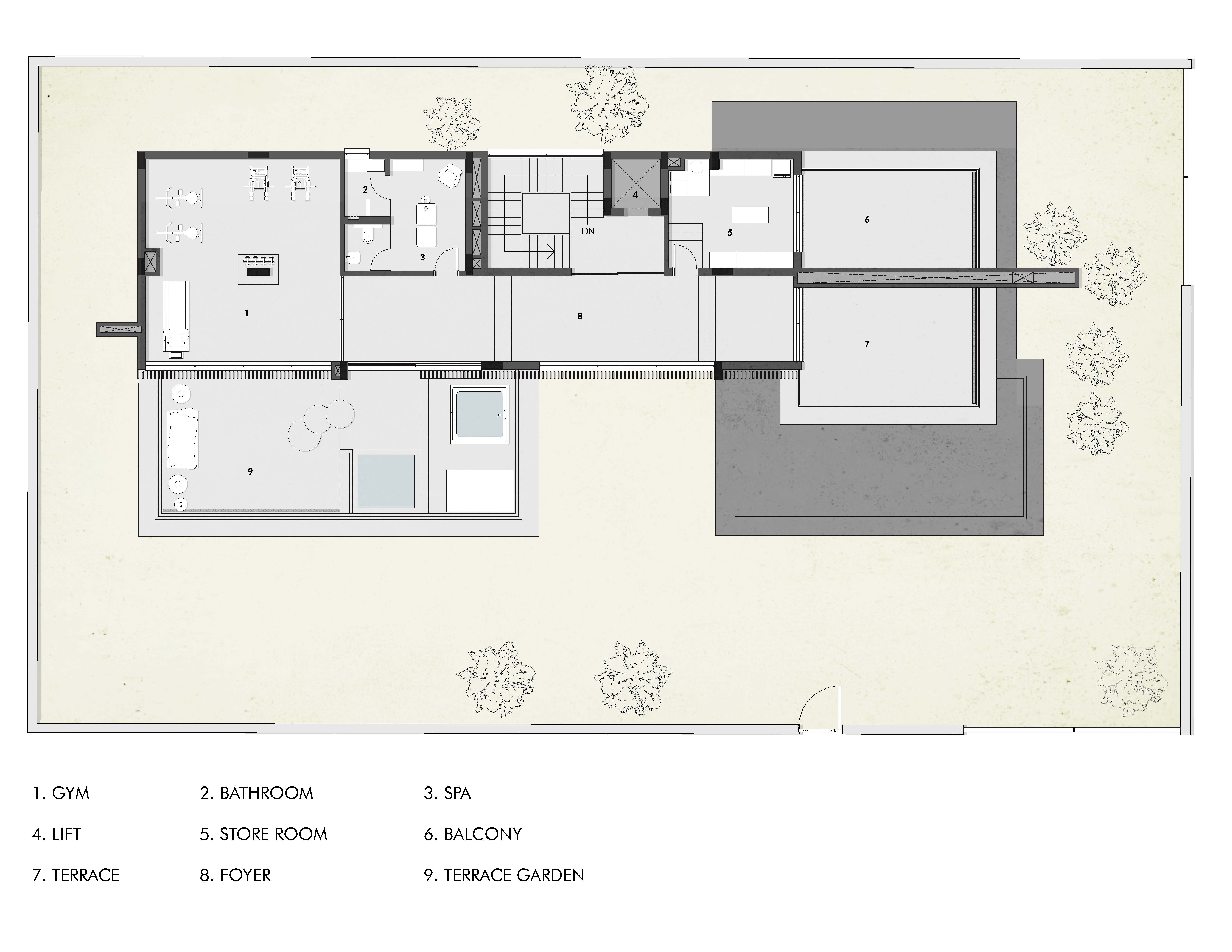
트리비크라마라야는 연결성을 고려한 설계를 통해 넓은 사교 공간과 아늑한 개인 공간을 조화롭게 만듭니다. 이 집은 대규모 모임과 조용한 휴식을 모두 수용할 수 있는 다목적 공간을 제공합니다. 사교 공간에는 비공식 라운지, 야외 테라스, 바 공간이 포함되어 있으며, 실내외 전환을 통해 개방성과 공간사이의 상호작용을 극대화합니다. 홈시어터는 몰입형 엔터테인먼트와 축제를 위한 다목적 공간으로 사용할 수 있습니다. 반대로, 개인 서재와 고요한 데크와 같은 은밀한 휴식처는 사색과 휴식을 위한 차분한 공간으로 사용됩니다. 그늘진 테라스와 덮인 안뜰과 같은 야외 공간은 자연과 연결되면서도 사막의 거친 환경으로부터 보호해줍니다.



건축적으로는 햇빛이 쏟아지는 극적인 이중 높이의 현관과 중앙 계단이 특징입니다. 이 공간은 하루 종일 밝기와 그림자가 변화하며 역동적인 시각적 효과를 연출합니다. 마감은 돌, 목재, 와 같이 은은한 빛을 띄는 재료로 구성되어 있는데, 빛이 마감재의 표면을 비추며 질감과 따스함을 강조해 몽환적인 분위기를 자아냅니다. 태양의 움직임에 따라 트리비크라마라야는 빛과 그림자가 조화를 이루며 끊임없이 각 방의 분위기를 새롭게 정의하는 살아 있는 캔버스로 변모합니다. AND Studio는 세심한 설계를 통해 자이푸르의 사막 기후에 대응하는 동시에 안식처이자 역동적인 생활 공간을 만들어냈습니다.



건축가 AND Studio
위치 인도, 라자스탄, 자이푸르
대지면적 1,200yd2
건축면적 4,500㎡
연면적 15,000㎡
건폐율 45%
준공 2024
대표건축가 Love Choudhary
프로젝트건축가 Love Choudhary
디자인팀 Arushi Bansal Choudhary, Deepak Dutt, Deepika
발주자 The Sharmas
사진작가 Ekansh Goel
'Architecture Project > Single Family' 카테고리의 다른 글
| 더 보이드즈 빌라 / 에즈나우 디자인 & 콘스트럭트 (0) | 2024.12.17 |
|---|---|
| 꼭 맞는 옷을 입은 코렌 하우스 / M+TRO.studio (0) | 2024.12.17 |
| Rak House (0) | 2024.12.06 |
| barn house (0) | 2024.12.04 |
| 하우스 오프 더 그라운드 (0) | 2024.12.04 |
마실와이드 | 등록번호 : 서울, 아03630 | 등록일자 : 2015년 03월 11일 | 마실와이드 | 발행ㆍ편집인 : 김명규 | 청소년보호책임자 : 최지희 | 발행소 : 서울시 마포구 월드컵로8길 45-8 1층 | 발행일자 : 매일


