
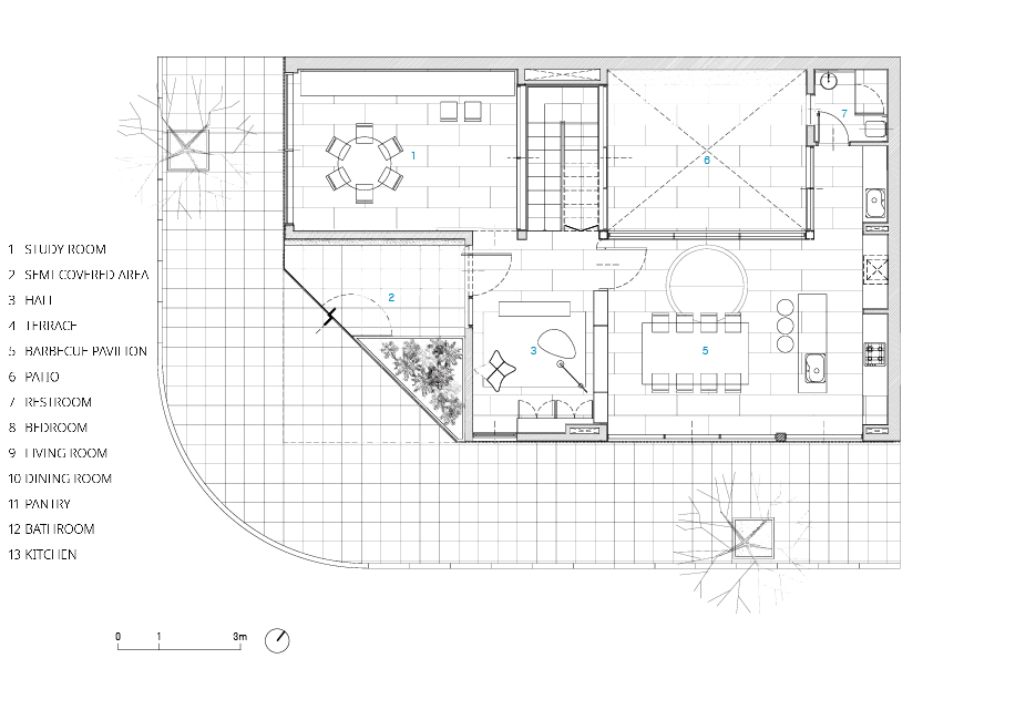
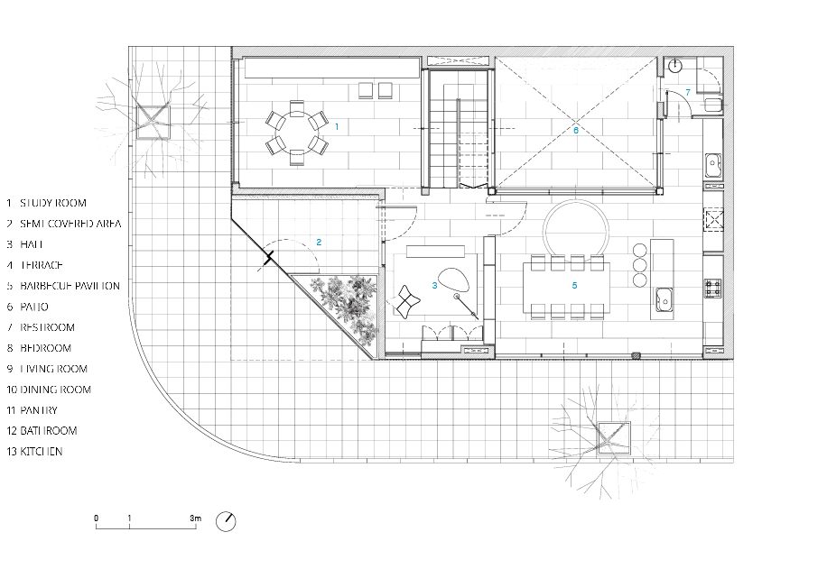
부에노스아이레스의 한 작은 부지에 자리한 마누엘라 페드라사 주택은 모퉁이에 배치된 세심한 출입구 디자인이 돋보이는 주택이다. 도로와 인접한 모퉁이 위치 특성을 고려해 직사각형 건물의 1층 출입구를 사선으로 배치했다. 이를 통해 주택은 주변 환경과 자연스럽게 조화를 이루며 단순한 재료를 사용해 현대적이며 선명한 볼륨감을 자아낸다.




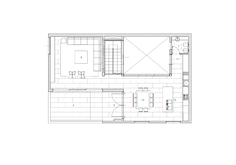
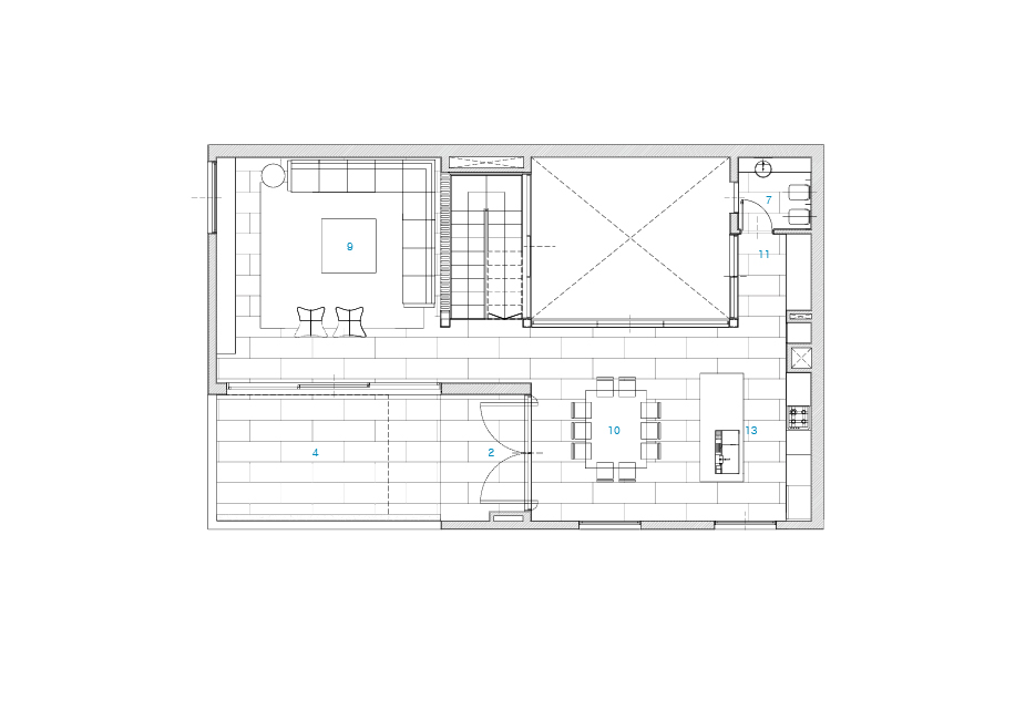
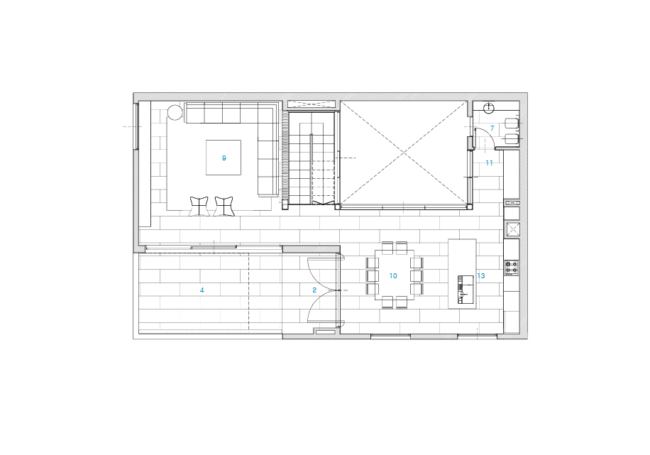
주택의 내부는 중정과 테라스로 연결된 공간 구성으로, 내·외부 공간의 상호작용을 극대화한다. 1층에는 바비큐 공간과 와인 저장고가 마련되어 있으며, 프라이버시를 위해 미세 천공 알루미늄 시트로 전면을 마감했다. 1층의 모든 공간은 중정과 연결되어 있다. 메인 층인 2층은 넓은 거실과 부엌이 자리 잡고 있으며 긴 전망을 감상할 수 있는 모퉁이 쪽 테라스로 이어져 개방감을 더한다.



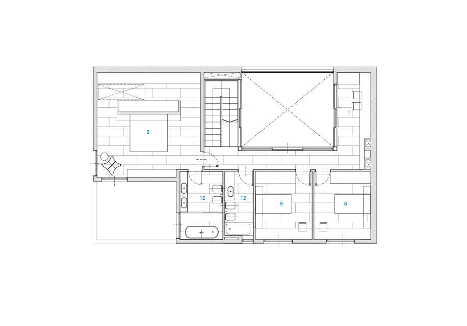
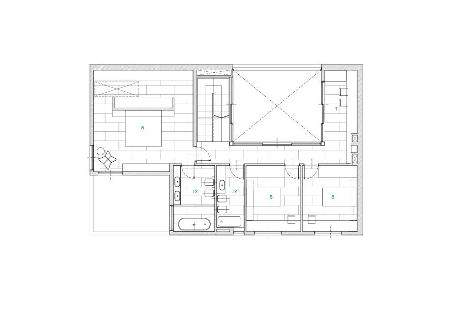
3층은 침실과 소형 스튜디오 전용 공간으로 활용되며, 최상층에는 녹지 테라스와 수영장이 있어 휴식 공간을 제공한다. 모든 층은 중정과 연결되어 자연 채광과 통풍을 통해 쾌적한 실내 환경을 조성한다. 또한 지역 자재와 재활용할 수 있는 자재를 적극적으로 사용하고 빗물 수집 시스템을 도입하는 등 지속 가능성을 담은 건축가의 설계 원칙을 반영하였다.





건축가 OADD arquitectos
위치 아르헨티나, 부에노스 아이레스, 빌라 우르키자, 메누엘라 페드라자 5491
연면적 320m²
프로젝트기간 2022
준공 2024
대표건축가 Arch. Andrés Barone, Arch. Jorge Báez Moore, Arch. Fabricio Contreras Ansbergs
전기 Eng. Marcos Mailliot
시공 CRBN Group
사진작가 Arch. Luis Barandiarán
해당 프로젝트는 건축문화 2024년 12월호(Vol. 523)에 게재되었습니다.
The project was published in the November, 2024 recent projects of the magazine(Vol. 523).
December 2024 : vol. 523
Contents : COMPETITION : RECENT PROJECTUrban Lining - KN GLOBAL Headquarter / ZAIRA Architects & Engineers(주)케이엔글로벌 사옥 / (주)자이라 건축사사무소 yeon.ju.je.sun / SEOGA ARCHITECTS연주제선 / (주)서가건축
anc.masilwide.com
'Architecture Project > Single Family' 카테고리의 다른 글
| barn house (0) | 2024.12.04 |
|---|---|
| 하우스 오프 더 그라운드 (0) | 2024.12.04 |
| Two-Face House (0) | 2024.11.26 |
| The Chodge (0) | 2024.11.22 |
| Nam House (0) | 2024.11.21 |
마실와이드 | 등록번호 : 서울, 아03630 | 등록일자 : 2015년 03월 11일 | 마실와이드 | 발행ㆍ편집인 : 김명규 | 청소년보호책임자 : 최지희 | 발행소 : 서울시 마포구 월드컵로8길 45-8 1층 | 발행일자 : 매일



