
Weekend House in Bohemian Paradise
흐루바 스칼라 외곽의 아름다운 풍경 속에 자연 경관과 조화를 이루는 주말 주택이 있다. 주말 주택은 지역의 역사적 환경과 자연을 존중하며 평화로운 휴식을 취할 수 있는 공간이다. 대지는 흐루바 스칼라 중심지에서 남쪽에 있으며 완만한 경사를 가지고 있으며, 주변은 역사적인 주택과 현대적인 주택이 혼재되어 있다.

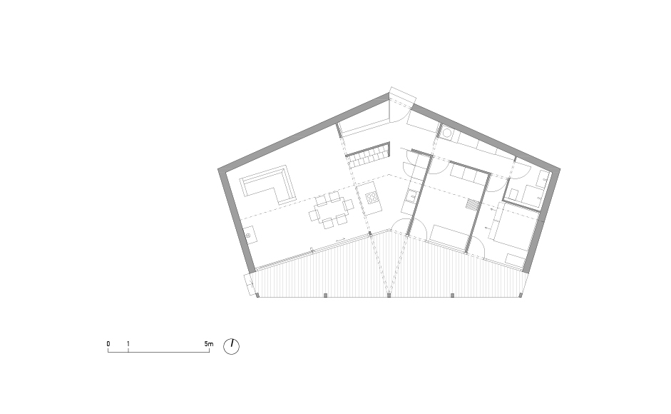
건축가는 지역 전통의 주택에서 영감을 받아 주말주택을 대지의 자연 속에 자연스럽게 녹아들 수 있도록 설계했다. 주택의 평면은 보헤미안 파라다이스 풍경을 최대한 담을 수 있도록 ‘V’형태가 되었다.


단층의 경사 지붕은 마치 지역의 전통적인 주택으로 보이지만, ‘V’자로 구부러진 형태는 현대적인 느낌을 준다. 북쪽 도로에서 집에 들어서면 파노라마 풍경이 펼쳐진다. 테라스는 주택 내부의 생활 공간을 자연과 연결하며 실내와 외부를 하나로 이어준다.

불안정한 경사에 위치한 땅에 지어지는 주택이었기 때문에 기초 공사 과정에 직경 800mm의 파일 18개를 박아야 했다. 목재 CLT 패널로 시공되었으며 지붕은 목재 트러스가 지탱한다. 기계실 등이 있는 지하는 콘크리트 블록으로 시공되었고, 경사 지형에 따라 일부 콘크리트가 노출되어 있다. 지붕은 어두운색의 금속 타일로 덮여 있다.



건축가 뉴 하우 아키텍츠( NEW HOW architects)
위치 체코, 리베레츠, 흐루바 스칼라
대지면적 2,758㎡
연면적 125㎡
건축면적 114㎡
설계기간 2022
시공기간 2023
프로젝트건축가 David Zamecnik
협업사 Stavix, Geoindustrie
사진작가 Petr Polák
해당 프로젝트는 건축문화 2024년 12월호(Vol. 523)에 게재되었습니다.
The project was published in the November, 2024 recent projects of the magazine(Vol. 523).
December 2024 : vol. 523
Contents : COMPETITION : RECENT PROJECTUrban Lining - KN GLOBAL Headquarter / ZAIRA Architects & Engineers(주)케이엔글로벌 사옥 / (주)자이라 건축사사무소 yeon.ju.je.sun / SEOGA ARCHITECTS연주제선 / (주)서가건축
anc.masilwide.com
'Architecture Project > Single Family' 카테고리의 다른 글
| 테두리를 따라 연결되는 집 / Volume Architecture Lisbon Studio (0) | 2024.12.23 |
|---|---|
| 이글스 드림 / Gudmundur Jonsson (0) | 2024.12.19 |
| 더 보이드즈 빌라 / 에즈나우 디자인 & 콘스트럭트 (0) | 2024.12.17 |
| 꼭 맞는 옷을 입은 코렌 하우스 / M+TRO.studio (0) | 2024.12.17 |
| 자연광으로 분위기를 만드는 주택 / AND Studio (0) | 2024.12.16 |
마실와이드 | 등록번호 : 서울, 아03630 | 등록일자 : 2015년 03월 11일 | 마실와이드 | 발행ㆍ편집인 : 김명규 | 청소년보호책임자 : 최지희 | 발행소 : 서울시 마포구 월드컵로8길 45-8 1층 | 발행일자 : 매일



