
코로나19 기간 동안 많은 동물 보호소가 폐쇄되었다. 베스트프렌즈동물협회는 2025년까지 ‘노 킬(No-kill)’이라는 목표를 가지고 새로운 미래형 반려동물 지원센터를 계획했다. 가장 핵심이 되는 건 캔넬을 사용하지 않는 보호소 시설을 짓는 것이었다. 반려동물의 건강과 움직임에 저해 요소가 될 수 있는 우리나 캔넬을 사용하지 않는 대신 지역의 위탁 가족과 함께 보호소의 동물들을 돌볼 수 있게 하였다.
벤턴빌 반려동물 지원센터가 자리잡은 대지는 마을의 중앙에 있어 주민들의 접근성이 좋다. 또한 지역 내에서 구조된 동물을 위한 의료센터나 주민들의 커뮤니티 센터, 위탁 가정과 동물을 위한 지원센터 프로그램을 계획했다. 지역의 헛간 건축 양식을 심층적으로 분석한 형태는 건축적인 전략으로 표현되었고, 대지와 주거지를 가로지르는 등고의 차이는 지붕의 다양한 높낮이를 통해서 효율성을 높였다. 전체적인 설계에서는 반려동물 보호소라는 목적과 프로그램에 따라 색다른 접근 방식이 필요했다. 지역 사회에 초점을 맞추어 포용적이고 안락한 곳이어야 했으며, 사람들이 모여 기부 행사, 자원봉사, 반려동물의 입양과 양육에 적극적으로 참여할 수 있는 곳이어야 했다. 더불어 연계 구조 활동, 의료 서비스의 제공, 동물 관리와 관련한 교육이 이루어질 수 있는 공간, 반려동물의 훈련공간 등을 제공하도록 하였다.
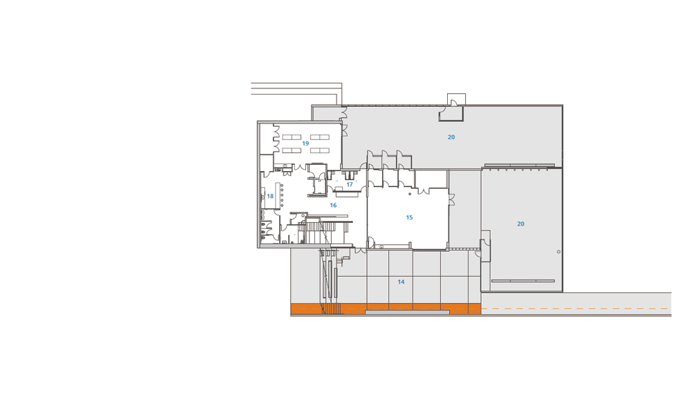
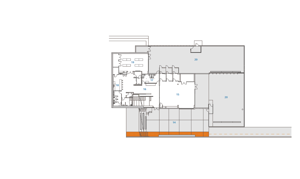
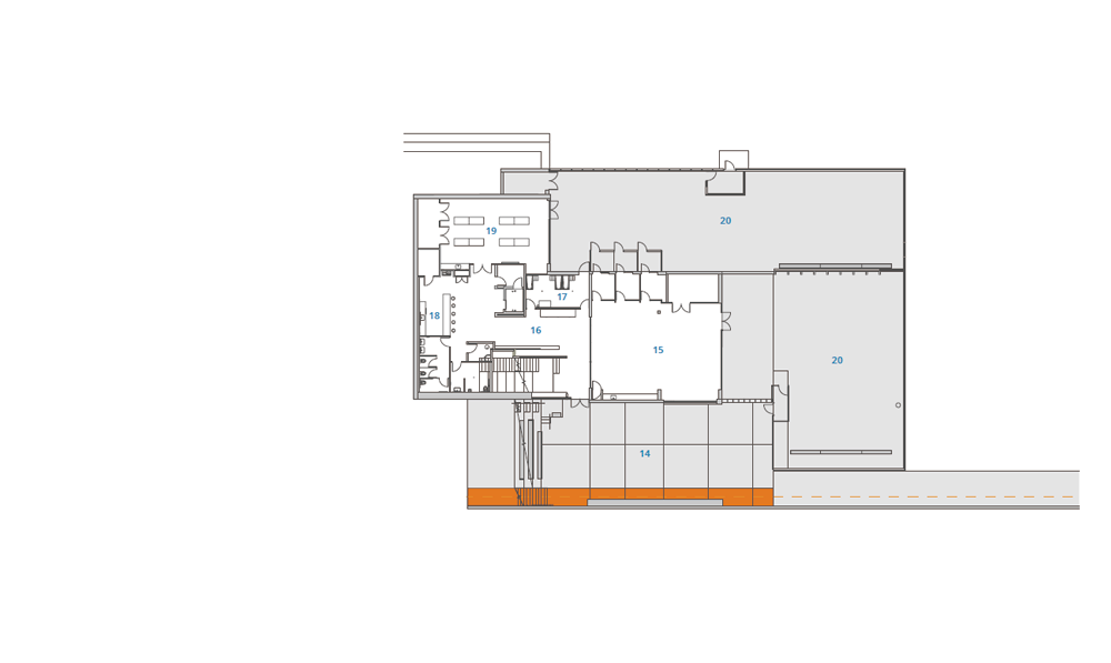
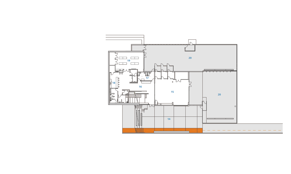
건물은 전체적으로 북측으로는 메인 커뮤니티 공간, 남측으로는 의료 지원 공간으로 이루어진다. 앞마당과 현관 내 공간, 다리는 각 공간을 이어준다. 메인 커뮤니티 로비 공간 한편으로는 공원이 마련되어 일출과 일몰을 감상할 수 있다. 탁 트인 전망이 드러나는 대형 유리창은 내부 공간과 외부 공간을 이어지며, 커뮤니티 동의 두 층은 시각적으로 연결되어 있다. 각각의 공간들은 개방되어 있어 방문객이 시설 전체를 탐방할 수 있게 하였다. 또, 공간마다 가구를 쉽게 이동할 수 있으며, 공간의 유연성이 뛰어나 다양한 변화와 수용성을 지닌 공간이기도 하다.


















건축가 RA-DA
위치 미국, 아칸소주, 벤턴빌
용도 Community and Support Center, Transport Center, Medical Center
대표건축가 Rania Alomar
리드건축가 Rania Alomar
프로젝트건축가 Stephanie Odenheimer
프로젝트디자이너 Luisana Hernandez
디자인팀 Mike Green
구조엔지니어 Harrison French & Associates
토목엔지니어 Harrison French & Associates
조경설계 Harrison French & Associates
조명설계 RA-DA, PLPSocal
사진작가 Ralf Strathmann
해당 프로젝트는 건축문화 2024년 4월호(Vol. 515)에 게재되었습니다.
The project was published in the April, 2024 recent projects of the magazine(Vol. 515).
April 2024 : vol. 515
Contents : SKETCH Living Room in Fantasy / Alexandr Krylov 환상적인 건축물 속 거실 / 알렉산드로스 크릴로프 : COMPETITION : RECENT PROJECT Gomso Salt Farm Smart Complex Center / LIM architects 곰소염전 스마트복합쉼터 / 건축
anc.masilwide.com
'Architecture Project > Cultural' 카테고리의 다른 글
| Children’s Community Centre The Playscape (0) | 2024.05.24 |
|---|---|
| THE TREASURY MUSEUM KHONKAEN (0) | 2024.05.21 |
| NAMHAE HWAJUN CHILDREN’S LIBRARY (0) | 2024.04.23 |
| Gomso Salt Farm Smart Complex Center (0) | 2024.04.22 |
| Changsha International Conference Center (0) | 2024.04.15 |
마실와이드 | 등록번호 : 서울, 아03630 | 등록일자 : 2015년 03월 11일 | 마실와이드 | 발행ㆍ편집인 : 김명규 | 청소년보호책임자 : 최지희 | 발행소 : 서울시 마포구 월드컵로8길 45-8 1층 | 발행일자 : 매일



