
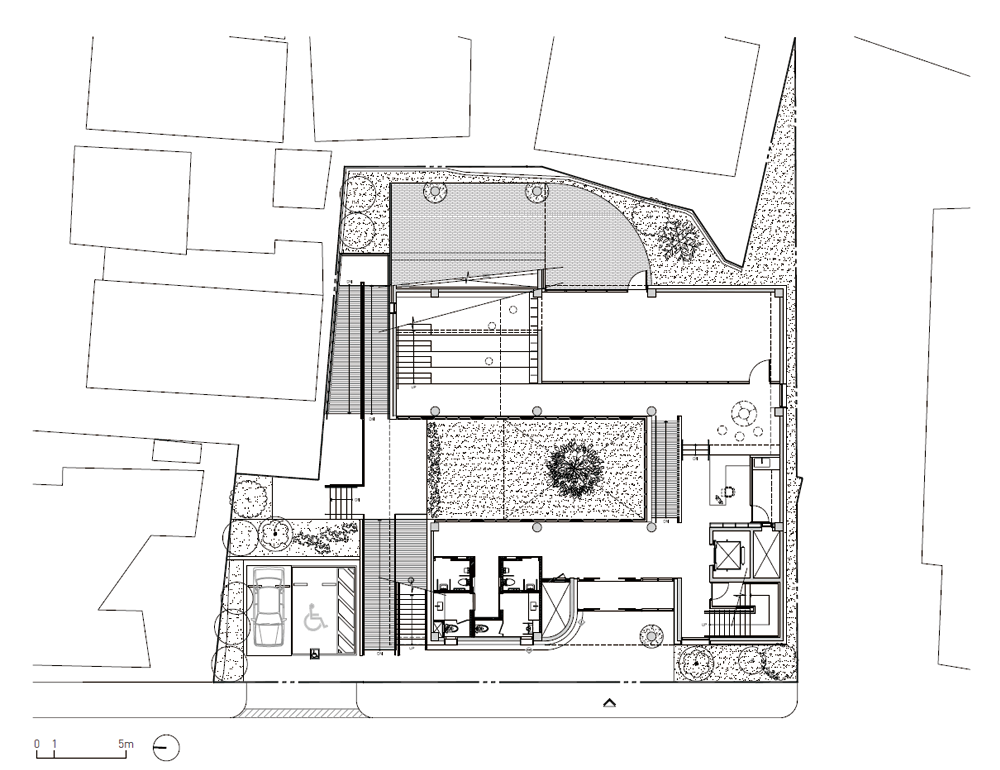
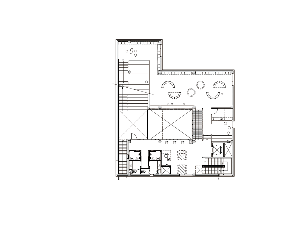
남해 화전 어린이도서관은 비탈진 680여 개의 논이 펼쳐져 있는 남해의 다랭이논을 개념으로 설계된 공공도서관이다. ‘다랑이’는 비탈진 곳에 있는 계단식으로 좁고 긴 논배미란 뜻으로, 이를 건축적으로 해석하고자 하였다. 이를 통해서 어린이도서관은 만남과 즐거움 그리고 소통이 함께하는 주민과 어린이들에게 친근한 놀이터와 같은 장소가 될 수 있도록 계획하였다. 계획 대지 주변으로는 화전도서관 본관을 포함하여 여러 공공 건축물이 자리 잡고 있다. 따라서 어린이도서관의 내부 공간뿐만 아니라 대지의 형상에 따라 다양한 외부 공간들을 계획하여, 이용자 및 방문자 또는 지역 주민들에게 열린 공공 건축물로서의 다양한 공간적 경험을 유기적으로 체험할 수 있도록 계획하였다. 어린이도서관 내부 공간은 중정인 하늘마당을 중심으로 프로그램들이 각각 실의 개념으로서 존재하는 것이 아니라, 하나의 공간 안에서 높낮이를 달리하며, 영역성을 갖고 유기적으로 연결되도록 하였다. 계획 대지의 경사를 적극적으로 활용하여, 이용자들이 도서관 내부에서 다양한 공간감을 경험할 수 있다. 진입 마당에서 로비 공간으로, 실내 놀이방에서 놀이 데크, 야외 놀이터로 동선이 내외부를 넘나들며, 내부 공간의 경험들이 외부 공간으로 이어지며, 다양한 체험이 가능한 놀이터와 같은 도서관을 계획했다. 내부 공간의 구성뿐만 아니라, 1층의 진입 마당에서 수직적으로 연계된 독서마당과 독서테라스와의 관계를 통해 내부의 독서 행위가 외부로도 이어질 수 있도록 하였다. 또한 봉강산을 바라보는 전망브리지는 3층의 내부 공간을 독서테라스와 2층의 독서마당을 시각적으로 이어주는 역할을 한다.
유기적인 공간 구성의 흐름을 바탕으로 설정된 ‘커뮤니티 루프’라는 개념은 도서관을 순환적 공간으로, 하나의 건축 안에서 유기적으로 활동이 이어질 수 있는 공간으로 만들었다. 남해의 지리적 특징인 다랭이논을 재해석하여 만들어진 다양한 레벨의 공간은 남해 화전 어린이도서관만의 정체성을 보여준다.














건축가 AEA_Atelier Espace Architectes
위치 경상남도 남해군 남해읍 아산리 357-6
용도 공공도서관
대지면적 805.32㎡
건축면적 430.99㎡
연면적 853.39㎡
건폐율 53.52%
용적률 105.97%
규모 지상 2층
설계기간 2021. 6. - 2022. 10.
시공기간 2022. 11. - 2023. 9.
대표건축가 윤성영, 김샛별
디자인팀 아에아 건축사사무소
구조설계 맥구조기술사사무소
기계전기설계 에이스이엔지
시공 (주)오름종합건설
사진 노경
해당 프로젝트는 건축문화 2024년 4월호(Vol. 515)에 게재되었습니다.
The project was published in the April, 2024 recent projects of the magazine(Vol. 515).
April 2024 : vol. 515
Contents : SKETCH Living Room in Fantasy / Alexandr Krylov 환상적인 건축물 속 거실 / 알렉산드로스 크릴로프 : COMPETITION : RECENT PROJECT Gomso Salt Farm Smart Complex Center / LIM architects 곰소염전 스마트복합쉼터 / 건축
anc.masilwide.com
'Architecture Project > Cultural' 카테고리의 다른 글
| THE TREASURY MUSEUM KHONKAEN (0) | 2024.05.21 |
|---|---|
| PET RESOURCE CENTER (0) | 2024.04.30 |
| Gomso Salt Farm Smart Complex Center (0) | 2024.04.22 |
| Changsha International Conference Center (0) | 2024.04.15 |
| Shanfeng Academy (0) | 2024.04.12 |
마실와이드 | 등록번호 : 서울, 아03630 | 등록일자 : 2015년 03월 11일 | 마실와이드 | 발행ㆍ편집인 : 김명규 | 청소년보호책임자 : 최지희 | 발행소 : 서울시 마포구 월드컵로8길 45-8 1층 | 발행일자 : 매일



