
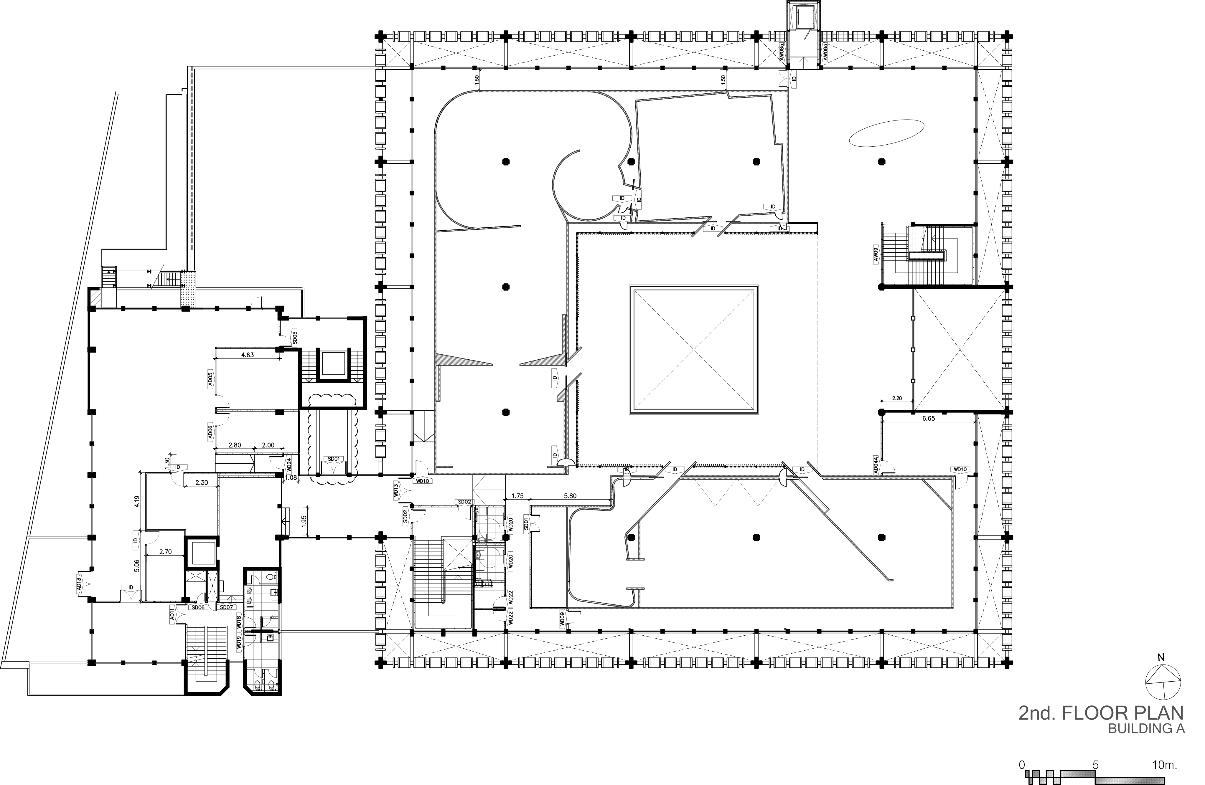
근대에 지어진 기존의 태국은행 북동부 지역 사무소는 학교, 시장, 커뮤니티 지역을 비롯해 주거 지역으로 둘러싸인 콘캔 도심에 있다. 이 건물은 와플 슬래브 지붕과 캔틸레버 바닥은 이 건물 고유의 특성으로 그리드 모듈러가 뚜렷하게 보인다. 기존의 사무실 건물과 직원 숙소, 지폐 폐기부서로 구성되어 있다. 더 뱅크(The Bank)가 새로운 곳으로 이전되고 난 후, 이 건물을 이 곳 주민들의 편의를 위한 공간으로 바꿀 예정이다.
개조 공사는 박물관, 갤러리, 다목적 파빌리온, 공원 및 사무실이 있는 The Treasury Museum Khonkaen으로 전환하여 사람들로 하여금 다양한 활동을 할 수 있도록 계획되었다. 근대의 독특한 디자인적 특성을 유지하면서 새로운 기능적 측면과 조화를 이루도록 요소들을 조정하였다.
The former Bank of Thailand Northeastern region office, built in the modern age, is located in the Khonkaen city center which surrounded by the school, market, community area and residential area. The building has its unique characteristic with waffle slab roof and cantilever floor the grid modular is obviously shown in this building. The existing consist of office building, staff residence, and demolishing bank note department. After The Bank had been moved to the new place, this building is intended to transform its function to serve people in the city.
The renovation intend to turn to be The Treasury Museum Khonkaen which consist of museum building, gallery space, multi-purpose pavilion, public park and office that can support many activities for people. The design keeps the unique character of the modern era while adjust some elements to make it match with the new function.


본관의 1층은 기존의 기능의 보안성을 높이기 위해 불투명 벽이 있었다면 이를 제거하여 더 많은 자연 채광이 건물 안으로 들어올 수 있도록 하였다. 또한, 공용 공간과 도서관을 두어 실내와 실외를 시각적으로 연결하였다. 한편, 2층은 중앙에 있던 기존 옥상정원을 메인 전시홀로 활용하고 그 위에 새 지붕을 얹었다. 새로운 큰 지붕은 간접적인 자연광이 건물 안으로 들어오도록 해주고 1층과 시각적으로 이어져 이중 볼륨 공간이 만들어진다. 박물관은 본관 2층에 있다. 보안을 위한 요소였던 철근바는 기존의 곡선 철근과 함께 같이 잔존해 있다. 두 가지 모두 이 프로젝트에서 메인 홀과 새 리프트 샤프트 덮개, 사무실 부분의 드롭오프 캐노피 천장 등 여러 장소에서 재사용되고 있다.
새로운 갤러리 공간은 직원 숙소로 사용되었던 곳이다. 작은 집을 리모델링 하면서 구조를 노출시켜 구조의 매력을 그대로 드러내며 1층은 카페로 2층은 갤러리로 만들었다. 수직 핀은 기존 건축가의 의도에 따른 부양효광 컨셉을 표현한 것이다.
The main building, on the first floor, the high opaque walls which is required high security purpose for previous function are removed to allow more natural light get into the building to serve common area and library function and provide visual link between indoor and outdoor. Meanwhile on the second floor, the previous roof garden in the middle of the building is turned to be the main hall for exhibition with the new roof on top of it. The new big roof still allows the indirect natural light get in the building as well as creates a well for double volume space to have visual link with the first floor. The museum function is on the second floor around the main hall. The steel bars element which used to be elements for security propose is a part of the existing as well as the curved steel. Both of them are reused in this project for many places such as the main hall, cover the new lift shaft or even drop-off canopy ceiling in the office part.
The new gallery space used to be the staff residence. The small house renovation is exposed the structure to show its charming characteristic make it serve café on the 1st floor and gallery on the 2nd floor. Vertical fins create conceptual form express floating effect from previous architect’s intention



아름답게 만들어진 캔틸레버 지붕 구조와 주차장 옆에 위치한 다목적 파빌리온을 새롭게 디자인 하면서 주차장을 공공 공원으로 만들고 새로운 기능과 조경 공간도 혼재하도록 하였다. 현지에서 유명한 '파카오마'(다채로운 패턴 패브릭의 무작위 그리드)와 함께 건축과 사람 사이의 직조 과정을 조경 작업의 주요 컨셉으로 선택하여 생동감 넘치고 역동성을 만들어냈다. 풍경은 직조하는 사람들에게 새로운 지평선적 관점에서 새로운 효과를 만들어낸다. 직물 풍경에 대해 생동감 있는 활동을 제공해준다.
이 프로젝트의 디자인은 지역적 특성과 독특하고 매력적인 근대적 특성을 활용하여 건물을 다시 살아나게 할 뿐만 아니라 역사적 가치를 획득하는 동시에 도시의 수 많은 새로운 활동에 따라 유용하게 사용될 수 있는 장소로 쓰일 수 있도록 하였다.
The multi-purpose pavilion which has very beautiful cantilever roof structure and sitting next to the parking area, the new design is intended to turn parking area to be public park and blend new function and landscape space together. The weaving loom concept together with ‘Pha-Khao-Mah’ (the random grid with colorful pattern fabric) the famous fabric in local is chosen to be main concept in the landscape work with weaving process intention between architecture and people, bringing the lively dynamic landscape creates new effects with new horizon perspective for those who are weaving in. It provides lively activities on the fabric landscape.
The design of this project use the local characteristic together with the unique charming modern-age character to create space for public use not only just reviving the building back to live but also gaining the historic value while providing versatile useful place for many new activities in town.


건축가 Plan architect
위치 콘캔, 태국
용도 미술관
연면적 4,917㎡
준공 2019 - 2022
대표건축가 Wara Jithpratuck
디자인팀 Wara Jithpratuck, Tearnchit Soontornsaraton, Jittinun Jithpratuck, Sitthinon Chanchaiworawit
사진작가 panoramic studio
'Architecture Project > Cultural' 카테고리의 다른 글
| Media Library Sainte-Geneviève- des-Bois (0) | 2024.05.28 |
|---|---|
| Children’s Community Centre The Playscape (0) | 2024.05.24 |
| PET RESOURCE CENTER (0) | 2024.04.30 |
| NAMHAE HWAJUN CHILDREN’S LIBRARY (0) | 2024.04.23 |
| Gomso Salt Farm Smart Complex Center (0) | 2024.04.22 |
마실와이드 | 등록번호 : 서울, 아03630 | 등록일자 : 2015년 03월 11일 | 마실와이드 | 발행ㆍ편집인 : 김명규 | 청소년보호책임자 : 최지희 | 발행소 : 서울시 마포구 월드컵로8길 45-8 1층 | 발행일자 : 매일



