
어린이 커뮤니티 센터 – 더 플레이스케이프
"균형은 없어지기 전에는 보이지 않는다."
Children’s community centre – The Playscape
“Balance is invisible until it’s lost”
요약
Brief
플레이스케이프는 베이징 북쪽에 있는 기존 산업단지 내부를 개조한 것이다. 운송 시설의 지원을 받는 1970년대에 건설된 곡물 저장 창고 단지이다. 우리 고객은 다양한 연령층의 움직임과 관련된 아동 발달을 관찰하고 지원하는 전문 의료 서비스 제공자였다.
The playscape is a refurbishment inside an existing industrial complex in the north of Beijing. A 1970’s warehouse complex for grain storage supported by a transport facility. Our client was a healthcare provider specializing in observing, and supporting children’s development relating to movement for a broad range of age groups.


콘셉트 (이웃으로 돌아가기)
Concept (Back to the Neighborhood)
우리는 현대 중국 도시에서 어린이 발달의 사라진 요소는 주로 기능하는 동네라고 믿는다. 우리는 거리 놀이의 경험을 창조하고 기계와 스크린 시간의 감소를 우선시하기를 바랐다. 과거의 대중 문화에서 영감을 끌어내고 우리의 새로운 동네의 성격에 중요한 정체성을 추상화했다. 플레이스케이프는 다음과 같은 특징을 구현했다.
i. 숨바꼭질(집단 상호작용): 자유의지는 아이의 상상력을 자극하고 집단 내에서 이러한 상호 작용을 촉진하는 데 필수적이다.
ii. 모험 놀이터 (위험): 균형은 우리가 그것을 잃을 때까지 보이지 않으며, 아이들은 그들이 경험하기 편하게 느끼는 수준의 위험을 결정한다.
iii. 구석과 틈(신체 비율): 구석에 있는 어린이들이 인체 공학을 탐구하고 이해할 수 있도록 공간이 설계되었다.
iv. 미로(발견): 보이지 않는 장소를 탐색하여 그 모습을 드러내야 하며, 가장 효율적이거나 직접적인 경로가 항상 가장 즐거운 것은 아니다.
v. 환상: (상상) 풍경은 도상학을 제거함으로써 추상화되고 사고 기반 시나리오에서 유연성을 허용한다.
플레이스케이프는 아이들이 균형(균형)과 고유 지각(인식)과 관련된 감각을 꿈꾸고 발달시킬 수 있도록 내러티브 창작을 가능하게 하면서 학습을 촉진하는 도구이다. 균형은 도전을 받을 때까지 당연한 것으로 간주된다. 활동을 통해 이 구축된 환경에 대한 정서적 반응과 그 인식을 활용하는 것이 우리의 희망이다. 아동의 발달에서 조정력을 강화하는 데 도움이 되는 의뢰인의 도구를 강화할 수 있다.
We believe the missing element of a child’s development in a modern Chinese city is chiefly a functioning neighborhood. We hoped to create the experience of street play and prioritize the reduction for gizmos and screen time. Drawing inspiration from popular culture of the past and abstracting important identities for our new neighborhood’s character. The playscape embodied the following traits;
i. Hide and seek (Group interaction): Free-will is vital to engage a child’s imagination and promoting this interaction within a group.
ii. Adventure playground (Risk): Balance is invisible until we lose it, children decide what level of risk they feel comfortable to experience.
iii. Nook and Cranny (Body Proportion): Spaces are designed for children with nooks to explore and understand ergonomics.
iv. Maze (Discovery): Places out of sight need to be explored to reveal themselves, the most efficient or direct route is not always the most enjoyable.
v. Fantasy: (Imagination) The landscape is abstracted by removing iconography and allow flexibility in thought based scenarios.
The playscape is a tool to promote learning while allowing narrative creation for children to dream and develop senses relating to equilibrium (balance) and proprioception (awareness). Balance is taken for granted until it is challenged. It is our hope that activity based emotional responses to this built environment and the perceptions harnessed. Can augment the client’s tools in helping strengthen co-ordination within the child’s development.



건축 장치
The Architecture devices
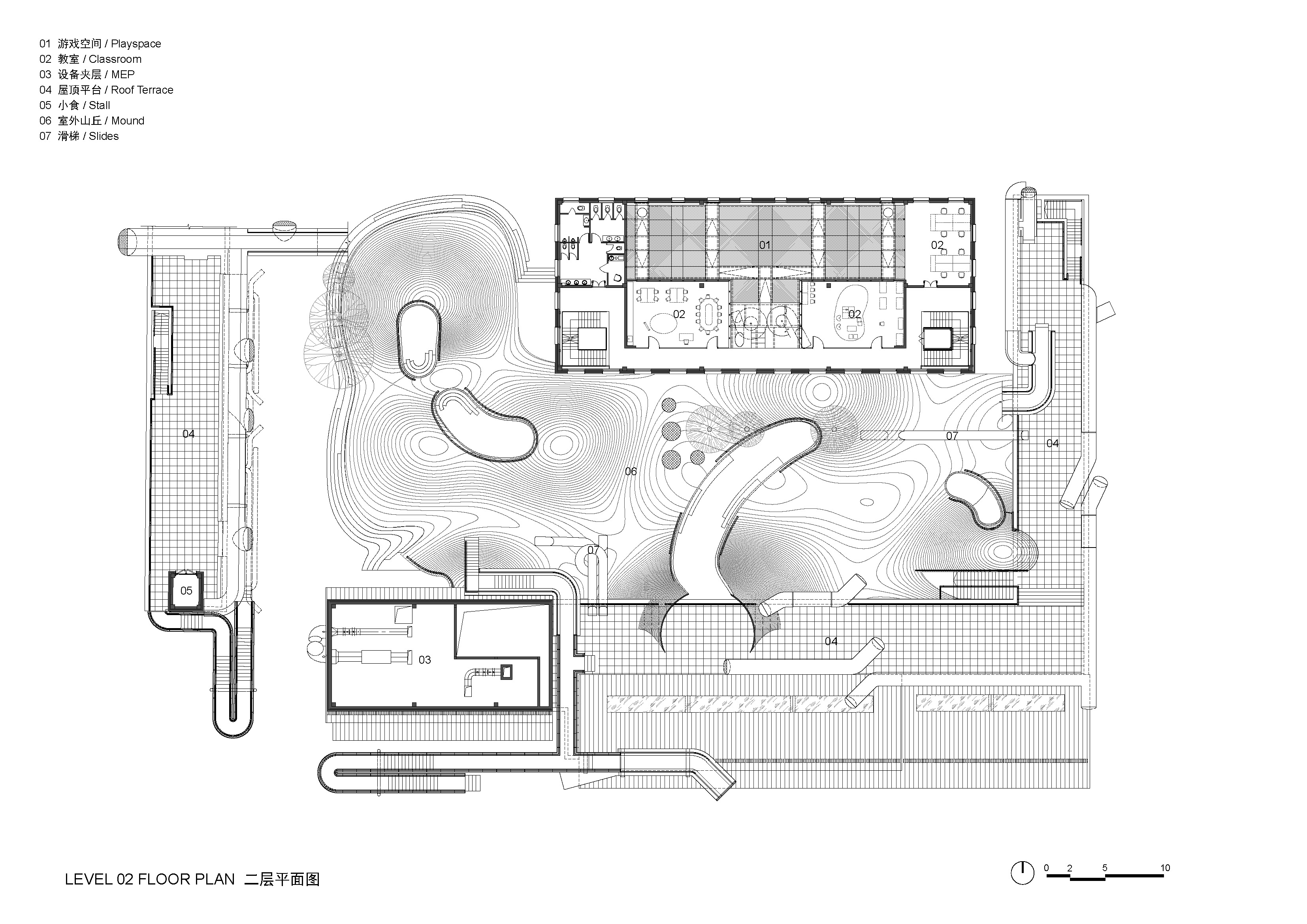
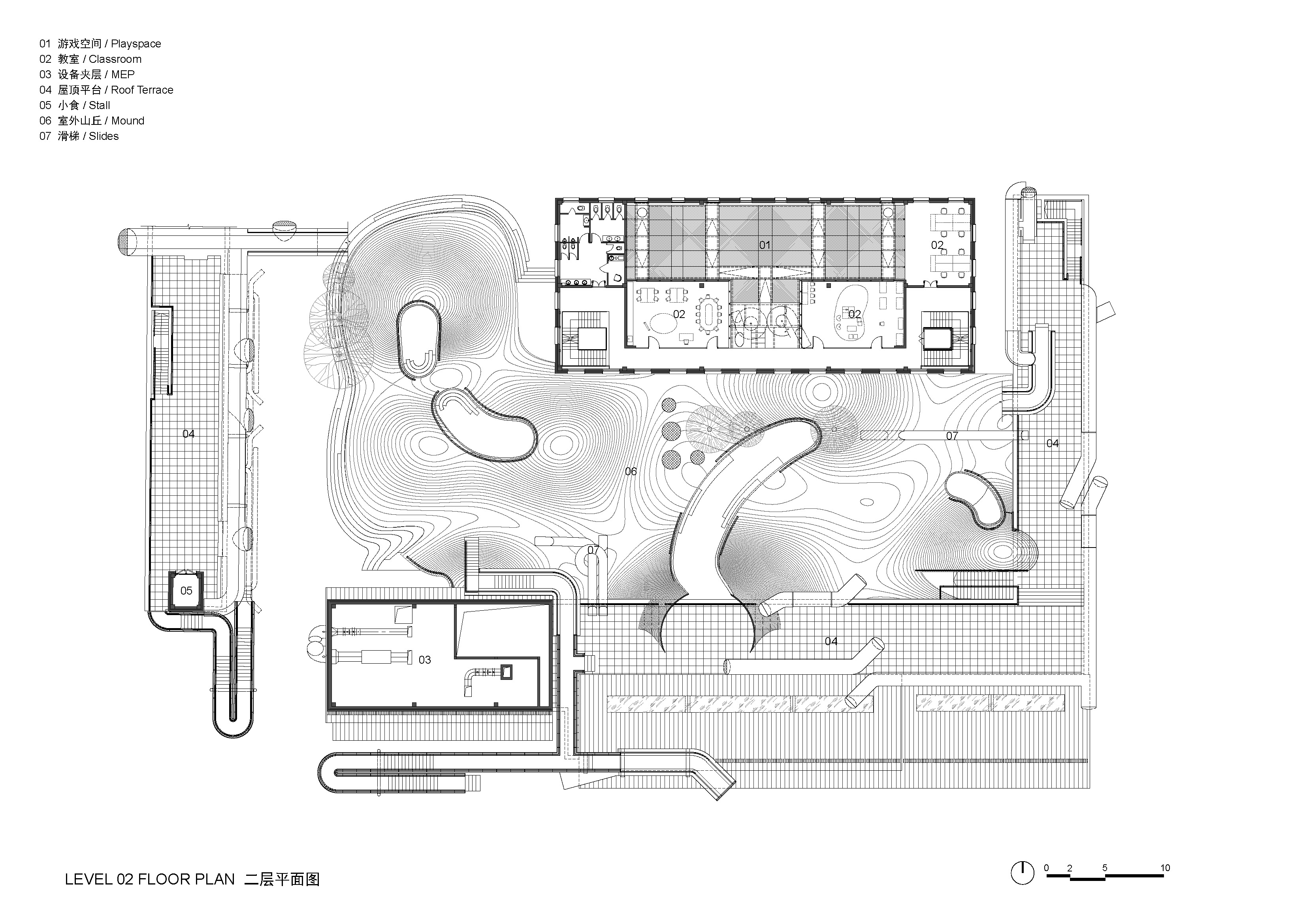
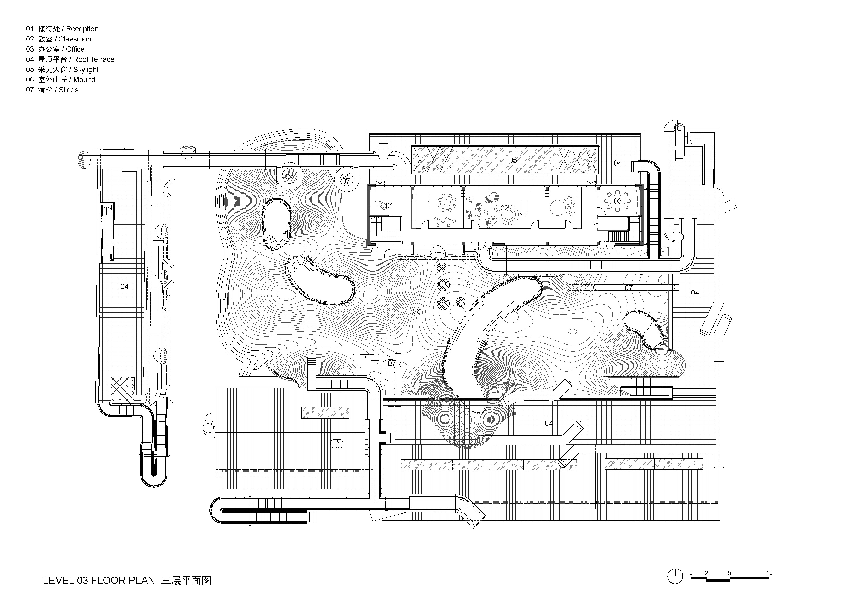
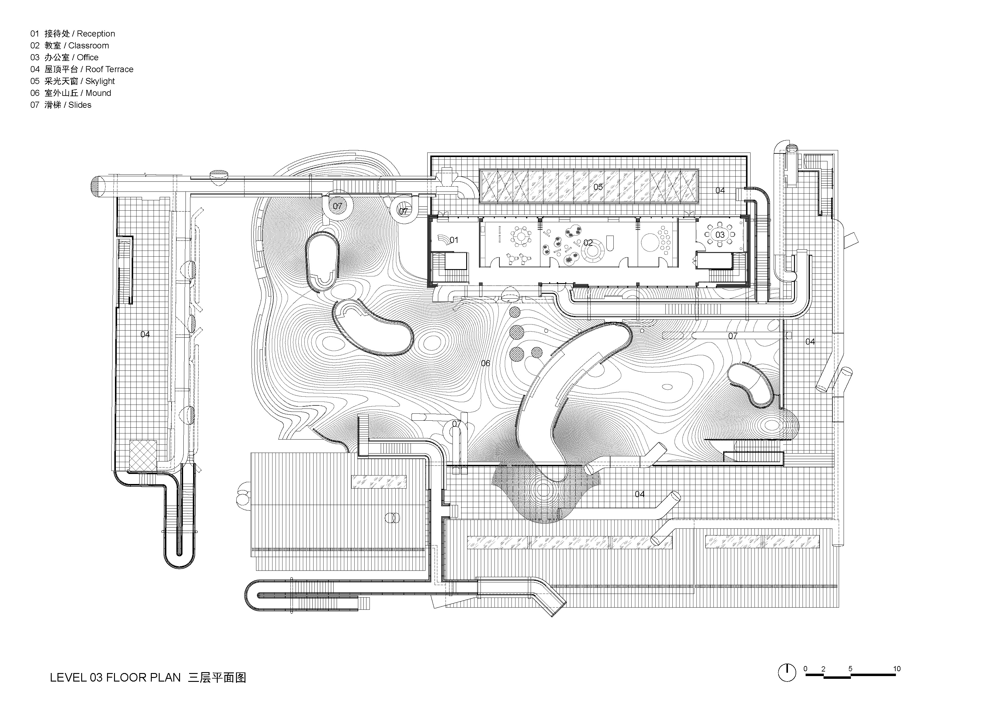
세 가지 주요 건축적 개입은 놀이의 주제를 콘셉트에 포함시켰다.
1. 파이프: 고유 인식(신체 인식)을 테스트하기 위해 더 작은 구석에 초점을 맞췄다. 이 골조는 일련의 연결 다리와 계단으로 배열된다. 지름 2.3m(보도) 1.7m(계단) 1.3m(안전 난간) 0.8m(슬라이드) 0.4m(외부 조명) 등 5개의 눈금을 관찰할 수 있다.
2. 지붕: 무대 세트와 그 가능성을 내려보는 높은 지점을 제시하고 아이들에게 독특한 경로를 수용할 수 있는 선택의 여지를 제공한다. 전체 루프를 만들 수 있고 아이들은 테라스에서 7m에서 4.3m 높이까지 슬라이드를 통해 마운드 아래를 이동할 수 있다. 네트워크는 목표에 대한 대안적인 방향을 알려주며, 때로는 두 번째로 짧은 경로가 더 재미있다.
3. 마운드: 균형(Balance)과 의사 결정의 자유와 관련된 감각 발달을 향상한다.마운드를 통해 아이들은 탐험을 하고, 다양한 속도의 경사를 초월하여 위험과 편안함을 결정할 수 있다. 지형 아래의 영역을 활용하여 추가적인 놀이 공간을 만들었다. 테라스 층에서 여러 틈 또는 미끄럼틀을 통해 접근할 수 있다.
Three main architectural interventions embedded the themes of play from the concept.
1. Pipe: Focuses on smaller Nook’s to test proprioception (body awareness). These armatures are arranged as a series of connecting bridges and staircases. Five diameter scales can be observed; 2.3m (Walkways) 1.7m (Staircases) 1.3m (Safety Balustrade) 0.8m (Slides) 0.4m (External Lighting).
2. Roof: Presents a high point to overview the stage set and its possibilities and poses a choice to children to embrace unorthodox routes. A full loop can be made and children can travel from the terrace and transcend under the mound through slides which vary in height from 7m to 4.3m. The network impresses upon them alternative directions to goals, sometimes the second shortest route is more fun.
3. Mound: Enhances development in senses relating to equilibrium (Balance) and freedom of decision making. The mounds allow children to explore and decide on their comfort in regards to risk and by transcending a variety of inclines at speed. Additional area of covered play was created by harnessing area under the topography. Access to which can be gained through a number of cuts or slides from the terrace level.

프로그램
Program
그 빌딩 단지는 안뜰을 둘러싸고 있는 기존의 창고들의 클러스터에 의해 형성된다. 공공 도로는 지붕 테라스를 연결하기 위해 공중 다리를 사용하여 연결된 남쪽 빌딩을 단절시킨다. 인접한 유치원으로 가는 프라이빗한 경로에 대한 접근성과 인접한 공공 공원으로 들어갈 수 있는 선택권을 제공한다.
기존 클러스터는 3개의 내부 놀이 공간을 제공한다. 플레이스페이스 1은 약간 경사가 진 6m의 단층 볼륨이다. 2~4세 아이들에게 매달린 천이 있는 기어 다니는 공간으로 사용된다. 또한 레스토랑과 도서관이 있는 아기를 위한 부드러운 공간 지형도 특징이다. 플레이스페이스 2는 수직으로 3개의 층으로 구분된다. 지하 인터랙티브 환경, 가파른 오르막 지형을 포함한 4세 이상을 위한 계층형 환경과 현수식 인장망이 모두 미끄럼틀로 연결되어 있다. 추가적으로 지도나 학습은 총 6개의 다기능 교실이 있는 2,3층에서 이루어질 수 있다. 하나의 미끄럼틀이 교실에서 수직으로 7m 떨어진 1층으로 연결된다. 사우스 빌딩은 도로에 인접한 안뜰과 공원 전망을 놓고 경쟁한다. 모든 건물은 부모의 자녀 관찰을 용이하게 하는 고리형 지붕 테라스를 갖추고 있으며, 계단식 바를 포함한 부모 전용 편의 시설을 이용할 수 있다.
The building complex is formed by a cluster of existing warehouses encircling a courtyard. A public street disconnects the south building which is re-connected by the use of an aerial bridge to link the roof terraces. Access also provides a private route to an adjoining Kindergarten, and an option to enter the adjacent public park.
The existing cluster provides for 3 internal play spaces. Playspace 1 is a single level low pitched 6m volume. Used for 2-4 year olds as a crawlspace with hanging fabrics. Features also include a soft space topography for babies supplemented with a restaurant and library. Playspace 2 is divided vertically into three levels. A tiered environment for ages over 4 including a subterranean interactive environment, a steep climbing topography, with a suspended tensile Net all connected with slides. Additional directed learning can be found on level 2 and 3 with a total of 6 Multifunctional Classroom’s. A single slide connects vertically 7m from the classroom to level 1. The South Building competes the courtyard adjacent to the road with views into a public park. All buildings have a looped roof terrace easing parents observation of children, while being able to access parent specific amenities including a terraced bar.

마무리
Wrap up
아이들은 종종 의사 결정 시나리오에 소극적이다. 놀이는 대체로 그들 자신이 통제할 수 있는 유일한 기간이다. 디자인 포커스는 감각 학습을 위한 도구를 만들기 위해 축척을 왜곡하고 움직임 순서를 조작하는 도심 주거의 사라진 요소들을 다루는 것이었다. 프로젝트의 도상학이 활동에 관한 것이며 어느 정도의 위험을 수용하는 경우 우리는 아이들이 자신의 모험의 한계로 여기는 것을 상상하고 느끼도록 유도하기를 바란다.
"놀이에서는 최종 결과물을 예측할 수 없다. 당신은 판단을 보류할 수 있다. 한 문제에 대한 해결책은 종종 다른 일련의 문제에 대한 가능성을 촉발한다… 당신이 실제로 거기에 있지 않았다면, 당신이 실제로 보는 어떤 건축물에서 당신이 그 정도 규모에서 예상할 수 없었던 연관성을 볼 수 있다. “ 리차드 세라
Children are often passive in decision making scenarios. Play is often the only period under their own control. The Design Focus was to address the missing elements of inner city dwelling, distorting scales, manipulating movement sequences to build a tool for sensory learning. Where the iconography of the project becomes about the activity and embracing a degree of risk we hope to nudge children to imagine and feel what they see as the limits to their own adventure.
“In Play you don’t foresee an end product. It allows you to suspend judgment. Often the solution to one problem sparks a possibility for another set of problems... In the actual building of something you see connections you could not possibly have foreseen on that scale, unless you were physically there” Richard Serra










건축가 waa (we architech anonymous)
위치 베이징, 중국
용도 놀이시설
대지면적 3921.26㎡
준공 2018 - 2021
대표건축가 Di Zhang, Jack Young
인테리어 waa (we architech anonymous)
디자인팀 Minghui Huo, Yuqing Feng, Min Wang, Jing Zhu, Mengbo Cao, Hualin Yang, Weiya Li, Qiwen Cao, Heff Jin
사진작가 Tian FangFang
'Architecture Project > Cultural' 카테고리의 다른 글
| Revitalization of Old Glassworks (0) | 2024.05.29 |
|---|---|
| Media Library Sainte-Geneviève- des-Bois (0) | 2024.05.28 |
| THE TREASURY MUSEUM KHONKAEN (0) | 2024.05.21 |
| PET RESOURCE CENTER (0) | 2024.04.30 |
| NAMHAE HWAJUN CHILDREN’S LIBRARY (0) | 2024.04.23 |
마실와이드 | 등록번호 : 서울, 아03630 | 등록일자 : 2015년 03월 11일 | 마실와이드 | 발행ㆍ편집인 : 김명규 | 청소년보호책임자 : 최지희 | 발행소 : 서울시 마포구 월드컵로8길 45-8 1층 | 발행일자 : 매일



