
세곡동은 강남구에 속해 있지만 아담한 크기와 목가적인 풍경으로 사람의 마음을 편안하게 해 주는 매력을 가지고 있는 마을이다. 그리 세곡동 다가구주택이 자리 잡은 대지는 서측의 6m 도로를 따라 남북 방향으로 약 1.9m의 경사를 가지고 있다. 이곳에 총 다섯 가구가 살 수 있는 공간을 만들며, 음악을 사랑하는 건축주가 지인들과 함께 모임을 할 수 있는 공간과 임대 가구가 거주할 공간을 계획해야 했다. 건축가는 거주 공간을 수직으로 분리하고 임대 가구를 입체적으로 배치하며 프라이버시를 확보했다.
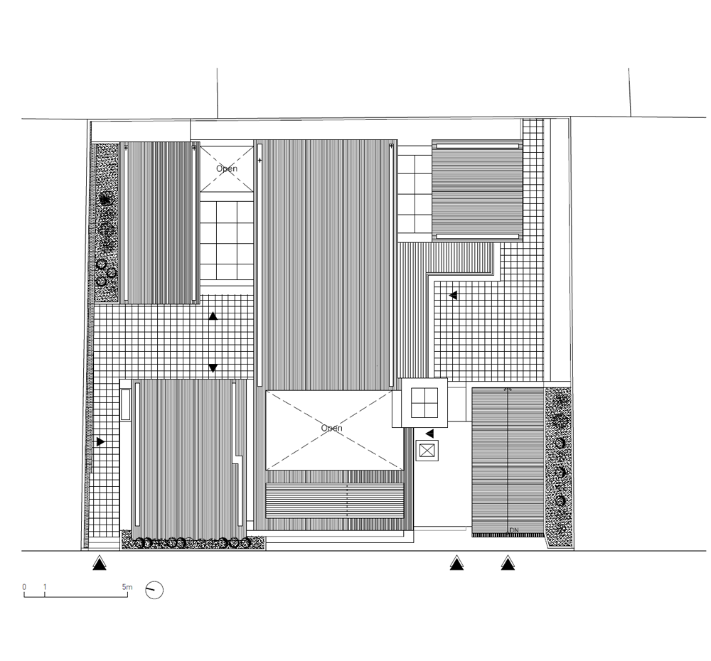
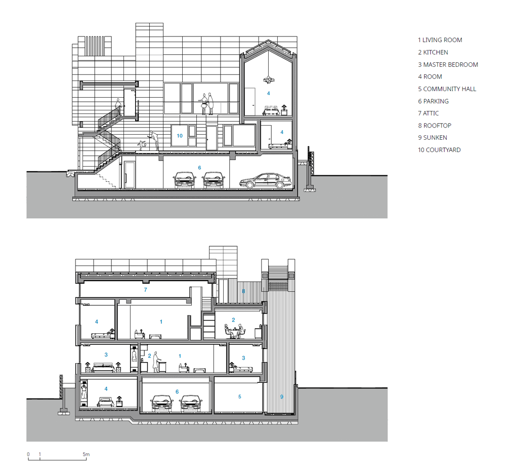
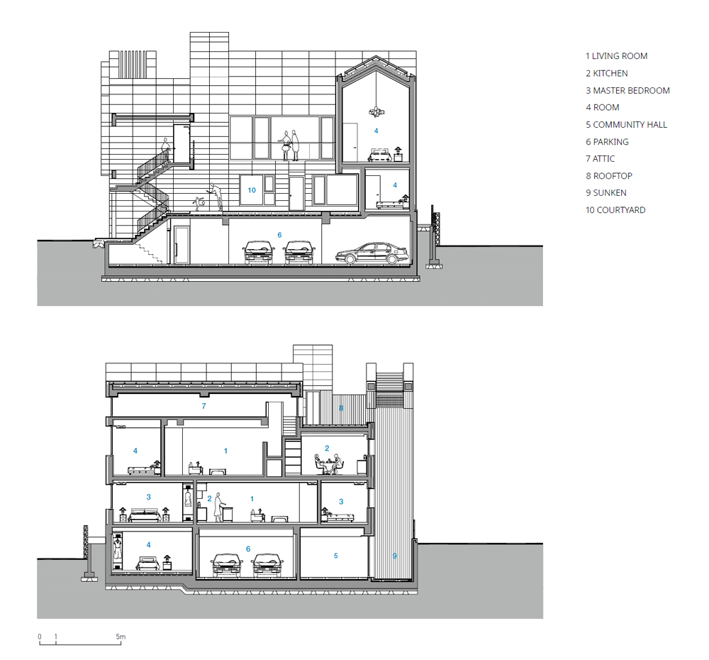
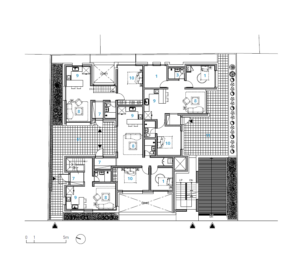
전체적인 건축물의 윤곽선은 중정의 삽입에 따라 일차적으로 분절된다. 이러한 매스의 변화는 다섯 개의 박공지붕을 만나면서 독립된 집이 모인 마을과 같은 풍경을 완성했다. 각각의 다섯 가구는 개별 외부 공간을 통해 독립적으로 진입할 수 있다. 서로 다른 크기와 모양의 박공은 네 개의 내부 공간, 한 개의 외부 공간을 만들며 다양한 역할을 수행한다. 건축가는 외부 마감 재료로 화강석과 천연 목재 루버의 두 가지 재료를 사용했다. 마천석의 차분한 톤이 고급스러운 느낌의 베이스를 형성하고 밝은 구리록과 대비를 이루며 매스의 변화를 효과적으로 드러낸다. 외벽에 적용된 이페 루버는 강한 형태의 건축물에 목재 특유의 질감으로 따뜻하고 부드러운 느낌의 포인트를 제공한다.
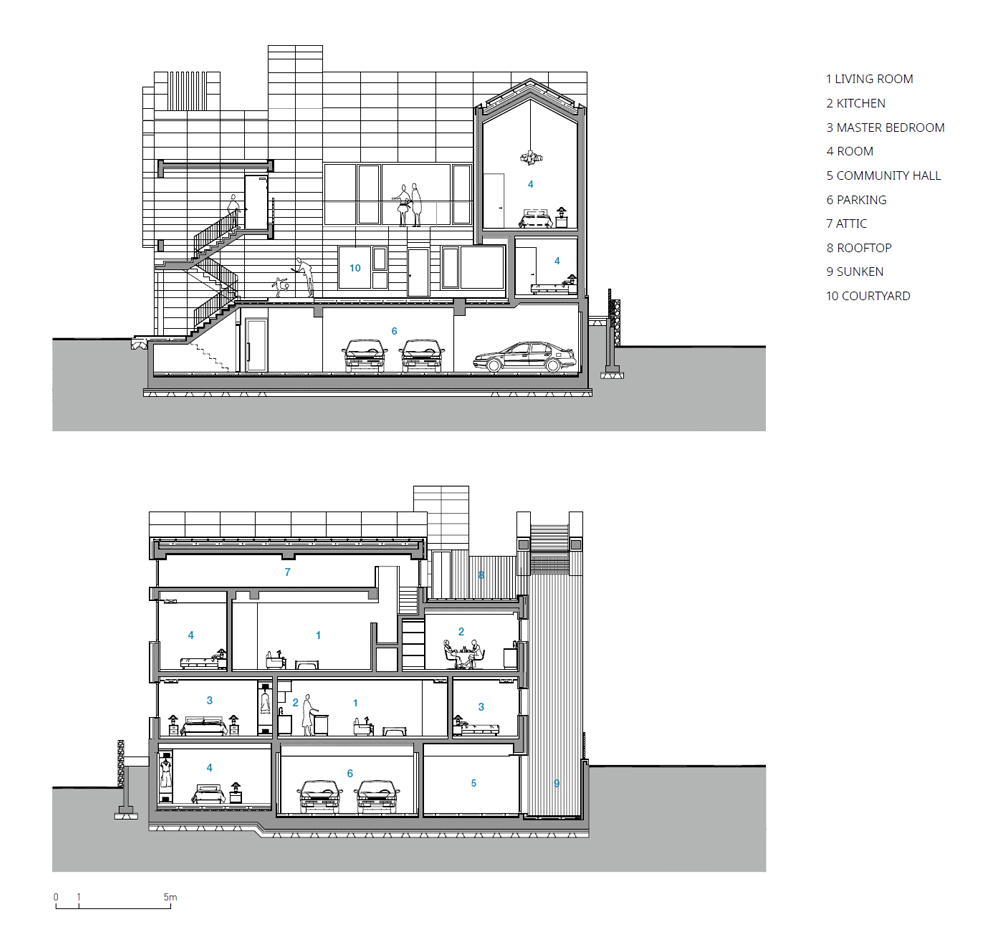
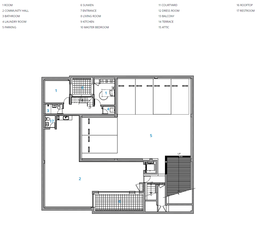
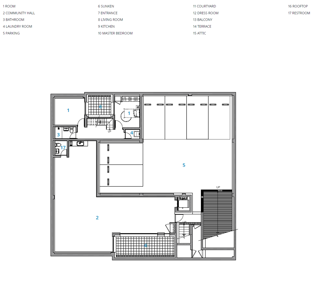
세부 평면 계획은 각 공간이 주어진 면적에서 최적의 활용성을 가질 수 있는 비례를 찾아내는 것으로부터 시작하였다. 건축가는 동선의 흐름에서 시선이 멈추는 곳, 주요 공간이 마주하는 곳에서는 조경, 정원, 작은 야산으로 열린 뷰를 확보하는 데 중점을 두었다. 개인 마당과 테라스, 선큰 정원, 다락 등의 특화 공간은 주거 생활에서 서로 다른 색채의 풍부함을 제공한다. 건축주의 공간은 개방감을 중요하게 고려했다. 거실은 7.2m의 대형 파노라믹 창문이 정원으로 열린 개방감을 제공한다. 또, 소모임을 즐기는 건축주의 라이프스타일을 위한 동선을 고려하며 지하 주차장에서 주방을 거쳐 루프톱까지 연결되는 엘리베이터를 계획했다. 이는 각종 모임 시 외부인의 동선을 일상생활과 분리함과 동시에 주방에서 루프톱까지 필요한 지원을 하는 데 어려움이 없도록 한다.

















건축가 숨21 건축사사무소
위치 서울특별시 강남구 세곡동
용도 다가구주택
대지면적 506.00㎡
건축면적 251.00㎡
연면적 753.56㎡
규모 지하 1층, 지상 2층
건폐율 49.60%
용적률 78.52%
설계기간 2021. 2. - 9.
시공기간 2021. 9. - 2023. 5.
준공 2023. 6.
대표건축가 이종은
프로젝트건축가 이종은
구조엔지니어 태경구조 이엔지
기계엔지니어 (주)라인이엔씨
전기엔지니어 (주)라인이엔씨
시공 주식회사 더유니드이엔씨
사진작가 박영채, 이종은, 정선우
해당 프로젝트는 건축문화 2023년 12월호(Vol. 511)에 게재되었습니다.
The project was published in the December, 2023 recent projects of the magazine(Vol. 511).
December 2023 : vol. 511
Contents : Records Imaginative Architect’s Drawing Exhibition, Moon Hoon 상상을 짓는 건축가의 그림 전시, 문훈 Waiting for the Light Within Seoul’s Underground World, Realization of Dominique Perrault’s ‘Lightwalk’ 서울 지하 세
anc.masilwide.com
'Architecture Project > Multifamily' 카테고리의 다른 글
| Giyeon-ga (0) | 2024.02.27 |
|---|---|
| Sans Walls Chuncheon (0) | 2024.02.22 |
| For Young Adults: Housing with Deep Yard (0) | 2024.02.15 |
| Vortex (0) | 2024.02.01 |
| RED FORTRESS (0) | 2024.01.31 |
마실와이드 | 등록번호 : 서울, 아03630 | 등록일자 : 2015년 03월 11일 | 마실와이드 | 발행ㆍ편집인 : 김명규 | 청소년보호책임자 : 최지희 | 발행소 : 서울시 마포구 월드컵로8길 45-8 1층 | 발행일자 : 매일


