
청년들을 위한 ‘마당 깊은 집’은 서울주택도시공사(SH)의 빈집 활용 사업으로 진행된 1인 가구를 위한 임대 주택 프로젝트다. 각종 개발 사업과 노후화된 주택이 공존하는 도시 속에서, 현대의 가족 구성의 변화에 따른 1인 가구라는 새로운 유형의 거주자를 위한 집은 어떻게 마련될 수 있을까. 급변하는 사회와 혼란의 경계, 그 어디쯤에서 간극을 메우는 작업이 꾸준히 변화를 만들고 있다. 건축가는 변화하는 도시와 사회 구조 속 주거의 형태와 의미에 대해 고민하고 새로운 제안을 탐색했다. 원룸이라 불리는 정형화된 구조를 개선하고, 가구 간 물리적, 심리적 거리에서 느슨한 친밀감을 형성하는 것이 이에 대한 해법이었다.
프로젝트가 위치한 대지는 북서 측의 4m 도로에 접하며, 인접한 세 면은 주택으로 둘러싸여 있어 충분한 일조와 전망을 기대하기는 어려웠다. 여기에 정해진 기준의 규모 내에서 여섯 가구의 평면 계획, 가구 간의 적절한 거리 유지, 느슨한 친밀감의 공유라는 개념을 실현해야 했다. 건축가는 이를 실현하기 위해 하늘 위로 열린, 깊은 마당을 가진 중정형의 필로티 건물을 구상했다. 건물의 외벽에는 주택가의 풍경에 부담 없이 스며들 수 있는 점토 벽돌을, 내부 중정은 공간의 크기와 개방감을 고려하여 백색의 스터코를 마감으로 사용했다.
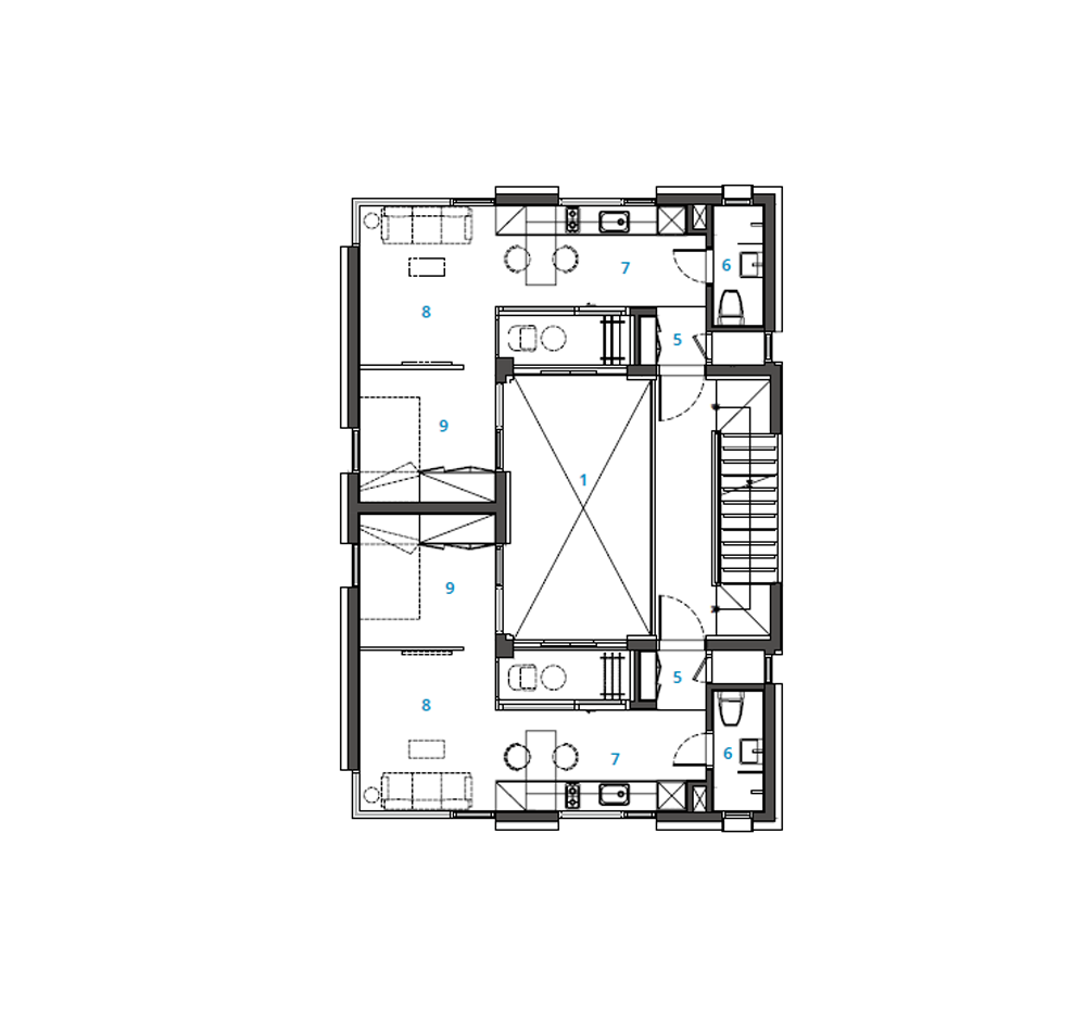
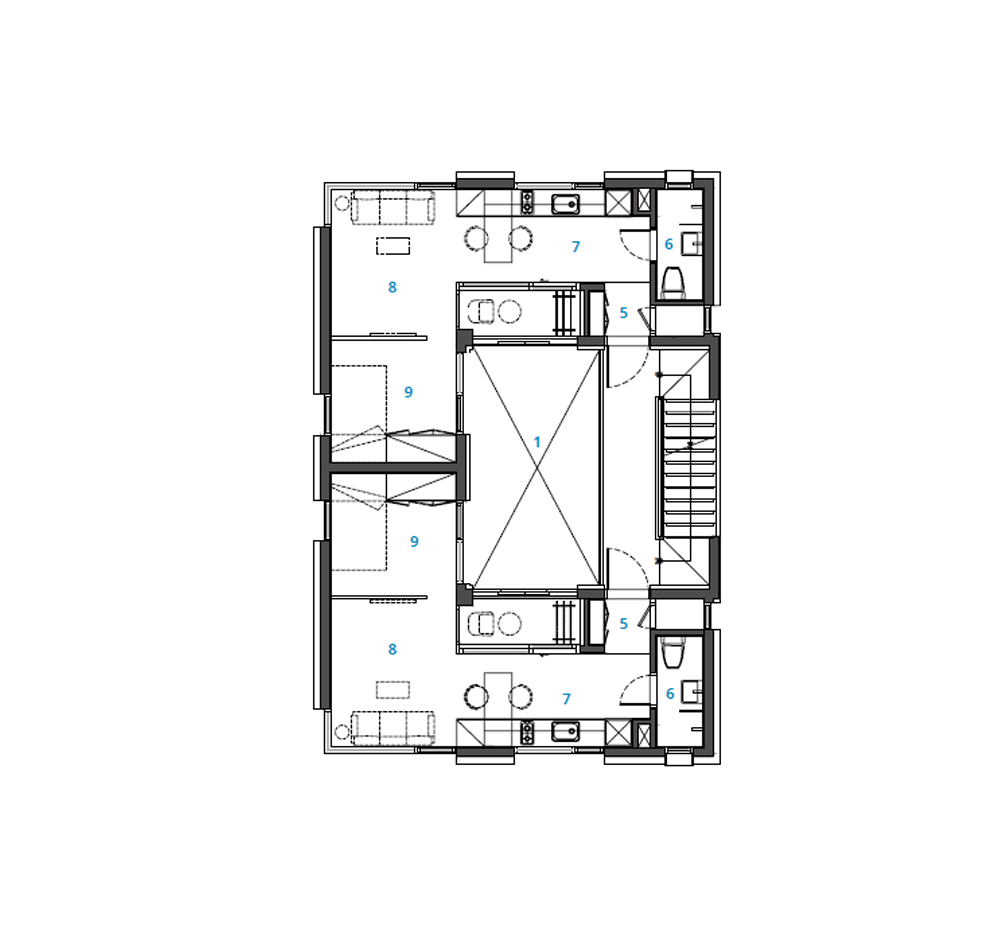
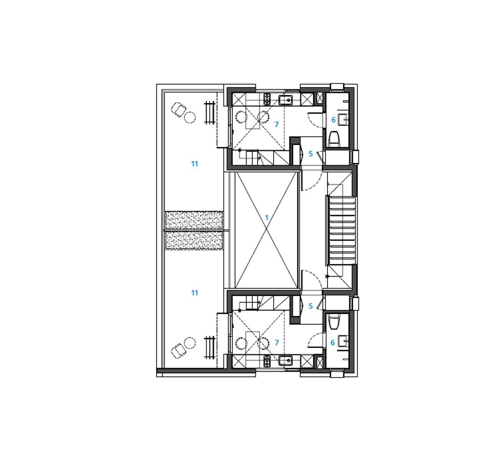
단위 가구는 각각 ‘ㄱ’ 자, ‘ㄴ’ 자 형의 평면을 가지며, 층마다 비워진 마당을 사이에 두고 적절한 거리를 유지하고 있다. 쾌적한 주거 생활을 위해서는 각각 공간의 기능별로 적절히 분리하고 서비스 공간을 확보해야 한다. ‘마당 깊은 집’은 단위 가구 사이에서 거실을 중심으로 주방과 침실을 각각 분리했다. 침실과 거실 사이를 나누는 유리 파티션은 개방감을 유지하면서 수면 공간을 물리적으로 분리하는 기능을 한다. 주방에 면한 중정의 발코니는 집 안에서도 외기를 접하며 휴식을 취할 기회를 만든다. 발코니에는 알루미늄 루버 덧창이 설치되어 창을 여닫는 정도에 따라 가구 간 직접적으로 시선이 마주치는 부담을 덜어 준다.
1층의 로비 전면에는 이웃 간 담소를 나누고 쉬어 갈 수 있는 바 테이블, 벤치, 화단을 배치하고, 내부 마당에는 단풍나무를 식재했다. 건축가는 이를 통해 이웃 간 담소를 나누고 쉬어 가는 공간을 마련하고자 했다. 거주자들은 중정 벤치에 앉아 짧은 휴식을 취하고 하늘을 올려다볼 여유를 가지게 된다. 이 집에 함께 사는 이웃들은 같은 시간, 같은 장소에서 마주하지 않더라도 느슨한 친밀감을 느낄 수 있을 것이다.













건축가 스튜디오메조 건축사사무소
위치 서울시 은평구 신사동
용도 다가구주택
대지면적 152.00㎡
건축면적 87.05㎡
연면적 222.98㎡
규모 지상 4층
건폐율 57.27%
용적률 145.38%
설계기간 2020. 7. - 2021. 3.
시공기간 2021. 9. - 2023. 1.
준공 2023. 1.
대표건축가 김태영
프로젝트건축가 김태영
디자인팀 이수진
구조엔지니어 해밀이앤씨
기계엔지니어 정연엔지니어링
전기엔지니어 정연엔지니어링
시공 계산엔지니어링
사진작가 정광식
해당 프로젝트는 건축문화 2023년 12월호(Vol. 511)에 게재되었습니다.
The project was published in the December, 2023 recent projects of the magazine(Vol. 511).
December 2023 : vol. 511
Contents : Records Imaginative Architect’s Drawing Exhibition, Moon Hoon 상상을 짓는 건축가의 그림 전시, 문훈 Waiting for the Light Within Seoul’s Underground World, Realization of Dominique Perrault’s ‘Lightwalk’ 서울 지하 세
anc.masilwide.com
'Architecture Project > Multifamily' 카테고리의 다른 글
| Sans Walls Chuncheon (0) | 2024.02.22 |
|---|---|
| GREE Multi-family Housing (0) | 2024.02.16 |
| Vortex (0) | 2024.02.01 |
| RED FORTRESS (0) | 2024.01.31 |
| BORGO HERMADA (0) | 2024.01.12 |
마실와이드 | 등록번호 : 서울, 아03630 | 등록일자 : 2015년 03월 11일 | 마실와이드 | 발행ㆍ편집인 : 김명규 | 청소년보호책임자 : 최지희 | 발행소 : 서울시 마포구 월드컵로8길 45-8 1층 | 발행일자 : 매일



