
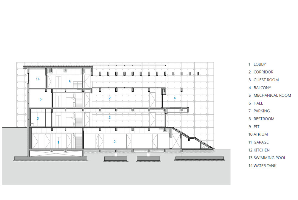
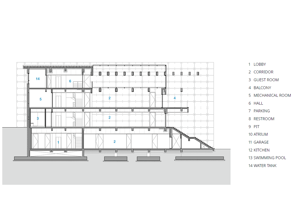
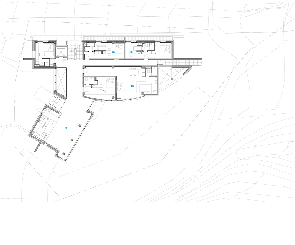
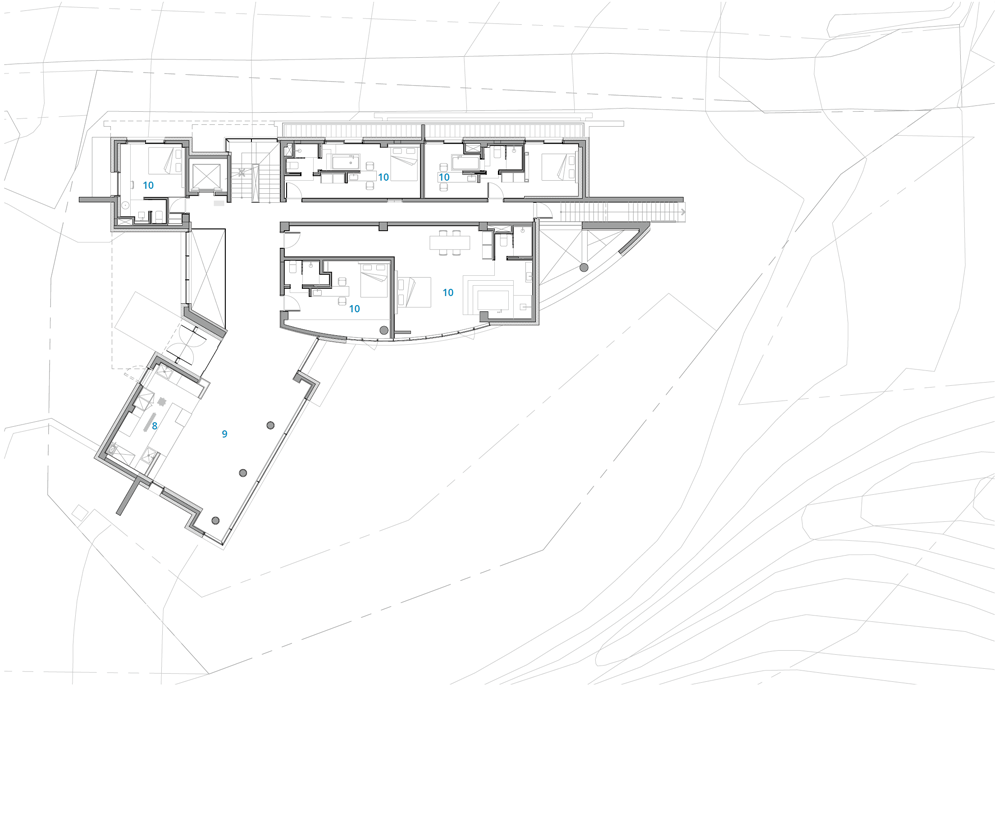
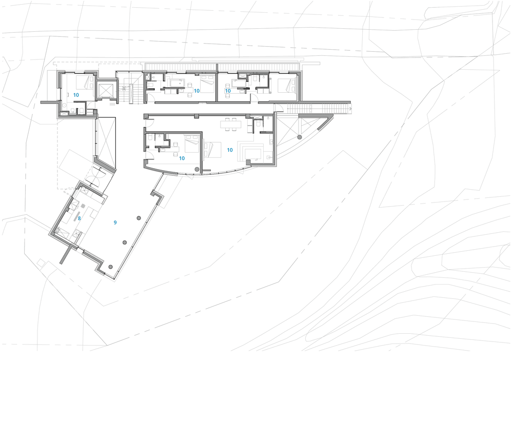
산스월스 춘천은 춘천 서면에 있는 연수원을 아홉 개의 객실을 가진 소규모의 호텔로 리모델링한 프로젝트다. 서면의 끝자락, 계곡 시작점 부근에 산스윌스는 과감하고 힘 있는 콘크리트 벽면으로 외부와 경계를 짓되, 내부에서는 다각도와 다형상의 볼륨으로 자연을 담대하게 마주한다. 벽의 뒤편으로는 계곡으로 둘러싸인 내부 마당과 공간감을 가지고 있다. 현장 주변을 둘러싼 잘 자란 소나무들이 공간 구분을 더해, 분리된 자연환경 속에서 휴식을 맞이할 수 있는 건축물이다. 건축주는 여러 개, 작은 방들을 합쳐 큰 객실을 구성하되 각 객실 별로 면한 주변 환경을 오롯이 즐길 수 있도록 구성하기를 원했다. 계곡을 면한 공간은 창을 통해 자연을 바라보며 느리게 자연을 감상하도록 구성했다. 반대편의 객실에서 보이는 원경들은 휴식의 좋은 배경이 된다. 깊은 계곡을 따라 잠시 다른 차원으로 차단되어 단순화되고 늘어진 휴식을 취할 수 있는 공간이 펼쳐진다.
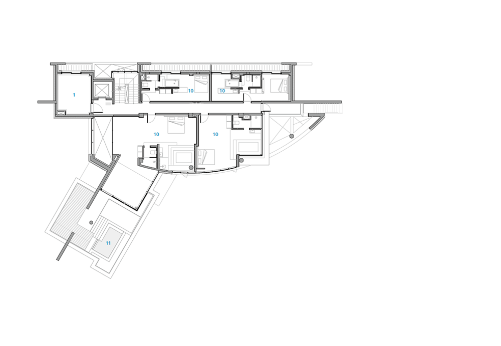
공사 동안 사계절이 흘렀다. 바람에 흔들리는 숲의 풍경이 펼쳐지는 시간도 있었고, 물안개가 펼쳐지는 날도 있었다. 멀고 가까운 산들이 하얀 설경으로 뒤덮이기도 하고, 여름에는 언제나 물소리가 들리는 풍광을 보여주기도 했다. 둘러싼 환경에서 평소에 느끼지 못한 일조 변화와 계절이 주는 분위기에 집중하게끔 일관되고 정제된 방향으로 리모델링 계획은 진행되었다. 콘크리트 사이를 채우고 있는 볼륨들은 본래의 볼륨감을 최대한 느낄 수 있도록 쪼개어진 입면들을 단순화된 형태로 조정하고, 통일된 재료로 변경하였다. 회색의 콘크리트 물성과 대비되면서도 숲속에서 자연감을 느낄 수 있는 색이 설정되도록 많은 고민도 있었다. 회색의 뼈대와 ‘헌터 그린(Hunter Green)’의 근육이 교차하여 다양한 입면감을 줄 수 있도록 구성되었다. 녹색은 숲과 자연성이라는 함의를 내포하기도 하지만, 기존 콘크리트와 대비된 물성을 보여주는 색이기도 하다. 모노 톤으로 구현된 다형상의 볼륨들은 시간과 계절의 변화에 따라 다양한 형태감을 보여준다. 대지에서 태양은 계곡면의 높은 산 위로 몇 시간 떠올랐다가 이내 반대편의 콘크리트 면을 비추게 되는데 이 시간 동안 곡면과 육면체들은 서로 그림자를 주고받으며 변모하는 입면을 보여준다. 객실마다 온전한 뷰를 가진 욕조와 침실이 배열되어 다양한 경험을 할 수 있다. SUITE 객실들은 내부 마당과 계곡 면의 숲을 마주하며 오롯이 휴양 하는 공간이다. 특히, 3층 SUITE 객실의 외부는 작은 수영장과 테라스 공간을 통해 적극적으로 자연과 마주하게끔 구성됐다. 1층에서 3층을 관통하는 보이드는 내부 마당과 계곡면을 바라보는 하나의 큰 프레임으로 구성했다. 계단을 따라 옥상에 들어서면 천창에서 내리는 빛들은 콘크리트 구조체와 녹색의 구조체를 따라 변화하는 그림자를 보여준다. 여기에서는 주변의 작은 풍경들은 모두 가려지고, 원경의 산과 숲들로 둘러 싸인 수영장에서 휴식을 취할 수 있다. 주변의 환경과 더불어 객실 내에서 멀고 가까운 자연을 단순하고 천천히 즐기는 공간이 되어, 이곳을 찾는 이들이 짧은 시간이라도 내면에 집중하는 시간을 보내길 바란다.

Sans Walls Chuncheon is a project that remodeled a training center in Seomyeon, Chuncheon into a small hotel with nine rooms. At the end of Seomyeon, near the beginning of the valley, a bold and powerful concrete wall borders Sans Walls from the outside, while inside it boldly faces nature with multi-angled and multi-shaped volumes. Behind the wall is an internal courtyard surrounded by a valley and a sense of space. The mature pine trees surrounding the site add to the spatial division, making it a building where one can relax in an isolated natural environment. The client wanted to combine several small rooms to form a large room, where each room has access to fully enjoy the surrounding environment. The space facing the valley was designed to allow guests to look out through the windows and appreciate nature at a slow pace. The views from the rooms on the other side provide a nice backdrop for relaxation. The deep valley temporarily locks the guest in another dimension, creating a simplified, stretched-out space for unwinding.
The construction went on for four seasons. There were times when the forest swayed in the wind, and other days when the site was covered in wet fog. The mountains near and far were sometimes covered in snow, and in summer, the sound of water could always be heard. The remodeling plan was carried out in a consistent and refined direction to focus on changes in sunlight and seasonal moods that were not normally felt in the surrounding environment. For the volumes filling the space between the concrete, the split facades were adjusted to a simplified form to maximize the original sense of volume, and changed to a unified material. A lot of thought was also put into choosing a color that would contrast with the gray concrete material but also feel natural in the forest. The gray framework and ‘Hunter Green’ muscles intersect to create a variety of elevations. Green has connotations of forest and nature, and it is also a color that contrasts to the physical properties of concrete. The polymorphic volumes, realized in monochromatic tones, show a sense of form that changes with the passage of time and the seasons. On the site, the sun rises for a few hours over the high mountains above the valley, and then illuminates the concrete surface on the opposite side, during which time the curved and hexahedral surfaces exchange shadows with each other, showing the changing elevations. Each room has a bed and bathroom with a full view, allowing for a variety of experiences. The suite rooms face the inner courtyard and the forest on the valley side, creating a space for relaxation. In particular, the exterior of the third-floor suite is designed to actively engage with nature through a small pool and terrace area. The void that runs from the first to the third floor is composed of one large frame that looks out onto the interior courtyard and valley. As one enters the roof via the staircase, light from the skylight shows shifting shadows along the concrete and green structure. Here, all the small details of the surrounding landscape are obscured, and you can relax in the pool surrounded by mountains and forests in the distance. We hope that this hotel will become a space where one can slowly enjoy the simplicity of nature, both far and near, along with the surrounding environment, so that guests can spend time focusing on themself, even if for a short time.











건축가 proof
위치 강원도 춘천시 서면 명월1길 13
용도 숙박시설
대지면적 1,222㎡
건축면적 400.37㎡
연면적 921.67㎡
규모 지상 3층
건폐율 32.76%
용적률 75.42%
설계기간 2021. 5.
시공기간 2022. 6.
준공 2023. 7.
대표건축가 프룹_허병욱
프로젝트건축가 박도현 건축사사무소_박도현
디자인팀 프룹_황민, 유승민, 이진용
구조엔지니어 (주)한구조 엔지니어링
기계엔지니어 (주)에이스 엔지니어링
전기엔지니어 (주)에이스 엔지니어링
시공 다미건설
발주자 AZ금융서비스
사진작가 김용수
해당 프로젝트는 건축문화 2024년 1월호(Vol. 512)에 게재되었습니다.
The project was published in the January, 2024 recent projects of the magazine(Vol. 512).
January 2024 : vol. 512
Contents : RECORDS ‘Rural Reconstruction and Regeneration, Perspectives of Land Use’, The 3rd Urban & Architecture and Urbanism Forum 2023 ‘농촌공간 재구조화 및 재생, 토지 이용에서 바라보다’, 2023 제3차 AURI 건축도시포
anc.masilwide.com
'Architecture Project > Multifamily' 카테고리의 다른 글
| JAMSIL PARKRIO APARTMENT (0) | 2024.03.14 |
|---|---|
| Giyeon-ga (0) | 2024.02.27 |
| GREE Multi-family Housing (0) | 2024.02.16 |
| For Young Adults: Housing with Deep Yard (0) | 2024.02.15 |
| Vortex (0) | 2024.02.01 |
마실와이드 | 등록번호 : 서울, 아03630 | 등록일자 : 2015년 03월 11일 | 마실와이드 | 발행ㆍ편집인 : 김명규 | 청소년보호책임자 : 최지희 | 발행소 : 서울시 마포구 월드컵로8길 45-8 1층 | 발행일자 : 매일



