
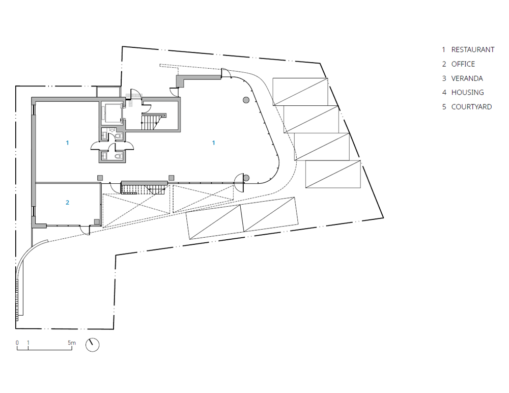
서종 지방도에 접한 대지는 도로에 면한 곳은 좁고, 깊어질수록 넓어지는 특이한 형상을 가졌다. 접도한 좁은 면은 상가의 입지로는 큰 약점이었다. 다행히 보행자 위주의 접근보다 차량의 접근이 많은 지역이라 차량의 빠른 이동 속도에서 맞닥뜨리는 다채로운 형상을 상상했다. 양방향의 이동에서 보이는 서로 다른 입면의 모습, 대지의 안쪽 깊은 곳까지 이어지는 유연한 곡면으로 다르게 읽히는 건물의 볼륨이 기이한 인상을 만들고 호기심을 불러 새로운 인연으로 이어지길 기대했다.
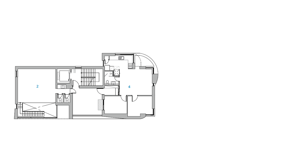
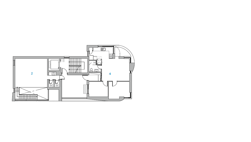
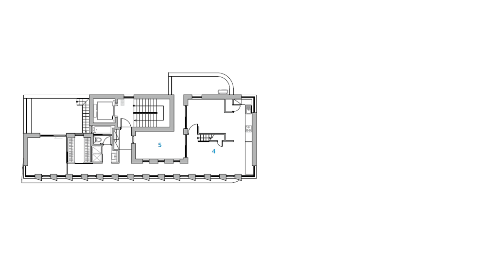
기연가는 상가주택이다. 주택보다 상가 면적이 크지만 건축주가 거주할 곳이니 이곳은 그들에겐 집이다. 우린 남의 집에 함부로 들어가지 않는다. 낯선 집에 들어가는 것을 꺼려한다. 집이 가족에게만 ‘장소’의 의미가 있는 까닭일 것이다. 우리는 집이 이곳을 찾는 이들에게 ‘기연가 미연가(긴가민가)’ 여겨지길 바랐다. 집인지 아닌지의 모호함이 이곳을 찾는 이의 경계심을 풀어주길 기대했다. 4층의 집은 안주인의 바람대로 마당을 두었다. 중정은 자연스럽게 채의 분리를 가져와 내밀한 침실의 영역과 거실, 주방으로 나뉘어 안채와 사랑채의 역할을 한다. 침실과 이어진 뒷마당은 오롯이 안주인의 장소로 텃밭과 좋아하는 꽃과 나무로 채워질 수 있다. ‘기연(기이한 인연)’은 ‘비장소(지방도)’에서 ‘장소(기연가)’로 들어가는 비밀번호 같은 것이 아닐까 생각했다. 인연이 깊어 목걸이 반쪽을 나누는 할부로 그 인연의 끈을 놓지 않듯이 이 집이 분할되어 서로 관계없는 이들이 묶이는 장소가 되기를 바랐다.

The site adjacent to the Seojong local road has an unusual shape, being narrow at the point facing the road and widening as it goes deeper. The narrow side adjacent to it was a major disadvantage as a location for a shopping center. Fortunately, the area has more vehicle access than pedestrian access, so we imagined the various shapes that would be encountered as vehicles move at high speed. We hoped that the different elevations visible from both directions, and the volumes of the building that read differently due to flexible curved surfaces that extend deep into the site, would create a peculiar impression and generate curiosity, leading to new relationships.
Giyeon-ga is a commercial/residential building. Although the commercial area is larger than that of the house, this is where the clients will live, which makes this their home. We don’t enter other people’s houses without permission and are reluctant to enter the house of a stranger. This may be the reason why a house has the significance of ‘place’ only for the family. We hoped that the house would be considered ‘Giyeon-ga Miyeon-ga (Gin-ga min-ga[1])’ by those who visit it, and that the ambiguity of whether it was a house or not would let the visitor’s guard down. The four-story house has a yard according to the owner’s wishes. The courtyard naturally divides the house into a private area with a bedroom, and the public area with a living room and kitchen. The backyard, which is connected to the bedroom, is an exclusive space that belongs to the lady of the house and can be filled with a vegetable garden and her favorite flowers and trees. We considered ‘giyeon (strange fate)’ as a password to enter from ‘non-place (local road)’ to ‘place (Giyeon-ga)’. Just like a deep relationship that we hold on tight to through the act of sharing a half necklace, we hope that this divided house would become a place where unrelated people could be tied together.
[1] Uncertain; dubious











건축가 투닷건축사사무소
위치 경기도 양평군 서종면 문호리 729-2
용도 근린생활설, 다가구주택(2가구)
대지면적 561㎡
건축면적 223.89㎡
연면적 560.69㎡
규모 지상 4층
건폐율 39.91%
용적률 99.94%
준공 2023. 9.
대표건축가 조병규
프로젝트건축가 모승민
디자인팀 천철규, 소정호, 이재준, 심건규
구조엔지니어 델타구조
기계엔지니어 (주)한빛안전기술단전기엔지니어 (주)천일엠이씨
시공 (주)SIDNC
발주자 주훈, 신영숙
사진작가 최진보
해당 프로젝트는 건축문화 2024년 1월호(Vol. 512)에 게재되었습니다.
The project was published in the January, 2024 recent projects of the magazine(Vol. 512).
January 2024 : vol. 512
Contents : RECORDS ‘Rural Reconstruction and Regeneration, Perspectives of Land Use’, The 3rd Urban & Architecture and Urbanism Forum 2023 ‘농촌공간 재구조화 및 재생, 토지 이용에서 바라보다’, 2023 제3차 AURI 건축도시포
anc.masilwide.com
'Architecture Project > Multifamily' 카테고리의 다른 글
| ZAC FULTON – LOT A5A2 (0) | 2024.03.20 |
|---|---|
| JAMSIL PARKRIO APARTMENT (0) | 2024.03.14 |
| Sans Walls Chuncheon (0) | 2024.02.22 |
| GREE Multi-family Housing (0) | 2024.02.16 |
| For Young Adults: Housing with Deep Yard (0) | 2024.02.15 |
마실와이드 | 등록번호 : 서울, 아03630 | 등록일자 : 2015년 03월 11일 | 마실와이드 | 발행ㆍ편집인 : 김명규 | 청소년보호책임자 : 최지희 | 발행소 : 서울시 마포구 월드컵로8길 45-8 1층 | 발행일자 : 매일



