
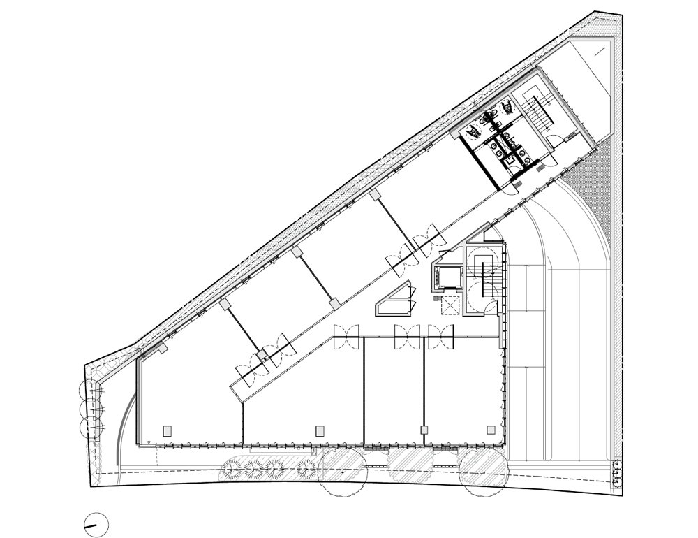
에너지엑스디와이빌딩은 국내 최초 제로에너지빌딩 1등급 건축물을 만들겠다는 클라이언트의 요구와 의지에서 시작됐다. 건물은 서울의 서측 끝 편, 망월산의 정상을 바라보는 대지에 위치한다. 남북으로 긴 삼각형 모양의 땅은 봉산 자락이 쌈지공원과 함께 대지의 북동 측을 감싸고 있는 모습이다. 건축가는 계절마다 바뀌는 풍속과 풍향을 조사하고 대지의 형상을 따라 매스를 배치하여 자연스러운 기압 차를 만들어 내고자 했다.
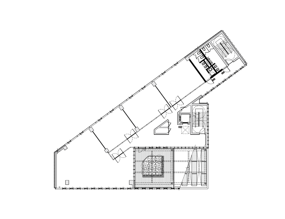
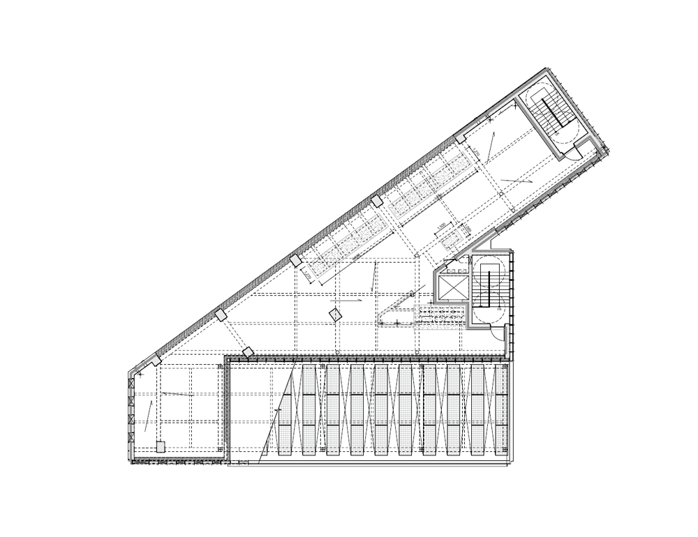
에너지엑스디와이빌딩의 가장 큰 특징은 건물 부착형 태양광 패널(BIPV)을 이용한 파사드이다. 건축가는 파사드에 일정한 패턴을 만들기 위해 투명과 불투명한 태양광 패널을 이중으로 설치했다. 이는 서측에서 들어오는 빛을 조절함과 동시에 수직 루버를 통해 균질한 빛이 들어오게 한다. 개구부는 최대한 후면으로 물러나게 하여 기본적인 풍속만으로 미세한 기압 차와 바람골을 만들어 낸다. 이 미세 상승 기류는 각 층 정원 완충 공간의 큰 기류를 통해 옥상으로 올라가며 베르누이 효과를 통해 발열 기류가 빠르게 빠져나가게 한다. 스텝가든은 건물의 옥상까지 올라가며 태양광 패널 후면을 자연 냉각시키는 장치이다. 임대 공간의 거실은 길게 배치되어, 폐열 회수 장치의 환기 성능을 극대화한다. 코어는 빛이 잘 들어오는 남측에 배치하고 투명한 태양광 패널로 마감했다. 남측의 열로 인해 기온이 상승하고, 건물 내부의 개방형 계단실을 통한 상승 기류가 강화되면서 발생하는 기압 차로 자연 환기를 도울 수 있도록 고안했다. 또한, 옥상 EHP 실외기의 토출 방향을 나란히 계획하여, 옥상의 90% 정도를 덮고 있는 PV 패널의 효율성을 높여 패시브적인 기계 냉각이 가능하게 했다.
건축물이 지어지기까지 단열 계획, 기밀 계획, 폐열 회수 계획 및 창의 성능 향상을 위해 수차례의 테스트를 거치며 전 공정에서 미세한 오차까지 신경 써야 하는 과정이 이어졌다. 여러 번의 시뮬레이션, 그에 따른 매스의 변경, 디자인 변화에 따른 태양광 패널 수정 작업, 현장 골조와의 오차를 줄이기 위한 디테일까지 파사드 곳곳에 건축가의 노고가 담겨 있다. 이 프로젝트를 통해 국내 근린생활 건물에서 패시브, 엑티브 기법, BIPV 파사드 설계 등을 통한 ‘제로에너지빌딩 1등급’의 실현이 가능하다는 것을 보여 주었다. 에너지엑스디와이빌딩은 가장 기본적인 제반 기술을 총집합하여 건축물을 하나의 에너지 순환으로 인식하고, 무엇보다 디자인 단계에서 제반 공종의 원리를 통합적으로 적용해 완성도 있는 지속 가능성을 만들어 가는 사례가 될 것이다.













건축가 쿠오타건축사사무소
위치 경기도 고양시 덕양구 향기로 152용도 근린생활시설
대지면적 1,004.00㎡
건축면적 528.13㎡
연면적 3,274.87㎡
규모 지하 2층, 지상 5층
건폐율 52.60%
용적률 227.19%
설계기간 2021. 9. - 2022. 12.
시공기간 2022. 8. - 2023. 8.
준공 2023. 9.
대표건축가 손정락
프로젝트건축가 손정락
프로젝트코디네이터 이은령
디자인팀 연웅희, 김지강, 정진혁, 이용훈
구조엔지니어 전우구조
기계엔지니어 코담기술단
전기엔지니어 코담기술단
친환경설계 이에이엔테크놀로지
시공 엑스인더스트리, 켑코이에스
발주자 에너지엑스(주)
사진작가 김재윤
해당 프로젝트는 건축문화 2023년 12월호(Vol. 511)에 게재되었습니다.
The project was published in the December, 2023 recent projects of the magazine(Vol. 511).
December 2023 : vol. 511
Contents : Records Imaginative Architect’s Drawing Exhibition, Moon Hoon 상상을 짓는 건축가의 그림 전시, 문훈 Waiting for the Light Within Seoul’s Underground World, Realization of Dominique Perrault’s ‘Lightwalk’ 서울 지하 세
anc.masilwide.com
'Architecture Project > Commercial' 카테고리의 다른 글
| ENOWA YUFUIN (0) | 2024.02.20 |
|---|---|
| The Coolest Hotel (0) | 2024.02.14 |
| ANArKH Café & Restaurant (0) | 2024.02.09 |
| JAKOMO Flagship Store Yongin (0) | 2024.01.29 |
| Bruce Street Commercial Building (0) | 2024.01.26 |
마실와이드 | 등록번호 : 서울, 아03630 | 등록일자 : 2015년 03월 11일 | 마실와이드 | 발행ㆍ편집인 : 김명규 | 청소년보호책임자 : 최지희 | 발행소 : 서울시 마포구 월드컵로8길 45-8 1층 | 발행일자 : 매일



