
더 쿨리스트 호텔은 부산의 대표적인 관광지로 부상하고 있는 송정동에 위치하며 송정 해수욕장과 인접하고 있다. 송정 해안가는 사계절 내내 서핑이 가능한 온후한 기온으로 해안가 주변으로 서핑 관련 시설과 호텔이 밀집한 곳이다. 건축가는 자연환경을 기반으로 하는 호텔 건축을 진행하며 바다와 도시의 사이에서 건축 계획과 경제성에 대한 가중치를 나누었다. 결과적으로 전 객실의 오션 뷰를 적용하는 대신, 도시를 향한 입면은 닫힌 형태가 되었다. 동시에 ‘광어골 거리’라는 인접 관광지의 관계성을 고려하여 도시 측 입면에 폴딩을 활용하여 보다 입체적인 조형을 도입하고 지역 경관 형성에 의미를 담고자 했다.
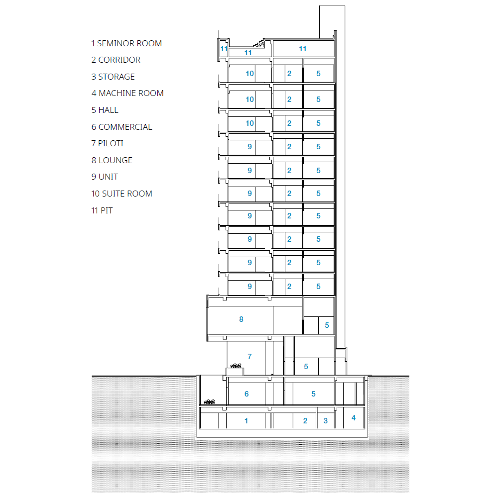
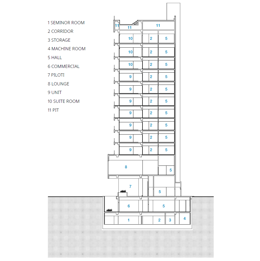
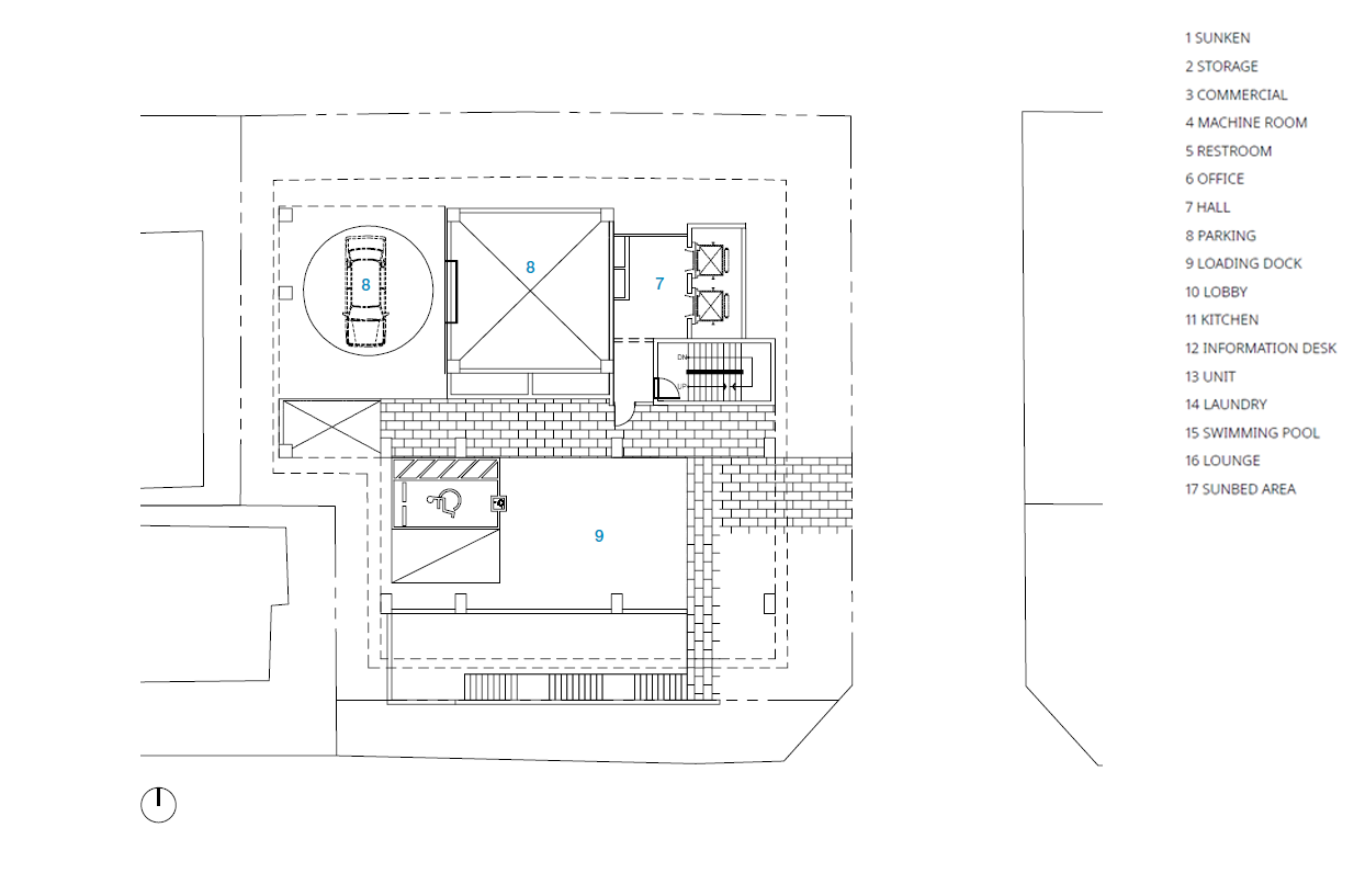
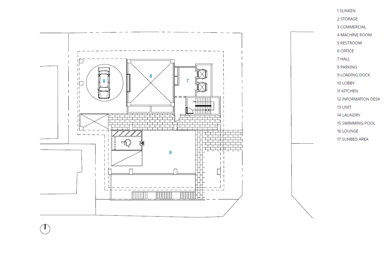
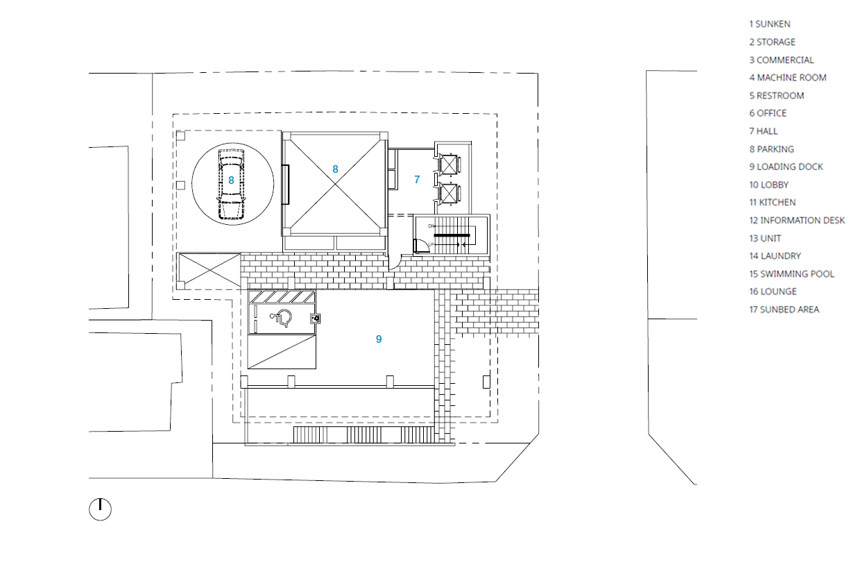
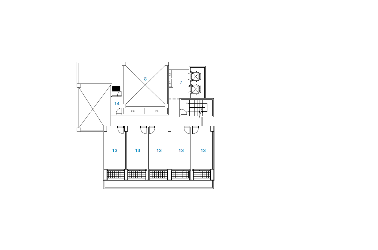
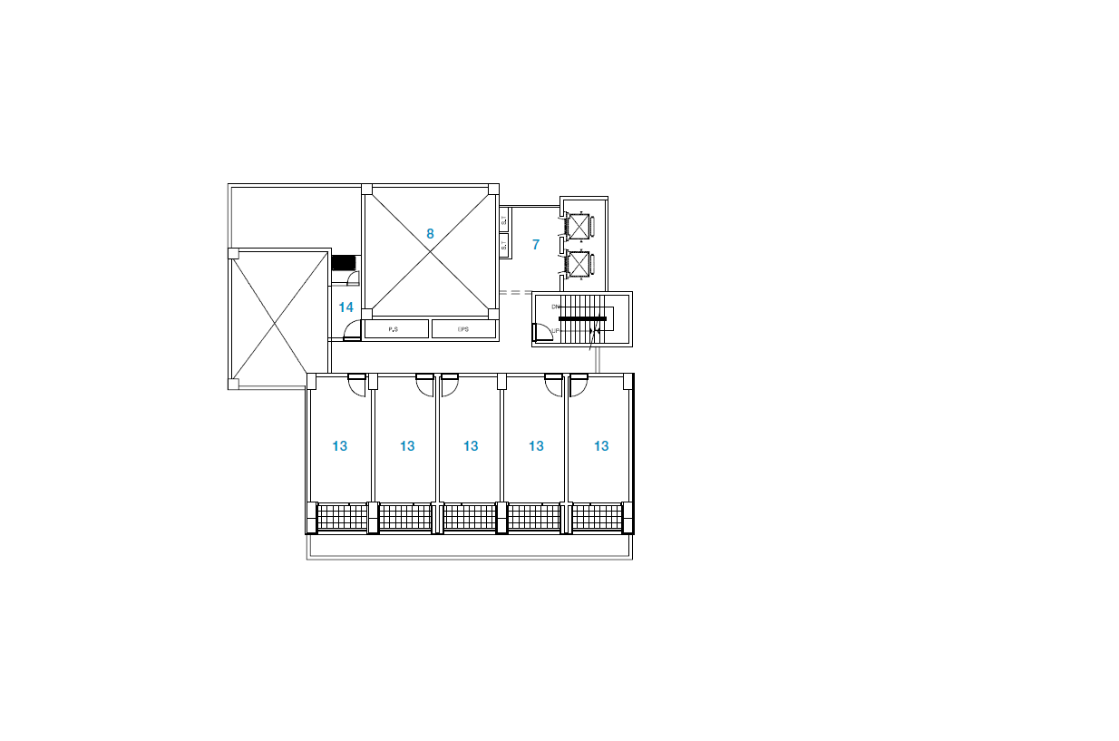
1층에 필로티, 2층에 로비 공간을 둔 배치 계획은 오션 뷰의 확보 및 용적률에 유리했다. 특히 로비 층의 위치는 호텔 건축에서 기능적, 형태적인 부분에 있어 중요한 영향을 미치는 요소다. 이번 프로젝트에서 어려움을 겪은 건폐율과 용적률의 문제는 세장형의 대지를 따른 수직적인 형태의 매스를 만드는 것으로 해결했다. 그러다 보니 1층 필로티의 높은 층고, 2층 로비의 배치가 자연스럽게 기단부의 역할을 할 수 있었다.
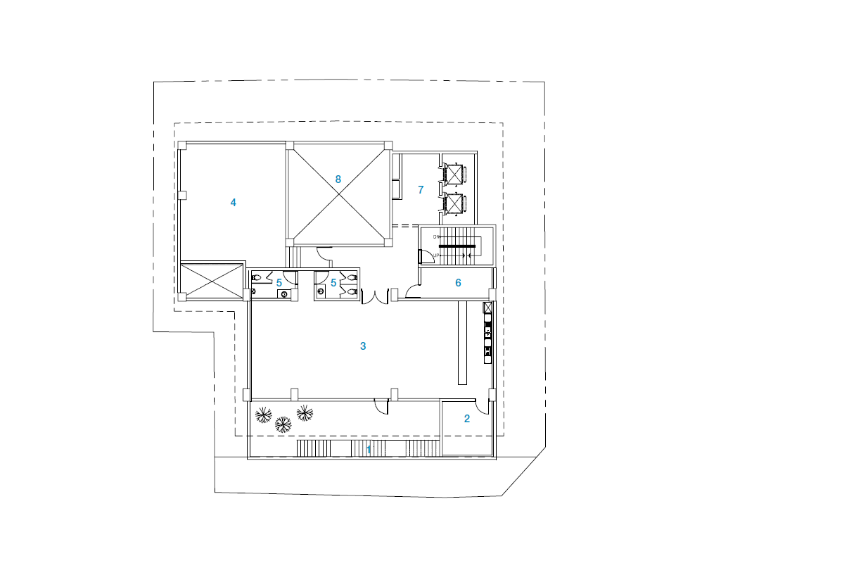
건축가는 소형 규모의 호텔이지만 고객들에게 좀 더 다양한 경험을 제공할 수 있는 방안을 고려했다. 옥상에 연계된 수영장과 비치 베드 공간은 도시 측의 파라펫을 높이 올리며 공간감을 확보하고 바다를 향한 배경도 확보했다. 지하층 주차 공간의 일부는 선큰을 도입하여 지하 근린생활시설의 공간적, 상업적 이용성을 높이며 1층의 필로티 공간을 풍성하게 만드는 요소가 되었다.












건축가 표응석(동서대학교)
위치 부산광역시 해운대구 송정동
용도 숙박시설, 근린생활시설
대지면적 723.00㎡
건축면적 386.26㎡
연면적 3,695.88㎡
규모 지하 2층, 지상 11층
건폐율 53.42%
용적률 382.60%
설계기간 2020. 4. - 12.
시공기간 2021. 4. - 2023. 9.
준공 2023. 10.
대표건축가 표응석
프로젝트건축가 (주)위고건축사사무소
허가 및 실시설계 표은석
인테리어 (주)종킴디자인스튜디오
발주자 (주)더 쿨리스트 호텔
사진작가 윤준환
해당 프로젝트는 건축문화 2023년 12월호(Vol. 511)에 게재되었습니다.
The project was published in the December, 2023 recent projects of the magazine(Vol. 511).
December 2023 : vol. 511
Contents : Records Imaginative Architect’s Drawing Exhibition, Moon Hoon 상상을 짓는 건축가의 그림 전시, 문훈 Waiting for the Light Within Seoul’s Underground World, Realization of Dominique Perrault’s ‘Lightwalk’ 서울 지하 세
anc.masilwide.com
'Architecture Project > Commercial' 카테고리의 다른 글
| BREEZE ON CAFE (0) | 2024.02.21 |
|---|---|
| ENOWA YUFUIN (0) | 2024.02.20 |
| EnergyX DY Building (0) | 2024.02.13 |
| ANArKH Café & Restaurant (0) | 2024.02.09 |
| JAKOMO Flagship Store Yongin (0) | 2024.01.29 |
마실와이드 | 등록번호 : 서울, 아03630 | 등록일자 : 2015년 03월 11일 | 마실와이드 | 발행ㆍ편집인 : 김명규 | 청소년보호책임자 : 최지희 | 발행소 : 서울시 마포구 월드컵로8길 45-8 1층 | 발행일자 : 매일


