
아나키아 카페 레스토랑은 서울 근교에서 자연을 감상하며 식음을 즐길 수 있는 공간이다. 베이커리와 음식, 문화와 예술이 공존하는 복합 문화 공간으로, 대지가 위치한 의정부 고산지구는 여러 개발 단지와 대규모 주거시설이 있다. 건물 앞으로는 그린벨트로 설정된 대지가 있어 자연과 동화할 수 있는 공간이기도 하다.
건물은 단순한 장방형의 매스다. 남측과 동측의 전면 유리로 시야가 열려 푸르게 조성된 녹음을 마주할 수 있다. 북서 측으로는 아파트 단지가 위치해 있는데, 시야를 차단하고 녹음을 향한 온전한 휴식을 위해 솔리드 벽체로 마감했다. 방문객들은 서측의 입면을 바라보며 접근하게 된다. 최소한의 오프닝을 제외하고 차단된 벽체의 사비석 마감에서는 석재 모듈을 다시 큰 스케일로 분할하였다. 이로 인해 마치 거대한 자연의 바위를 마주하는 것처럼 웅장함을 드러낸다. 지하 1층의 부 출입구와 주차 진입로를 지나 북동 측의 진입 계단을 마주하면, 좌우의 벽으로 시야를 차단하고 연결된 계단식 수공간을 바라보며 위로 오르게 된다. 이렇듯 계단 상부에 다다를수록 시야가 열리면서 건물의 모습이 서서히 드러나게 된다. 거대한 매스 한가운데를 가르는 주 출입구로 들어서면, 이번에는 내부에서 외부로 향하는 경치를 전면 창을 통해 감상할 수 있다.
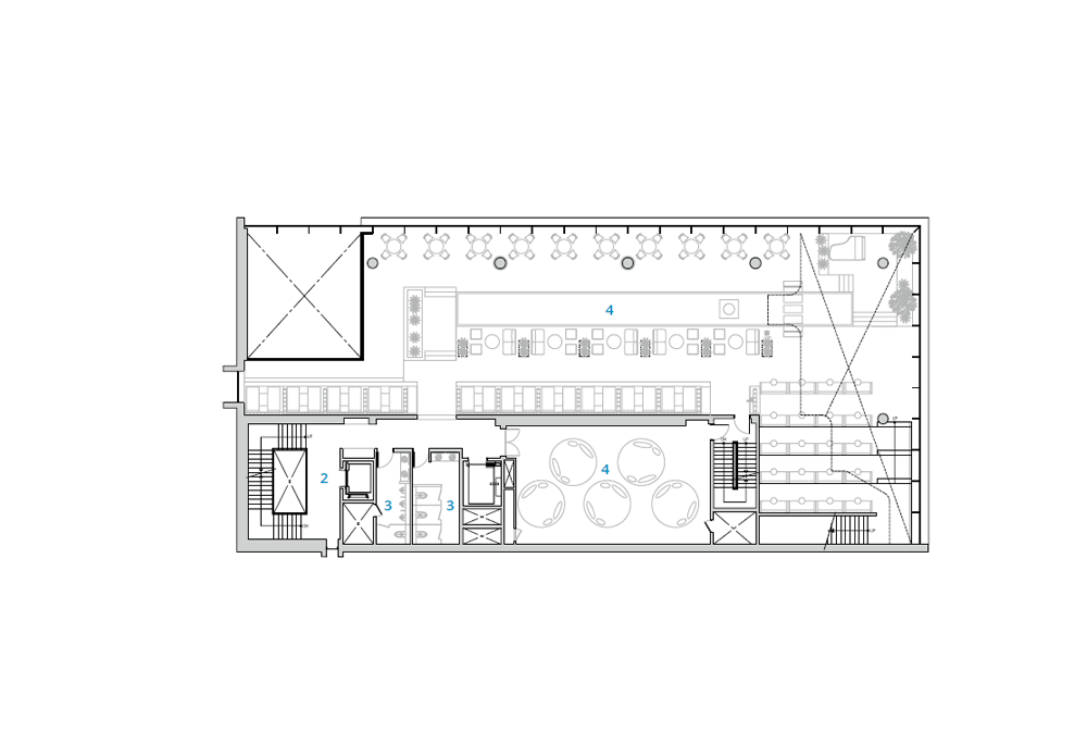
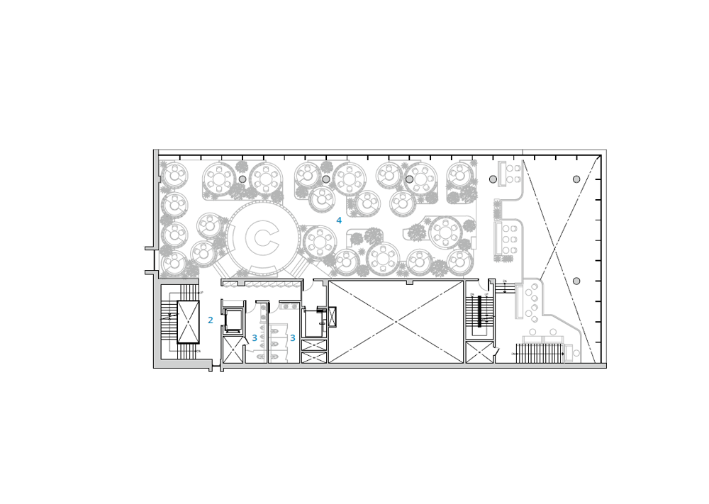
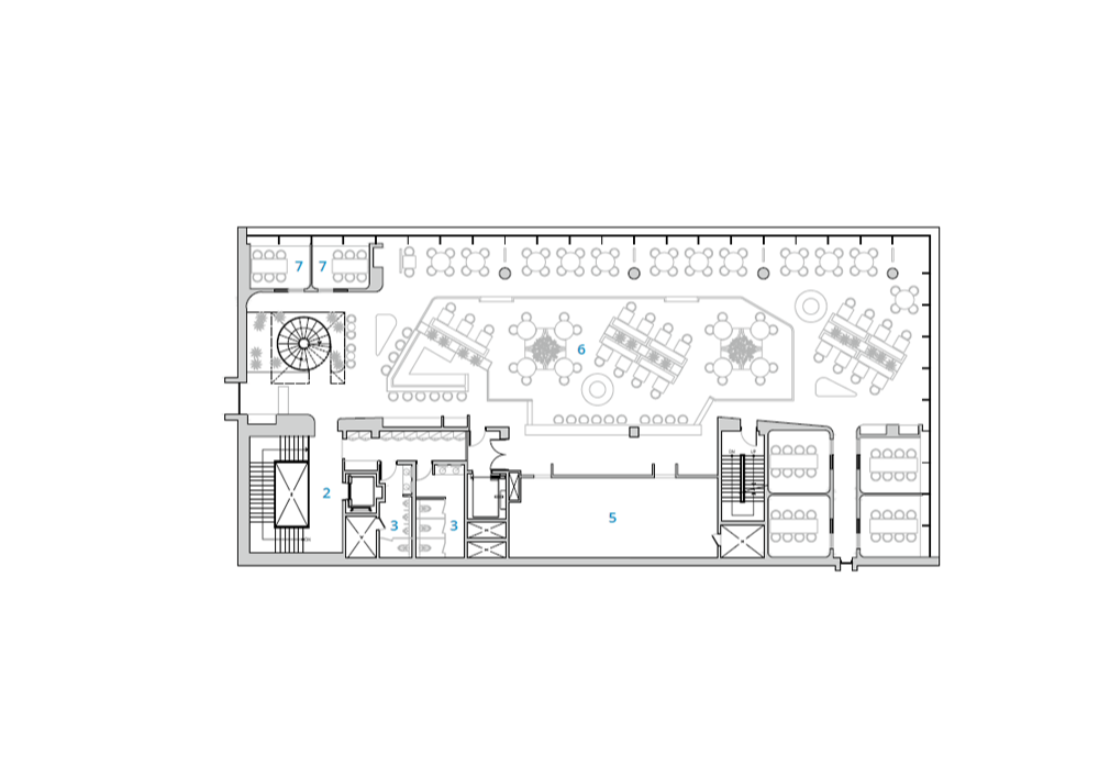
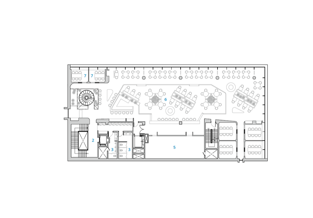
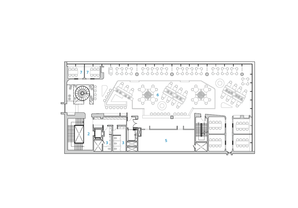
아나키아 카페 레스토랑의 1층부터 3층까지는 카페, 4층과 5층은 레스토랑으로 구성되어 있다. 각각의 카페는 서로 다른 인테리어 콘셉트를 가지고 있어, 방문객들이 층을 오르며 다른 경험을 하도록 의도하였다. 1층은 푸르른 녹음과 함께 수공간의 모습을 감상할 수 있으며, 플랜테리어를 활용한 2층은 내부의 식재와 외부의 자연이 소통한다. 2층과 3층 사이에 자리 잡은 복층의 카페는 경관이 가장 좋은 남동 측 코너를 향해 열려, 미술과 음악, 전시 등 문화 체험을 할 수 있다. 3층은 프라이버시를 유지하며 식음을 즐길 수 있는 공간, 4층과 5층은 루프톱 조경과 연계한 레스토랑을 마련했다.

















건축가 심플렉스 건축사사무소
위치 경기도 의정부시 산곡동
용도 제2종근린생활시설
대지면적 1,759.00㎡
건축면적 865.69㎡
연면적 7,914.98㎡
규모 지하 4층, 지상 5층
건폐율 49.21%
용적률 189.43%
설계기간 2020. 1. - 2021. 3.
시공기간 2021. 5. - 2022. 12.
준공 2022. 12.
대표건축가 박정환, 송상헌
디자인팀 이현우, 임혁, 허이서
구조엔지니어 은구조
기계엔지니어 진원엔지니어링
전기엔지니어 진원엔지니어링
시공 희상건설
조경 루안조경
인테리어 Studio Eccentric
발주자 (주)씨앤피물류
사진작가 신경섭, 강민구
해당 프로젝트는 건축문화 2023년 12월호(Vol. 511)에 게재되었습니다.
The project was published in the December, 2023 recent projects of the magazine(Vol. 511).
December 2023 : vol. 511
Contents : Records Imaginative Architect’s Drawing Exhibition, Moon Hoon 상상을 짓는 건축가의 그림 전시, 문훈 Waiting for the Light Within Seoul’s Underground World, Realization of Dominique Perrault’s ‘Lightwalk’ 서울 지하 세
anc.masilwide.com
'Architecture Project > Commercial' 카테고리의 다른 글
| The Coolest Hotel (0) | 2024.02.14 |
|---|---|
| EnergyX DY Building (0) | 2024.02.13 |
| JAKOMO Flagship Store Yongin (0) | 2024.01.29 |
| Bruce Street Commercial Building (0) | 2024.01.26 |
| Essa Sofa Flagship Store ‘Floating Box’ (0) | 2024.01.25 |
마실와이드 | 등록번호 : 서울, 아03630 | 등록일자 : 2015년 03월 11일 | 마실와이드 | 발행ㆍ편집인 : 김명규 | 청소년보호책임자 : 최지희 | 발행소 : 서울시 마포구 월드컵로8길 45-8 1층 | 발행일자 : 매일



