
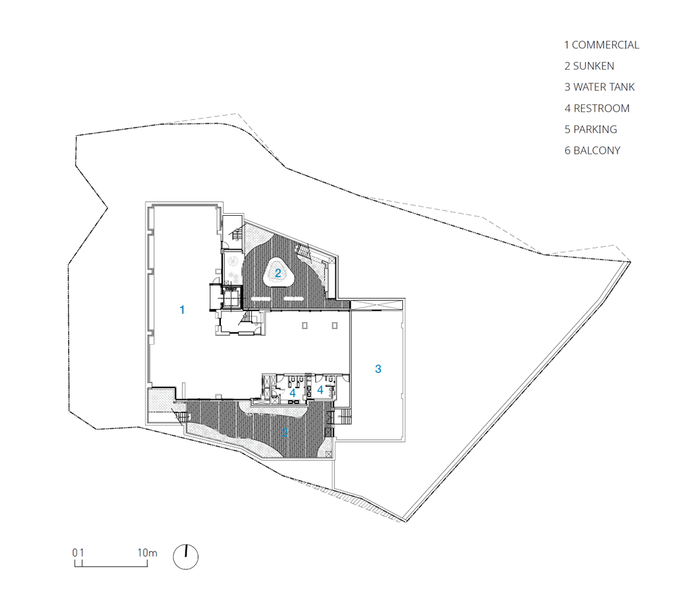
자코모 플래그십 스토어 용인은 경기도 용인시의 비교적 한적한 전면 도로와 제2 외곽 순환 도로와 인접한 대지에 계획된 프로젝트다. 건축가는 인접한 도로를 통행하는 차량이 건물을 잘 인지할 수 있어야 한다는 건축주의 요구에 따라 건물의 볼륨을 L 자형으로 구상했다. 그리고 건물의 코어는 이 볼륨의 중앙에 배치했다. 지하층의 선큰 가든과 연결된 코어는 개구부가 절제된 내부 공간과 외부를 연결하며 개방감을 주려는 의도가 담겼다. 이를 위해 계단실의 벽체를 오픈하고 누드형 엘리베이터를 계획했다.
1층 전면부는 개방성을 줄 수 있도록 충분한 공간을 주었고, 지하층에는 두 개의 선큰 가든을 설치하여 내부와 외부를 수평으로 연결했다. 3층과 4층은 하나의 공간으로 오픈하는 대신 수직으로 연결하는 내부 계단을 설치하여 역동적이고 개방적인 공간으로 의도했다. 내부 공간은 소파를 전시하고 판매하는 프로그램 중심이 되며, 그 외의 부속 공간이 구성되어 있다. 가죽 제품을 전시하는 공간의 특성에 따라 가능한 한 큰 규모의 개방된 공간이 필요했다. 또, 제품을 보호하기 위해 직사광선을 차단해야 했다. 이로써 개구부의 볼륨은 최대한 절제하고, 매시브한 덩어리 형태로 표현하며 이를 분절하는 전략을 취했다. 한편, 외부 공간은 이와 대조되게 비교적 대지의 여유가 많아, 전원적인 주변 환경에 부합하는 개방적인 느낌을 준다.




















건축가 (주)서원에스피건축사사무소
위치 경기도 용인시 포곡읍 마성리 12-3용도 근린생활시설
대지면적 2,626.000 ㎡
건축면적 522.061 ㎡
연면적 2,344.091 ㎡
규모 지하 1층, 지상 4층
건폐율 19.88%
용적률 69.58%
설계기간 2021. 2. - 8.
시공기간 2021. 9. - 2023. 1.
준공 2023. 2.
대표건축가 정병화
프로젝트건축가 정병화
디자인팀 김홍수, 신주섭, 조은하구조엔지니어 온구조연구소기계엔지니어 한길이앤씨전기엔지니어 대한기술단
시공 (주)미래씨엔알
발주자 (주)재경가구산업
사진작가 김용수
해당 프로젝트는 건축문화 2023년 11월호(Vol. 510)에 게재되었습니다.
The project was published in the November, 2023 recent projects of the magazine(Vol. 510).
November 2023 : vol. 510
Contents : Records ‘Drawing the Future of East Asian Traditional Architecture’, 2023 Hanok Policy Symposium ‘동아시아 전통건축의 미래를 그리다’, 2023년 한옥정책 심포지엄 The ‘Diplomatic Venue’ Returns after 100 Years, De
anc.masilwide.com
'Architecture Project > Commercial' 카테고리의 다른 글
| EnergyX DY Building (0) | 2024.02.13 |
|---|---|
| ANArKH Café & Restaurant (0) | 2024.02.09 |
| Bruce Street Commercial Building (0) | 2024.01.26 |
| Essa Sofa Flagship Store ‘Floating Box’ (0) | 2024.01.25 |
| Fukaya-Hanazono Premium Outlets ® (0) | 2024.01.15 |
마실와이드 | 등록번호 : 서울, 아03630 | 등록일자 : 2015년 03월 11일 | 마실와이드 | 발행ㆍ편집인 : 김명규 | 청소년보호책임자 : 최지희 | 발행소 : 서울시 마포구 월드컵로8길 45-8 1층 | 발행일자 : 매일



