
플로팅 박스는 소파를 만드는 기업인 건축주의 의뢰를 받아 소파를 전시하고 판매할 수 있는 시설로 지어졌다. 집에서 사용하는 가구 중 가장 대표적인 것은 소파이다. 사용 빈도와 그 쓰임에 있어서는 가족을 모이게 해주는 가구이다. 그렇기에 소파들의 디자인을 담는 하나의 그릇이자 매력적인 파사드를 연출하는 것이 중요했다. 동시에 다양한 소파를 전시하고 방문객이 편하게 관람할 수 있는 판매시설을 위해서는 최대의 볼륨과 연면적을 지닌 건물이어야 했다.
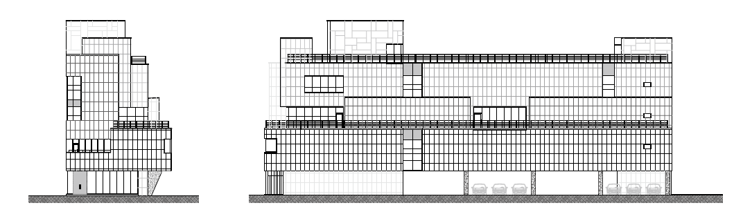
건축가가 처음 대지를 방문했을 때, 농지로 사용되었던 기존 대지에 건물을 짓기 위해 사전 조사와 관계자 협의에 상당한 시간을 들였다. 마치 화가가 그림을 그리기 전 이젤과 새로운 캔버스를 설치하는 것처럼 섬세한 작업이었다. 땅의 형태는 길이에 비해 너비가 좁았고, 일반 주거 지역이기에 일조에 의한 높이 제한과 4층 이하의 층수 제한이 있었다. 이는 매스 디자인을 하며 가장 중요하게 극복해야 할 요소가 됐다. 건축가는 거주 공간의 커뮤니티 요소이자 편안한 쉼터의 역할을 하는 소파의 형태를 매스에 담았다. 기업의 브랜드 이미지를 고려하여 주력 상품을 판매하는 플래그십 스토어이자, 상품을 보관하는 장소이기도 하기에 창고의 이미지도 담아야 했다. 실제로 판매하는 소파를 차곡차곡 쌓는 것처럼 매스에 대한 밸런스를 찾아 갔다. 정면에서 바라본다면 소파 몇 개를 쌓기도 하고 빼기도 하며, 테트리스를 쌓는 것처럼 재미있는 디자인 모티브를 찾아 시도했다.
방문객이 이용하기에 부족한 저층의 외부 공간은 건물의 옥상에 두었다. 넓은 옥상의 마당은 하나의 공원으로 작동하며, 소파 구매의 목적을 지니지 않은 사람도 방문할 수 있는 개연성을 제공하고자 하였다. 이는 문화 소비가 가능한 장소 역할을 하는 건물을 통해 도시에 여러 형태의 건축물과 인프라를 제공하고자 하는 건축가의 의도가 깃든 것이다. 이러한 건축이 도시의 표정에 어떤 방식으로 관여하며 도시와 소통할 수 있을지 기대해 본다.















건축가 (주)조한준건축사사무소
위치 경기도 남양주시 오남읍 양지리 729-2
용도 전시장, 근린생활시설
대지면적 1,053.00㎡
건축면적 616.41㎡
연면적 1,736.01㎡
규모 지하 1층, 지상 4층
건폐율 58.53%
용적률 161.80%
설계기간 2020. 5. - 2021. 7.
시공기간 2021. 8. - 2022. 7.
준공 2022. 7.
대표건축가 조한준
프로젝트건축가 조한준
디자인팀 최다은, 손미화, 한정환
구조엔지니어 (주)한길구조엔지니어링
기계엔지니어 지엠이엠씨GM EMC
전기엔지니어 지엠이엠씨GM EMC
시공 (주)우리마을에이엔씨(A&C)
발주자 박유진, 이장환
사진작가 노경
해당 프로젝트는 건축문화 2023년 11월호(Vol. 510)에 게재되었습니다.
The project was published in the November, 2023 recent projects of the magazine(Vol. 510).
November 2023 : vol. 510
Contents : Records ‘Drawing the Future of East Asian Traditional Architecture’, 2023 Hanok Policy Symposium ‘동아시아 전통건축의 미래를 그리다’, 2023년 한옥정책 심포지엄 The ‘Diplomatic Venue’ Returns after 100 Years, De
anc.masilwide.com
'Architecture Project > Commercial' 카테고리의 다른 글
| JAKOMO Flagship Store Yongin (0) | 2024.01.29 |
|---|---|
| Bruce Street Commercial Building (0) | 2024.01.26 |
| Fukaya-Hanazono Premium Outlets ® (0) | 2024.01.15 |
| Wangbangyo (0) | 2024.01.11 |
| Gyerim Nue (0) | 2024.01.08 |
마실와이드 | 등록번호 : 서울, 아03630 | 등록일자 : 2015년 03월 11일 | 마실와이드 | 발행ㆍ편집인 : 김명규 | 청소년보호책임자 : 최지희 | 발행소 : 서울시 마포구 월드컵로8길 45-8 1층 | 발행일자 : 매일



