
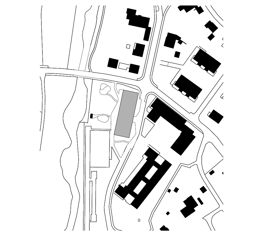
아르베르크 학교 별관은 나무와 닮은 건축물이다. 대지가 있는 알테 아레 강(Alte Aare)과 한스 뮐러 베크(Hans-Müller-Weg) 거리는 나무가 많은 것이 특징이다. 줄지어 선 나무는 대지의 외부 공간을 기다란 형태로 규정한다. 건축가는 이를 따라 양방향이 탁 트인 직사각형의 매스를 계획했다. 한쪽은 운동장을 향하고, 반대쪽은 알테 아레 강을 마주한다. 건축물의 외관에서 가장 눈에 띄는 것은 넓은 캐노피이다. 건축가는 캐노피로 외부와 내부 공간을 자연스럽게 잇고 아이들이 날씨와 상관없이 밖에서 놀 수 있는 공간을 만들었다.
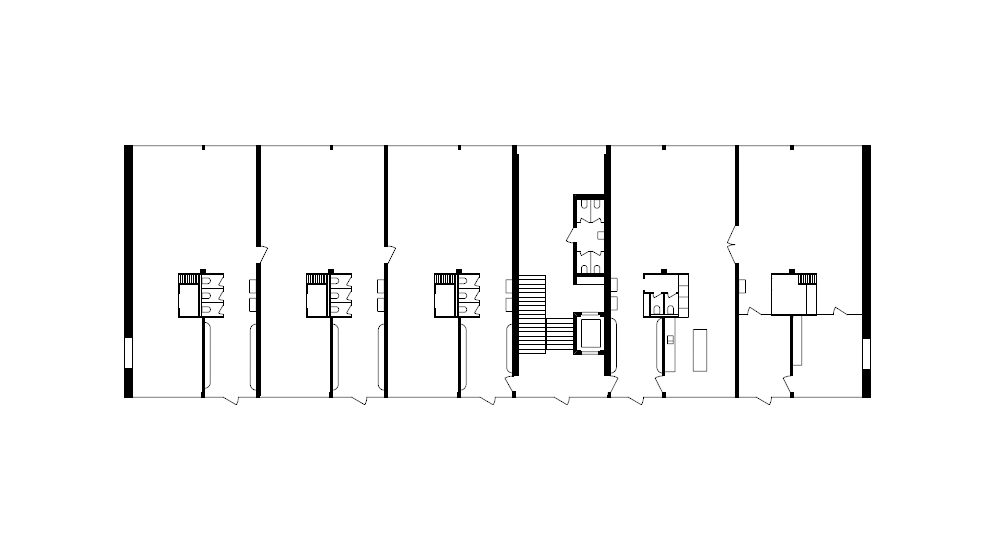
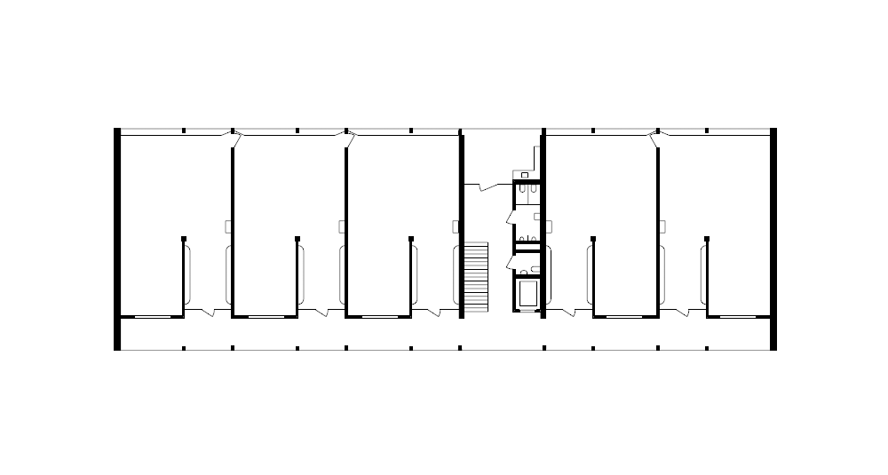
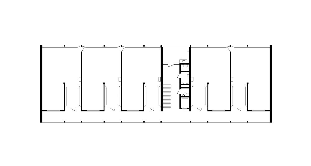
지형으로 인한 거리와 강변의 단차는 1층 현관의 스플릿 플로어(Split floor)로 극복했다. 따라서 2층은 현관을 통해 중앙 계단을 지나거나, 알테 아레 강 측의 통로를 통해 진입할 수 있다. 두 개 층에는 각각 다섯 개의 교실을 배치했다. 1층에는 유치원과 어린이집이 있고 교실마다 바로 외부로 나갈 수 있는 문을 계획했다. 또한 여러 반이 모여 진행하는 활동을 위해 1층 교실 사이사이에 문을 계획한 것이 특징이다.
건축가는 간결한 목구조와 정교한 디테일을 활용해 건축물이 거대한 느낌이 들지 않도록 계획했다. 나무로 디자인한 파사드는 푸른 강변 풍경의 일부가 된다. 각 실의 구획을 반영하고 수직적인 부재를 활용해 리듬을 살린 파사드는 건축물을 마치 나무처럼 보이게 한다. 이러한 외관은 주변 학교 건물과 차별화되면서도 차분하게 조화를 이룬다.













건축가 Haller Gut Architekten
위치 스위스, 아르베르크
용도 교육연구시설
연면적 2,000㎡
규모 지하 1층, 지상 2층
설계기간 2018 - 2021
시공기간 2021 - 2022
준공 2022
구조엔지니어 Weber + Brönnimann
목구조엔지니어 Indermühle Bauingenieure
기계엔지니어 Grünig + Partner
전기엔지니어 Toneatti Engineering
조경설계 Weber + Brönnimann
발주자 Municipality Aarberg
사진작가 Karina Castro
해당 프로젝트는 건축문화 2023년 11월호(Vol. 510)에 게재되었습니다.
The project was published in the November, 2023 recent projects of the magazine(Vol. 510).
November 2023 : vol. 510
Contents : Records ‘Drawing the Future of East Asian Traditional Architecture’, 2023 Hanok Policy Symposium ‘동아시아 전통건축의 미래를 그리다’, 2023년 한옥정책 심포지엄 The ‘Diplomatic Venue’ Returns after 100 Years, De
anc.masilwide.com
'Architecture Project > Education' 카테고리의 다른 글
| Jakoba Mulderhuis (0) | 2024.03.12 |
|---|---|
| Yeongo Hana Daycare Center (0) | 2024.02.12 |
| Samhyang Elementary School Green-smart Main Building and Library (0) | 2024.01.24 |
| Wando Girls Middle School Green-smart Main Building (0) | 2024.01.23 |
| Eunpyeong High School Student Lounge (0) | 2024.01.22 |
마실와이드 | 등록번호 : 서울, 아03630 | 등록일자 : 2015년 03월 11일 | 마실와이드 | 발행ㆍ편집인 : 김명규 | 청소년보호책임자 : 최지희 | 발행소 : 서울시 마포구 월드컵로8길 45-8 1층 | 발행일자 : 매일



