
학교는 단순히 학생을 가르치는 공간이기보다 학생의 배움이 실현되는 전체적인 교육 환경이다. 교실문을 열면 어떤 풍경이 보일지, 6년의 기간 동안 만나는 공간의 단조로움을 줄이려면 어떻게 해야 할지에 대한 고민이 담겼다. 한편 학교의 사용자가 바뀌고 교과 과정과 교수 학습법은 계속해서 변화하므로 보편성이 중요하다. 교실 수업의 혁신 없이 공간만 달라질 수 없기에 건축가가 교실의 시스템을 완전히 바꾸는 것은 어려운 일이다.
건축가는 교실의 바깥에 적극적으로 변화를 주기로 하며 ‘어린이의 작은 도시’라는 프로젝트의 주제를 정했다. 교실이 집이라면 복도는 집 앞이 되고, 운동장 스탠드는 광장이 된다. 건축가는 교실 안의 배움도 중요하지만, 학교를 다니는 어린이들이 학교의 어디서든 삶을 배우고 즐거움을 찾을 수 있길 의도했다. ‘러닝 브릿지’ 도서관, 후관동 사이의 아트리움, 1층 앞마당의 ‘러닝 스트리트’, ‘감각정원’과 ‘놀이정원’ 등, 학교에 필요한 기능과 도시를 이루는 요소를 결합한 실명을 구성했다. 교실과 인접한 작은 공간들에는 ‘사이 공간’을 만들어 재미를 더했다.
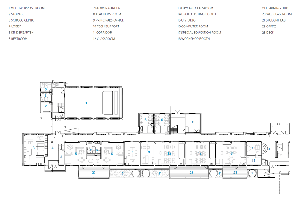
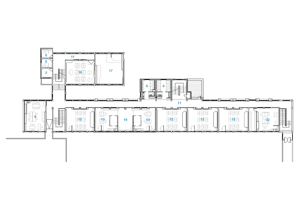
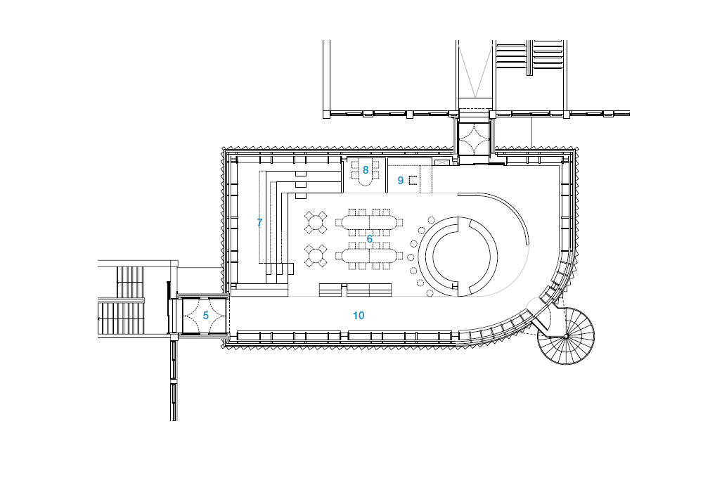
기존에 통로만 있던 현관을 넓혀 학생들이 기다리고 쉴 수 있는 작은 로비를 만들고, 현관을 사이에 두고 나누어졌던 두 개의 유치원 교실은 하나의 영역으로 만들었다. 유치원 영역의 독립성 확보와 저학년 및 장애 학생의 안전한 수업과 이동을 고려하여 유치원 교실과 도움반을 우선 배치하여 통학 버스 동선과 가깝게 했다.
1층의 저학년 교실은 외부공간으로 직접 출입이 가능한 데크와 텃밭이 마련됐다. 학생들의 배움 특성에 따라 생태 감수성을 키울 수도 있는 공간이며, 자연을 활용한 야외 학습 환경도 제공한다. 중간의 공유공간은 아이들을 위한 간식공간으로 활용하며 따로 또 같이 이용할 수 있다. 모든 학년의 교실 후면에는 좌식공간을 계획했다. 교실공간에 비해 작지만 모임과 놀이를 하기에 적합하고, 쉬는 시간을 이용해 다양하게 사용될 수 있다. 돌봄교실의 ‘오두막’ 공간은 오후까지 학교 생활을 연장해야 하는 아이들에제 재미있는 아지트가 된다. 복도와 돌봄교실을 향해 열린 중간실로 가변적으로 이용 가능하다.
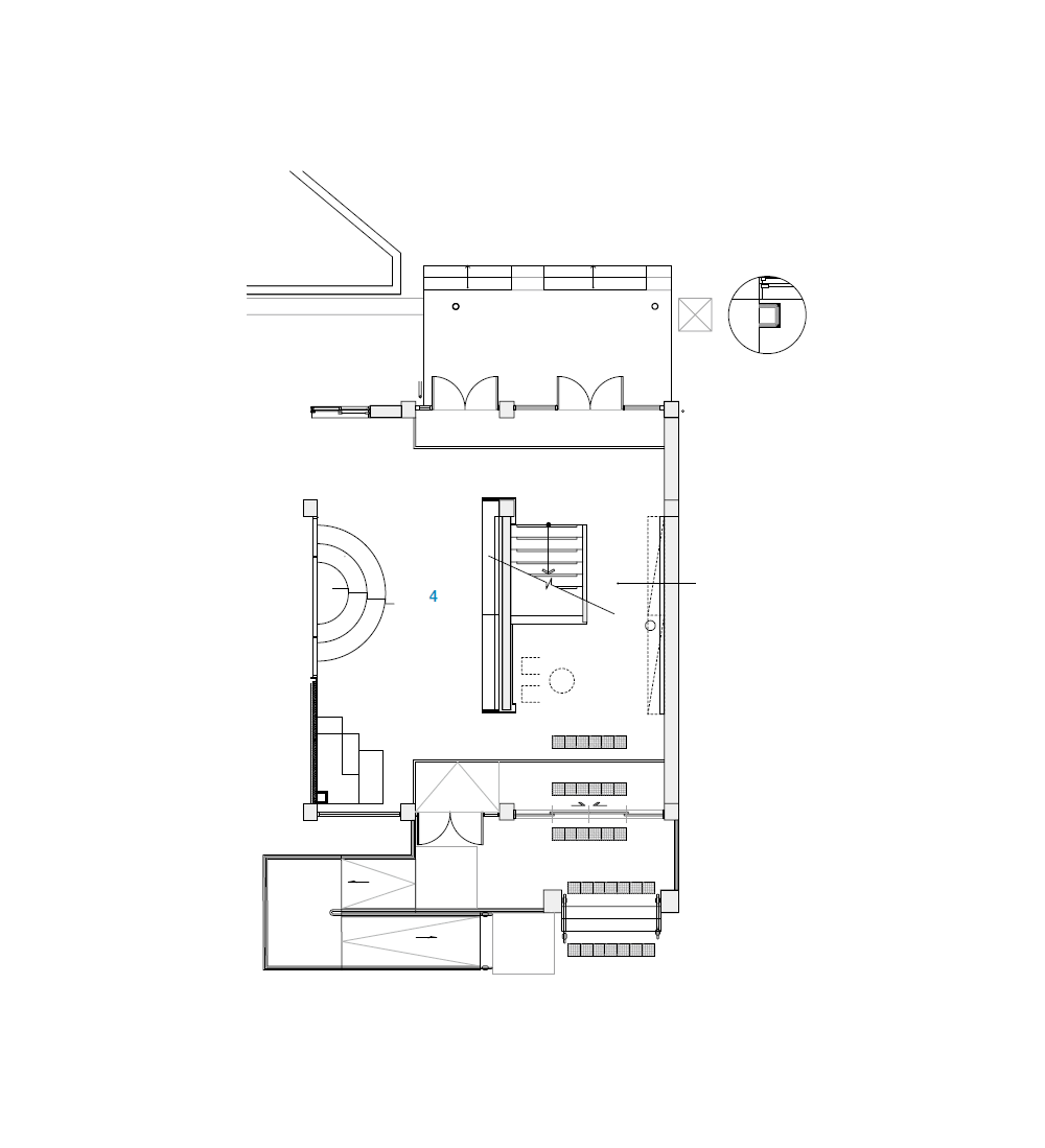
건축가는 기존 도서관의 풍경이 아닌 학생들이 책을 만나는 새롭고 흥미로운 경험을 하는 공간이 되기를 바랐다. 가장 먼저 고려한 것은 도서관의 접근성을 높이는 것이었다. 많은 학생이 쉽게 도서관에 들를 수 있도록 학생들이 다니는 길목의 사이에 마련하는 것이다. ‘러닝 브릿지’라는 이름은 1층의 비상 차량 동선을 위해 필로티 구조로 만들며 책과 친구를 만나는 다리라는 데서 붙여졌다. ‘러닝 브릿지’의 안에는 혼자만의 독서공간, 모임공간, 좌식공간, 풍경을 감상하는 공간 등이 다양하게 어우러져 있다. 학생들이 모이고 놀고 쉴 수 있는 공간이면서, 책을 접하는 ‘교실’이 아닌 색다른 공간 경험을 할 수 있기를 기대한다.

A school is more than just a space for instructing students; it represents the overall educational environment where students' learning is realized. Consideration has been given to what kind of setting will unfold when the classroom doors open and how to reduce the monotony of spaces encountered over the six-year period. Simultaneously, since the users of the school change, and curriculum and teaching methods continue to evolve, universality is crucial. The architect contemplated the difficulty of completely overhauling the classroom system without a revolution in teaching methods.
The architect decided to actively introduce changes outside the classroom, choosing as a theme for the project as “A Small City for Children.” If the classroom is considered a home, then the corridors become the front yard, and the bleachers on the playground transform into a plaza. The architect recognized the importance of learning inside the classroom, but also intended for children attending the school to find joy and learn about life from anywhere within the school. The design consists of elements such as the “Learning Bridge” library, the atrium between the main building and the annex, the 'Learning Street' in front of the first floor courtyard, and sensory and play gardens—combining necessary school functions with elements that make up a city. In the small spaces adjacent to the classrooms, the architect created “in-between spaces” to add an element of fun.
The existing entrance, which was only a corridor, was expanded to create a small lobby where students could wait and rest. The two kindergarten classrooms, previously separated by the entrance, were merged into a single area. Considering the independence of the kindergarten and ensuring the safety of lower-grade and special needs students during classes and movement, the architect prioritized placing the kindergarten and support classrooms close to the school bus route.
On the first floor, the classrooms for the lower grades have a deck and a small garden, providing direct access to outdoor spaces. This area is designed to cultivate ecological sensitivity based on the students' learning characteristics, offering an outdoor learning environment that utilizes nature. The shared space in the middle is a snack area for the children, and it can be used separately or together. There is a sitting area behind each classroom for all grades. Although smaller than the classroom space, it is suitable for gatherings and play, and can be utilized in various ways during break times. The "cabin" space in the daycare room becomes an interesting hideout for children who need to extend their school day until the afternoon. It is a versatile area that can be used flexibly and opens to the corridor and daycare room.
The architect wanted the library to be a space where students could have a new and interesting experience with books, rather than focusing solely on the existing library's layout. The first consideration was to enhance the accessibility of the library. To achieve this, the architect envisioned placing it along the paths frequently used by students, ensuring that many students could easily visit the library. The name “Learning Bridge” was given because it serves as a bridge for emergency vehicles on the first floor, creating a pilaster structure, and metaphorically, it becomes a bridge for meeting books and friends. Inside the “Learning Bridge,” various elements such as individual reading spaces, meeting areas, places to sit, and spaces for enjoying the scenery are harmoniously integrated. The architect hopes it will be a place where students can gather, play, and relax, offering a different spatial experience from a traditional “classroom” for encountering books.











건축가 지온건축사사무소
위치 전라남도 무안군 삼향읍 삼향중앙로 84
대지면적 17,617.00㎡
건축면적 (본관) 2,941.10㎡ / (도서관) 198.77㎡ 연면적 (본관) 5,529.91㎡ / (도서관) 198.77㎡
설계 2023. 1.
규모 (본관) 지상 2층 / (도서관) 지상 2층
대표건축가 최희정
발주자 전라남도무안교육지원청
해당 프로젝트는 건축문화 2023년 10월호(Vol. 509)에 게재되었습니다.
The project was published in the October, 2023 recent projects of the magazine(Vol. 509).
October 2023 : vol. 509
Contents : Records Build the Future City through ‘Land Architect’, The 4th Seoul Biennale of Architecture and Urbanism 2023 땅의 건축으로 미래의 도시 모습을 그리다, 서울도시건축비엔날레 Another ‘Scale’ of 15-year Journey
anc.masilwide.com
'Architecture Project > Education' 카테고리의 다른 글
| Yeongo Hana Daycare Center (0) | 2024.02.12 |
|---|---|
| Schulhaus Aarberg (0) | 2024.02.07 |
| Wando Girls Middle School Green-smart Main Building (0) | 2024.01.23 |
| Eunpyeong High School Student Lounge (0) | 2024.01.22 |
| Yeonseo Middle School Library (0) | 2024.01.19 |
마실와이드 | 등록번호 : 서울, 아03630 | 등록일자 : 2015년 03월 11일 | 마실와이드 | 발행ㆍ편집인 : 김명규 | 청소년보호책임자 : 최지희 | 발행소 : 서울시 마포구 월드컵로8길 45-8 1층 | 발행일자 : 매일



