
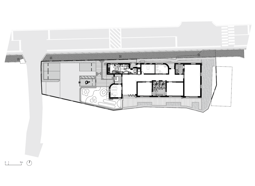
영오 하나 국공립어린이집은 하나의 커다란 놀이터처럼 느껴지도록 설계된 어린이집이다. 인간의 본질은 놀이(유희)이다. 아이들은 놀이를 통해 공간을 탐색하며, 공감각적 체험을 통해 호기심을 가지고 창의력을 키우게 된다. 건축가는 그러한 창의적 사고를 키우는 공간의 아이덴티티를 고민했다.
높이가 각기 다른 천정고를 통해 다양한 스케일의 공간을 경험할 수 있는 공간이 연속적으로 배치되어 있으며, 공간마다 배치된 다채로운 색상, 조명, 가구가 아이들의 상상력을 불러온다. 아이들의 시선에서 어린이집은 마치 생텍쥐페리의
‘어린왕자’에 나오는 코리끼를 삼킨 보아뱀처럼, 고성군의 상징인 ‘공룡’이 함께하는 장소처럼 느껴질 것이다. 제약된 공간 속에서도 순환하는 동선 체계를 만들어, 아이들이 다채롭게 감각 놀이할 수 있는 공간이 되었다.











건축가 리트머스 건축사사무소
위치 경상남도 고성군 영오면 영대리 517-3
용도 노유자시설(어린이집)
대지면적 810.00㎡
건축면적 275.65㎡
연면적 275.65㎡
규모 지상 1층
건폐율 35.94%
용적률 35.94%
대표건축가 정승복, 김주민프로젝트건축가 남우석
디자인팀 정석현
구조엔지니어 하이텍엔지니어링기계엔지니어 하이텍엔지니어링전기엔지니어 하이텍엔지니어링
시공 신명종합건설
발주자 경상남도 고성군청, 한솔어린이재단
사진작가 김창묵
해당 프로젝트는 건축문화 2023년 12월호(Vol. 511)에 게재되었습니다.
The project was published in the December, 2023 recent projects of the magazine(Vol. 511).
December 2023 : vol. 511
Contents : Records Imaginative Architect’s Drawing Exhibition, Moon Hoon 상상을 짓는 건축가의 그림 전시, 문훈 Waiting for the Light Within Seoul’s Underground World, Realization of Dominique Perrault’s ‘Lightwalk’ 서울 지하 세
anc.masilwide.com
'Architecture Project > Education' 카테고리의 다른 글
| Nursery School Aartselaar (0) | 2024.03.14 |
|---|---|
| Jakoba Mulderhuis (0) | 2024.03.12 |
| Schulhaus Aarberg (0) | 2024.02.07 |
| Samhyang Elementary School Green-smart Main Building and Library (0) | 2024.01.24 |
| Wando Girls Middle School Green-smart Main Building (0) | 2024.01.23 |
마실와이드 | 등록번호 : 서울, 아03630 | 등록일자 : 2015년 03월 11일 | 마실와이드 | 발행ㆍ편집인 : 김명규 | 청소년보호책임자 : 최지희 | 발행소 : 서울시 마포구 월드컵로8길 45-8 1층 | 발행일자 : 매일



