
완도여중 본관동 그린스마트 미래학교는 학교 공간의 이용자이자 생산자인 학생, 교사, 학부모가 주체가 되어 학교 공간 디자인에 능동적으로 참여한 프로젝트다. 교육 관계자의 다양한 참여 프로그램을 진행하며, 건축적 조율과 리모델링을 통해 복합문화공간 분위기를 조성하고 다양한 형태의 공간을 제안했다.
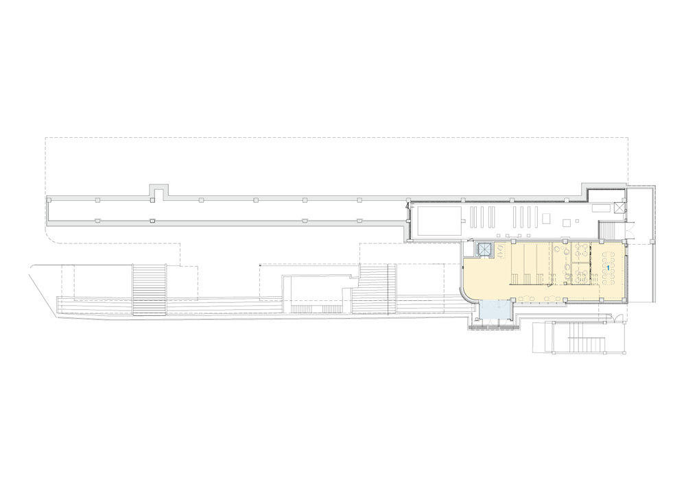
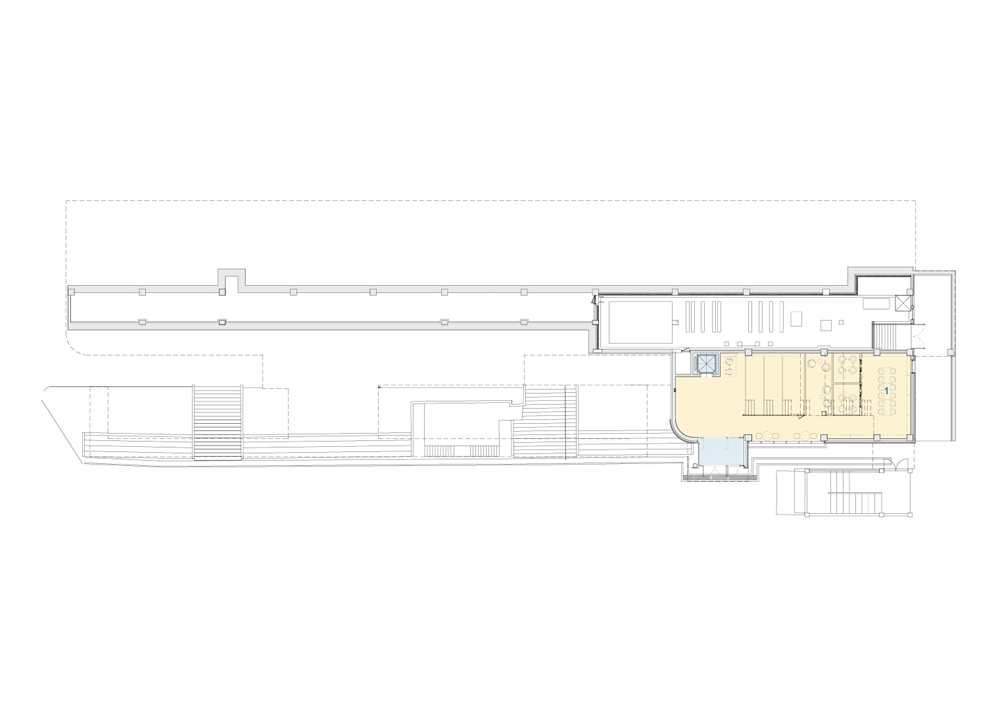
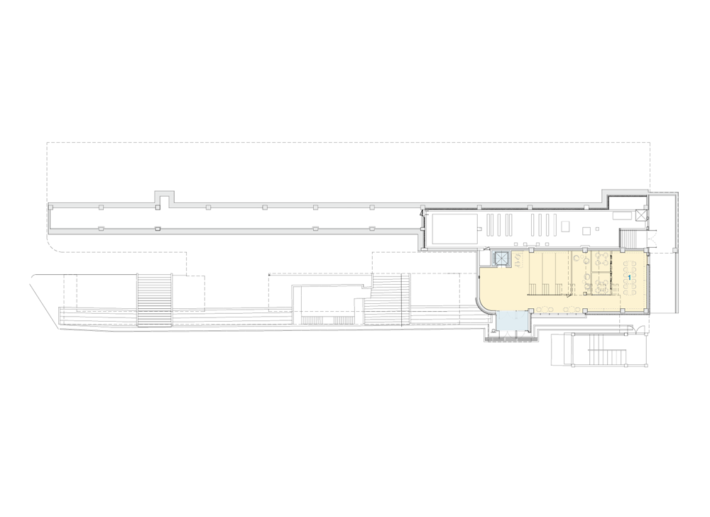
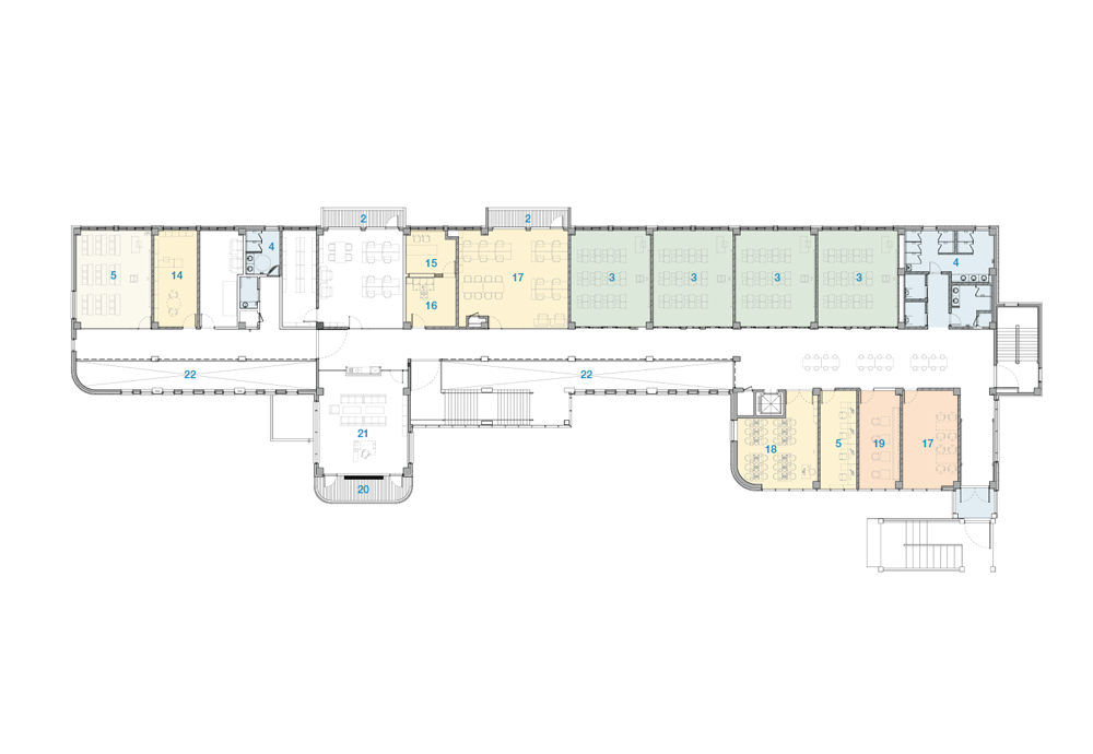
건축가는 일률적으로 배치되어 있는 교실의 모듈을 분리하여 공용 공간을 조성하고, 기존 매스의 저층화, 개방 수직화, 녹지공간 체험화 등을 통해 개방적인 모습으로 탈바꿈하고자 하였다. 유기적인 배치를 통해 새로운 본관동, 별관동, 체육관의 관계성을 회복하고, 본관동의 질서를 존중하는 ‘ㄷ’ 자형 배치를 통해 학생들에게 편안하고 안락한 공간을 제공하는 공간을 제안했다. 내부 수직 동선은 운동장과 본관동의 4.5m 높이 차를 건축적으로 접근하며 본관동의 동선을 홀과 도서관, 별관, 운동장으로 자연스럽게 연결했다.
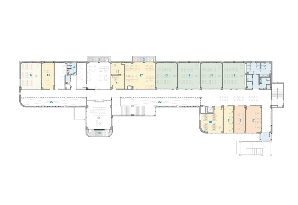
건축가는 외부 자연환경 여건과의 관계성을 고려하여 조닝에 적용했다. 건물의 남측은 채광을 고려하여 실내 활동이 많은 교실과 테라스를 배치하고, 북측으로는 운동장과 원경이 내려다보이도록 공용공간을 배치했다. 이는 그린생태공간과 외부 동선과의 연결을 의도하며, 건물 사이의 조경공간을 적극적으로 살린 조경데크를 설치하여 학생들의 휴식공간으로 활용할 수 있도록 유도한다.
리모델링을 통해 새롭게 제안된 완도여중은 학생들의 풍요로운 공유공간 체험을 위해 다양한 형태의 공간을 구성하여 공연, 발표회, 소규모 모임, 프로젝트 학습을 지원하는 유연한 다목적공간이 마련될 예정이다. 이를 통해 교실뿐만 아니라 공유공간에서 만남과 소통이 원활하게 이루어지며, 교류를 통해 배우는 학습의 장을 확립시켰다.

Wando Girl’s Middle School Green Smart Main Building Future School is a project where the users and producers of the school space, including students, teachers, and parents, actively participated in the design. Various participation programs for educational stakeholders were conducted, resulting in a multifaceted cultural atmosphere through architectural adjustments and remodeling, and proposing various forms of spaces.
The architect transformed the uniform arrangement of classrooms by separating the modules to create communal spaces. Through the low-rise development of the existing masses, vertical openness, and the experiential integration of green spaces, the design created a more open appearance. By employing an organic arrangement, the architect restored the relationship between the new main building, annex building, and gymnasium. A “ㄷ”-shaped layout, was proposed to provide students with a comfortable and cozy area. The internal vertical circulation addresses the 4.5m height difference between the playground and the main building, connecting the pathways of the main building seamlessly with the hallway, library, annex, and playground.
The architect considered the relationship with the external natural environment when determining the use of the areas. On the southern side of the building, taking into account natural lighting, classrooms and terraces were arranged for indoor activities. On the northern side, communal spaces were positioned to overlook the playground and the natural scenery. This intentional design connects green spaces with external pathways. Additionally, a deck was installed between the buildings to actively incorporate landscaping spaces, encouraging students to use it for relaxation.
Through the remodeling, the Wando Middle School creates various areas to enhance students' rich shared experiences. There will be flexible multipurpose spaces supporting performances, presentations, small gatherings, and project-based learning to facilitate a range of activities. This initiative not only fosters learning within classrooms but also promotes seamless interaction and communication in shared spaces, establishing a conducive environment for learning through exchange and collaboration.








건축가 어반소사이어티 건축사사무소
위치 전라남도 완도군 완도읍 노두목길 20
대지면적 15,189.00㎡
건축면적 2,815.43㎡
연면적 5,060.51㎡
규모 지상 1층, 지상 2층
건폐율 18.53%
용적율 31.02%
대표건축가 양재찬
프로젝트건축가 박기찬, 황윤성, 윤희원, 김상호
발주자 전라남도교육청
해당 프로젝트는 건축문화 2023년 10월호(Vol. 509)에 게재되었습니다.
The project was published in the October, 2023 recent projects of the magazine(Vol. 509).
October 2023 : vol. 509
Contents : Records Build the Future City through ‘Land Architect’, The 4th Seoul Biennale of Architecture and Urbanism 2023 땅의 건축으로 미래의 도시 모습을 그리다, 서울도시건축비엔날레 Another ‘Scale’ of 15-year Journey
anc.masilwide.com
'Architecture Project > Education' 카테고리의 다른 글
| Schulhaus Aarberg (0) | 2024.02.07 |
|---|---|
| Samhyang Elementary School Green-smart Main Building and Library (0) | 2024.01.24 |
| Eunpyeong High School Student Lounge (0) | 2024.01.22 |
| Yeonseo Middle School Library (0) | 2024.01.19 |
| Deoksan Middle School Shelter (0) | 2024.01.18 |
마실와이드 | 등록번호 : 서울, 아03630 | 등록일자 : 2015년 03월 11일 | 마실와이드 | 발행ㆍ편집인 : 김명규 | 청소년보호책임자 : 최지희 | 발행소 : 서울시 마포구 월드컵로8길 45-8 1층 | 발행일자 : 매일



