
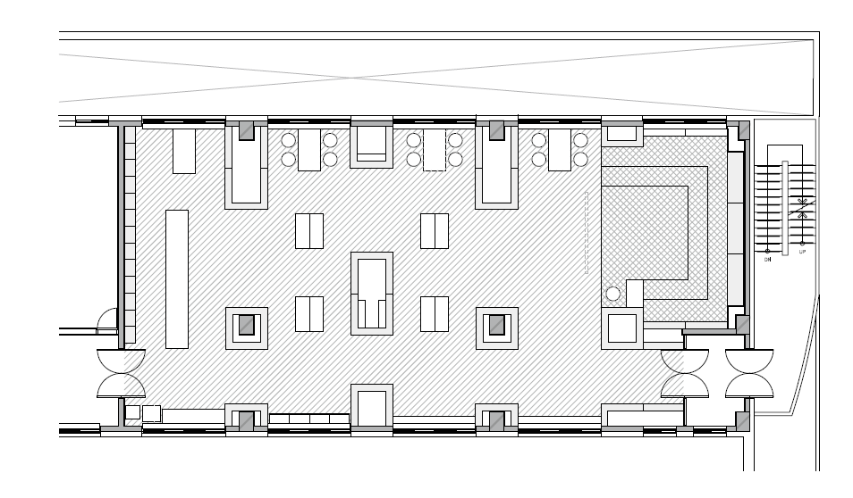
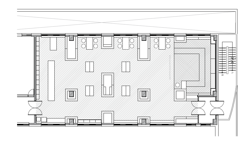
연서중학교 도서관 건물은 경사면에 건축되어 한면은 채광이 가능하나 다른 한 면은 옹벽을 마주하여 구조적으로 채광의 어려움이 있는 공간이었다. 도서관 내의 넓은 면적에도 불구하고 층고가 낮아 전체적으로 좁고 어두우며, 수업과 독서를 할 수 있는 공간이 분리되어 공간의 활용도가 낮았다.
건축가는 기존 학교 도서관의 전형적인 디자인에서 벗어나 밝고 화사한 카페와 같은 디자인을 적용하여 공간이 넓어 보이게 했다. 서가와 녹색의 가구는 직사각형의 서가를 병렬로 배치하는 구조에서 벗어나 지그재그 형태로 엇갈려 배치해 다채로운 느낌을 더한다. 도서관에는 구조 기둥을 감싸는 서가(Book Pillar)를 기둥 형태로 제작 및 배치하여 도서관의 면적 활용을 극대화했다. 내측 창에 인접한 독서공간과 서가로 둘러싸인 계단형 공간은 도서관 내의 다양한 교육 프로그램을 장려한다.









건축가 이강준(한양대학교 에리카) + 에이블 스튜디오
위치 서울특별시 은평구 증산서길 125-6
연면적 247.5㎡
설계기간 2022. 5. - 7.
시공기간 2022. 8. - 10.
준공 2022. 10.
대표건축가 이강준
프로젝트건축가 이강준
디자인팀 정희다 (에이블 스튜디오), 김규리, 박세진, 고규민, 조정곤, 이예은, 윤희경
발주자 연서중학교
사진작가 이현준
해당 프로젝트는 건축문화 2023년 10월호(Vol. 509)에 게재되었습니다.
The project was published in the October, 2023 recent projects of the magazine(Vol. 509).
October 2023 : vol. 509
Contents : Records Build the Future City through ‘Land Architect’, The 4th Seoul Biennale of Architecture and Urbanism 2023 땅의 건축으로 미래의 도시 모습을 그리다, 서울도시건축비엔날레 Another ‘Scale’ of 15-year Journey
anc.masilwide.com
'Architecture Project > Education' 카테고리의 다른 글
| Wando Girls Middle School Green-smart Main Building (0) | 2024.01.23 |
|---|---|
| Eunpyeong High School Student Lounge (0) | 2024.01.22 |
| Deoksan Middle School Shelter (0) | 2024.01.18 |
| Seong-am International Trade High School Forest Library (0) | 2024.01.17 |
| Dream Space I-Eum (0) | 2024.01.16 |
마실와이드 | 등록번호 : 서울, 아03630 | 등록일자 : 2015년 03월 11일 | 마실와이드 | 발행ㆍ편집인 : 김명규 | 청소년보호책임자 : 최지희 | 발행소 : 서울시 마포구 월드컵로8길 45-8 1층 | 발행일자 : 매일



