
희이재는 20대 자녀와 함께 사는 부부가 미래의 손주가 놀러 올 때를 생각하며 지은 집이다. 40년 전부터 형성되어 온 화명동 신도시의 주택 단지에 속해 있다. 대지는 서쪽으로 경사진 도로를 접하고, 나머지 방향은 교회와 주택으로 둘러싸여 있다. 층수와 레벨이 상이한 인접 건물과의 관계와 경사진 도로에서 진입로와의 연결이 중요했다.
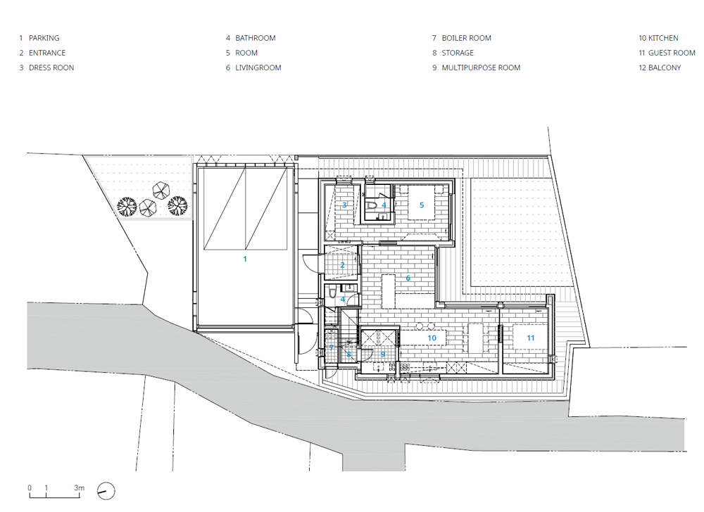
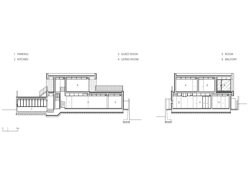
밝은 주거 공간을 위해 남향에 마당을, 접근성을 고려하여 북쪽에는 주차 공간을 두었다. 부부 중심의 생활 공간인 1층은 마당을 중심으로 안방, 거실, 주방을 배치하고 한쪽으로 게스트룸을 두어 안방과의 관계를 고려하였다. 2층은 자녀의 독립적인 생활 공간으로 작은 주방을 가진 거실과 침실을 배치하였다. 유일하게 트인 조망을 볼 수 있는 거실은 프라이빗한 휴식 공간으로 구상했고, 거실 양쪽에는 넓은 테라스를 두어 다양한 외부 활동이 가능하다.
단순한 형태의 희이재는 사생활 보호를 위해 이웃집을 향하는 창의 크기는 최소화했다. 반면 남쪽 마당으로 향하는 창의 크기는 크게 하여 개방감 있는 공간으로 계획한 것이 특징이다.

Heeijae is a house built by a couple who lived with their kids who are in their 20s, and were thinking about the future visits of their grandchildren when they come to play. It is located in a housing complex in Hwamyung-dong, a newly developed city, which has been forming for the past 40 years. The land is bordered by a sloping road to the west, with the rest abutting a church and houses. The relationship with adjacent buildings with varying floors and levels, and the connection to the entrance road on the sloping street, were crucial considerations.
To create a bright living space, a courtyard was placed to the south, while parking spaces were located to the north for accessibility. The first floor, which serves as the central living space for the couple, is organized around the courtyard, with the master bedroom, living room, and kitchen, along with a guest room positioned on one side to provide privacy to the master bedroom. The second floor is designed as an independent living space for the children, with a small kitchen, living room, and bedroom. The living room, which offers the only open view, is envisioned as a spot for private relaxation. Both sides of the living room feature spacious terraces, allowing for various outdoor activities.
The size of windows facing neighboring houses were minimized to protect privacy. On the other hand, the windows facing the southern courtyard are larger, creating an open and spacious atmosphere.
















건축가 FLM architects
위치 부산광역시 북구 화명동
용도 단독주택
대지면적 361.00㎡
건축면적 209.22㎡
연면적 279.56㎡
규모 지상 2층
건폐율 57.96%
용적률 60.75%
설계기간 2022. 3. - 9.
시공기간 2022. 11. - 2023. 7.
준공 2023. 7.
대표건축가 구대서, 박중규
구조엔지니어 플러스구조이엔씨(주)
기계엔지니어 에스엘설비
전기엔지니어 (주)장인기술단
시공 대장종합건설
발주자 이희찬
사진작가 김용수
해당 프로젝트는 건축문화 2023년 10월호(Vol. 509)에 게재되었습니다.
The project was published in the October, 2023 recent projects of the magazine(Vol. 509).
October 2023 : vol. 509
Contents : Records Build the Future City through ‘Land Architect’, The 4th Seoul Biennale of Architecture and Urbanism 2023 땅의 건축으로 미래의 도시 모습을 그리다, 서울도시건축비엔날레 Another ‘Scale’ of 15-year Journey
anc.masilwide.com
'Architecture Project > Single Family' 카테고리의 다른 글
| SHIFT HOUSE (0) | 2024.01.15 |
|---|---|
| The Curve (0) | 2024.01.12 |
| METAMORPHOSE (0) | 2024.01.01 |
| Villa BW (0) | 2023.12.27 |
| The Veil House (0) | 2023.12.25 |
마실와이드 | 등록번호 : 서울, 아03630 | 등록일자 : 2015년 03월 11일 | 마실와이드 | 발행ㆍ편집인 : 김명규 | 청소년보호책임자 : 최지희 | 발행소 : 서울시 마포구 월드컵로8길 45-8 1층 | 발행일자 : 매일



