
호재는 한옥의 중정처럼 여유 있고 고요한 분위기를 담아낸 단독주택이다. 건축물의 배치는 프라이버시와 대지의 특성을 고려했다. 대지의 진입로는 북쪽에 있고 나머지 면은 인접 대지와 면한다. 도로로 창을 내지 않아도 되어 중정 형태가 적합한 땅이었다. 남쪽을 향해 열려 있는 ‘ㄷ’ 자 배치를 통해 길에서 바로 현관이 보이지 않게 숨기고, 집과 외부 공간에서 동선을 느낄 수 있게 계획했다. 도로 쪽 외벽은 완만한 곡선으로 디자인하며, 여유 공간에 전면 조경을 조성했다. 집의 이름도 완만한 곡선을 뜻하는 활 호(弧) 자를 따서 호재(弧齋)라고 하였다.
외장재로 선택한 붉은 벽돌은 집의 분위기와 어울리고 시간에 따라 변화하는 재료이다. 외벽의 곡선 부분은 벽돌의 거친 면으로 마감하고, 내부는 일반 벽돌에 가로줄눈으로 시공하여 내외부 각각에 차이를 주었다. 밖에서 바라볼 때는 하나의 재료, 벽돌만 보이도록 디테일을 고민했다. 그 결과 플래싱과 외부 천장의 금속 디테일은 선적인 요소로 보이도록 계획했다.
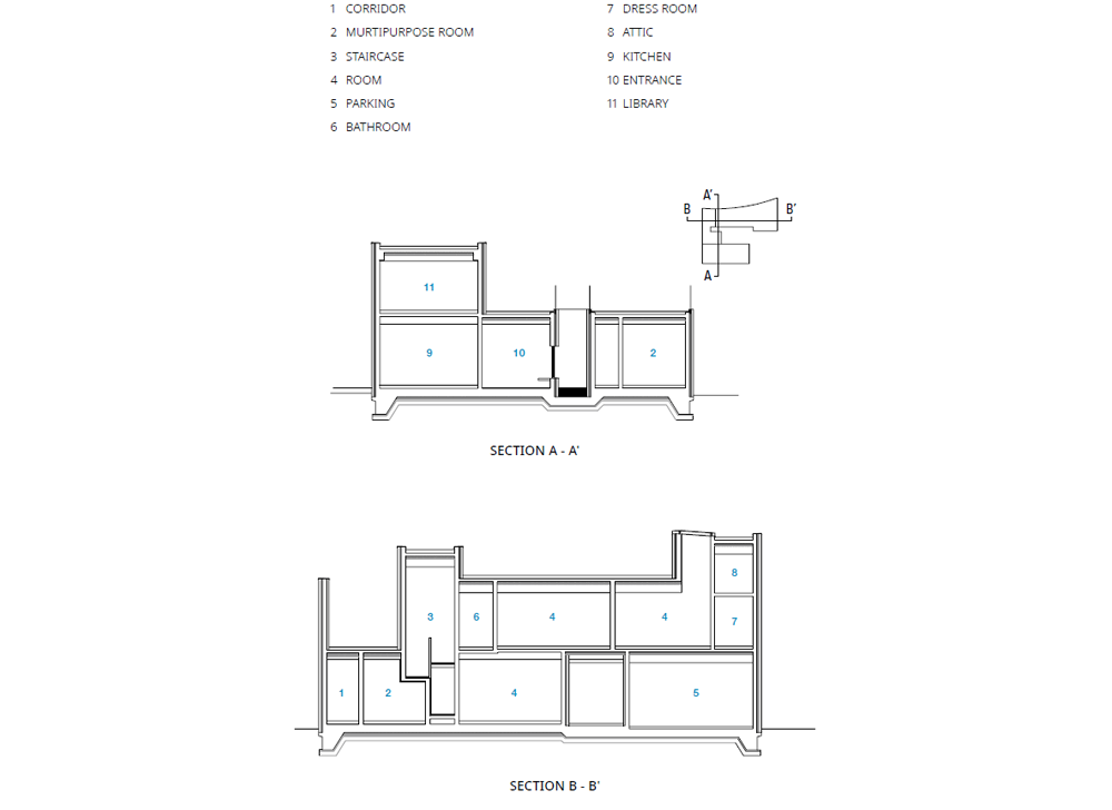
집의 규모를 고려하여 대문과 현관을 분리했다. 대문에서 현관으로 가는 여정을 통해 중정을 지나며 집의 내부를 볼 수 있다. 거실은 주방과 연결하고 층고를 높여 다른 공간과 차별화했다. 방과 화장실은 프라이버시가 보장된 공간으로 계획하고 창호와 커튼, 조명 또한 공간과 어울리게 선택했다. 2층 테라스는 인접 주택으로부터 차폐하고 자연을 향해 열리도록 디자인했다. 세 개의 테라스는 안팎이 만나는 소통의 공간이며 휴식과 활동이 가능하다. 외부 공간은 유지 관리와 사용성을 고려하여 수목이 있는 조경과 돌로 마감한 부분으로 구분했다. 거실 앞 정원에는 잔디를 심고 중정은 판석으로 마감했다.

Hojae is a detached house that embodies a relaxed and serene atmosphere, reminiscent of the courtyard in a traditional Korean house (hanok). The design of the building takes into considerations privacy and the characteristics of the land. The entrance to the site is located to the north, with the remaining sides adjoining neighboring plots. The land was suitable for a courtyard-like layout as it did not require windows facing the road. By arranging the house in a 'ㄷ' shape open to the south, the entrance is strategically concealed from direct view, allowing for a connection between the house and the outdoors. The outer wall facing the road was designed with a gentle curve, and extensive landscaping was incorporated into the spacious area. The name of the house, Hojae (弧齋), is derived from the Chinese character '弧' meaning a gentle curve.
The red brick, chosen for the exterior is a material that complements the atmosphere of the house and undergoes changes over time. The curved sections of the exterior walls are finished with the rough surface of the bricks, while the interior is constructed with horizontal-lined bricks to create a contrast between the interior and exterior. Careful consideration was given to the details so that when viewed from the outside, only one material, the brick, is visible. As a result, the detailing of the flashing and metal elements on the exterior ceiling was planned to appear as linear elements.
Because of the size of the house, the entrance and the foyer were separated. When passing through the courtyard on the journey from the entrance to the foyer, one can glimpse the interior of the house. The living room is connected to the kitchen, and the higher ceiling differentiates it from other spaces. Bedrooms and bathrooms were planned to, ensure privacy, and window frames, curtains, and lighting were selected to harmonize with the spaces. The second-floor terrace was designed to provide privacy from neighboring houses while providing and access to nature. The three terraces serve as spaces for communication where the interior and exterior meet, offering opportunities for relaxation and activities. The outside is divided into landscaped areas with trees for maintenance and usability, and stone-finished areas. Grass is planted in the front garden, and the courtyard is finished with flagstones.















건축가 건축사사무소 공장
위치 경기도 김포시 장기동
용도 단독주택
대지면적 464.10㎡
건축면적 184.47㎡
연면적 249.87㎡
규모 지상 2층
건폐율 39.75%
용적률 53.84%
설계기간 2021. 6. – 2022. 4.
준공 2022
대표건축가 정우석
프로젝트건축가 정우석
디자인팀 기성윤
구조엔지니어 최민태
시공 (주)동양
사진작가 김창묵
해당 프로젝트는 건축문화 2023년 10월호(Vol. 509)에 게재되었습니다.
The project was published in the October, 2023 recent projects of the magazine(Vol. 509).
October 2023 : vol. 509
Contents : Records Build the Future City through ‘Land Architect’, The 4th Seoul Biennale of Architecture and Urbanism 2023 땅의 건축으로 미래의 도시 모습을 그리다, 서울도시건축비엔날레 Another ‘Scale’ of 15-year Journey
anc.masilwide.com
'Architecture Project > Single Family' 카테고리의 다른 글
| House in Mabi Ⅲ (0) | 2024.01.16 |
|---|---|
| SHIFT HOUSE (0) | 2024.01.15 |
| Heeijae (0) | 2024.01.12 |
| METAMORPHOSE (0) | 2024.01.01 |
| Villa BW (0) | 2023.12.27 |
마실와이드 | 등록번호 : 서울, 아03630 | 등록일자 : 2015년 03월 11일 | 마실와이드 | 발행ㆍ편집인 : 김명규 | 청소년보호책임자 : 최지희 | 발행소 : 서울시 마포구 월드컵로8길 45-8 1층 | 발행일자 : 매일



