
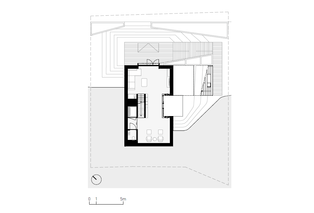
빌라 비더블유는 사구와 간척지가 만나는 대지 환경에 맞게 조성된 빌라다. 마치 비틀어진 듯한 곡선 지붕과 색색의 타일 마감으로, 일견 독특해 보이지만 주변 환경에 자연스럽게 어우러진다. 비정형의 곡선 지붕은 대지 주위 건물의 지붕 형태에서 기안한 디자인이다. 사구에 자리한 집들은 박공지붕이며 간척지에 가까운 집들은 평지붕인 것을 볼 수 있다. 이 두 가지 지붕 모양을 겹쳐서 특별한 디자인의 지붕을 완성했고, 모놀리스 형태의 매스에 자연스러운 악센트를 부여했다. 4층 빌라 지붕 아래에는 다락방이 숨어 있는 구조이며, 1층과 지하 1층은 사구와 간척지의 경사진 지형을 그대로 살려 외부 공간과 직접 이어져 있다. 지하층은 자연광이 들어오는 개방감 있는 공간으로 계획하기 위해 커튼 월을 적용했다. 지하층부터 이어지는 코어는 목재 마감재를 사용하여 화장실 등의 프라이버시가 필요한 공간에 적합하게 계획했다.
외장재와 지붕재는 한 가지 재료로 통일하여 일관성을 부여하고, 인공적인 재료가 아닌 맞춤 제작한 세라믹 타일을 사용하여 자연과의 연결성을 강조했다. 파사드의 메인 요소인 유광 타일은 사구와 간척지의 사계절 풍경에서 따온 색상 팔레트를 적용했다. 다섯 가지 음영의 초록, 파랑, 회색으로 이루어진 타일은 건축물을 주변 풍경에 자연스레 녹아들게 한다. 색상과 코팅은 대지에서 진행한 샘플 스터디를 통해 선정했는데, 빛의 변화에 따라 시시각각 다채롭게 변화하는 외관을 표현하기 위해 유광 타일로 결정했다. 수직 패턴과 오픈 조인트는 지붕까지 일직선으로 이어지는 타일 디자인을 가능케 했다. 지붕의 곡선은 반복되는 패턴이 눈에 띄지 않도록 변화를 주어 파사드가 한층 자연스러워졌다.

Villa BW is a villa built to suit the land environment where dunes meet reclaimed land. With its twisted, curved roof and colorful tile finish, it looks unique at a glance, but blends in naturally with its surroundings. The atypical curved roof was inspired by the roof shapes of the surrounding buildings on the site. The houses on the dunes have gabled roofs, while those closer to the reclaimed land have flat roofs. The overlapping of these two roof shapes creates a unique roof design and gives a natural accent to the monolithic massing. The attic is hidden beneath the roof of the four-story villa, while the ground floor and basement floor have direct access to the outside space, taking advantage of the sloping terrain of the dunes and reclaimed land. A curtain wall was applied to the basement level to create an open space with natural light. The core extending from the basement level uses wood finishes to provide privacy for spaces that require it, such as restrooms.
Using a single material for the facade and roof provides consistency, and the connection with nature was emphasized by using custom-made ceramic tiles rather than artificial materials. The glazed tiles, the main element of the façade, uses a color palette inspired by the seasonal landscape of sand dunes and reclaimed land. Tiles in five shades of green, blue, and gray allow the building to blend naturally into the surrounding landscape. The colors and coatings were selected through sample studies conducted on the site, and the glazed tiles were chosen to express a colorful appearance that varies according to the changing light. Vertical patterns and open joints made it possible for the tile design to extend in a straight line up to the roof. The curve of the roof was varied to make the repeating pattern less noticeable, giving the façade a more natural look.










건축가 Mecanoo
위치 네덜란드, 스호를
용도 단독주택
연면적 308.00㎡
규모 지하 2층, 지상 2층
설계 2021
준공 2022
사진작가 Ossip Architectuurfotografie
해당 프로젝트는 건축문화 2023년 9월호(Vol. 508)에 게재되었습니다.
The project was published in the September, 2023 recent projects of the magazine(Vol. 508).
September 2023 : vol. 508
Contents : Records Architecture, Built from Empathy and Respect 이해와 존중을 바탕으로 지어지는 건축물들 Sketch Out the Urban Regeneration of Jinju, The 2nd 2023 Jinju Architecture Festival 진주 도시재생의 밑그림을 그리다,
anc.masilwide.com
'Architecture Project > Single Family' 카테고리의 다른 글
| Heeijae (0) | 2024.01.12 |
|---|---|
| METAMORPHOSE (0) | 2024.01.01 |
| The Veil House (0) | 2023.12.25 |
| Casa Piedra (0) | 2023.12.19 |
| Sangdae-dong HIDE-and-SEEK HOUSE (0) | 2023.12.12 |
마실와이드 | 등록번호 : 서울, 아03630 | 등록일자 : 2015년 03월 11일 | 마실와이드 | 발행ㆍ편집인 : 김명규 | 청소년보호책임자 : 최지희 | 발행소 : 서울시 마포구 월드컵로8길 45-8 1층 | 발행일자 : 매일



