
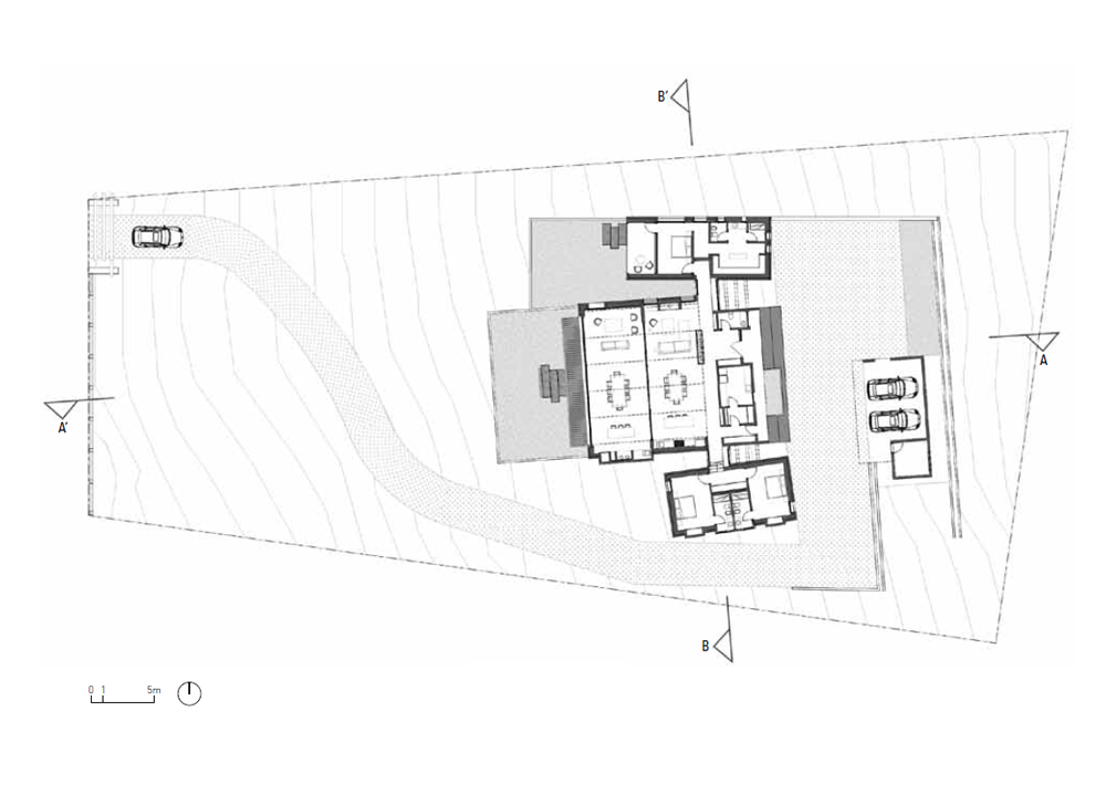
카사 피에드라는 아르헨티나의 광활한 자연환경과 공존하는 별장이다. 투쿠만의 프라이빗한 마을 라스 시링기야스(Las Siringuillas)의 가장 높은 곳에 자리한 대지에서는 라 앙고스투라(La Angostura) 댐 등의 풍경을 파노라마로 볼 수 있다. 이 여름 별장은 사막의 일교차가 큰 기후를 고려해 자연환경과 어우러지도록 계획됐다. 경치를 방해하지 않도록 단층으로 계획하고, 마치 땅 위에 나무 블록을 늘어놓은 듯한 형태로 디자인됐다. 공간의 성격에 맞게 세 개로 분할한 매스는 경사진 지형과 어우러진다. 스페인어로 돌을 의미하는 ‘피에드라(Piedra)’라는 이름처럼 지역에서 나는 석재로 외장을 마감하여 자연스러움을 더했다.
별장의 주 출입구를 통해 들어서면 메인 공간이 있다. 독특한 경사 구조의 천장과 넓은 창문으로 이루어진 개방적인 공간으로 거실, 다이닝룸, 주방 등 사람들이 모이고 함께 사용하는 곳이다. 침실 등 프라이빗한 용도의 공간은 두 매스에 분배했고, 인테리어는 목재로 마감하여 따뜻한 느낌으로 완성하였다. 세 가지 공간을 연결하는 복도는 자연광이 들어오도록 천장이 있는 발코니와 유리 브리지로 계획했다. 고요히 서 있지만 독특한 존재감을 가진 이 여름 별장에서는 여름뿐만 아니라 사계절 언제나 풍경을 즐길 수 있다.

Casa Piedra is a vacation home that coexists with Argentina’s vast natural environment. Perched atop the highest point of Las Siringuillas, a private village in Tucumán, the site offers panoramic views of the landscape, including the La Angostura Dam. The summer villa was planned to blend in with its natural surroundings, taking into account the desert climate with its large diurnal temperature range. To avoid obstructing the scenery, it was planned as a single-story house and designed to look like wooden blocks lined up on the ground. The massing, divided into three sections according to the nature of the space, blends in with the sloping terrain. Like the name ‘Piedra’, which means ‘stone’ in Spanish, the exterior was finished with local stone to add a natural touch.
Upon entering through the main entrance of the villa, the main area is found. It is an open space with a unique sloping ceiling and large windows, where people gather and share the living room, dining room, and kitchen. Private spaces, such as bedrooms, are distributed into two masses, and the interiors are finished with wood to create a warm and welcoming feeling. The corridor connecting the three spaces was planned with a glass bridge and a balcony with a ceiling to let in natural light. This summer house, which stands quietly but has a unique presence, allows one to enjoy the scenery not only in summer but all year round.













건축가 Etéreo Arquitectos
위치 아르헨티나, 투쿠만
용도 단독주택
대지면적 3,500m2
연면적 390m2
규모 지상 1층
준공 2023
프로젝트건축가 Santiago Vittar, Diego Madrid, Daniel Tello
디자인팀 Natalia Gimenez, Isolda Elías, Angie Martin, Facundo Tapia, Santiago Robledo Salas
엔지니어링 Fundamenta Engineering
조경설계 Lolo Nagore Landscape Architect
사진작가 Gonzalo Viramonte
해당 프로젝트는 건축문화 2023년 9월호(Vol. 508)에 게재되었습니다.
The project was published in the September, 2023 recent projects of the magazine(Vol. 508).
September 2023 : vol. 508
Contents : Records Architecture, Built from Empathy and Respect 이해와 존중을 바탕으로 지어지는 건축물들 Sketch Out the Urban Regeneration of Jinju, The 2nd 2023 Jinju Architecture Festival 진주 도시재생의 밑그림을 그리다,
anc.masilwide.com
'Architecture Project > Single Family' 카테고리의 다른 글
| Villa BW (0) | 2023.12.27 |
|---|---|
| The Veil House (0) | 2023.12.25 |
| Sangdae-dong HIDE-and-SEEK HOUSE (0) | 2023.12.12 |
| SLIT (0) | 2023.12.11 |
| C4L (0) | 2023.12.06 |
마실와이드 | 등록번호 : 서울, 아03630 | 등록일자 : 2015년 03월 11일 | 마실와이드 | 발행ㆍ편집인 : 김명규 | 청소년보호책임자 : 최지희 | 발행소 : 서울시 마포구 월드컵로8길 45-8 1층 | 발행일자 : 매일



