
베일 하우스는 가오슝의 붉은색 벽돌 건축물을 현대적으로 재해석하여 주택이 마주한 다양한 문제를 입면 디자인을 통해 적극적으로 해결한다. 1899년 세워진 벽돌 공장은 가오슝을 번창시켰고 도시는 노동자로 붐볐다. 이러한 역사를 반영하듯 붉은 벽돌 건물은 가오슝에서 많이 찾아 볼 수 있지만 베일 하우스는 벽돌을 불규칙하게 비워 내 모던하게 디자인했다. 무게감 있는 재료인 벽돌을 사용해 가볍고 직물처럼 보이는 입면으로 완성한 것이다.
대지가 자리한 곳은 좁은 거리에 집들이 서로 어깨를 맞대고 있어 프라이 버시 문제를 해결해야 했다. 주변의 집들은 창문에 블라인드를 치고 발코니나 테라스 같은 외부 공간 사용은 지양하였지만, 베일 하우스의 벽돌 외피는 외부 공간을 차폐하여 사생활이 보장된다. 또한, 송송 뚫린 구멍으로는 주거 공간으로 햇빛을 불러들이고 환기를 가능하게 한다.
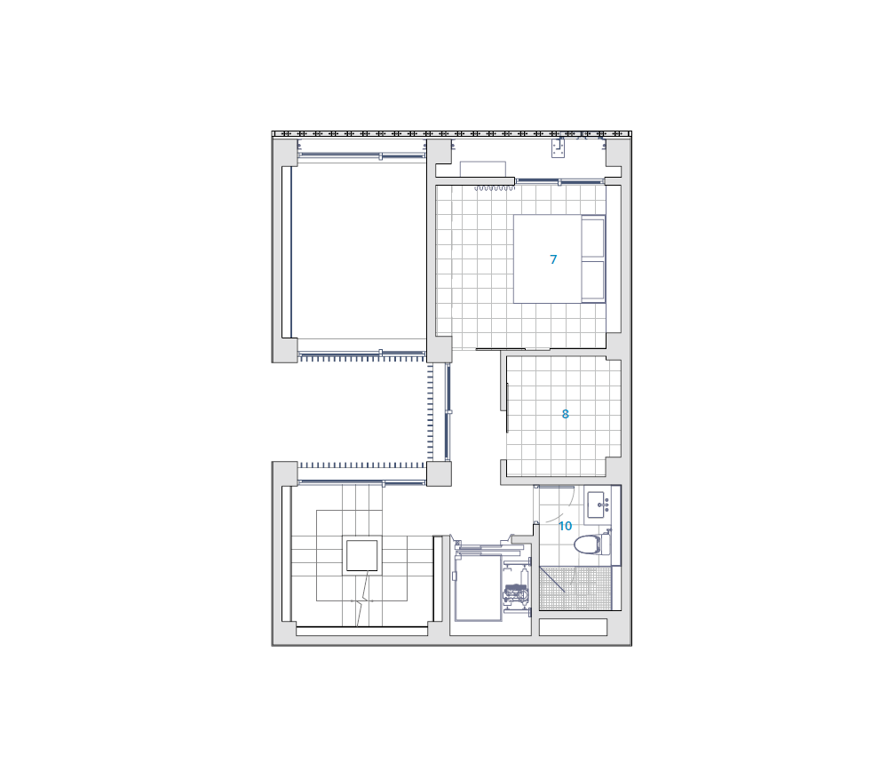
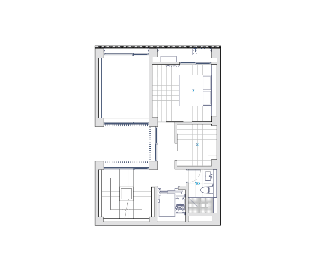
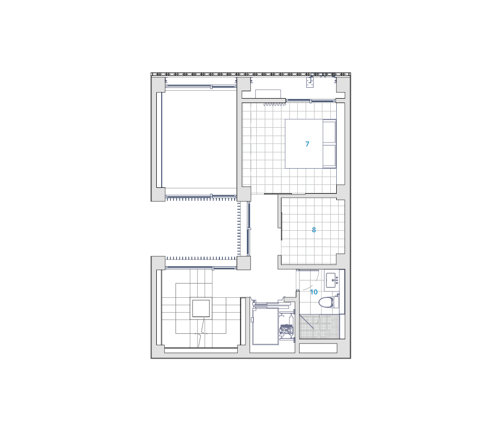
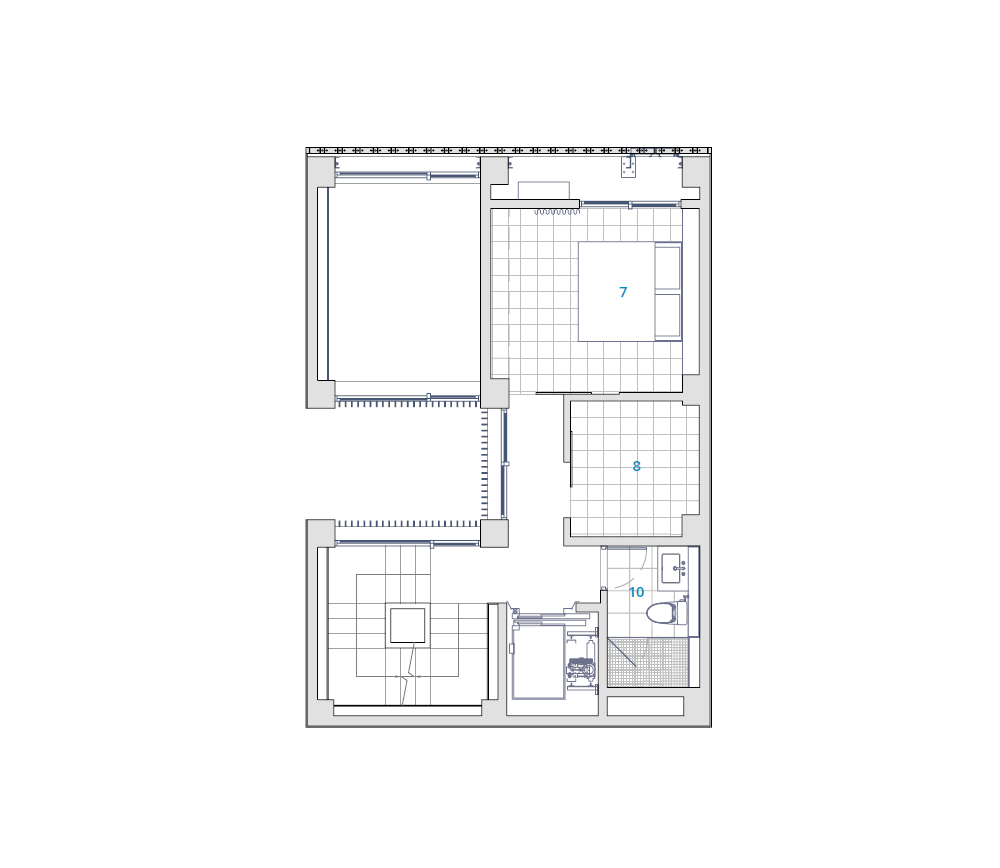
바쁜 도심의 거리에서 건물의 입구에 들어서면 휴식 같은 어반 가든이 기다리고 있다. 이어서 맞이하는 중정은 건축물의 엔진 같은 존재이다. 중정의 알루미늄 루버는 1층의 정원과 침실 발코니에 빛을 들이고 벽돌 외피와 더불어 맞통풍이 되는 계획이다. 인테리어 마감은 테라초 바닥재와 오크 목재로 통일하여, 외부 마감재인 벽돌이 강조되도록 계획했다. 베일 하우스의 입면은 건축물의 외관을 정의할 뿐 아니라, 바쁜 도심에서 휴식같이 아늑한 내부 공간을 느낄 수 있도록 한다.

The Veil House is a modern interpretation of Kaohsiung’s red brick architecture that proactively addresses the many challenges faced by houses through elevation design. Founded in 1899, the brick factory contributed to Kaohsiung’s prosperity and the city swarmed with workers. Reflecting this history, red brick buildings are ubiquitous in Kaohsiung, but the Veil House design is modernized by hollowing out the bricks irregularly. The result is a lightweight, fabric-like elevation using brick, a heavy material.
The site is located on a narrow street, with houses rubbing shoulders with each other, so privacy was an issue to be solved. While the neighboring houses have blinds on their windows and do not use exterior spaces such as balconies or terraces, the brick exterior of the Veil House shields the external space, ensuring privacy. Additionally, the openings allow sunlight into the living space and provide ventilation.
When you enter the building from a bustling city street, a relaxing urban garden awaits you. The courtyard that greets you next is like the engine of the building. The aluminum louvers of the courtyard bring light to the garden and bedroom balconies on the ground floor, and create cross-ventilation with the exterior finishing brick material. The interior finishes are unified with terrazzo flooring and oak woodwork to accentuate the brick exterior. The elevation of the Veil House not only defines the exterior of the building, but also creates a cozy interior space that feels like a break from the busy city center.

















건축가 Paperfarm Inc
위치 대만, 가오슝
용도 단독주택
대지면적 97.00㎡
건축면적 65.00㎡
연면적 315.00㎡
규모 지상 5층
건폐율 60%
용적율 300%
설계기간 2019. 1. - 2020. 2.
시공기간 2020. 5. - 2023. 4.
준공 2023
대표건축가 Daniel Yao
프로젝트건축가 Bing-Yu Yu
디자인팀 Daniel Yao, Jarrett Boor, Bing-Yu Yu
구조엔지니어 Antop Structural Engineering
시공 Yuan-Shen Construction, Yih Tsae Interiors
발주자 Yang Family
사진작가 Daniel Yao
해당 프로젝트는 건축문화 2023년 9월호(Vol. 508)에 게재되었습니다.
The project was published in the September, 2023 recent projects of the magazine(Vol. 508).
September 2023 : vol. 508
Contents : Records Architecture, Built from Empathy and Respect 이해와 존중을 바탕으로 지어지는 건축물들 Sketch Out the Urban Regeneration of Jinju, The 2nd 2023 Jinju Architecture Festival 진주 도시재생의 밑그림을 그리다,
anc.masilwide.com
'Architecture Project > Single Family' 카테고리의 다른 글
| METAMORPHOSE (0) | 2024.01.01 |
|---|---|
| Villa BW (0) | 2023.12.27 |
| Casa Piedra (0) | 2023.12.19 |
| Sangdae-dong HIDE-and-SEEK HOUSE (0) | 2023.12.12 |
| SLIT (0) | 2023.12.11 |
마실와이드 | 등록번호 : 서울, 아03630 | 등록일자 : 2015년 03월 11일 | 마실와이드 | 발행ㆍ편집인 : 김명규 | 청소년보호책임자 : 최지희 | 발행소 : 서울시 마포구 월드컵로8길 45-8 1층 | 발행일자 : 매일



