
상대동 하이드 앤 시크 하우스는 단독주택에서의 삶을 동경한 가족의 새 안식처다. 근처 아파트에 살았던 부부와 어린 두 아이는 단지 내에 있는 친구의 집을 자주 왕래하며 단독주택에 머물기를 꿈꿨고 이내 꿈을 실행에 옮겼다. 다락 공간을 포함하면 총 네 개 층을 갖는 주택에서는 이동할 곳도 숨을 곳도 많다. 아이들이 가족, 친구들과 집 안 곳곳을 누비고 숨바꼭질하며 뛰놀기를 바랐다.
대지는 동쪽의 낮은 산자락에 둘러싸인 단독주택 단지의 가장 남측에 자리하며 텃밭과 낮은 산을 마주한다. 경관이 수려하고 채광이 좋은 남측에 큰 창을 가진 주요 실을 배치하여 쾌적한 생활 환경을 조성하였다. 건물은 도로보다 한 개 층 더 높게 조성하여 북측의 도로에서 지하층으로 차량이 직접 진입할 수 있다. 도로 측에서의 사생활 보호와 에너지 절약을 위해 창호의 수와 크기를 줄이되 남측과 맞통풍이 가능하도록 환기창을 설치하였다.
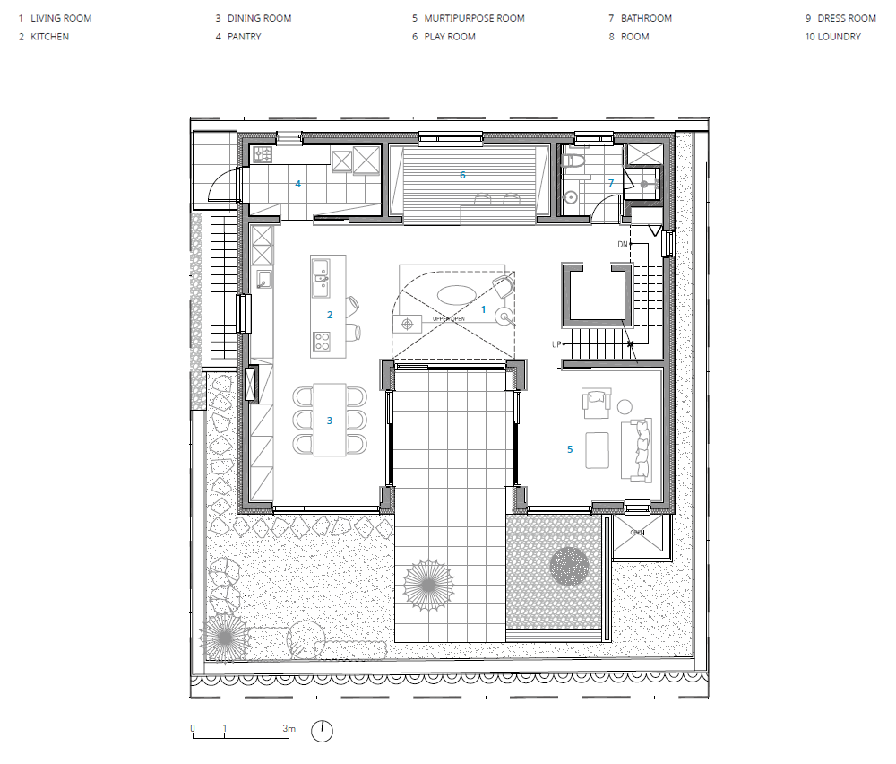
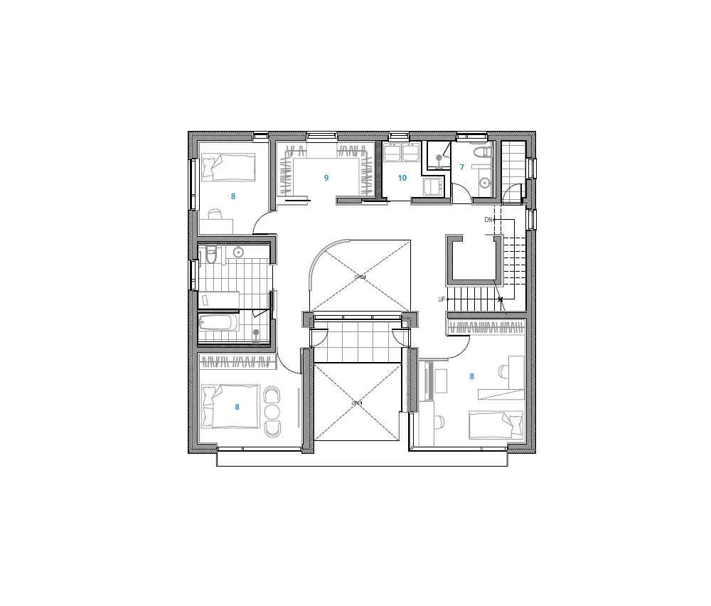
남측에 설치된 중정은 ‘ㄷ’ 형태의 배치로 인해 거실과 다이닝, 다목적실에 면하고 있으며 시각적으로 각 실이 확장되는 역할을 한다. 2층에는 부부와 아이의 침실을 배치했고, 입면의 테두리를 통해 분리된 매스를 연결했다. 중정과 정면으로 향하는 거실은 두 개 층의 오프닝을 통해 개방감과 채광을 극대화했다. 오프닝에 면해 설치된 2층의 부드러운 곡면은 동선을 자연스럽게 유도하고 공간에 변화를 준다. 거실과 다이닝에 인접한 주방에서는 요리하며 아이들과 대화할 수 있다. 아늑한 다이닝은 남측의 좋은 경관을 실내로 끌어 들인다. 또한 아이들을 위해 동선상 내부 단차가 없도록 계획하였고 넓은 복도와 엘리베이터를 적용하였다. 다락 공간은 두 개의 옥상마당으로 연결된다. 높은 벽으로 구획되어 하늘로 열린 하늘마당과 외부의 경관을 향해 열려 있는 쇄석마당은 가족에게 쉼과 모임의 장소가 된다.

The Hide-and-Seek House in Sangdae-dong is the new home of a family who longed to live in a detached house. While living in a nearby apartment, the couple and their two young children frequently visited a friend's house in the complex and dreamed of living in a detached house, and soon realized their dream. In a house with four floors, including the attic space, there are plenty of places to run and hide. The hope was for the children to run around the house and play hide and seek with their family and friends.
The site is located at the southernmost part of a detached house complex surrounded by low foothills in the east, facing a vegetable garden and low mountains. The main rooms with large windows are located on the south side, which has a good view and good light, creating a pleasant living environment. The building is set one floor higher than the road, allowing vehicles to enter the basement directly from the road on the north side. The number and size of windows on the side facing the road were reduced to protect privacy and save energy, and a ventilation window was installed to allow ventilation on the south side.
The courtyard on the south side faces the living, dining, and multipurpose rooms due to its 'U' shape, and serves as a visual extension of each room. The couple's and child's bedrooms are located on the second floor, and the separated masses are connected through the borders of the elevation. The living room, which faces the courtyard and main hall, has openings on two levels to maximize openness and light. The soft curved surface of the second floor, which faces the opening, creates a natural circulation and changes the space. The kitchen, adjacent to the living room and dining room, allows for conversation with the children while cooking. The cozy dining room draws the good scenery of the south side into the room. In consideration of the children, the plan has no steps and includes a wide corridor and elevator. The attic space leads to two rooftop terraces. The sky terrace sectioned by high walls, which is open to the sky, and the crushed stone yard, which is open to the outside scenery, is a place of rest and gathering for the family.














건축가 히스윌 건축사사무소 + (주)필로티스건축사사무소
위치 대전 유성구
용도 단독주택
대지면적 290.00㎡
건축면적 144.90㎡
연면적 367.55㎡
규모 지하 1층, 지상 2층
건폐율 49.97%
용적률 77.27%
준공 2023. 4.
대표건축가 히스윌 건축사사무소_이동균, (주)필로티스건축사사무소_박형수
프로젝트건축가 이동균, 박형수
디자인팀 권영대, 김찬미, 김의민
구조엔지니어 건축구조연구소 다우
기계엔지니어 (주)주성이엔지
전기엔지니어 동양디앤에스
토목엔지니어 토담이앤지
시공 청목건설(주)
사진작가 구의진
해당 프로젝트는 건축문화 2023년 9월호(Vol. 508)에 게재되었습니다.
The project was published in the September, 2023 recent projects of the magazine(Vol. 508).
September 2023 : vol. 508
Contents : Records Architecture, Built from Empathy and Respect 이해와 존중을 바탕으로 지어지는 건축물들 Sketch Out the Urban Regeneration of Jinju, The 2nd 2023 Jinju Architecture Festival 진주 도시재생의 밑그림을 그리다,
anc.masilwide.com
'Architecture Project > Single Family' 카테고리의 다른 글
| The Veil House (0) | 2023.12.25 |
|---|---|
| Casa Piedra (0) | 2023.12.19 |
| SLIT (0) | 2023.12.11 |
| C4L (0) | 2023.12.06 |
| RUDE HOUSE (0) | 2023.12.04 |
마실와이드 | 등록번호 : 서울, 아03630 | 등록일자 : 2015년 03월 11일 | 마실와이드 | 발행ㆍ편집인 : 김명규 | 청소년보호책임자 : 최지희 | 발행소 : 서울시 마포구 월드컵로8길 45-8 1층 | 발행일자 : 매일



