
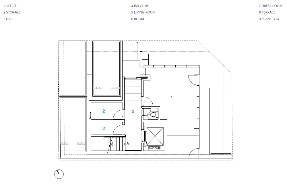
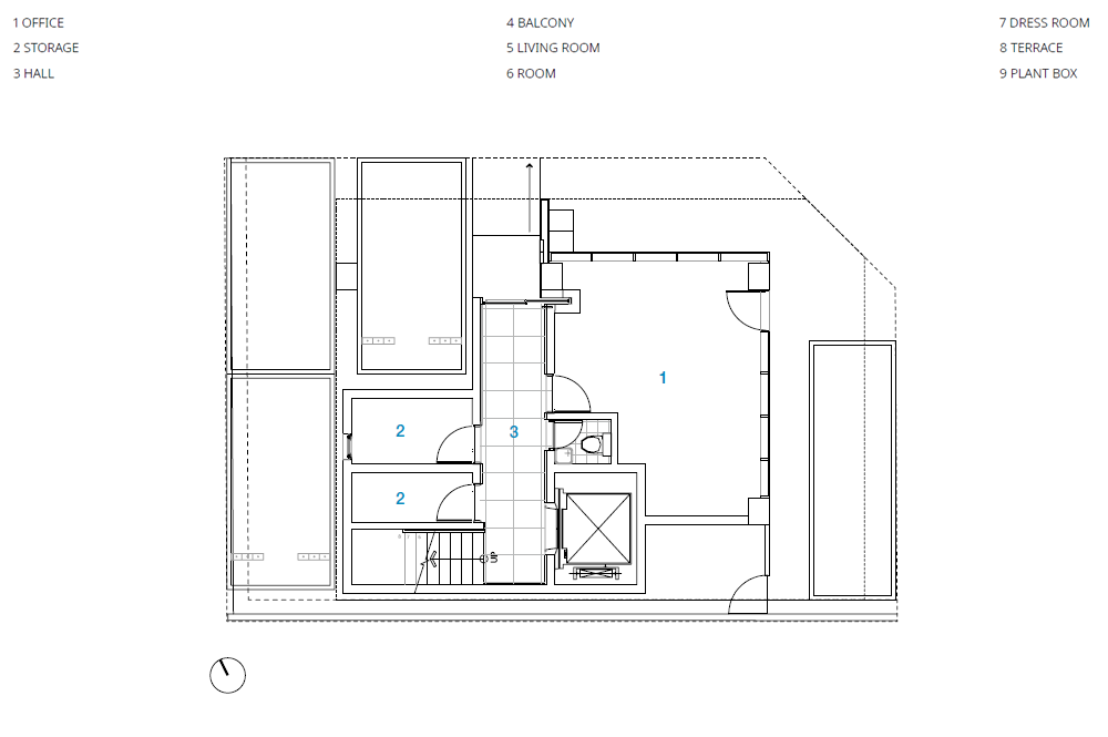
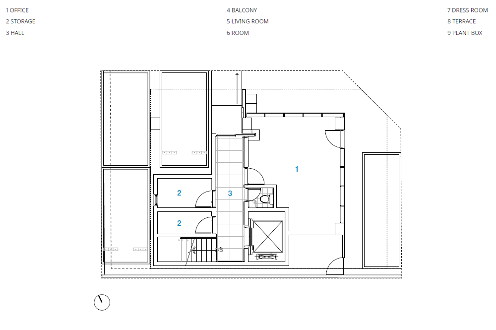
어라운드 코너는 중곡동의 빌라들이 가득한 빌라촌의 골목길, 4-5층 규모의 빌라들이 만나는 코너에 위치한다. 건축주는 노후를 위한 임대용 주거 공간과 부모님과 건축주 세대로 구성되는 다가구 주택을 희망했다. 동시에 1-2층은 근린생활시설을 두어 코너 어딘가 소통할 수 있는 공간을 마련하고자 했다. 1층의 전면부에는 작은 가게와 전면 공간을 두고 2층에 외부 발코니를 둔 이유다. 이 길을 지나가는 사람들에게 주택으로 시선을 모으거나 소통을 할 수 있는 가능성을 만들고 있다. 이 건물로 향하는 동안, 비슷한 규모의 빌라 현관과 주차장을 바라보고, 골목을 걸어가며 만나는 사람들에게 말을 걸 수 있기를 바랐다.
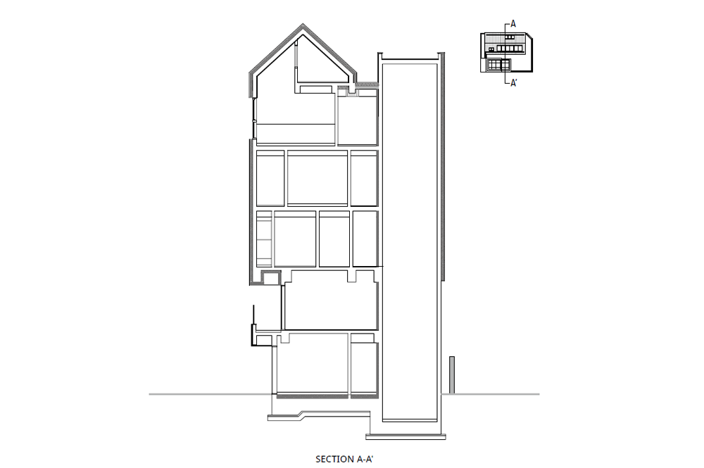
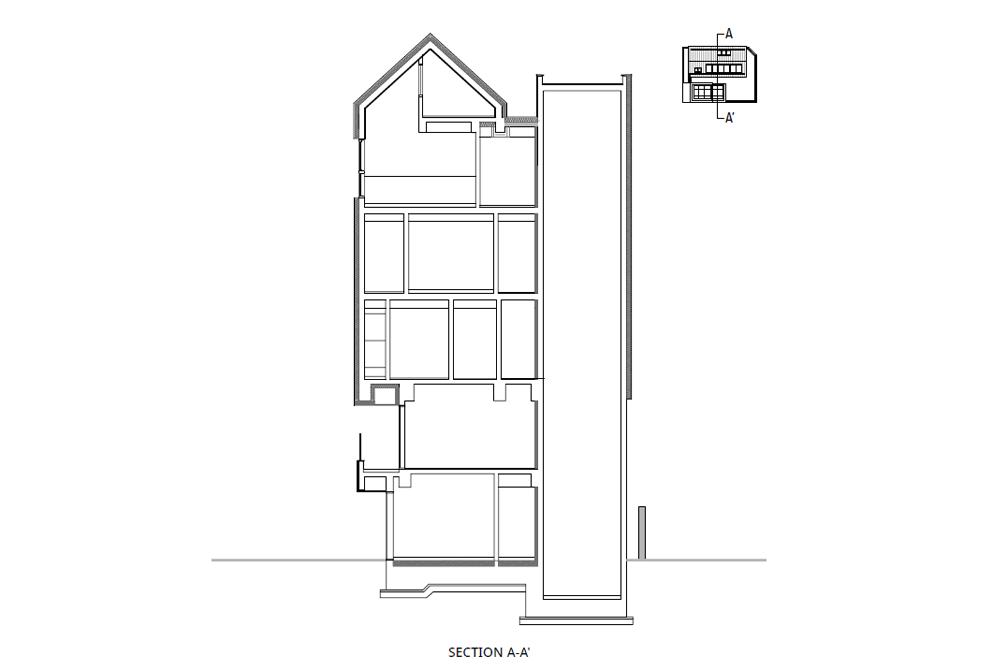
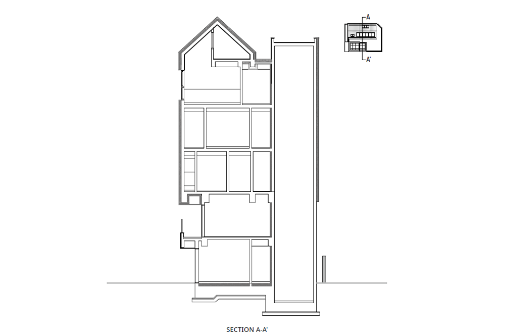
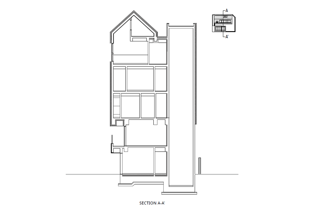
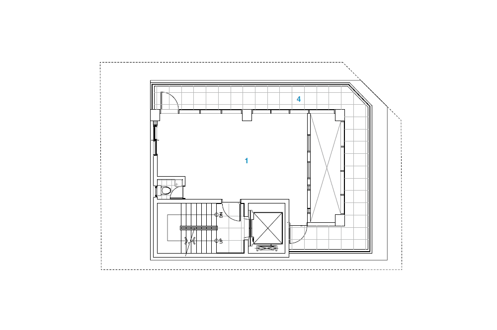
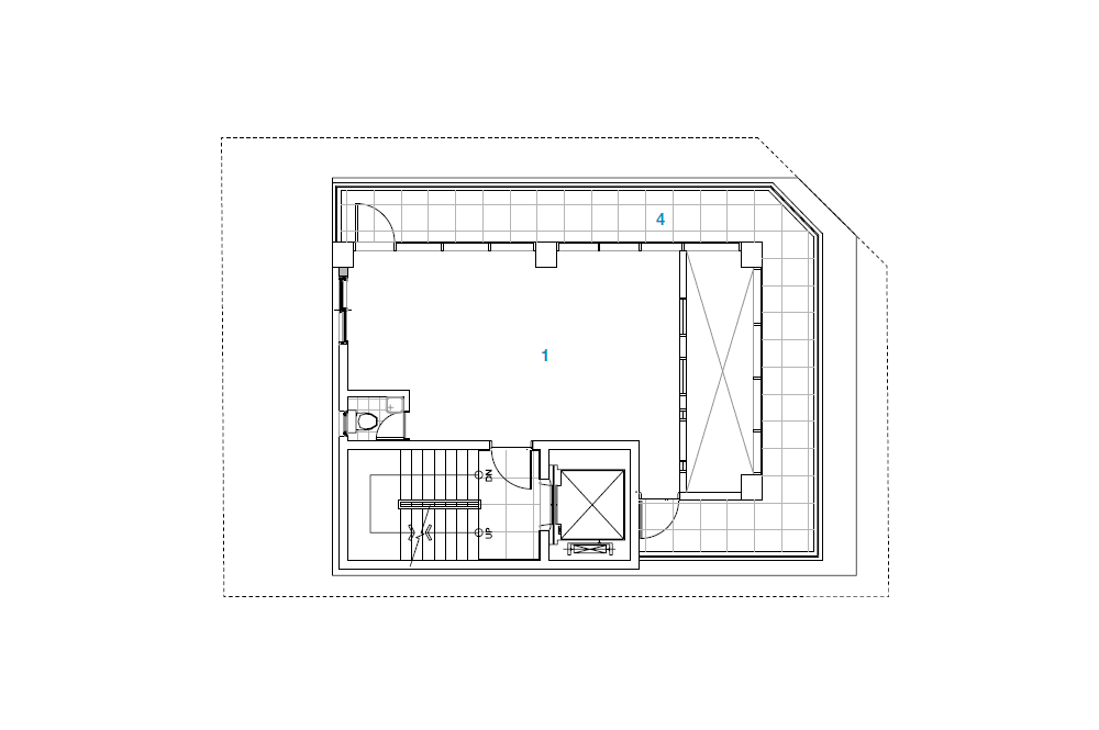
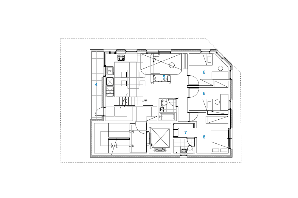
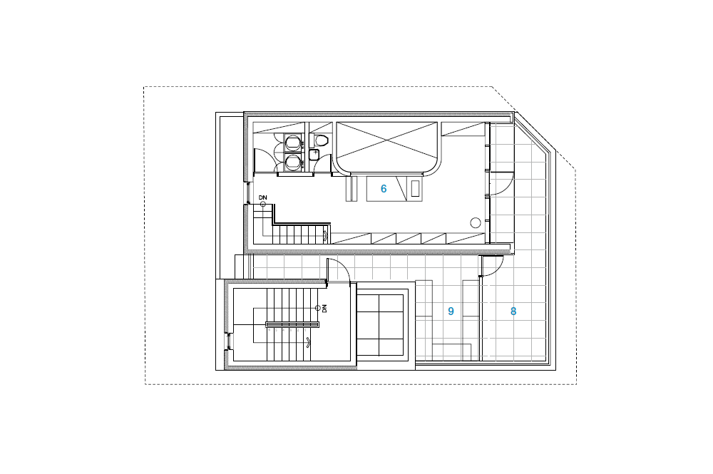
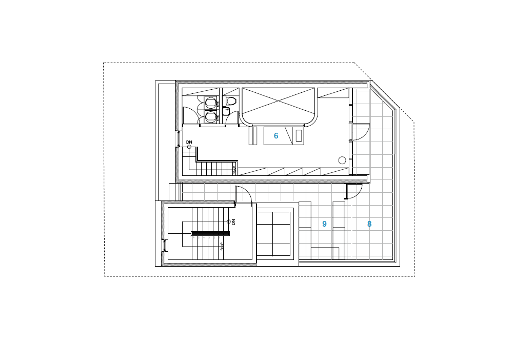
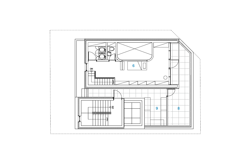
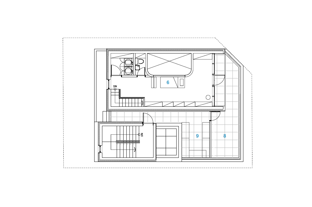
저층부는 가로를 향해 열려있고, 중층부는 주거의 채광과 환기를 위한 창을 뒀다. 다락층은 저층부의 재료를 반복하여 박공이 얹어진 듯한 형태다. 내부에는 층과 층 사이에 오프닝을 두어 공간을 연결했다. 1층과 2층 사이, 5층과 다락층 사이, 다락층과 천장 사이의 오프닝은 단절된 층을 연결한다. 외부의 벽돌타일 마감은 복도와 계단으로 연결되는 단순한 코어 방식이지만 외부의 느낌을 내부로 끌어들이는 효과를 준다. 중층부 이상의 주거 공간은 외부에서 바라볼 때와 내부에서 바라볼 때의 느낌을 다르게 주기 위해 창의 리듬감과 프라이버시에 따른 높이 변화 등으로 표현했다.

















건축가 지오아키텍처
위치 서울특별시 광진구 중곡동
용도 단독주택, 제2종근린생활시설
대지면적 166.00㎡
건축면적 96.77㎡
연면적 322.87㎡
건폐율 59.99%
용적률 199.91%
규모 지상 5층
준공 2023
대표건축가 이주영
시공 제이엠아이
사진작가 tqtq studio, 노경
해당 프로젝트는 건축문화 2023년 7월호(Vol. 506)에 게재되었습니다.
The project was published in the July, 2023 recent projects of the magazine(Vol. 506).
July 2023 : vol. 506
Contents : Records First Step in Pre-Planning, Change Future School with User Participatory Design 사전기획의 첫걸음, 사용자 참여 디자인으로 내일의 학교를 바꾸다 Look Forward to 100 Years: Songpa Public Housing Design Competition
anc.masilwide.com
'Architecture Project > Multifamily' 카테고리의 다른 글
| Sluishuis (0) | 2023.10.17 |
|---|---|
| the shift (0) | 2023.10.06 |
| HIGASHITAMAGAWA APARTMENT (0) | 2023.09.22 |
| GYERIM WEST VALLEY (0) | 2023.09.11 |
| THE STRANGERS (0) | 2023.08.23 |
마실와이드 | 등록번호 : 서울, 아03630 | 등록일자 : 2015년 03월 11일 | 마실와이드 | 발행ㆍ편집인 : 김명규 | 청소년보호책임자 : 최지희 | 발행소 : 서울시 마포구 월드컵로8길 45-8 1층 | 발행일자 : 매일


