
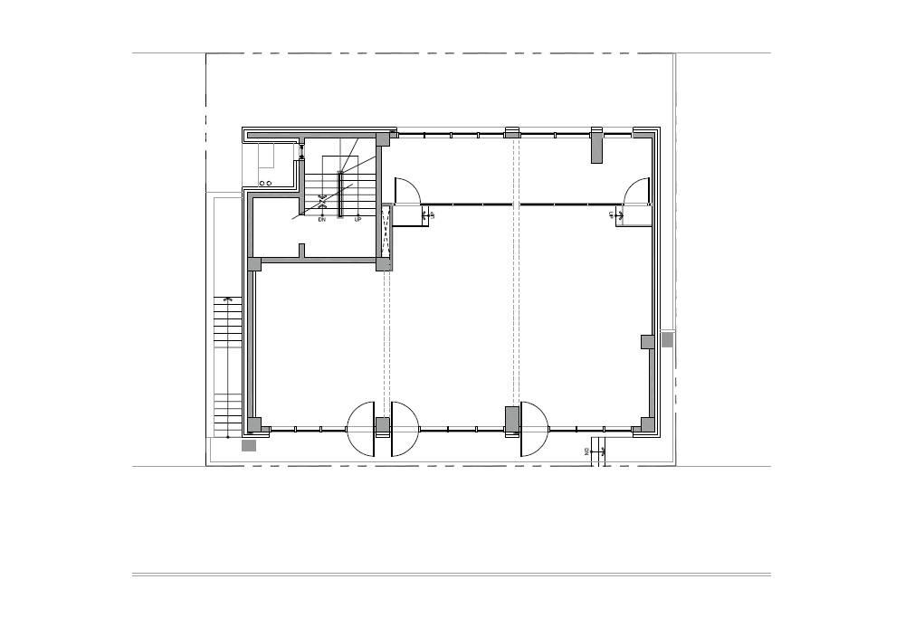
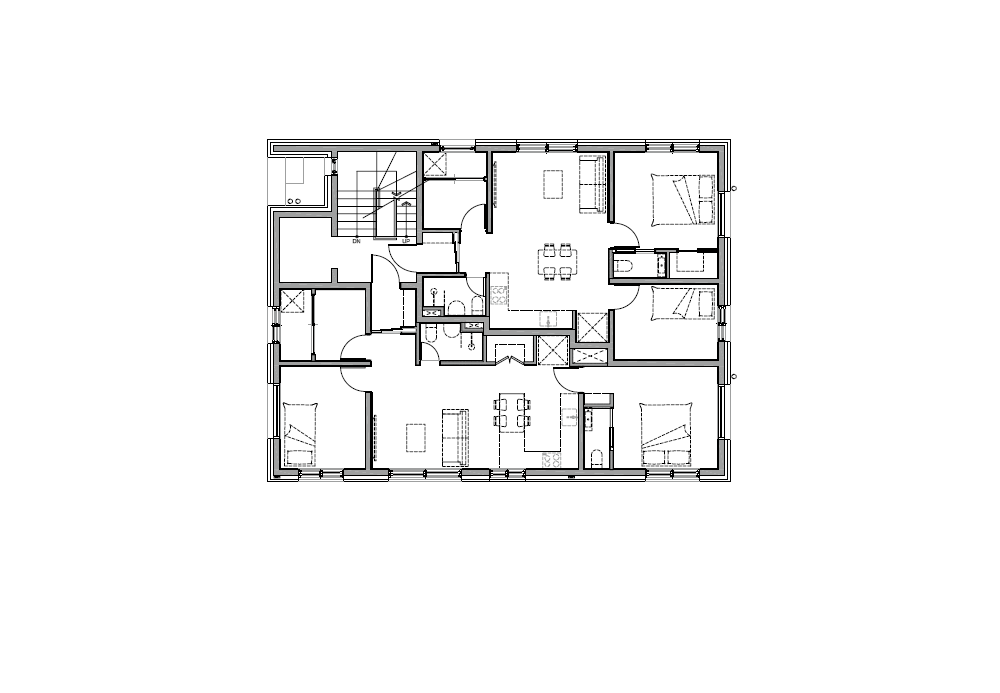
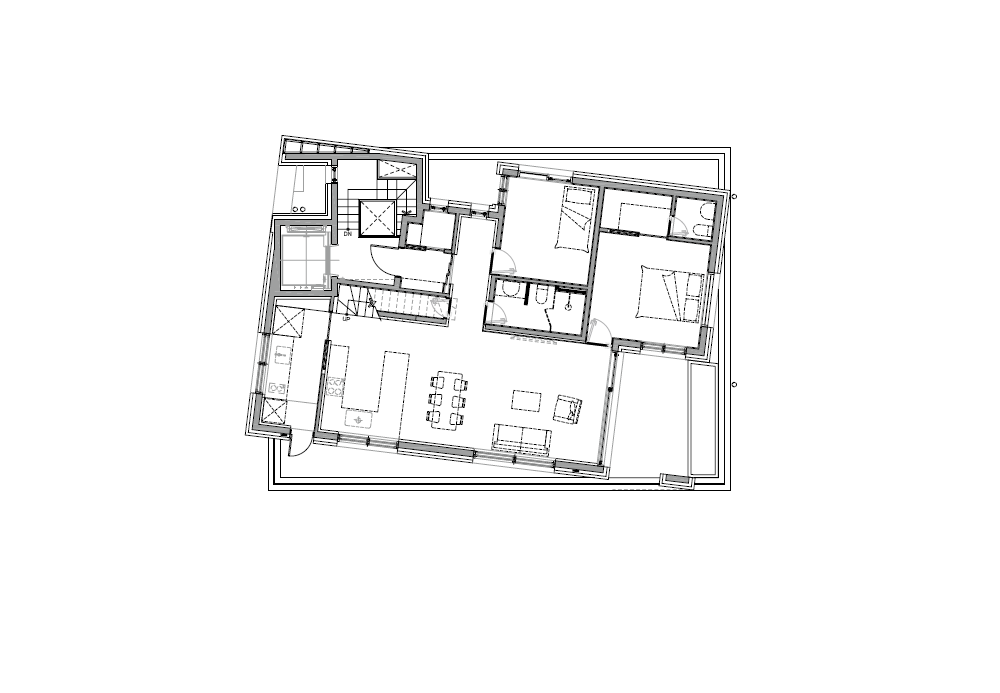
성남시 판교 대장지구에 있는 더 쉬프트는 20m 이상 중심가로에 위치한 건물로, 일조권 사선제한을 받지 않기 때문에 인접 건물들과 서로 좌우로 최대한 붙어있다. 앞뒤 도로와 인접하여 개방감이 좋지만, 좌우가 붙어 막혀 있는 점은 조망에 제한을 준다. 건축주는 맞은편 건물만 바라보지 않고 조망이 열려있는 대각선 방향의 판교 대장 중학교 쪽으로 시야를 확보하길 바랐다. 직사각형으로 반듯하게 토지가 정리된 택지지구에서 조망을 확보하기 위해 건물을 튼다는 것은 건폐율, 용적률 등의 현실적인 문제를 감안하면 어려운 일이다. 하지만 용적률이 160%로 적고 주차장을 지하 1층에 배치해 1층 상가가 다른 건물에 비해 더 커져 자연스레 4층에 커다란 테라스 공간이 생기는 점을 활용하여 건축주의 요구를 반영했다. 4층의 주인 세대를 약 10도 틀어 거실과 대면형 아일랜드 식당에서 판교 대장 중학교와 공원을 바라보게 설계했다. 뷰를 위하여 단지 건물의 한 층을 틀어 버린 것인데, 단순한 형태임에도 불구하고 대지 형태에 종속되어 박스형 건물에서 벗어나지 못한 주변 건물들과 대비되어 독특한 건물이 되었다. 틀어진 형태를 더욱 강조하기 위해 매스가 틀어진 것을 제외하고는 재료와 형태를 최대한 단순하게 처리했다.
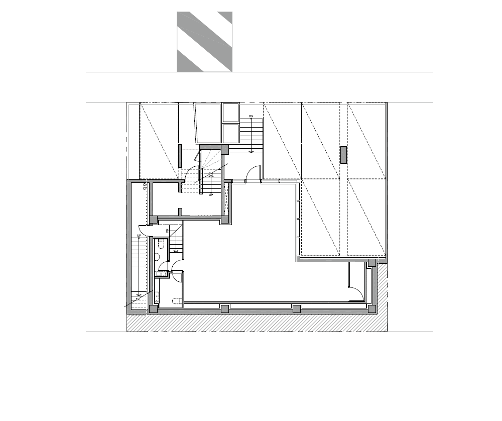
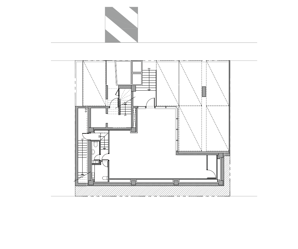
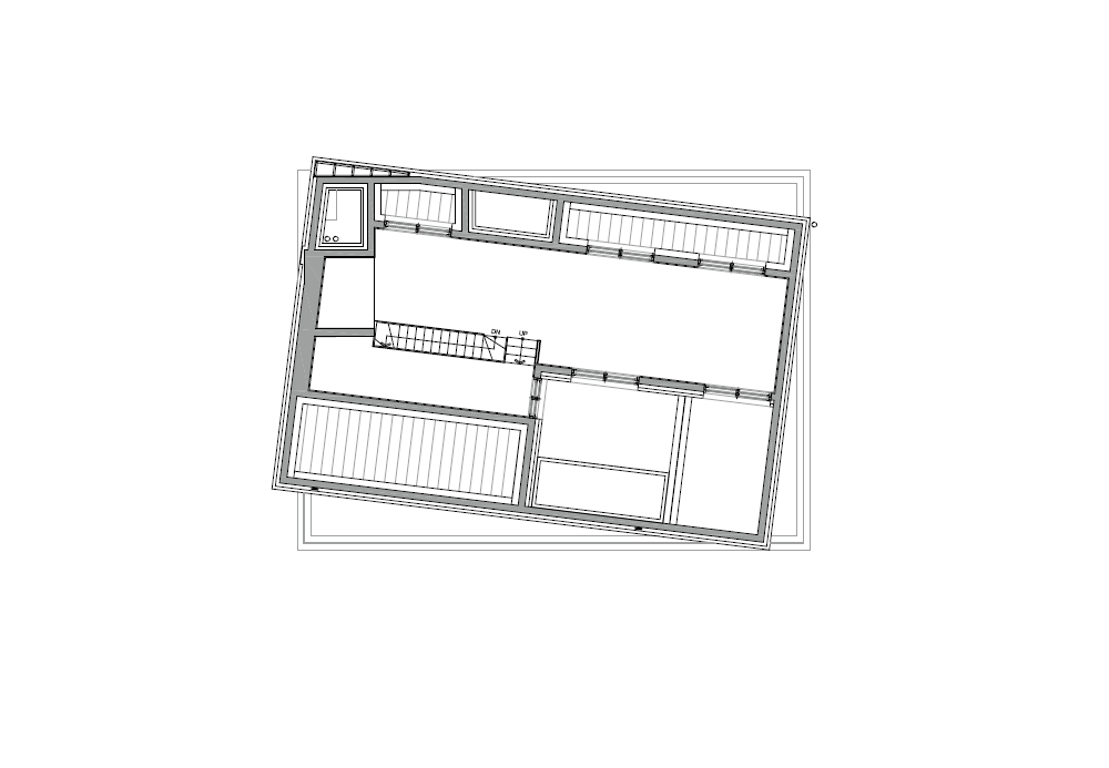
건물의 위치가 중심부에 있어 상가의 수익성을 극대화하는 것이 무엇보다 중요했다. 건물의 앞 뒤로 2개의 도로가 접해 있고 대지 내 단차가 2m 이상 나는 점을 이용해 채광이 잘 되는 반지하 형태의 추가적인 상가를 확보하고 뒤쪽 이면도로 지하층에 필로티 주차장을 배치했다. 뒤쪽 이면도로는 명목상 지하층이라고 해도 지상에 연결되기 때문에 지상층처럼 사용이 돼서 용적률이 부족한 대지의 한계를 극복하는 데 도움이 된다. 지하층 레벨에 주차 및 주택 출입구를 배치하여 앞측 중심도로에 1층 상가를 최대한 크게 마련하여 상가 수익을 극대화할 수 있었다. 지하층에 계획한 필로티 주차장으로 인해 상대적으로 지상 1층 상가 면적이 커졌고, 건축주 세대를 위한 주거 면적이 부족하여 다락에서 공간을 확보했다. 일반적으로 주인 세대를 다락층에 계획하는 경우 복층으로 개방감을 확보하는 경우가 많다.
이 프로젝트는 다락의 면적이 줄어드는 것을 최소화하고자 복층 대신 4층의 전체 층고를 높이는 방향으로 계획했다. 다만, 층고 전체를 일괄적으로 높게 할 경우 다락으로 올라가는 계단이 너무 높아져 사용에 불편함이 발생하는 점을 감안하여 층고가 높을 필요가 없는 침실이나 화장실 공간은 기존의 층고를 유지하는 스킵플로어 형태로 계획했다.














건축가 아뜰리에준 건축사사무소 주식회사
위치 경기도 성남시 분당구 대장동
용도 상가주택
대지면적 256.1㎡
건축면적 152.65㎡
연면적 497.7㎡
규모 지하 1층, 지상 4층
건폐율 59.61%
용적률 159.94%
설계기간 2021. 5. - 2022. 2.
시공기간 2022. 4. – 2023. 3.
준공 2023. 3.
대표건축가 유준상
프로젝트건축가 박종철
구조엔지니어 라임구조
기계엔지니어 청효하이텍
전기엔지니어 청효하이텍
시공 수리솔
발주자 이형주
사진작가 김용수
해당 프로젝트는 건축문화 2023년 7월호(Vol. 506)에 게재되었습니다.
The project was published in the July, 2023 recent projects of the magazine(Vol. 506).
July 2023 : vol. 506
Contents : Records First Step in Pre-Planning, Change Future School with User Participatory Design 사전기획의 첫걸음, 사용자 참여 디자인으로 내일의 학교를 바꾸다 Look Forward to 100 Years: Songpa Public Housing Design Competition
anc.masilwide.com
'Architecture Project > Multifamily' 카테고리의 다른 글
| Jonas (0) | 2023.10.18 |
|---|---|
| Sluishuis (0) | 2023.10.17 |
| Around the Corner (0) | 2023.10.03 |
| HIGASHITAMAGAWA APARTMENT (0) | 2023.09.22 |
| GYERIM WEST VALLEY (0) | 2023.09.11 |
마실와이드 | 등록번호 : 서울, 아03630 | 등록일자 : 2015년 03월 11일 | 마실와이드 | 발행ㆍ편집인 : 김명규 | 청소년보호책임자 : 최지희 | 발행소 : 서울시 마포구 월드컵로8길 45-8 1층 | 발행일자 : 매일



