
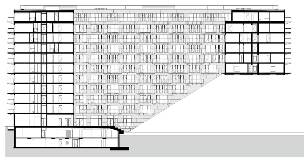
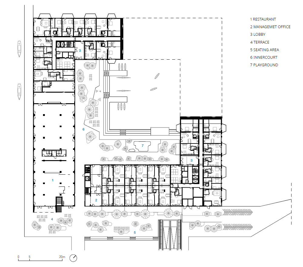
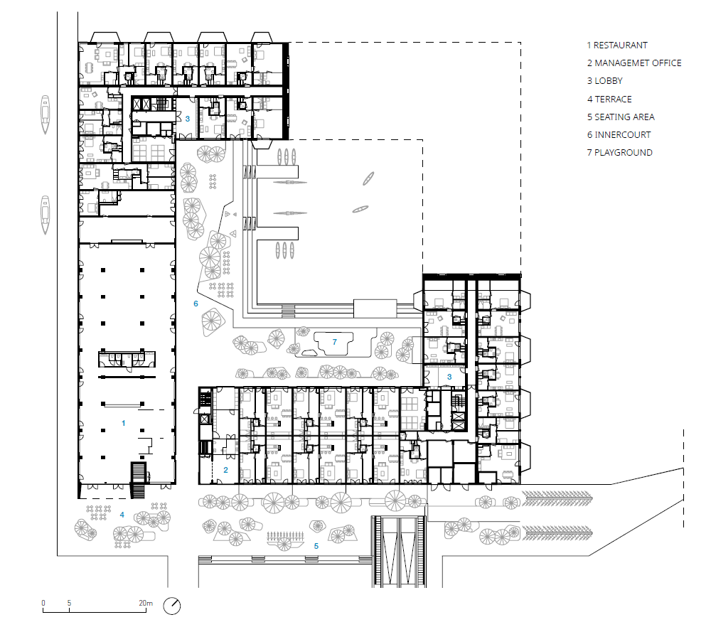
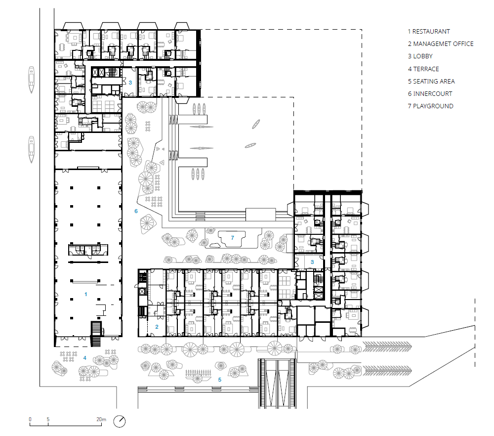
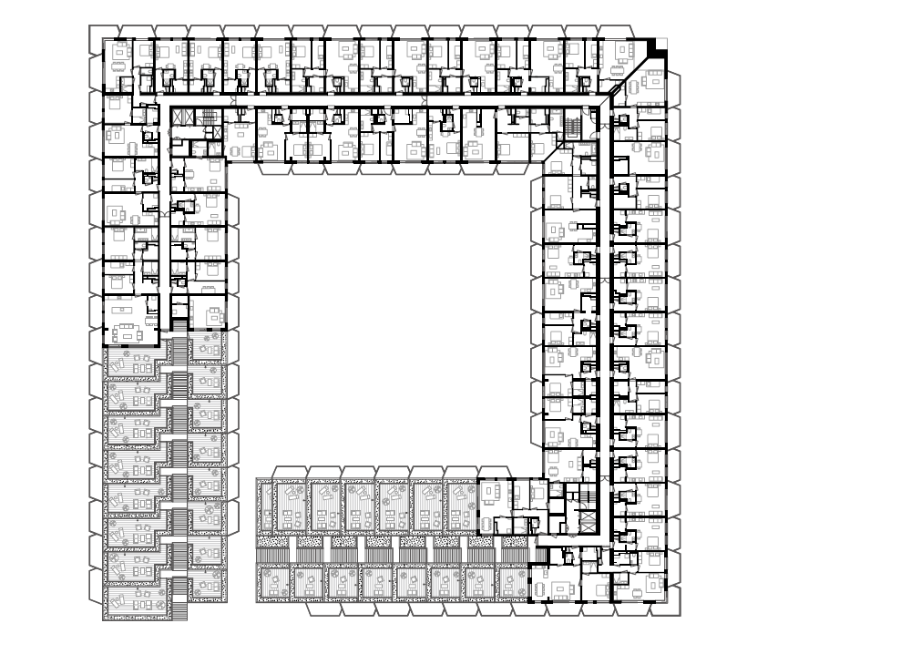
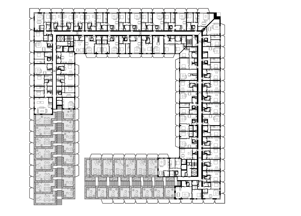
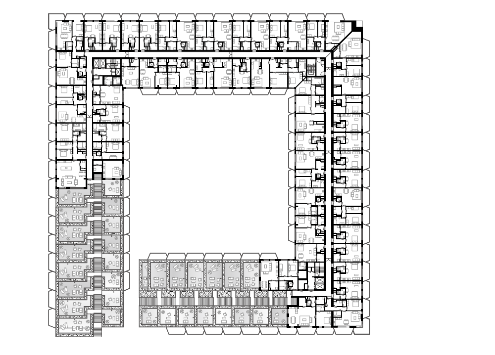
암스테르담의 에이뷔르흐 지역은 도시와 교외지역의 경계에서 운하가 만나는 지역이다. 슬라위스하위스는 이 지역의 경계에서 전통적인 도심지 안마당을 새로운 유형으로 디자인한 건축물이다. 건축물은 박스 형태의 한쪽 귀퉁이를 운하를 향해 들어올려 물과 작은 배들이 건물의 안마당으로 들어올 수 있는 형태로, 호수의 경관을 볼 수 있는 상징적인 관문이 된다.
건물 전체의 구조는 물에 강한 콘크리트가 사용됐으나, 중앙 정원을 향하는 외벽과 해안가의 좌석 공간, 보행로 일부는 목재를 사용하여 호수 에서 바라보는 입면과는 색다른 느낌을 준다. 비스듬히 올라가는 계단의 형태를 띈 건물의 전체적인 매스는 아파트 내의 일광을 최적화 하고 이웃을 향해 블록이 내려오는 구조를 만들어 각 세대마다 넓은 테라스를 제공한다. 마치 작은 언덕의 정상에 등반하는 듯한 건물의 경사는 모든 세대에서 호수를 바라볼 수 있게 한다. 건물의 내부에는 총 442호의 거주용 세대 이외에도 다양한 프로그램을 포함하고 있다. 1층에서는 인접한 호수에서 즐길 수 있는 세일링 스쿨과 수상 스포츠 센터가 마련되어 있고, 호수를 바라볼 수 있는 테라스와 레스토랑이 있다.
3중 유리와 우수한 단열기술, 열 회수가 이루어지는 환기 시스템 등의 수변 공간에 최적화된 단열시스템과 설비를 통해 건물 전체의 에너지 사용량을 감축하고 지속가능한 건축물을 실현했다.













건축가 Barcode Architects + BIG
위치 네덜란드, 암스테르담
용도 공동주택
면적 48,371㎡
시공기간 2016 - 2022
대표건축가 Bjarke Ingels, Dirk Peters
디자인팀 (Barcode Architects) Robbert Peters, Hans van Pelt, Danielle MacLeod, Niels de Hart / (BIG) Nørkjær, Andreas Klok Pedersen, Jeppe Langer, Jan Magasanik
구조물리설계 Buro Bouwfysica
구조엔지니어 Van Rossum Raadgevende Ingenieurs
설비 DWA
조경 BIG
지속가능성 Klimaatgarant
발주자 BESIX Real Estate Development, VORM Ontwikkeling b.v.
주계약자 Building consortium BESIX Nederland b.v., VORM Ontwikkeling b.v.
사진작가 Ossip van Duivenbode, studiohanswilschut, Barcode Architects
해당 프로젝트는 건축문화 2023년 7월호(Vol. 506)에 게재되었습니다.
The project was published in the July, 2023 recent projects of the magazine(Vol. 506).
July 2023 : vol. 506
Contents : Records First Step in Pre-Planning, Change Future School with User Participatory Design 사전기획의 첫걸음, 사용자 참여 디자인으로 내일의 학교를 바꾸다 Look Forward to 100 Years: Songpa Public Housing Design Competition
anc.masilwide.com
'Architecture Project > Multifamily' 카테고리의 다른 글
| Kubomi Apartments: A Pocket in the City (0) | 2023.12.07 |
|---|---|
| Jonas (0) | 2023.10.18 |
| the shift (0) | 2023.10.06 |
| Around the Corner (0) | 2023.10.03 |
| HIGASHITAMAGAWA APARTMENT (0) | 2023.09.22 |
마실와이드 | 등록번호 : 서울, 아03630 | 등록일자 : 2015년 03월 11일 | 마실와이드 | 발행ㆍ편집인 : 김명규 | 청소년보호책임자 : 최지희 | 발행소 : 서울시 마포구 월드컵로8길 45-8 1층 | 발행일자 : 매일



