
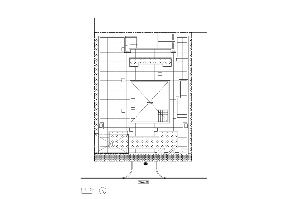
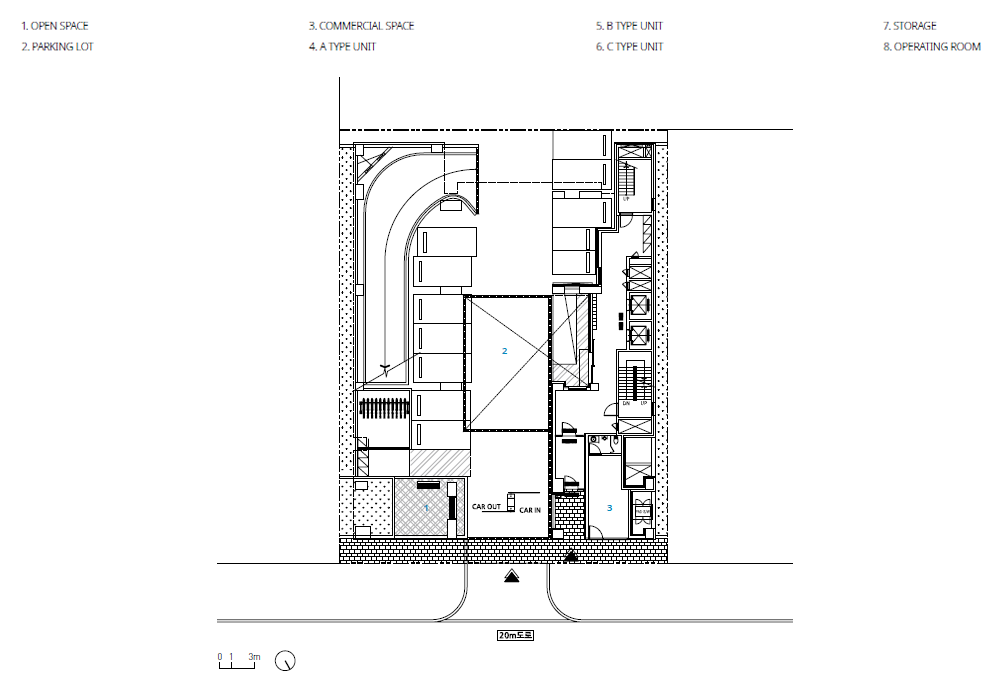
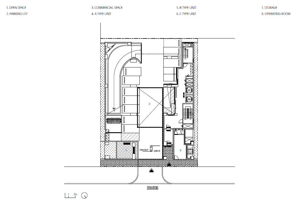
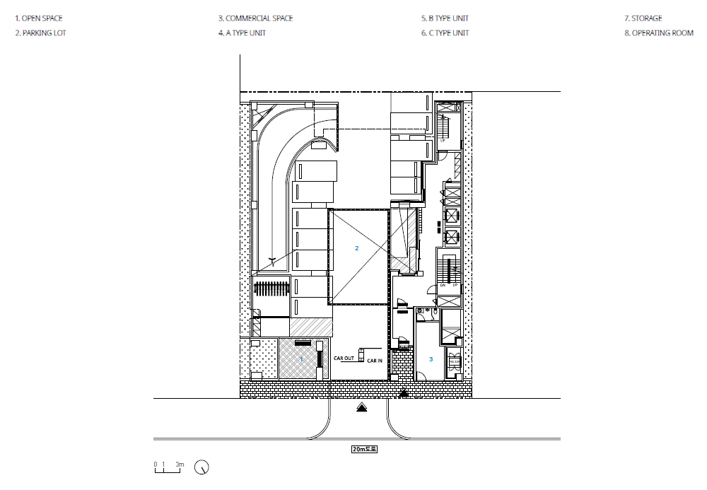
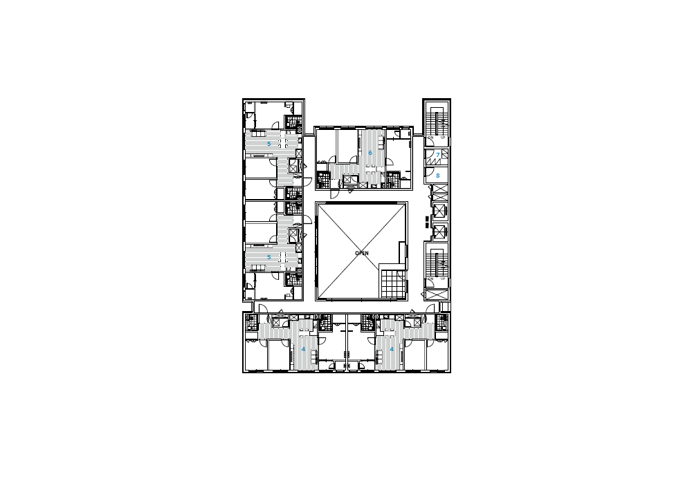
계림 웨스트 밸리는 일산 신도시 건설 당시 상업지구의 끝자락에 지어졌던 오래된 모텔의 자리를 대신하여, 일산 지역의 수요를 반영하고 공감을 꾀할 수 있는 L.H. 장기전세 주거형 오피스텔로 재탄생한 건물이다. 한결 정돈된 외관은 새롭고 정감있게 대화동 지역의 주민들을 맞이한다. 수평의 시선과 수직의 중정이 교차하는 박스형의 외관은 직관적인 벡터가 교차하며 깊이 있는 매스감을 드러낸다. 각 세대의 유닛은 외부 풍경을 향해 창을 내어 기존에 존재하는 상가주택의 단지들과 마주하여 동네와 더불어 살아가는 의미를 준다.건물 내부의 중정은 하늘의 우물처럼 시시각각 변화하는 하늘의 색과 빛, 공기, 바람과 빗물을 담아내며 심상에 따라 변하는 추상의 창이 된다. 건축가는 카자미르 말레비치(Kazimir Severinovich Malevich)의 ‘검은 사각형(1915)’을 떠올리며 하늘을 향해 비워져있는 공간을 통해 풍경과 사용자, 외유와 내유의 교차 지점을 표현하는 여백의 공간을 만들어냈다.















건축가 건축사사무소 여헌
위치 경기도 고양시 대화동 2199-1
용도 업무시설 (오피스텔)
대지면적 1,029.80㎡
건축면적 655.07㎡
연면적 7,444.87㎡
규모 지하 2층, 지상10층
건폐율 63.61%
용적률 561.80%
설계기간 2021.3. - 2021.9.
시공기간 2021.11. - 2023.4.
준공 2023.4.
대표건축가 김영조
디자인팀 김경률,정진우
시공 계림종합건설주식회사
발주자 건곤주식회사
사진작가 김용수
해당 프로젝트는 건축문화 2023년 6월호(Vol. 505)에 게재되었습니다.
The project was published in the June, 2023 recent projects of the magazine(Vol. 505).
June 2023 : vol. 505
Contents : Records ‘Design Competition’, Seoul’s Dreams to Have a Global Urbanscape 서울시, ‘디자인 공모’ 첫 도입, 세계적인 도시경관을 꿈꾸다 <SKY PROJECT> Pavilion, Open to the Seoul <하늘소所>, 서울을 향
anc.masilwide.com
'Architecture Project > Multifamily' 카테고리의 다른 글
| Around the Corner (0) | 2023.10.03 |
|---|---|
| HIGASHITAMAGAWA APARTMENT (0) | 2023.09.22 |
| THE STRANGERS (0) | 2023.08.23 |
| Red Box (0) | 2023.08.22 |
| ESCENARIO TODOROKI (0) | 2023.08.15 |
마실와이드 | 등록번호 : 서울, 아03630 | 등록일자 : 2015년 03월 11일 | 마실와이드 | 발행ㆍ편집인 : 김명규 | 청소년보호책임자 : 최지희 | 발행소 : 서울시 마포구 월드컵로8길 45-8 1층 | 발행일자 : 매일



