
The beginning of Wooa Dang
From the beginning to the end, Wooa Dang is a project in which the client and architect pondered over the question of ‘What is a good house?’ in search of an answer. Is it even possible for the name Wooa Dang to define our thoughts in that one word? The name has several meanings, such as ‘our beautiful house’, ‘Nawoo and Noah’s house’, and the expression of admiration ‘wow!’.
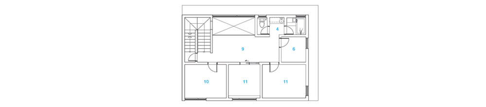
The layout of Wooa Dang
The place where Wooa Dang is located is the last remaining spot in a collective housing area. Inheriting the rhythm and flow of the layout of the existing units, we tried to draw out the full potential of the site. Drawing the first line was the hardest part. The growth management plan was announced at the time when the direction of the plan was being determined, changing the conditions of the site and giving a new direction to the plan. While the original plan focused on physically connecting spaces through sunken and skip floors, the changed plan focused on creating a space with visual connection inside by removing the basement floor and raising the program to the ground level. Therefore, it was important to create a space that expands to the outside by borrowing landscape and to reflect the human scale of the family as much as possible. There is a lush forest north of Wooa Dang, which we used to our full advantage to overcome what was considered a spatial limitation. The border between the forest and Wooa Dang is on the same axis, giving a dramatic synaesthetic experience through the living room window. The window on the north side is situated in an empty space, making it feel like a larger space to its residents. The most important factor in the family’s human scale was the child’s eye level. We intended to create a sequence where the space that can only be seen at the parent’s eye level can be seen by the child at the same time. This large window in the living room allows you to experience the four seasons from within the house. Sunlight comes in through the large window in the south-facing kitchen. The shape of the gable roof reveals the shape of a house imagined by the family. In addition, the Wooa Dang was built with a wooden structure, and the three floors were designed with special wood applied. Instead of filling all the interior and exterior spaces, a porch space on the first floor and a terrace on the third floor were designed to create a house that connects naturally with the inside of the house and has a space for various outdoor activities.

우아당의 시작
평소 배움에 열정이었던 건축주와의 인연으로 시작된 프로젝트였다. 프로젝트의 시작부터 마무리까지 ‘좋은집이란?’ 이라는 물음을 우리 모두 좇았던 것 같다. 정답이 없는 물음이지만 건축을 마무리할 때까지 수 많은 선택의 기로에는 좋은집이라는 물음을 같이 고민하며 결정을 해 나아갔다. 우아당이란 이름도 우리의 생각을 한마디로 정의할 수 있을까? 라는 생각이었다. 때문에 ‘우리들의 아름다운집’, 자녀인 ‘나우와 노아의집’, ‘우와~’의 감탄이 섞여있는 등의 많은 중의적인 의미를 담고 있다. 우아당이 들어선 곳은 이미 주택단지로 조성이 되어있는 지역에 마지막으로 남아있던 곳이었다. 그렇기 때문에 기존의 단지단위의 배치에서 느낄 수 있는 리듬과 흐름을 이어받아 대지의 가능성을 최대한 끌어내보고자 하였다.
우아당의 구성
계획의 첫 선을 긋기까지 많은 시간이 걸렸다. 계획의 구체적 방향성이 잡힐 시기에 성장관리계획이 고시되면서 대지의 조건이 바뀌었다. 새로운 가능성이 생긴 대지는 새로운 계획 방향을 갖게 되었다. 기존계획은 선큰과 스킵플로어를 통해 물리적으로 공간의 연결에 초점을 맞췄다면 다시 변경된 계획에서는 지하층을 없애고 프로그램을 지상으로 올려 내부에서 시선을 통해 시각적인 연결에 초점을 맞췄다. 때문에 차경에 대한 외부의 확장성, 가족이 갖고있는 휴먼스케일을 좀 더 신중하게 고민하였다. 우아당은 북쪽에 숲이 우거져 있는 마지막 지점에 위치하고 있었고, 우리는 그러한 이점을 충분히 활용하여 공간적 제약을 극복하고자 하였다. 숲과 우아당의 경계를 동일선상에 두어 극적인 공감각적 경험을 주고자 했고, 북측에 창을 보이드와 함께 크게 두어 개방감을 더했다. 가족에 대한 휴먼스케일에서 제일 중요하게 생각한 요소는 자녀의 시선이었다. 부모의 눈높이로만 볼수있는 공간을 자녀도 동시에 같이 볼 수 있는 시퀀스도 만들고자 했다. 우아당은 북쪽으로 숲이 펼쳐져 거실이 숲을 바라보고 있다. 남향으로 배치된 주방으로는 채광을 확보할 수 있는 큰창을 두어 거실에서는 사계절의 변화를 느낄 수 있는 따뜻한 공간을 계획하였다. 박공지붕은 가족들이 생각하는 집의 형태를 뚜렷이 드러내주고자 하였다. 구조는 목구조를 선택했는데 특수목을 적용하여 3개 층으로 구성하였다. 3개 층으로 이루어진 우아당은 내외부적으로 모든 공간을 채우기보다는 1층에 포치공간과 3층의 테라스를 계획하여 내부이지만 다양한 외부 활동을 할 수 있는 공간을 두었다.


















Architect Atelier SOW
Location Yonggu-daero, Giheung-gu, Yongin-si, Gyeonggi-do, Republic of Korea
Program House
Site area 253㎡
Building area 70.21㎡
Gross floor area 195.83㎡
Building scope 3F
Building to land ratio 27.75%
Floor area ratio 77.40%
Design period 2021. 11 - 2022. 8
Construction period 2022. 4 - 6
Completion 2022. 8
Principal architect Jeongmin Kim, Hyeeun Lee
Project architect Jeongmin Kim, Hyeeun Lee
Design team Meiling Cui, Suhwon Jang
Structural engineer MARU engineering architects
Mechanical engineer HANA enc
Electrical engineer HANA enc
Construction Sungjin Housing
Client Gunhyung Kim
Photographer Yongsu Kim
해당 프로젝트는 건축문화 2022년 12월호(Vol. 499)에 게재되었습니다.
The project was published in the December, 2022 recent projects of the magazine(Vol. 499).
December 2022 : vol. 499
Contents : RECORDS Communicate with the city, Encounter architecture, Discover a story: 'Open House Seoul 2022' 도시와 소통하다, 건축을 만나다, 이야기를 발견하다: ‘오픈하우스서울 2022’ To Demonstrate the Era of Carbon Neutra
anc.masilwide.com
'Architecture Project > Single Family' 카테고리의 다른 글
| In-Between (0) | 2023.03.31 |
|---|---|
| Mixed House (0) | 2023.03.29 |
| ARK (0) | 2023.03.27 |
| SOUND HOUSE (0) | 2023.03.24 |
| House in Shunan (0) | 2023.03.24 |
마실와이드 | 등록번호 : 서울, 아03630 | 등록일자 : 2015년 03월 11일 | 마실와이드 | 발행ㆍ편집인 : 김명규 | 청소년보호책임자 : 최지희 | 발행소 : 서울시 마포구 월드컵로8길 45-8 1층 | 발행일자 : 매일


