
Covid-19 continues to change the way we live. Accordingly, the residential culture requires a different direction of thinking and approach, including the issue of declining population. The existing residential method consisted of a huge chunk of volume is constantly reproducing the image of our desperate and desolate city. In particular, in connection with the city, such residence is directly faced and consisted without space with other unified spaces. However, in the complex and restless modern city, we need loose relationships in our lives. “Between House” has been designed to create a new residential form that builds the aesthetics of slowness by creating a loose relationship between one object and another.
Between the City and House
The target area offers a valley view and an urban landscape at the same time, even within a well developed innovative city. The natural landscape extending to the southwest has a permanent view and creates a loose relationship with the urban landscape in the distance. This landscape was intended to be enjoyed by substituting it with a panoramic landscape via an architectural device, which is the view connection space. The vertical louver, which makes the sensitivity of southwest-facing light change line with different times, creates a rich space between the city and house by controlling the desired landscape and the amount of light, thereby loosening the relationship between the interior and exterior spaces for the residential area.
Between Spaces
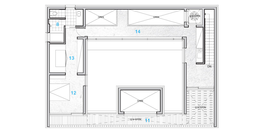
Maybe since apartments are the mainstream form of residence, from a certain moment, our living space is all about living in a single interior space. There is no room for the relationship between spaces. By completely separating a single multi-purpose space and arranging it in an independent area, Between House creates a diverse and unique formative relationship between spaces in a residential space. Furthermore, this space, accessed from and through the outside, creates a loose relationship between spaces and enriches the residence. Sometimes, it could be used as a hobby room, a private room, a rest area, and a guest space.
Between Landscapes
As you walk through the house, the landscape of the courtyard seen through the window overlaps with the landscape of the interior space beyond the landscape, thereby creating an overlap of the landscapes. For each viewing position, a landscape forms a temporal gap between the next other landscapes, thereby creating a slow aesthetics of time as a landscape. Sometimes, when the gate is opened, the natural scenery seen beyond it forms a new relationship with the landscape of the house. In particular, when you walk through the interior and exterior spaces of the second floor, you could feel the pause of time as you find yourself between the scenery of the house and the scenery of the nature.

Covid-19로 인해 우리의 삶의 방식이 바뀌고 있다. 이에 따라 주거문화는 인구감소 문제까지 포함하여 다른 방향의 고민과 접근이 필요하다. 거대한 볼륨 덩어리로 구성된 기존 주거방식은 우리의 절박하고 삭막한 도시 이미지를 끊임없이 재생산하고 있다. 특히 이러한 주거는 도시와의 관계에서 완중장치 없이 바로 대면하고, 일원화된 다른 공간과 여유 없이 구성되어 있다. 하지만 복잡하고 쉼 없이 돌아가는 현대 도시 속에서 우리의 삶에는 느슨한 관계가 필요하다. 사이집은 하나의 대상과 다른 대상 사이에 느슨한 관계를 만들어 느림의 미학을 형성하는 새로운 주거 형식을 창출하고자 계획되었다.
도시와 주택 사이
대상지는 잘 가꾸어진 혁신도시 내에서도 계곡의 풍광과 도시의 풍경을 동시에 가지고 있다. 남서로 펼쳐진 자연풍경인 영구 조망을 가지고 있으며 원경의 도시 풍경과 느슨한 관계를 만들고 있다. 이러한 풍경을 건축적 장치인 전망 연결공간을 통하여 파노라마 풍경으로 치환하여 향유하고자 하였다. 남서향 빛의 감성을 시간대에 따라 변화하도록 만드는 수직 루버는 원하는 풍경과 빛의 양을 조절하여 도시와 주택이 만드는 사이공간을 풍요롭게 구축하여, 주거영역에서 내외부 공간의 관계를 느슨하게 만든다.
공간과 공간 사이
아파트가 주류의 주거방식이어서 그런지 어느 순간부터 우리의 주거공간은 하나의 내부 공간에서 모든 생활이 이루어진다. 공간과 공간의 관계에 여유가 없다. 사이집은 하나의 다목적 공간을 완전히 분리해서 독립된 영역에 배치함으로 주거공간에서 공간과 공간의 다양하고 독특한 구성 관계를 만들어낸다. 또한, 외부를 통해서 접근하게 되는 이 공간은 공간과 공간의 느슨한 관계를 만들며 주거를 풍요롭게 한다. 때로는 취미실, 방, 휴식공간, 마실 공간으로 쓰임을 다변화할 수 있다.
풍경과 풍경 사이
집을 걷다 보면 창으로 보이는 중정의 풍경은 그 너머에 있는 내부 공간의 풍경과 겹쳐 보이면서 풍경의 중첩을 만든다. 바라보는 위치마다 하나의 풍경은 다음의 다른 풍경 사이와 시간적 간극을 형성하며 풍경으로 시간의 느린 미학을 만들어낸다. 때론 대문을 열어 두면 보이는 저 너머의 자연은 집안 풍경과 새로운 관계를 형성한다. 특히 2층의 내·외부 공간을 거닐다 보면 집의 풍경과 자연의 풍경 사이에 있는 자신을 발견하며 잠시 시간의 멈춤을 느낄 수 있다.

















Architect ON Architects Inc.
Loaction Yaksa-dong, Jung-gu, Ulsan, Republic of Korea
Use Detached house
Site area 289.9㎡
Built area 133.06㎡
Total floor area 182.76㎡
Floors 2F
Structure Reinforced Concrete
Exterior finish Durastack
Interior finish eco-friendly VP
Design period 2021.05– 2021.08
Construction period 2021.09 – 2022.04
Architect Woongsik Jung
Construction Sumin Kim
Photographer Joonhwan Yoon
해당 프로젝트는 건축문화 2022년 12월호(Vol. 499)에 게재되었습니다.
The project was published in the December, 2022 recent projects of the magazine(Vol. 499).
December 2022 : vol. 499
Contents : RECORDS Communicate with the city, Encounter architecture, Discover a story: 'Open House Seoul 2022' 도시와 소통하다, 건축을 만나다, 이야기를 발견하다: ‘오픈하우스서울 2022’ To Demonstrate the Era of Carbon Neutra
anc.masilwide.com
'Architecture Project > Single Family' 카테고리의 다른 글
| Mipyeongdong YEHAUS (0) | 2023.04.04 |
|---|---|
| House in Shimizu (0) | 2023.04.04 |
| Mixed House (0) | 2023.03.29 |
| Wooa Dang (0) | 2023.03.29 |
| ARK (0) | 2023.03.27 |
마실와이드 | 등록번호 : 서울, 아03630 | 등록일자 : 2015년 03월 11일 | 마실와이드 | 발행ㆍ편집인 : 김명규 | 청소년보호책임자 : 최지희 | 발행소 : 서울시 마포구 월드컵로8길 45-8 1층 | 발행일자 : 매일



