
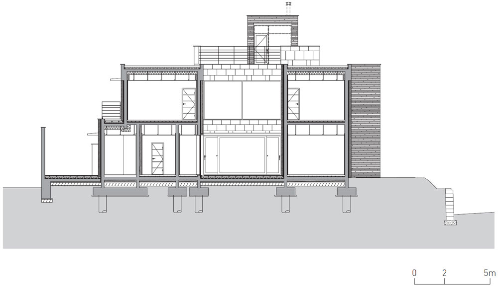
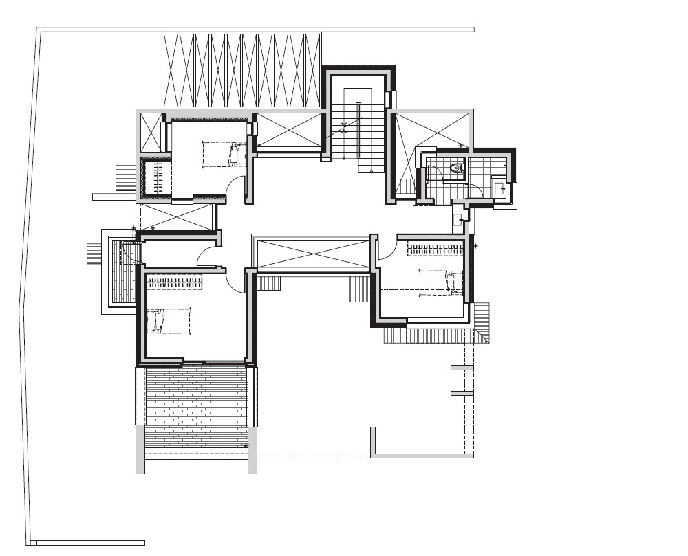
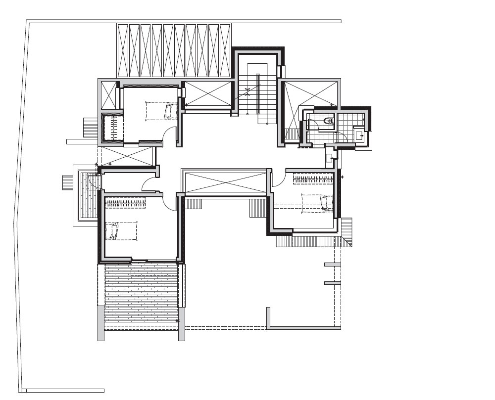
The site is located in a housing complex built at the foot of a mountain facing south in the middle of Mipyeong-dong, which lies long from east to west at the southern end of downtown Cheongju. It is located in the front, so it has an open view. The area is a little over 700 square meters, considering the building-to-land ratio of the natural green area, as is the case with most housing complexes on the outskirts of the city. There was not much room in the planar composition, and in order to overcome this, a semi-exterior space was created around the outer edge to create an external space that communicates with the inside. As a result, the narrow interior space seems to be expanded to the outside, and the landscape of the distant view is a cozy, closed exterior space from the kitchen, a strong direction from the first and second floor living rooms, and varied views to the left and right from the rooms and balconies on the second floor. It is bordered from a completely different style of house on the west side by a high oxidized steel fence, and a rectangular swimming pool is placed in between, giving space. The entryway coming in through the dead-end road was painted with lines and lighting was installed to give it a sense of vitality, and the louvers and exposed concrete side walls at the top of the parking lot continue to emphasize the entry axis. In any case, I hope it will be a place where fun and joy are endless, just like its name Hwan-hee-mu-ryang(boundless joy), given by its owner.

대지는 청주시 도심 남쪽 끝자락에 동서로 길게 놓여 있는 미평동 한가운데 남향의 산자락에 조성된 주택단지에 있고, 앞쪽에 자리하고 있어 멀리 시야가 트여 있다. 면적은 도심 외곽의 주택단지 대부분이 그렇듯 자연녹지지역의 건폐율을 감안하여 700제곱미터가 조금 넘는 크기를 가지고 있다. 평면구성에 여유가 별로 없어 이를 극복하기 위해 외곽으로 테두리를 둘러 반 외부공간을 만들어 내부와 교감하는 외부공간을 만들었다. 이에 따라 협소한 내부 공간은 외부로 확장되어 보이며 원경의 풍경은 주방에서는 아늑하게 닫힌 외부공간의 모습으로 1, 2층 거실에서는 강한 방향을 가진 모습으로 2층 방과 발코니에서는 좌우로 펼쳐진 모습으로 다양하게 걸러진다. 서측의 완전히 다른 스타일의 주택과는 산화 강판 담장을 높게 두어 경계 지었고 그사이에는 장방형의 수영장을 두어 여유를 두었다. 막다른 도로를 통해 들어오는 진입로는 바닥 라인 도색과 조명을 설치하여 생동감을 주었고 주차장 상부의 루버와 노출콘크리트 측벽이 이를 받아 진입 축을 강조하게 하였다. 아무쪼록 건축주가 지은 환희무량(歡喜無量)이라는 이름처럼 기쁨과 즐거움이 끝이 없는 곳이 되었으면 한다.















Architect YEHA ARCHITECTS
Location Sanmi-ro, Seowon-gu, Cheongju-si, Chungcheongbuk-do, Republic of Korea
Program Detached House
Site area 707㎡
Building area 141.36㎡
Gross floor area 236.95㎡
Building scope 2F
Building to land ratio 19.99%
Floor area ratio 33.51%
Design period 2020. 7 - 2021. 5
Construction period 2021. 6 - 2022. 4
Completion 2022. 4
Principal architect / Project architect Hanmook Cho
Design team Hyunah Cho, JiYoung Kim, Taeyang Kim
Structural engineer Dahn Engineers & Consultants Inc.
Mechanical engineer Samin Engineering
Electrical engineer Joeun Electricity
Construction Durim Construction Co., Ltd
Client Hongdae Kim, Oksung Kang
Photographer Woosang Yang
해당 프로젝트는 건축문화 2023년 1월호(Vol. 500)에 게재되었습니다.
The project was published in the January, 2023 recent projects of the magazine(Vol. 500).
January 2023 : vol. 500
Contents : RECORDS Peek into the future of architecture and urban space through data from various fields 다양한 분야의 데이터로 건축·도시공간의 미래를 엿보다 Seoul's Urban and Architecture Field in Walking 걸어보며 느끼는 서
anc.masilwide.com
'Architecture Project > Single Family' 카테고리의 다른 글
| The Flat Bench House (0) | 2023.04.05 |
|---|---|
| Todoroki House (0) | 2023.04.05 |
| House in Shimizu (0) | 2023.04.04 |
| In-Between (0) | 2023.03.31 |
| Mixed House (0) | 2023.03.29 |
마실와이드 | 등록번호 : 서울, 아03630 | 등록일자 : 2015년 03월 11일 | 마실와이드 | 발행ㆍ편집인 : 김명규 | 청소년보호책임자 : 최지희 | 발행소 : 서울시 마포구 월드컵로8길 45-8 1층 | 발행일자 : 매일


