
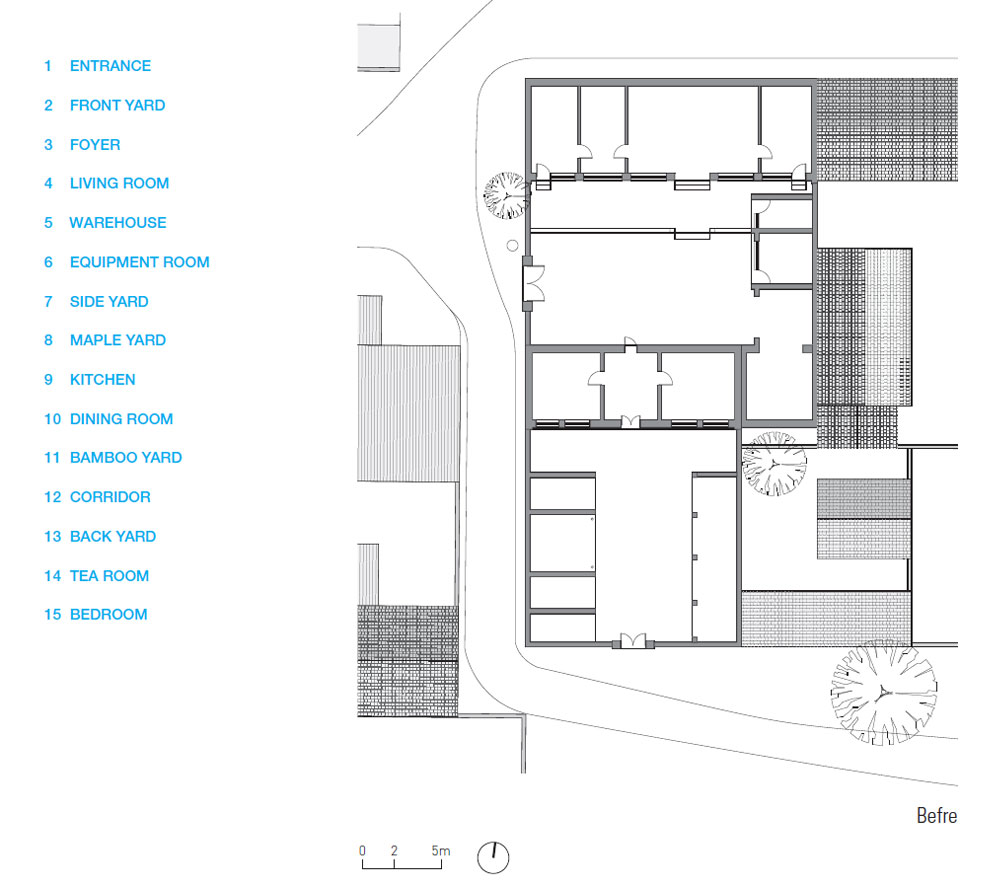
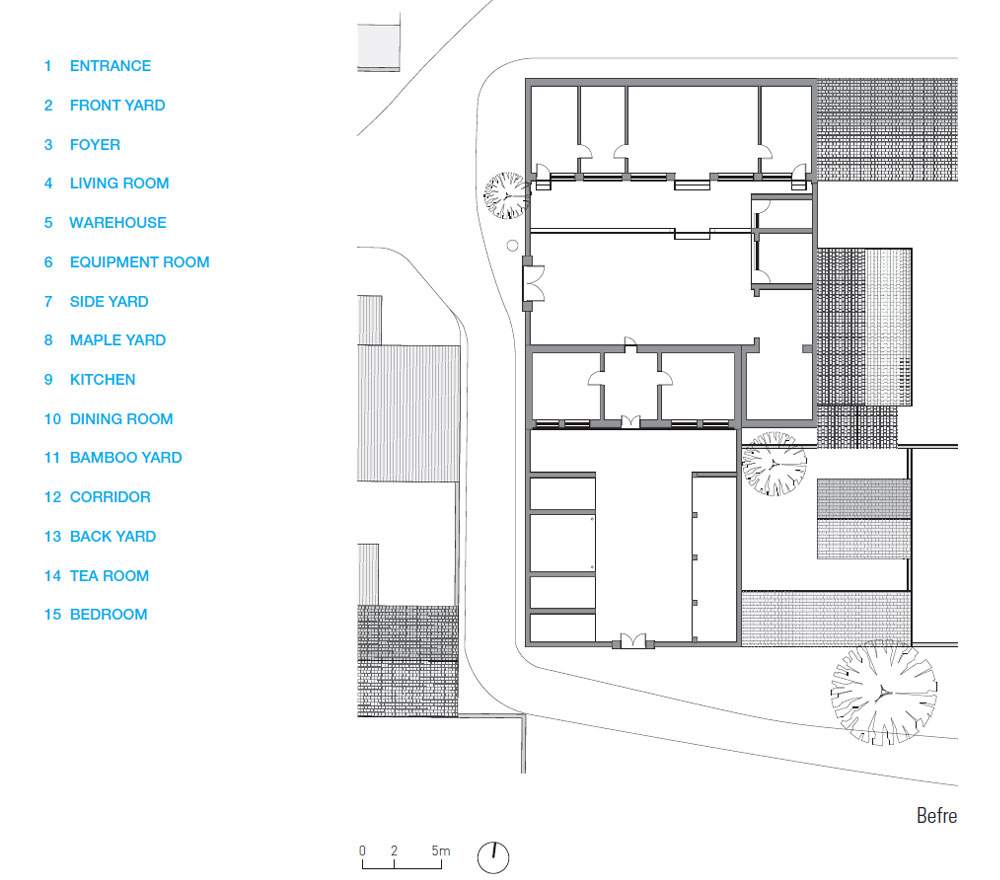
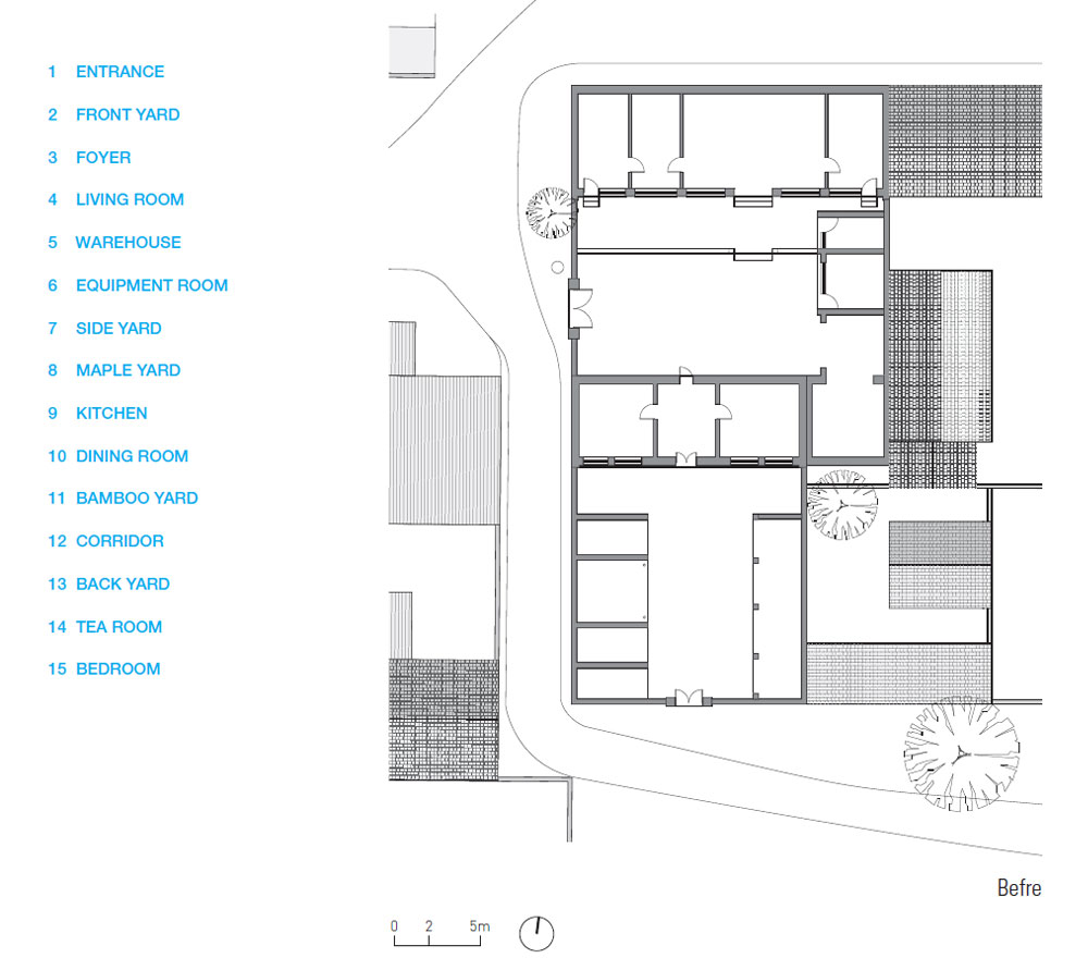
The project is located an ordinary village on the outskirts of Beijing, a typical plain-based northern Chinese village mainly composed of one- and two- storey courtyard houses. Most houses in the village face south and feature red bricks and tiles. Besides, there are also various added constructions built independently by local villagers for meeting their changing living needs, such as shanties with colored-steel roof or glass roof, which blend with the natural fabrics of the village.
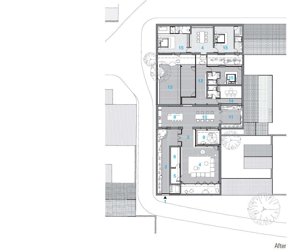
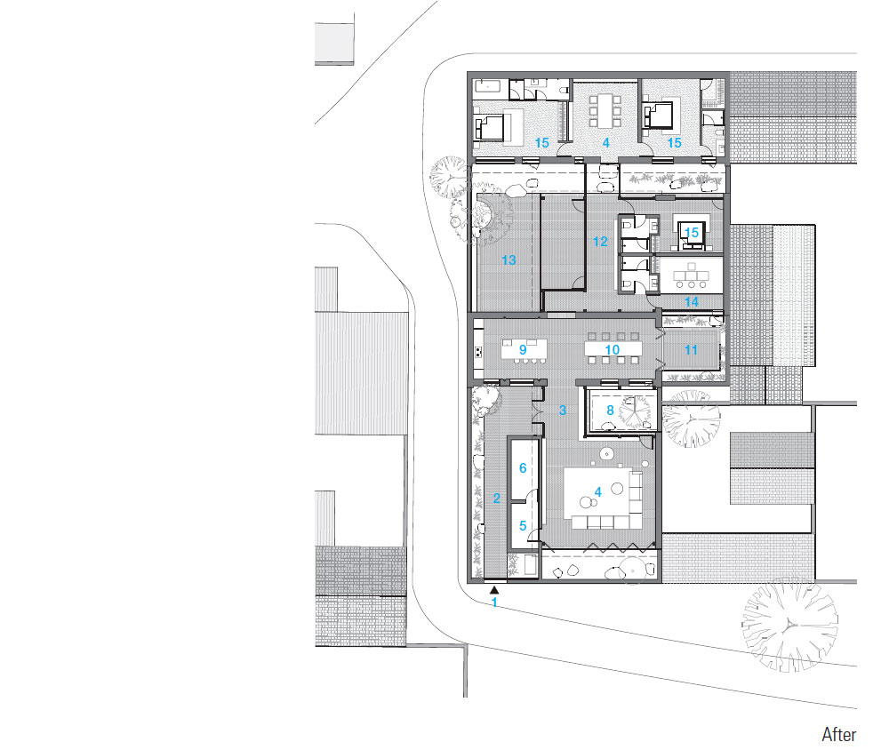
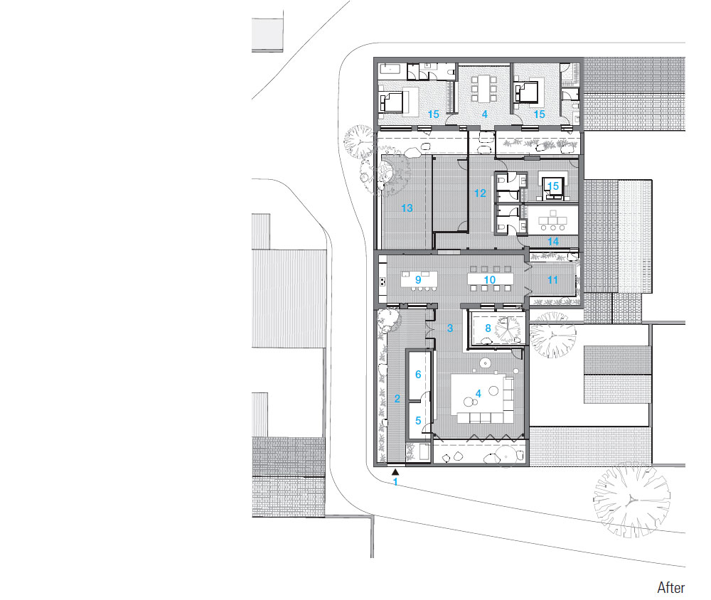
The project is the transformation of a courtyard house in the village. The client, who currently lives in the downtown area, hoped to create a family vacation home and a venue for gathering with friends. As approaching this project, ARCHSTUDIO intended to present an architectural status that mixes the old and new, and to build a connection between the project and the built landscape of the village. The goal was to let the renovated architecture integrate into the village with a low-profile gesture, and meanwhile to create a rich and natural small world inside the courtyard house. The original spatial pattern featuring one front yard and one back yard are reorganized, to form six yards with different scales, landscapes and functions. The front yard is set at the southwest core of the site. Opening the metal gate, a bamboo path leads the occupants to the building entrance. Pushing the door and entering the foyer, a courtyard with a maple tree comes into view. The maple tree displays the colors of nature in different seasons and becomes a highlighted view between the living room and the dining room. Space set aside between the living room and the south enclosure wall forms a side yard, where trees and stones are set. In sunny days, the folding doors of the living room can be completely opened, to extend the yard into the interior.
Further moving towards the north, the occupants will reach the renovated old building. Here, the kitchen and the dining room unfold horizontally, and the old and new roof structures dialogue with each other. Between the dining room and the walls of a neighbor’s house is a bamboo yard, which offers an experience of eating and drinking in a bamboo grove. After passing through the dining room, the back yard is reached. This yard is mainly for outdoor activities and is connected with a semi-outdoor veranda. Planted with a big tree, it provides a pleasing place for leisure and chatting. The space at the back is the bedroom area. The north building and the wooden construction are connected by a glass corridor, which naturally forms a narrow yard. The three bedrooms provide a direct view to the outdoor landscape, satisfy daylighting and ventilation needs, and meanwhile avoid obstructed sight lines. The organization of various yards brings natural vitality into every corner of the interior space.

이 프로젝트는 베이징 외곽의 평범한 마을, 평야에 기반을 둔 1층과 2층, 안마당이 있는 주택들이 주를 이룬 전형적인 중국 북부에 지역에 있다. 집 대부분은 남쪽을 향하고 있으며, 붉은 벽돌과 타일이 특징이다. 이 밖에도, 마을 사람들에게 필요한 것들이 달라지면서 독립적으로 지어진 다양한 건물이 있는데, 채색 철제 지붕이나 유리 지붕이 있는 판잣집들과 자연스럽게 만들어진 마을의 구조와 어우러진다.
이 프로젝트는 마을의 안마당이 있는 집을 개조하는 것이었다. 현재 도심에 사는 건축주는 가족 별장이면서 친구들과 함께 모이는 장소를 원했다. 건축가는 이 프로젝트를 옛것과 새것이 혼합된 건축적 지위를 제시하고, 프로젝트와 마을의 건물이 만드는 풍경 사이에 연결을 만들고자 했다. 보수한 건축물이 낮은 자세로 마을에 녹아들게 하면서, 안마당 집 안에 풍성하고 자연스러운 작은 세상을 만드는 것이 목표였다. 하나의 앞마당과 하나의 뒷마당이 특징인 원래의 공간 패턴을 재구성하여, 다른 규모, 풍경, 기능을 가진 6개의 마당을 만들었다. 앞마당은 부지의 남서쪽 핵심부에 두었다. 철물을 열면 대나무 길이 건물 입구로 이끈다. 문을 밀고 현관으로 들어서면 단풍나무가 우거진 안마당이 눈에 들어온다. 단풍나무는 계절에 따라 자연의 색을 표현하고, 거실과 식당 사이에 풍경을 만든다. 나무와 돌이 놓여있는 거실과 남쪽 울타리 벽 사이의 공간은 옆마당이 된다. 화창한 날에는 거실의 접이식 문을 완전히 열어 내부 공간을 마당으로 확장할 수 있다.
북쪽에는 개조한 오래된 건물이 있다. 이곳에는 부엌과 식당이 수평으로 펼쳐지고, 낡은 지붕과 새로운 지붕 구조가 서로 대화한다. 식당과 이웃집 담장 사이에는 대나무 마당이 있어 대나무 숲에서 먹고 마시는 경험을 할 수 있다. 식당을 지나면 뒷마당이 나오는데, 이 마당은 야외 활동을 위한 곳으로 반야외 공간인 베란다와 연결된다. 큰 나무가 심어진 여가와 수다를 떨 수 있는 즐거운 공간이 되었다. 침실은 뒤쪽 공간에 있다. 북쪽 건물과 목조 건축물은 유리 복도로 연결되어 자연스럽게 좁은 마당을 형성하고 있다. 세 개의 침실에는 충분한 빛과 환기를 제공하고, 야외 풍경을 바로 볼 수 있도록 시야에 방해되지 않게 했다. 다양한 마당 구성은 내부 공간 구석구석에 자연스러운 활력을 불어넣는다.















Architect ARCHSTUDIO
Location Tongzhou District, Beijing, China
Program Residence
Site area 576㎡
Gross floor area 373㎡
Building height 5m
Design period 2020. 10 - 2021. 4
Construction period 2021. 4 - 2022. 4
Completion 2022. 4
Principal architect Han Wenqiang, Li Xiaoming
Design team Guo Jiangang, Meng Gangyu
Structural consulting Beijing Xinnan Senmu Structural Engineering Co., Ltd.
MEP consulting Zheng Baowei, Li Dongjie, Zhang Yingnan
Landscape consulting Wild Botanical Lab
Construction Beijing Xinnan Senmu Structural Engineering Co., Ltd
Photographer Jin Weiqi
해당 프로젝트는 건축문화 2022년 12월호(Vol. 499)에 게재되었습니다.
The project was published in the December, 2022 recent projects of the magazine(Vol. 499).
December 2022 : vol. 499
Contents : RECORDS Communicate with the city, Encounter architecture, Discover a story: 'Open House Seoul 2022' 도시와 소통하다, 건축을 만나다, 이야기를 발견하다: ‘오픈하우스서울 2022’ To Demonstrate the Era of Carbon Neutra
anc.masilwide.com
'Architecture Project > Single Family' 카테고리의 다른 글
| House in Shimizu (0) | 2023.04.04 |
|---|---|
| In-Between (0) | 2023.03.31 |
| Wooa Dang (0) | 2023.03.29 |
| ARK (0) | 2023.03.27 |
| SOUND HOUSE (0) | 2023.03.24 |
마실와이드 | 등록번호 : 서울, 아03630 | 등록일자 : 2015년 03월 11일 | 마실와이드 | 발행ㆍ편집인 : 김명규 | 청소년보호책임자 : 최지희 | 발행소 : 서울시 마포구 월드컵로8길 45-8 1층 | 발행일자 : 매일



