
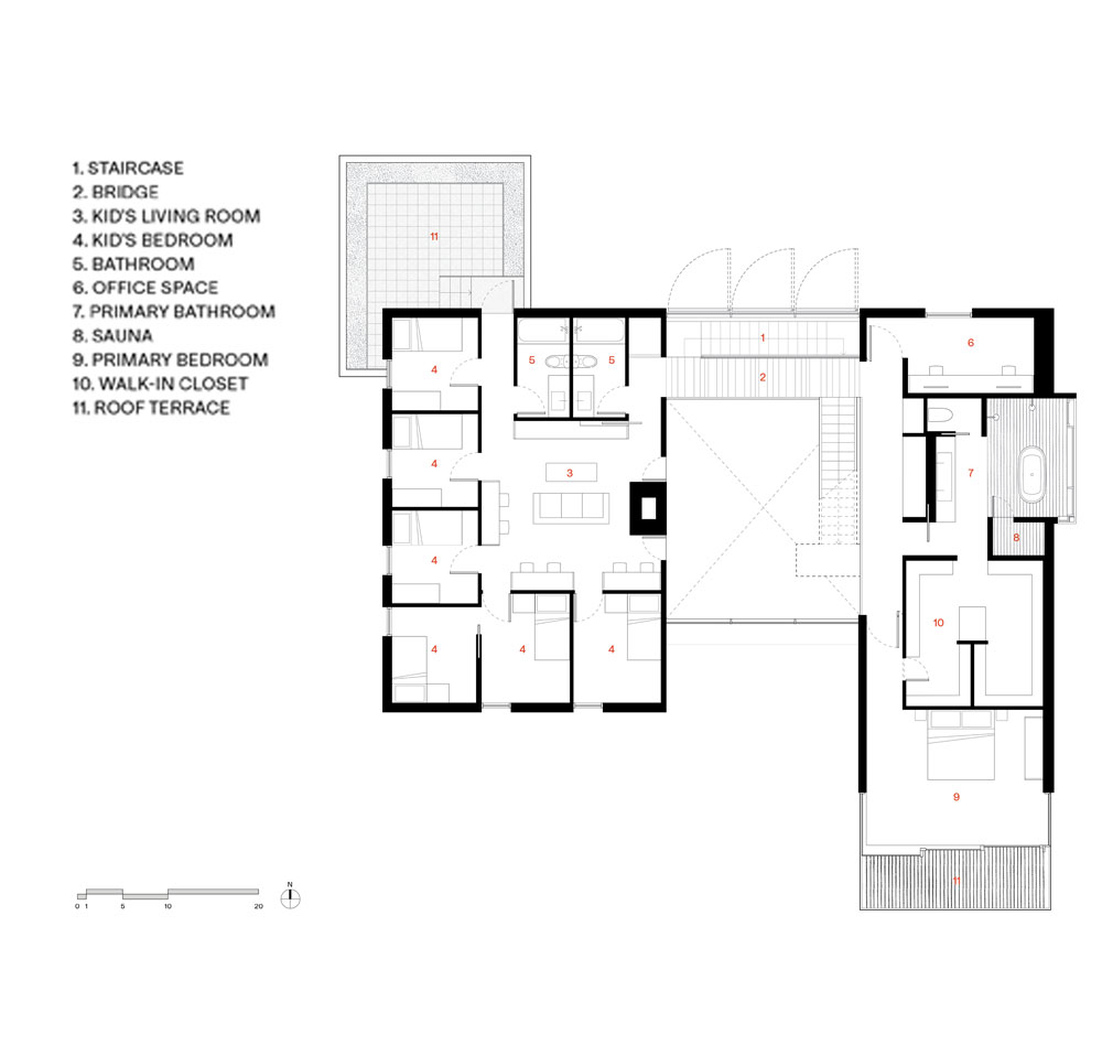
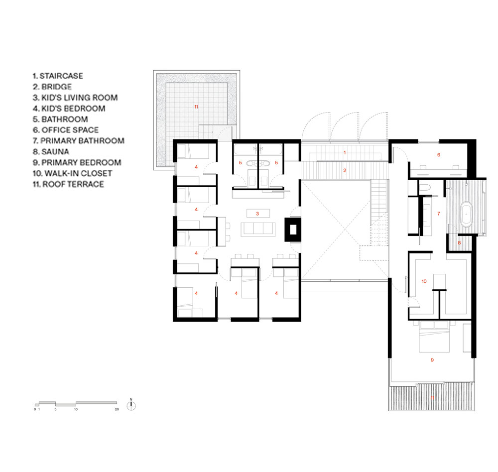
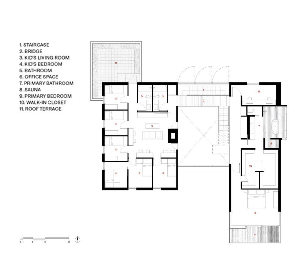
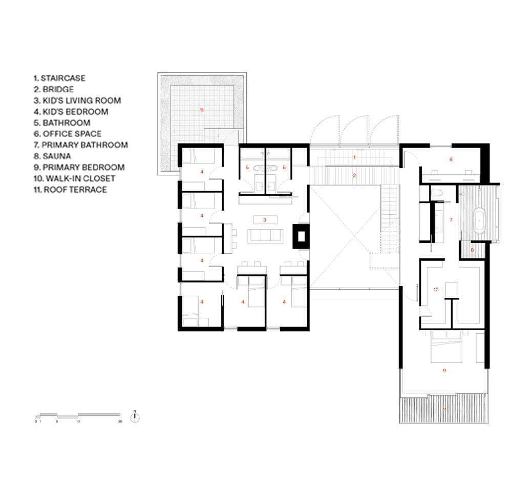
Sound House is a 5,500sf single-family home on a steep slope site in Seattle’s Magnolia neighborhood. The program for the house was unique, in that it needed to house a large blended family of two adults and six children living together for the first time. An emphasis was placed on providing large shared spaces to enjoy together and smaller areas of retreat for all members of the family. All spaces in the house needed to maximize the extensive views across the city and Puget Sound. Working closely with the owners and how their large family prioritizes communal spaces was key to deriving a plan that would function well for their needs.
Another design challenge of the project was to create a large family home that sits in context with its neighbors on a tight urban site. The sectional diagram was a key driver in designing the house and understanding the relationships to the steep slope and views to the south. The massing of the house allows it to appear in scale with neighboring properties on the north side and opens up to the south as it cascades down the site. The plan layout creates a central double height core (living room) allowing a separation of program at the upper level between the east primary wing and the west kids' wing while retaining a shared relationship between these spaces. This core central space, bookended with extensive glazing, draws light deep into the plan.
Circulation passes through the double height living space from the basement level up to the roof terrace and garden. The roof serves as an additional gathering space for the family and also houses an 18-panel solar array to offset energy usage. An extensive 500sf roof garden allows the family to grow much of their own vegetables and kitchen herbs. The house is super-insulated with an exterior blanket of insulation and heated efficiently with radiant-hydronic heating throughout. The detail and design of the house was carefully considered from an urban scale down to the detail and flow of the steel handrails. Natural warmth was derived from the texture of the interior plaster, use of warm woods, and patina of the concrete and steel. It was important for the house to be both elegant and refined as well as withstand daily use from a family of 8 who like to entertain.

사운드 하우스(Sound House)는 시애틀 매그놀리아 지역의 가파른 경사지에 위치한 5,500sf 크기의 단독 주택이다. 이 주택은 성인 두 명과 어린이 여섯 명으로 이루어진 대가족이 함께 생활할 공간이라는 점에서 설계작업이 독특했다. 가족 모두가 함께 즐길 수 있는 넓은 공간과 개개인 모두를 위한 작은 휴식 공간을 제공하는데 중점을 두었다. 집안의 모든 공간은 도시와 광활한 퓨젓 사운드(Puget Sound)의 전망을 최대한 담을 수 있도록 해야 했다. 건축주와의 긴밀한 협의를 통한 대가족의 공용 공간의 활용이 설계의 핵심이었다.
비좁은 부지에 이웃과 더불어 살 수 있는 대가족의 주택을 어떻게 만들어야 하는지는 이 프로젝트의 또 다른 과제였다. 집을 설계함에 있어 가파른 경사면과의 관계를 이해하고 남쪽을 향한 전망을 이해하는데 단면도의 역할이 중요했다. 집의 북쪽으로는 규모 있는 주변건물들이 보이고 대지의 아래로 내려가면서 남쪽 풍경이 보인다. 중앙의 거실은 단차를 만들어 공간 간의 공유가 가능하도록 함과 동시에 동쪽과 서쪽편으로는 공간분리가 가능하도록 하였다. 중앙의 넓은 유리창을 통해 건물 내부 깊숙한 곳까지 빛이 들어오도록 했다.
지하층에서 정원 그리고 옥상 테라스까지 두 배 높이의 생활 공간을 통해 순환이 이루어진다. 지붕은 가족을 위한 또다른 모임을 위한 공간을 제공해주고 에너지 사용을 최소화하기 위해 18개의 패널 태양 전지판을 설치하였다. 500sf 규모의 넓은 옥상 정원에서는 직접 채소와 주방용 허브도 재배할 수 있다. 집은 단열재를 사용하여 열손실을 줄이고 전체적으로 복사수소 난방을 사용하여 효율적인 난방이 가능하도록 했다. 집의 디테일과 디자인은 철제 핸드레일을 사용하는 등 세심하게 고려하였다. 내부는 석고 질감과 따뜻한 느낌의 목재를 사용하고 콘크리트와 강철의 녹청으로 자연의 따뜻함을 주었다. 집은 우아하고 세련될 뿐만 아니라 접대를 좋아하는 8인 가족의 일상적인 삶에도 연결될 수 있어야 했다.
















건축가 GO′C
위치 Seattle, WA
프로젝트팀 Jon Gentry AIA, Aimée O’Carroll ARB, Ben Kruse, Yuchen Qiu
구조엔지니어 Swenson Say Faget
토목엔지니어 J Welch Engineering
조명디자이너 Niteo
시공 Thomas Fragnoli Construction
사진작가 Kevin Scott
'Architecture Project > Single Family' 카테고리의 다른 글
| Wooa Dang (0) | 2023.03.29 |
|---|---|
| ARK (0) | 2023.03.27 |
| House in Shunan (0) | 2023.03.24 |
| House of shimonagaya (0) | 2023.03.23 |
| MADEIRA HOUSE (0) | 2023.03.16 |
마실와이드 | 등록번호 : 서울, 아03630 | 등록일자 : 2015년 03월 11일 | 마실와이드 | 발행ㆍ편집인 : 김명규 | 청소년보호책임자 : 최지희 | 발행소 : 서울시 마포구 월드컵로8길 45-8 1층 | 발행일자 : 매일



